Provisionsfrei* ansprechendes Einfamilienhaus - Bad Dürrheim Ortsteil

574.000 €
Kaufpreis
171 m²
Wohnfläche
5,5
Zimmer
immobilien.de Nr.: 9390506 Objektnummer: 131711-[26514]
Ansicht
Terrasse
Terrasse
Garten
Garten
Garten
Hof
Garten
Ansicht
Ankleide
Bad
Treppe
Flur
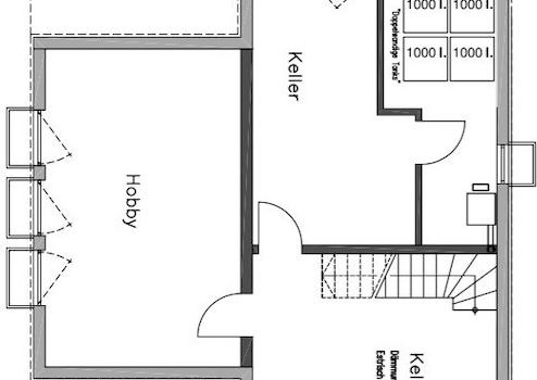
Grundriss UG
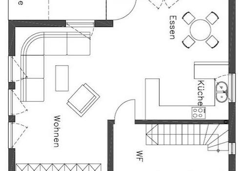
Grundriss EG
Grundriss DG

Preise & Kosten

Kaufpreis 574.000 €
Nebenkosten keine Angabe
Maklerprovision

Größe & Zustand

Wohnfläche 171 m²
Grundstücksfläche 533 m²
Zimmer 5,5
Baujahr 2005
Verfügbar ab 01.03.2026
Zustand Gepflegt

Energie

Heizungsart Zentralheizung
Energieträger/Befeuerung Öl

Objektbeschreibung

Dieses ansprechende Einfamilienhaus mit Garage und Carport eignet sich mit seinen 171 qm Wohnfläche ideal die junge Familie. Im Erdgeschoss gibt es einen großen Wohn-/Essbereich mit offener Küche. Ein Kaminofen spendet ergänzend zur Zentralheizung gemütliche Wärme. Im Obergeschoss ist neben zwei Kinderzimmern auch das Elternschlafzimmer mit begehbarem Kleiderschrank und Balkon untergebracht. Das Badezimmer verfügt über zwei Waschtische, eine Dusche sowie eine Eckwanne mit Whirlpoolfunktion. Im Keller gibt es einen großen, wohnlich ausgebauten Hobbyraum. Im Sommer lädt der herrliche Garten mit seiner riesigen nach Süden ausgerichteten Terrasse zum Verweilen ein. An einer Grundstückseite schlängelt sich ein kleiner Bachlauf entlang. Der dichte Baum- und Pflanzenbestand an den Grundstücksgrenzen gewährt auf natürliche Weise viel Sichtschutz und Privatsphäre. Das Carport verfügt über eine Wallbox zum Laden von Elektrofahrzeugen.

Ausstattung

Anzahl der Etagen im Haus 1
 
Küche Offene Küche
Bad 1
Bad Dusche, Wanne, Fenster
Boden Fliesen, Laminat
Balkone 1
Terrassen 1
Keller
Wohnfläche 171 m²
Grundstücksfläche 533 m²
Zimmer 5,5
Baujahr 2005
Keller
Balkon
Terrasse
Einbauküche
Garage
Carport

Sonstige Informationen

Privatverkauf direkt vom Eigentümer - Provisionsfrei.
Ein Energieausweis liegt zur Besichtigung vor.

Objektstandort

Bogenstr. 3-3
78073 Bad Dürrheim - Baden-Württemberg

Lage des Objektes

ruhige Lage im Ortskern von Bad Dürrheim/Unterbaldingen

Anbieter kontaktieren

Anbieter

immo-for-less Privat vom Eigentümer
Bierweg 19
99310 Arnstadt

Kontakt

Telefon
Mobil
Fax
Website www.immo-for-less.de

Ansprechpartner/in

von Privat
Weitere Anbieterdaten