Großzügige Neubauwohnung an der Dahme mit Fußbodenheizung und Balkon / WBS bis 220 % erforderlich
1.151,96 €
Kaltmiete (netto)
1.652,82 €
Warmmiete
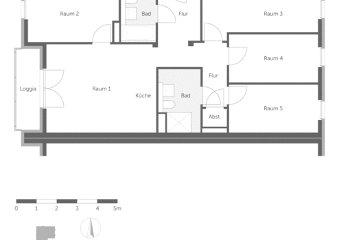
100,17 m²
Wohnfläche
5
Zimmer
immobilien.de Nr.: 9389718
Objektnummer: 6025/32592/0502/0218
Dateien
Preise & Kosten
| Kaltmiete (netto) | 1.151,96 € |
| Warmmiete | 1.652,82 € |
| Nebenkosten | 250,43 € |
| Heizkosten | 250,43 € |
| Kaution | 3455,88 € |
Größe & Zustand
| Wohnfläche | 100,17 m² |
| Zimmer | 5 |
| Baujahr | 2025 |
| Verfügbar ab | 01.12.2025 |
Energie
| Energieausweistyp | Bedarfsausweis |
| Energieeffizienzklasse | B |
| Endenergiebedarf | 59.90 |
| Heizungsart | Fernwärme |
| Energieträger/Befeuerung | Block |
Objektbeschreibung
Willkommen in dieser wunderschönen und hellen Wohnung am Ufer der Dahme. Diese Neubauwohnung im Erstbezug lässt kaum Wünsche offen und präsentiert sich mit strapazierfähigen Vinylboden in Holzoptik, Fußbodenheizung, hochwertigen Fenstern und zwei modern gefliesten Bädern, eines mit Wanne und eines mit Dusche. Erfreuen Sie sich an dem geräumigen Balkon, der viel Platz zum Entspannen bietet. Der offen gehaltene Wohn- und Küchenbereich lässt vielfältige Gestaltungsmöglichkeiten zu. Der Gebäudekomplex verfügt über separate Mieterkeller und zusätzliche Fahrradabstellräume. Sie sind im Besitz eines gültigen WBS (bis 220 %) für fünf Räume und an einer Besichtigung interessiert? Dann senden Sie uns bitte eine einfache Anfrage über den entsprechenden Button ("Anbieter kontaktieren" oder "Anfrage senden"). Sollten Sie noch nicht im Besitz eines gültigen WBS sein, aber laut WBS Check ( https://www.gewobag.de/wbs-check/ ) einen erhalten, helfen wir Ihnen gerne nach Besichtigung mit einem persönlichen Angebot Diesen schneller zu bekommen.
Ausstattung
| Anzahl der Etagen im Haus | 7 |
| Inserat befindet sich im Stockwerk | 1 |
| Balkone | 1 |
| Fahrstuhl | |
| Barrierefrei | |
| Haustiere |
Fernheizung/Zentralheizung, Fern-/Zentralwarmwasserversorgung, Glasfaserleitung, Handtuchheizkörper, Fußbodenheizung, Barrierearme Wohnungsgestaltung
Sonstige Informationen
Hinweis zu Ihrem Schutz: Wir vermieten provisionsfrei gemäß § 2 WoVermG. Personen, die im Auftrag der Gewobag tätig sind, dürfen keine Provision von Ihnen verlangen.
Anbieter
Eigentümer/Vermieter oder Verwalter des jeweiligen Mietobjekts ist Gewobag Wohnungsbau-Aktien- gesellschaft Berlin. Die Gewobag MB Mieterberatungsgesellschaft mbH übernimmt den Vermietungsservice für diese Gesellschaft. Weitere Informationen finden Sie unter www.gewobag.de/datenschutz .
Anbieter
Eigentümer/Vermieter oder Verwalter des jeweiligen Mietobjekts ist Gewobag Wohnungsbau-Aktien- gesellschaft Berlin. Die Gewobag MB Mieterberatungsgesellschaft mbH übernimmt den Vermietungsservice für diese Gesellschaft. Weitere Informationen finden Sie unter www.gewobag.de/datenschutz .
Lage des Objektes
Das idyllisch gelegene Wohngebiet liegt zwischen Dahme und der Wendenschlossstraße im Südosten Berlins. Der umgebende Stadtraum weist eine vorstädtische Charakteristik auf. Das historische Zentrum von Köpenick liegt nördlich und ist fußläufig zu erreichen. Die Lage zeichnet sich durch eine ruhige Wohnatmosphäre und die unmittelbare Nähe zu Wasser (Dahme und Großer Müggelsee) und Natur aus, bietet aber dennoch eine gute Anbindung an die Berliner Innenstadt. In der näheren Umgebung gibt es Einkaufsmöglichkeiten und weitere Infrastruktur. Die Anbindung an den öffentlichen Nahverkehr ist gut. Mehrere Bus- und Tramlinien sind fußläufig erreichbar.
Anbieter kontaktieren
Anbieter
Gewobag Wohnungsbau-Aktiengesellschaft Berlin
Alt-Moabit 101 A
10559 Berlin
Kontakt
| Telefon | +49 30 47084000 |
| Website | www.gewobag.de |
