Barrierefrei, plus Terrasse und Garten! Großzügige 2-Zi-Wohnung in Karlsfeld-West nahe München
629.000 €
Kaufpreis
69 m²
Wohnfläche
22 m²
Nutzfläche
2
Zimmer
immobilien.de Nr.: 9389048
Objektnummer: 06812
Preise & Kosten
| Kaufpreis | 629.000 € |
| Nebenkosten | keine Angabe |
| Hausgeld | 230 € |
| Maklerprovision | 2,38 % inkl. MwSt. Käuferprovision |
Größe & Zustand
| Wohnfläche | 69 m² |
| Nutzfläche | 22 m² |
| Fläche teilbar ab | 69 m² |
| Zimmer | 2 |
| Baujahr | 2023 |
| Verfügbar ab | nach Vereinbarung |
| Zustand | Neuwertig |
Energie
| Heizungsart | Fernwärme, Fußbodenheizung |
| Energieträger/Befeuerung | Fernwärme |
Objektbeschreibung
Die rund 70m² große 2-Zimmer-Wohnung befindet sich im Erdgeschoss eines mit Baujahr 2023 noch recht jungen gepflegten Mehrfamilienhauses mit sehr ansprechender Architektur, die diese Immobilie aus dem Pool der modernen Einheitsarchitektur heraushebt.
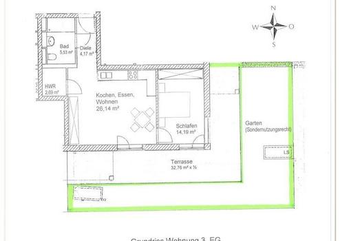
Der großzügige Wohnbereich mit integrierter, offener Küchenzeile bildet das Herzstück der Wohnung. Die große Fensterfront mit bodentiefen Elementen sorgt für reichlich Tageslicht und eine helle, freundliche Atmosphäre. Vom Wohnzimmer sowie vom Schlafzimmer aus gelangt man direkt auf die Süd- und Ostterrasse – ein idealer Rückzugsort für entspannte Stunden im Freien.
Das Badezimmer hat eine exklusive Sanitärausstattung (z.B. große Walk-in-Dusche), in der nebenan liegenden Kammer/Hauswirtschaftsraum haben Waschmaschine und Trockner ihren Platz.
Ein eigenes Kellerabteil sorgt für zusätzlichen Stauraum, während ein Stellplatz in der Tiefgarage das Angebot abrundet.
Die Wohnung ist barrierefrei zugänglich, und hat extra breite Innentüren!
Die Wohnung präsentiert sich insgesamt in einem sehr gepflegten Zustand mit viel Charme und einem offenen Schnitt, der ein angenehmes Wohnen garantiert. Sie eignet sich dank der Barrierefreiheit und des eigenen Gartens hervorragend als langfristige attraktive Investitionsmöglichkeit für Kapitalanleger in eine wertstabile Immobilie.
Frei wird die Wohnung zum 01.03.2026 .
Der großzügige Wohnbereich mit integrierter, offener Küchenzeile bildet das Herzstück der Wohnung. Die große Fensterfront mit bodentiefen Elementen sorgt für reichlich Tageslicht und eine helle, freundliche Atmosphäre. Vom Wohnzimmer sowie vom Schlafzimmer aus gelangt man direkt auf die Süd- und Ostterrasse – ein idealer Rückzugsort für entspannte Stunden im Freien.
Das Badezimmer hat eine exklusive Sanitärausstattung (z.B. große Walk-in-Dusche), in der nebenan liegenden Kammer/Hauswirtschaftsraum haben Waschmaschine und Trockner ihren Platz.
Ein eigenes Kellerabteil sorgt für zusätzlichen Stauraum, während ein Stellplatz in der Tiefgarage das Angebot abrundet.
Die Wohnung ist barrierefrei zugänglich, und hat extra breite Innentüren!
Die Wohnung präsentiert sich insgesamt in einem sehr gepflegten Zustand mit viel Charme und einem offenen Schnitt, der ein angenehmes Wohnen garantiert. Sie eignet sich dank der Barrierefreiheit und des eigenen Gartens hervorragend als langfristige attraktive Investitionsmöglichkeit für Kapitalanleger in eine wertstabile Immobilie.
Frei wird die Wohnung zum 01.03.2026 .
Ausstattung
| Anzahl der Etagen im Haus | 3 |
| Inserat befindet sich im Stockwerk | 0 |
| Küche | Einbauküche |
| Bad | 1 |
| Bad | Dusche |
| Boden | Parkett |
| Terrassen | 2 |
Erstbezug Sommer 2023
Gartenwohnung mit ca. 50 m² eigenem Garten (Sondernutzungsrecht)
Attraktive praktische Raumaufteilung
Wohnfläche von ca. 70 m² (inkl. hälftig angerechneter Terrasse)
Garten nach Süden und Osten ausgerichtet
Wohn-, Ess- und Kochbereich mit ca. 26 m²
Schlafzimmer mit ca. 14 m² und Ausgang zu Terrasse und Garten
direkter Zugang zu Terrasse und Garten vom Wohnbereich aus
hochwertiger Parkettboden in Eiche für stilvolles Wohnambiente
modernes Badezimmer mit exklusiver Sanitärausstattung (z.B. große Walk-in-Dusche)
Barrierefreie Zugänge
nachhaltige und effiziente Beheizung über Fernwärme
komfortabler Einzelstellplatz in der Tiefgarage
Gartenwohnung mit ca. 50 m² eigenem Garten (Sondernutzungsrecht)
Attraktive praktische Raumaufteilung
Wohnfläche von ca. 70 m² (inkl. hälftig angerechneter Terrasse)
Garten nach Süden und Osten ausgerichtet
Wohn-, Ess- und Kochbereich mit ca. 26 m²
Schlafzimmer mit ca. 14 m² und Ausgang zu Terrasse und Garten
direkter Zugang zu Terrasse und Garten vom Wohnbereich aus
hochwertiger Parkettboden in Eiche für stilvolles Wohnambiente
modernes Badezimmer mit exklusiver Sanitärausstattung (z.B. große Walk-in-Dusche)
Barrierefreie Zugänge
nachhaltige und effiziente Beheizung über Fernwärme
komfortabler Einzelstellplatz in der Tiefgarage
Sonstige Informationen
Der Kaufpreis beträgt EUR 629.000,- für die Wohnung inkl. Einbauküche, plus EUR 20.000,- für den TG-Stellplatz, zusammen also EUR 649.000,-.
Beim Abschluss des notariellen Kaufvertrages stellen wir dem Käufer eine Nachweis- und/oder Vermittlungsprovision in Höhe von 2,38 % inkl. ges. MwSt. in Rechnung.
Wir haben einen provisionspflichtigen Maklervertrag mit dem Verkäufer in gleicher Höhe geschlossen.
Beim Abschluss des notariellen Kaufvertrages stellen wir dem Käufer eine Nachweis- und/oder Vermittlungsprovision in Höhe von 2,38 % inkl. ges. MwSt. in Rechnung.
Wir haben einen provisionspflichtigen Maklervertrag mit dem Verkäufer in gleicher Höhe geschlossen.
Lage des Objektes
Die Wohnung befindet sich im südwestlichen Teil von Karlsfeld, einer rund 20.000 Einwohner starken Großgemeinde, unweit der Stadtgrenze zu München. Die Lage zeichnet sich durch eine entspannte Wohnatmosphäre mit überwiegend gewachsener Bebauung und gepflegtem Umfeld aus. Gleichzeitig überzeugt sie durch ihre hervorragende Anbindung an den öffentlichen Nahverkehr: Der S-Bahnhof München-Karlsfeld ist fußläufig in rund 15 Minuten bequem zu erreichen und bietet mit der S2 eine direkte Verbindung in die Münchner Innenstadt sowie in Richtung Dachau. Auch mehrere Buslinien verkehren in der Nähe und ergänzen die Anbindung optimal.
Zahlreiche Einkaufsmöglichkeiten, Bäckereien, Ärzte, Apotheken und Gastronomiebetriebe befinden sich in der näheren Umgebung und sind bequem zu Fuß oder mit dem Fahrrad erreichbar. Auch Bildungseinrichtungen wie Kindergärten und Schulen sind im Umkreis angesiedelt und machen die Lage besonders attraktiv für Singles, Pendler und Kapitalanleger. Der nahegelegene Ortskern von Karlsfeld bietet zudem eine gute Infrastruktur für den täglichen Bedarf.
Zahlreiche Einkaufsmöglichkeiten, Bäckereien, Ärzte, Apotheken und Gastronomiebetriebe befinden sich in der näheren Umgebung und sind bequem zu Fuß oder mit dem Fahrrad erreichbar. Auch Bildungseinrichtungen wie Kindergärten und Schulen sind im Umkreis angesiedelt und machen die Lage besonders attraktiv für Singles, Pendler und Kapitalanleger. Der nahegelegene Ortskern von Karlsfeld bietet zudem eine gute Infrastruktur für den täglichen Bedarf.
Anbieter kontaktieren
Kontakt
| Telefon | +49 8133 444210 |
| Mobil | +49 172 8460088 |
| Fax | +49 8133 4442129 |
| Website | www.tell-immobilien.de |
