Charmante 2-Zimmer-Wohnung im Gartenhaus - in ruhiger Lage in unmittelbarer Nähe zum Ku'Damm
1.417 €
Kaltmiete (netto)
57 m²
Wohnfläche
2
Zimmer
immobilien.de Nr.: 9388673
Objektnummer: 414968
Preise & Kosten
| Kaltmiete (netto) | 1.417 € |
| Nebenkosten | 113 € |
| Heizkosten enthalten | Ja |
| Kaution | 4.251 € |
Größe & Zustand
| Wohnfläche | 57 m² |
| Zimmer | 2 |
| Verfügbar ab | sofort |
| Zustand | Teil Vollsaniert |
Energie
| Heizungsart | Zentralheizung |
Objektbeschreibung
Diese gepflegte 2-Zimmer-Wohnung im Erdgeschoss eines ruhigen Gartenhauses bietet ein angenehmes Wohnambiente und eignet sich ideal für Singles oder Paare, die zentral wohnen und dennoch Ruhe genießen möchten.
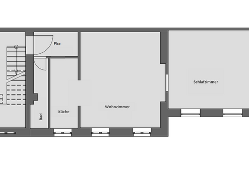
Die Wohnung überzeugt durch einen funktionalen Grundriss mit zwei gut geschnittenen Zimmern, die sich flexibel als Wohn-, Schlaf- oder Arbeitsbereich nutzen lassen. Eine Einbauküche ist bereits vorhanden und bietet eine praktische Grundlage für den Alltag. Das Badezimmer rundet das stimmige Raumkonzept ab.
Objektzustand: Erstbezug nach Sanierung
Die Wohnung überzeugt durch einen funktionalen Grundriss mit zwei gut geschnittenen Zimmern, die sich flexibel als Wohn-, Schlaf- oder Arbeitsbereich nutzen lassen. Eine Einbauküche ist bereits vorhanden und bietet eine praktische Grundlage für den Alltag. Das Badezimmer rundet das stimmige Raumkonzept ab.
Objektzustand: Erstbezug nach Sanierung
Ausstattung
| Inserat befindet sich im Stockwerk | 0 |
| Bad | 1 |
| Bad | Dusche |
| Boden | Fliesen, Parkett |
Duschbad, Parkett, Fliesen
Bemerkungen:
2 Zimmer
Erdgeschoss im ruhigen Gartenhaus
Einbauküche vorhanden
Praktischer Grundriss
Zentrale Lage mit sehr guter Infrastruktur
Bemerkungen:
2 Zimmer
Erdgeschoss im ruhigen Gartenhaus
Einbauküche vorhanden
Praktischer Grundriss
Zentrale Lage mit sehr guter Infrastruktur
Sonstige Informationen
Heizungsart: Zentralheizung
Energieausweis nicht vorhanden
Haben wir Ihr Interesse geweckt?
Wir freuen uns auf Ihre Anfrage und stehen Ihnen gern für weitere Informationen oder eine Besichtigung zur Verfügung.
Makleranfragen nicht erwünscht. Nach § 7 UWG sind unaufgeforderte Kontaktaufnahmen durch Makler ohne ausdrückliche Einwilligung des Empfängers verboten!
ohne-makler (OM) ist weder Anbieter noch Vermittler der Immobilie. OM betreibt eine Plattform für Immobilieneigentümer, die unter anderem die gleichzeitige Veröffentlichung einzelner Inserate auf mehreren Immobilienportalen ermöglicht. Die Inhalte dieser Inserate werden ausschließlich von Dritten verantwortet. Für die Richtigkeit, Vollständigkeit oder Rechtmäßigkeit der Angaben übernimmt OM keine Haftung. Hinweise auf mögliche Rechtsverstöße können jederzeit gemeldet werden und werden nach Prüfung umgehend bearbeitet.
Energieausweis nicht vorhanden
Haben wir Ihr Interesse geweckt?
Wir freuen uns auf Ihre Anfrage und stehen Ihnen gern für weitere Informationen oder eine Besichtigung zur Verfügung.
Makleranfragen nicht erwünscht. Nach § 7 UWG sind unaufgeforderte Kontaktaufnahmen durch Makler ohne ausdrückliche Einwilligung des Empfängers verboten!
ohne-makler (OM) ist weder Anbieter noch Vermittler der Immobilie. OM betreibt eine Plattform für Immobilieneigentümer, die unter anderem die gleichzeitige Veröffentlichung einzelner Inserate auf mehreren Immobilienportalen ermöglicht. Die Inhalte dieser Inserate werden ausschließlich von Dritten verantwortet. Für die Richtigkeit, Vollständigkeit oder Rechtmäßigkeit der Angaben übernimmt OM keine Haftung. Hinweise auf mögliche Rechtsverstöße können jederzeit gemeldet werden und werden nach Prüfung umgehend bearbeitet.
Lage des Objektes
Die Wohnung befindet sich in einer gefragten Wohnlage nahe dem Kurfürstendamm und verbindet zentrales, urbanes Leben mit angenehmer Ruhe. Dank der Lage im Gartenhaus genießen Sie ein ruhiges Wohnumfeld, während Einkaufsmöglichkeiten, Cafés, Restaurants und kulturelle Angebote am Ku’damm fußläufig erreichbar sind.
Die Anbindung an den öffentlichen Nahverkehr ist hervorragend, ebenso die Versorgung mit Geschäften des täglichen Bedarfs. Grünflächen in der Umgebung bieten zusätzlichen Erholungswert.
Die Anbindung an den öffentlichen Nahverkehr ist hervorragend, ebenso die Versorgung mit Geschäften des täglichen Bedarfs. Grünflächen in der Umgebung bieten zusätzlichen Erholungswert.
