Provisionsfrei* Doppelhaushälfte in traumhafter Lage

535.000 €
Kaufpreis
121,92 m²
Wohnfläche
5
Zimmer
immobilien.de Nr.: 9385422 Objektnummer: 131275-[26498]
Ansicht vom Garten
Hausansicht mit Wintergarten
Eingangsbereich
Ansicht Ost- und Nordseite
Ausblick vom Garten
Wohnzimmer
Kachelofen im Wohnzimmer
Esszimmer
Küche
Küche
Küche
Schlafzimmer 1
Schlafzimmer 2
Büro- oder Kinderzimmer
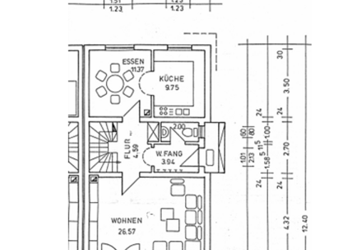
Grundriss 01
Grundriss 02

Preise & Kosten

Kaufpreis 535.000 €
Nebenkosten keine Angabe
Maklerprovision

Größe & Zustand

Wohnfläche 121,92 m²
Grundstücksfläche 387 m²
Zimmer 5
Baujahr 1984
Letzte Modernisierung 2022
Verfügbar ab sofort
Zustand Gepflegt

Energie

Energieausweistyp Verbrauch
Gültig bis 2035-03-06
Energieverbrauchkennwert 97.3 kWh/(m²*a)
Heizungsart Zentralheizung
Energieträger/Befeuerung Pellet

Objektbeschreibung

Doppelhaushälfte am südöstlichen Ortsrand mit altem Obstbaumbestand und Blick auf die angrenzenden Wiesen.
Herzstück des Hauses ist der im Wohnzimmer eingebaute Kachelofen, der auch die obere Etage mit beheizen kann. In Kombination mit der nachhaltigen Pelletheizung sorgt der Kachelofen nicht nur für ein Wohlfühl-Raumklima, sondern ermöglicht eine effiziente, kostengünstige und ökologische Beheizung des Objekts. Zudem wurde das Haus in Massivbauweise mit Isoliersteinen (Isolier-Mauerwerk-System "Calinoor") erstellt.
Im Erdgeschoß befindet sich neben dem südlich zum Garten ausgerichteten Wohnzimmer auch das Esszimmer, die Küche sowie ein separates Gäste-WC. In der Küche wurde ein weiteres Fenster zur Ostseite hin eingebaut. Der Eingangsbereich wurde um einen Wintergarten erweitert.
Die 3 Zimmer in der 1.Etage sind multifunktional nutzbar: in 2 der Zimmer passt jeweils ein Schlafzimmer, das 3.Zimmer eignet sich als idealer Ort für ein Home-Office, es weist aufgrund der vorhandenen Dachgaube keine Dachschräge auf.
Keller:
Das Haus ist teilunterkellert und verfügt über Technikraum (Pelletheizung und Pelletlager), Wirtschaftsraum (Waschbecken, Wasseranschluss, Platz für 2 Maschinen) sowie Vorratsraum mit einer 4-Personen-Sauna (kann übernommen werden). Im Garten zur Nordseite befindet sich ein unterirdisches Regenwasser-Reservoir.
Dachboden:
Der Dachboden ist ausbaufähig mit der Option ein Atelier o.ä. auf einer Grundfläche von ca. 6m x 6m einzurichten (Berechnung der sich zusätzlich ergebenden Wohnfläche unter Berücksichtigung der Dachschrägen). Es bietet sich der Einbau von Dachfenstern mit Blick auf die unbebaute Wiese in südlicher Richtung an.
Garten:
Der Garten wurde liebevoll kultiviert und besticht durch seine besondere Blütenpracht. Der jahrzehntealte Obstbaumbestand umfasst Apfel-, Birn-, Zwetschgenbaum und Felsenbirne. Der Apfelbaum der Sorte "Jakob Fischer" ist von besonderer Güte und zeichnet sich durch seinen hohen Ertrag aus. Der Garten ist mit einem Hochbeet bestückt.

Ausstattung

 
Bad 1
Bad Dusche, Wanne, Fenster
Boden Fliesen, Parkett, Dielen
Terrassen 1
Keller
Alle Räumlichkeiten sind frisch in weiß gestrichen. Im Wohnzimmer ist ein Massivholz-Stäbchenparkett aus Eiche verlegt. Die übrigen Räumlichkeiten im Erdgeschoss sind gefliest.
In der 1. Etage sind Buchenholzböden (Schiffsboden) verlegt. Das Tageslicht-Badezimmer mit Badewanne, Dusche und WC ist vollflächig gefliest.
Technische Ausstattung:
Pelletheizung:
Ökofen Pellematic, Pelletkessel mit Spezialwärmetauscher PE 10 KW.
Einbau einer neuen Steuerungselektronik "Pelletronic Touch" im Jahr 2022.
Kachelofen:
In 2021 erfolgte die komplette Erneuerung des Kachelofen-Innenlebens durch den Austausch des Ofeneinsatzes und den Einbau des Heizgeräts Rubin K20. Der Kachelofen verbrennt mit hoher Effizienz.

Sonstige Informationen

Garage, Garagenanbau und Holzschuppen:
* Garage: Maße innen: Länge: 5,40m, Breite: 2,71m, Fläche: 14,63 qm
* Garagenanbau mit Außenmaßen 2,75m x 2,85m.
* Gartenschuppen in Holzbauweise.

Objektstandort

90584 Allersberg - Bayern

Lage des Objektes

Besonderheit der Immobilie: Lage am südöstlichen Ortsrand von Allersberg: von der zum Süden hin ausgerichteten Terrasse bzw. dem Garten reicht der Blick durch die Obstbäume hindurch über die unverbaute Wiese bis zum Wald in der Ferne.
Allersberg liegt etwa 30 km südlich von Nürnberg. Die Anbindung an die Metropolregion Nürnberg ist für Pendler ideal. Von der Anschlussstelle Allersberg (Rothsee) aus erreicht die S-Bahn den Nürnberger Hauptbahnhof in ca. 15min. Auch über die Autobahn A9 bzw. die Landstraße ist Nürnberg schnell zu erreichen. Zahlreiche Freizeitaktivitäten sind im Naherholungsgebiet rund um den Rothsee möglich.

Anbieter kontaktieren

Anbieter

immo-for-less Privat vom Eigentümer
Bierweg 19
99310 Arnstadt

Kontakt

Telefon
Mobil
Fax
Website www.immo-for-less.de

Ansprechpartner/in

Privat von Jochen Fischer
Weitere Anbieterdaten