Provisionsfrei* ansprechendes Einfamilienhaus - Bad Dürrheim Ortsteil
574.000 €
Kaufpreis
171 m²
Wohnfläche
5,5
Zimmer
immobilien.de Nr.: 9385397
Objektnummer: 131711-[26514]
Preise & Kosten
| Kaufpreis | 574.000 € |
| Nebenkosten | keine Angabe |
| Maklerprovision |
Größe & Zustand
| Wohnfläche | 171 m² |
| Grundstücksfläche | 533 m² |
| Zimmer | 5,5 |
| Baujahr | 2005 |
| Verfügbar ab | 01.03.2026 |
| Zustand | Gepflegt |
Energie
| Heizungsart | Zentralheizung |
| Energieträger/Befeuerung | Öl |
Objektbeschreibung
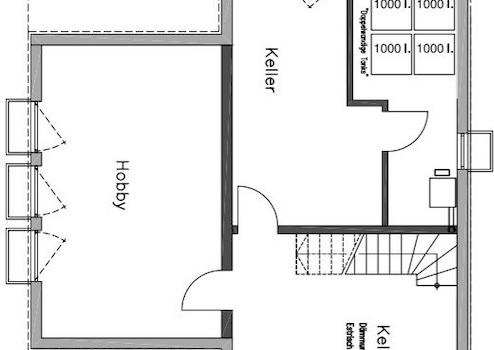
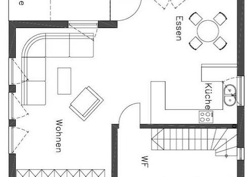
Dieses ansprechende Einfamilienhaus mit Garage und Carport eignet sich mit seinen 171 qm Wohnfläche ideal die junge Familie. Im Erdgeschoss gibt es einen großen Wohn-/Essbereich mit offener Küche. Ein Kaminofen spendet ergänzend zur Zentralheizung gemütliche Wärme. Im Obergeschoss ist neben zwei Kinderzimmern auch das Elternschlafzimmer mit begehbarem Kleiderschrank und Balkon untergebracht. Das Badezimmer verfügt über zwei Waschtische, eine Dusche sowie eine Eckwanne mit Whirlpoolfunktion. Im Keller gibt es einen großen, wohnlich ausgebauten Hobbyraum. Im Sommer lädt der herrliche Garten mit seiner riesigen nach Süden ausgerichteten Terrasse zum Verweilen ein. An einer Grundstückseite schlängelt sich ein kleiner Bachlauf entlang. Der dichte Baum- und Pflanzenbestand an den Grundstücksgrenzen gewährt auf natürliche Weise viel Sichtschutz und Privatsphäre. Das Carport verfügt über eine Wallbox zum Laden von Elektrofahrzeugen.
Ausstattung
| Anzahl der Etagen im Haus | 1 |
| Küche | Offene Küche |
| Bad | 1 |
| Bad | Dusche, Wanne, Fenster |
| Boden | Fliesen, Laminat |
| Balkone | 1 |
| Terrassen | 1 |
| Keller |
Wohnfläche 171 m²
Grundstücksfläche 533 m²
Zimmer 5,5
Baujahr 2005
Keller
Balkon
Terrasse
Einbauküche
Garage
Carport
Grundstücksfläche 533 m²
Zimmer 5,5
Baujahr 2005
Keller
Balkon
Terrasse
Einbauküche
Garage
Carport
Sonstige Informationen
Privatverkauf direkt vom Eigentümer - Provisionsfrei.
Ein Energieausweis liegt zur Besichtigung vor.
Ein Energieausweis liegt zur Besichtigung vor.
Anbieter
immo-for-less Privat vom Eigentümer
Bierweg 19
99310 Arnstadt
Kontakt
| Telefon | |
| Mobil | |
| Fax | |
| Website | www.immo-for-less.de |
