Ausbaufähiges, leerstehendes Mehrfamilienhaus in Top-Lage von Herzogenaurach
1.180.000 €
Kaufpreis
554 m²
Wohnfläche
20
Zimmer
immobilien.de Nr.: 9384506
Objektnummer: 415357
Preise & Kosten
| Kaufpreis | 1.180.000 € |
| Nebenkosten | keine Angabe |
| Maklerprovision | keine Provision, courtagefrei |
Größe & Zustand
| Wohnfläche | 554 m² |
| Grundstücksfläche | 821 m² |
| Zimmer | 20 |
| Baujahr | 1960 |
| Verfügbar ab | nach Absprache |
Energie
| Energieausweistyp | Bedarfsausweis |
| Energieeffizienzklasse | F |
| Endenergiebedarf | 222 |
Objektbeschreibung
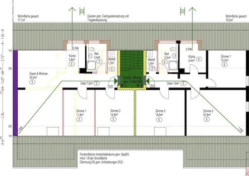
Bei dieser Liegenschaft handelt es sich um ein Mehrfamilienhaus vier bzw. sechs Wohneinheiten mit einer Gesamtwohnfläche von ca. 554 m². Das Potential besteht im Ausbau des Dachgeschosses (bereits z.T. ausgebaut, inkl. Elektrik, Warmwasser, Dämmung) mit 2 Wohnungen. Das Gebäude wurde im Jahr 1960 errichtet und steht auf einem ca. 821 m² großen Grundstück. Die genaue Vermessung erfolgt noch.
Das Haus verfügt über Keller, Erdgeschoss, Obergeschoss und Dachgeschoss.
Die Wohnungen sind über ein zentrales Treppenhaus erschlossen. Die Ausstattung entspricht einem soliden Standard. Für dieses Haus ist ein eigener Heizungseinbau erforderlich, bislang erfolgte die Versorgung über ein Nachbargebäude.
Das Haus verfügt über Keller, Erdgeschoss, Obergeschoss und Dachgeschoss.
Die Wohnungen sind über ein zentrales Treppenhaus erschlossen. Die Ausstattung entspricht einem soliden Standard. Für dieses Haus ist ein eigener Heizungseinbau erforderlich, bislang erfolgte die Versorgung über ein Nachbargebäude.
Ausstattung
| Anzahl der Etagen im Haus | 3 |
| Küche | Einbauküche |
| Bad | 4 |
| Bad | Wanne |
| Boden | Fliesen, Parkett, Laminat |
| Balkone | 1 |
| Garten | |
| Terrassen | 1 |
| Keller |
Balkon, Terrasse, Garten, Keller, Vollbad, Einbauküche, Gäste-WC, Parkett, Laminat, Fliesen
Bemerkungen:
Die meisten Wohnungen sind bestens für Paare oder Familien geeignet! Zukünftig ist auch eine Nutzung kleinerer Einheiten über Sondervermietungsmodelle, wie die Vermietung an Expats denkbar. Die größten direkten Arbeitgeber sind Schäffler, Puma, Adidas, Siemens, Areva, FAU (Friedrich-Alexander-Universität)
- Kellerabteil
- Kein Einzeldenkmal/ Ensembleschutz
- genügend Stellplätze und Garagen
- Elektrik bereits bei allen Einheiten modernisiert
- Balkonanlage/ Terrassen und großzügige Gartenflächen – zukünftig
zuweisbar
- Ausbaufähige Dachgeschossflächen zu weiteren 2 Wohnungen
Bemerkungen:
Die meisten Wohnungen sind bestens für Paare oder Familien geeignet! Zukünftig ist auch eine Nutzung kleinerer Einheiten über Sondervermietungsmodelle, wie die Vermietung an Expats denkbar. Die größten direkten Arbeitgeber sind Schäffler, Puma, Adidas, Siemens, Areva, FAU (Friedrich-Alexander-Universität)
- Kellerabteil
- Kein Einzeldenkmal/ Ensembleschutz
- genügend Stellplätze und Garagen
- Elektrik bereits bei allen Einheiten modernisiert
- Balkonanlage/ Terrassen und großzügige Gartenflächen – zukünftig
zuweisbar
- Ausbaufähige Dachgeschossflächen zu weiteren 2 Wohnungen
Sonstige Informationen
Angaben gemäß § 5 TMG
G & T Immobilien GmbH
Geschäftsführer: Sebastian Gleißner und Maximilian Troll
Kolbstr. 10,
90513 Zirndorf
Registergericht: Amtsgericht Fürth
Handelsregister: HRB 14758
Kontakt
Telefon: +49 151 20105030
E-Mail: verwaltung@smg-holding.de
Makleranfragen nicht erwünscht. Nach § 7 UWG sind unaufgeforderte Kontaktaufnahmen durch Makler ohne ausdrückliche Einwilligung des Empfängers verboten!
ohne-makler (OM) ist weder Anbieter noch Vermittler der Immobilie. OM betreibt eine Plattform für Immobilieneigentümer, die unter anderem die gleichzeitige Veröffentlichung einzelner Inserate auf mehreren Immobilienportalen ermöglicht. Die Inhalte dieser Inserate werden ausschließlich von Dritten verantwortet. Für die Richtigkeit, Vollständigkeit oder Rechtmäßigkeit der Angaben übernimmt OM keine Haftung. Hinweise auf mögliche Rechtsverstöße können jederzeit gemeldet werden und werden nach Prüfung umgehend bearbeitet.
G & T Immobilien GmbH
Geschäftsführer: Sebastian Gleißner und Maximilian Troll
Kolbstr. 10,
90513 Zirndorf
Registergericht: Amtsgericht Fürth
Handelsregister: HRB 14758
Kontakt
Telefon: +49 151 20105030
E-Mail: verwaltung@smg-holding.de
Makleranfragen nicht erwünscht. Nach § 7 UWG sind unaufgeforderte Kontaktaufnahmen durch Makler ohne ausdrückliche Einwilligung des Empfängers verboten!
ohne-makler (OM) ist weder Anbieter noch Vermittler der Immobilie. OM betreibt eine Plattform für Immobilieneigentümer, die unter anderem die gleichzeitige Veröffentlichung einzelner Inserate auf mehreren Immobilienportalen ermöglicht. Die Inhalte dieser Inserate werden ausschließlich von Dritten verantwortet. Für die Richtigkeit, Vollständigkeit oder Rechtmäßigkeit der Angaben übernimmt OM keine Haftung. Hinweise auf mögliche Rechtsverstöße können jederzeit gemeldet werden und werden nach Prüfung umgehend bearbeitet.
Lage des Objektes
Das Objekt liegt am südlichen Stadtrand von Herzogenaurach – ruhig gelegen und dennoch mitten im Leben. Einkaufsmöglichkeiten, Schulen, Kindergärten und Haltestellen des öffentlichen Nahverkehrs sind bequem zu Fuß erreichbar. In wenigen Minuten gelangt man zudem ins Stadtzentrum mit seinen Geschäften, Restaurants und Cafés.
Herzogenaurach ist nicht nur bekannt für seine charmante Altstadt, sondern auch als Standort namhafter Unternehmen wie Adidas, Puma und der Schaeffler-Gruppe. Damit bietet die Stadt eine ideale Kombination aus hoher Lebensqualität und wirtschaftlicher Stärke. Durch die Nähe zur Autobahn A3 sind Erlangen und Nürnberg schnell erreichbar, sodass sich Beruf, Freizeit und Wohnen hier optimal verbinden lassen.
Die Lage vereint damit alles, was modernes Wohnen ausmacht: Ruhe im Alltag, kurze Wege zu allen wichtigen Einrichtungen und eine hervorragende Anbindung an die Region.
Infrastruktur (im Umkreis von 5 km):
Apotheke, Lebensmittel-Discount, Allgemeinmediziner, Kindergarten, Grundschule, Hauptschule, Gymnasium, Gesamtschule, Öffentliche Verkehrsmittel
Herzogenaurach ist nicht nur bekannt für seine charmante Altstadt, sondern auch als Standort namhafter Unternehmen wie Adidas, Puma und der Schaeffler-Gruppe. Damit bietet die Stadt eine ideale Kombination aus hoher Lebensqualität und wirtschaftlicher Stärke. Durch die Nähe zur Autobahn A3 sind Erlangen und Nürnberg schnell erreichbar, sodass sich Beruf, Freizeit und Wohnen hier optimal verbinden lassen.
Die Lage vereint damit alles, was modernes Wohnen ausmacht: Ruhe im Alltag, kurze Wege zu allen wichtigen Einrichtungen und eine hervorragende Anbindung an die Region.
Infrastruktur (im Umkreis von 5 km):
Apotheke, Lebensmittel-Discount, Allgemeinmediziner, Kindergarten, Grundschule, Hauptschule, Gymnasium, Gesamtschule, Öffentliche Verkehrsmittel
Anbieter kontaktieren
Kontakt
| Telefon | - |
| Fax | - |
| Website | www.ohne-makler.net |
