Besonderes Ambiente mit Innenhof
790.000 €
Kaufpreis
325 m²
Wohnfläche
8
Zimmer
immobilien.de Nr.: 9384144
Objektnummer: 385821
Preise & Kosten
| Kaufpreis | 790.000 € |
| Nebenkosten | keine Angabe |
| Maklerprovision | keine Provision, courtagefrei |
Größe & Zustand
| Wohnfläche | 325 m² |
| Grundstücksfläche | 757 m² |
| Zimmer | 8 |
| Baujahr | 1784 |
| Verfügbar ab | nach Absprache |
| Zustand | Gepflegt |
Energie
| Heizungsart | Fußbodenheizung |
| Energieträger/Befeuerung | Gas |
Objektbeschreibung
Schon beim Eintreten in den Hof lässt sich bereits eindrucksvoll das Besondere dieser Immobilie erkennen. Ein gepflegter Innenhof, liebevoll angelegt, mit Terrasse und schönen Grünflächen eröffnen einen idyllischen Platz zum Verweilen.
Das Haupthaus wurde 1784 erbaut und ca. 1900 mit Stall und einer Remise ergänzt. 1981-83 sind die Stallungen von Grund auf umgebaut, saniert und mit viel Aufwand zu einem Wohnhaus umgestaltet worden. 2017 wurde weitere Erneuerungen und Sanierungen vorgenommen.
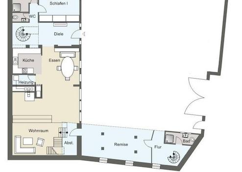
Auf 2 Etagen erschließen sich Wohn-Schlaf- und Arbeitsbereiche. Die offene Küche mit angrenzendem offenen Essbereich und dem Gemütlichen Kachelofen werden zum Treffpunkt des Hauses. Der angrenzende Wohnbereich beeindruckt durch die imposante Glasfassade und den Ausblick in den Innenhof, sowie einem offenen Kamin. Die offene Holztreppe führt über eine Empore in das ausgebaute Dachgeschoss und erschließt einen zusätzlichen hellen großen Wohnraum und oder Bürobereich.
Das Haus besticht durch reizvolle Sichtachsen und ein besonders schönes Ambiente. Ein Schlafzimmer mit Zugang zum Hof und ein Badezimmer, sowie ein separates WC befinden sich ebenfalls auf dieser Ebene. Somit wäre es auch für ältere oder behinderte Menschen ideal.
Über eine weitere Wendeltreppe gelangt man in das Obergeschoss. Mit 2 großen freundlichen Zimmern, jedoch flexibel aufteilbar als 4 Zimmer mit separatem Eingang und einem Dusch-Bad vervollständigt dieser Bereich das Haupthaus.
Die Remise wurde 2024 als vollständige helle 2-Zimmerwohnung ausgebaut und kann als separate Wohnung oder als kleine gewerbliche Fläche genutzt werden. Da ein eigener Zugang vorhanden ist, wäre auch eine Nutzung als Ferienwohnung möglich.
Das sich ebenfalls auf dem Grundstück vorhandene Fachwerkhaus ist denkmalgeschützt (Kulturdenkmal) und wurde 2022 außen saniert. Innen könnte es zu weiterem Wohnraum ca. 180 qm ausgebaut werden. Es kann aktuell gut als Werkstatt oder Lager genutzt werden. Das Gebäude hat einen separaten Eingang zum Innenhof bzw. einen Straßen Zugang.
Das Haupthaus wurde 1784 erbaut und ca. 1900 mit Stall und einer Remise ergänzt. 1981-83 sind die Stallungen von Grund auf umgebaut, saniert und mit viel Aufwand zu einem Wohnhaus umgestaltet worden. 2017 wurde weitere Erneuerungen und Sanierungen vorgenommen.
Auf 2 Etagen erschließen sich Wohn-Schlaf- und Arbeitsbereiche. Die offene Küche mit angrenzendem offenen Essbereich und dem Gemütlichen Kachelofen werden zum Treffpunkt des Hauses. Der angrenzende Wohnbereich beeindruckt durch die imposante Glasfassade und den Ausblick in den Innenhof, sowie einem offenen Kamin. Die offene Holztreppe führt über eine Empore in das ausgebaute Dachgeschoss und erschließt einen zusätzlichen hellen großen Wohnraum und oder Bürobereich.
Das Haus besticht durch reizvolle Sichtachsen und ein besonders schönes Ambiente. Ein Schlafzimmer mit Zugang zum Hof und ein Badezimmer, sowie ein separates WC befinden sich ebenfalls auf dieser Ebene. Somit wäre es auch für ältere oder behinderte Menschen ideal.
Über eine weitere Wendeltreppe gelangt man in das Obergeschoss. Mit 2 großen freundlichen Zimmern, jedoch flexibel aufteilbar als 4 Zimmer mit separatem Eingang und einem Dusch-Bad vervollständigt dieser Bereich das Haupthaus.
Die Remise wurde 2024 als vollständige helle 2-Zimmerwohnung ausgebaut und kann als separate Wohnung oder als kleine gewerbliche Fläche genutzt werden. Da ein eigener Zugang vorhanden ist, wäre auch eine Nutzung als Ferienwohnung möglich.
Das sich ebenfalls auf dem Grundstück vorhandene Fachwerkhaus ist denkmalgeschützt (Kulturdenkmal) und wurde 2022 außen saniert. Innen könnte es zu weiterem Wohnraum ca. 180 qm ausgebaut werden. Es kann aktuell gut als Werkstatt oder Lager genutzt werden. Das Gebäude hat einen separaten Eingang zum Innenhof bzw. einen Straßen Zugang.
Ausstattung
| Anzahl der Etagen im Haus | 2 |
| Küche | Einbauküche |
| Bad | 3 |
| Bad | Dusche, Wanne |
| Boden | Fliesen, Parkett |
| Garten | |
| Barrierefrei |
Garten, Vollbad, Duschbad, Einbauküche, Gäste-WC, Kamin, Barrierefrei, Parkett, Fliesen
Bemerkungen:
Durch Lage, Größe und Zuschnitt bietet das Objekt vielfältige Nutzungsmöglichkeiten und wartet auf neue Eigentümer*innen. Die moderne Küche wurde vor vier Jahren erneuert, und der Holzofen im Wohnzimmer, der als zusätzliche Heizung dient, entspricht nach seiner Erneuerung 2025 aktuellen Vorschriften. Das Haus ist mit einer Gas-Fußbodenheizung ausgestattet.
Das Objekt ist an das Glasfasernetz angeschlossen.
Bemerkungen:
Durch Lage, Größe und Zuschnitt bietet das Objekt vielfältige Nutzungsmöglichkeiten und wartet auf neue Eigentümer*innen. Die moderne Küche wurde vor vier Jahren erneuert, und der Holzofen im Wohnzimmer, der als zusätzliche Heizung dient, entspricht nach seiner Erneuerung 2025 aktuellen Vorschriften. Das Haus ist mit einer Gas-Fußbodenheizung ausgestattet.
Das Objekt ist an das Glasfasernetz angeschlossen.
Sonstige Informationen
Heizungsart: Fußbodenheizung
Energieträger: Gas
Makleranfragen nicht erwünscht. Nach § 7 UWG sind unaufgeforderte Kontaktaufnahmen durch Makler ohne ausdrückliche Einwilligung des Empfängers verboten!
ohne-makler (OM) ist weder Anbieter noch Vermittler der Immobilie. OM betreibt eine Plattform für Immobilieneigentümer, die unter anderem die gleichzeitige Veröffentlichung einzelner Inserate auf mehreren Immobilienportalen ermöglicht. Die Inhalte dieser Inserate werden ausschließlich von Dritten verantwortet. Für die Richtigkeit, Vollständigkeit oder Rechtmäßigkeit der Angaben übernimmt OM keine Haftung. Hinweise auf mögliche Rechtsverstöße können jederzeit gemeldet werden und werden nach Prüfung umgehend bearbeitet.
Energieträger: Gas
Makleranfragen nicht erwünscht. Nach § 7 UWG sind unaufgeforderte Kontaktaufnahmen durch Makler ohne ausdrückliche Einwilligung des Empfängers verboten!
ohne-makler (OM) ist weder Anbieter noch Vermittler der Immobilie. OM betreibt eine Plattform für Immobilieneigentümer, die unter anderem die gleichzeitige Veröffentlichung einzelner Inserate auf mehreren Immobilienportalen ermöglicht. Die Inhalte dieser Inserate werden ausschließlich von Dritten verantwortet. Für die Richtigkeit, Vollständigkeit oder Rechtmäßigkeit der Angaben übernimmt OM keine Haftung. Hinweise auf mögliche Rechtsverstöße können jederzeit gemeldet werden und werden nach Prüfung umgehend bearbeitet.
Lage des Objektes
Die Gemeinde Lautertal liegt inmitten des Unesco- Geoparks Bergstraße- Odenwald und hat rund 7.100 Einwohner.
Reichenbach liegt an der sagenumwobenen Nibelungenstraße in einem lieblichen Tal des Naturparks Bergstraße/Odenwald. Reichenbach ist der zentrale Ort der Großgemeinde Lautertal mit dem Sitz der Verwaltung im alten und neuen Rathaus.
Der Ort hat ca. 2.700 Einwohner und eine herausragende Infrastruktur. Kindergärten, die Grundschulen in Reichenbach und Elmshausen sowie weiterführende Schulen in Gadernheim und Bensheim machen diese Region auch für Familien attraktiv. Vereine, Freizeit und Sportmöglichkeiten bietet einen hohen Freizeit- und Unterhaltungswert.
Die unmittelbare Naturnähe ermöglicht großen Erholungswert. Dieses sonnige und vielseitig nutzbare Ensemble liegt in zentraler Lage von Reichenbach mit einer sehr guten
Verkehrsanbindung. Der Ortsteil Reichenbach gehört offiziell zur Gemeinde Lautertal und wird doch eher als „Ortsteil“ von Bensheim angesehen. Alle Einrichtungen des täglichen Bedarfs, wie Bäckereien, Metzgereien und Supermärkte sind
in wenigen Minuten, mit dem Bus oder Pkw in Reichenbach oder Bensheim zu erreichen. Reichenbach ist an das Busnetz der Stadt Bensheim bzw. VRN angeschlossen. Die nächste Bushaltestelle befindet sich in sehr guter Erreichbarkeit. Die Grundschule sowie der nächste Kindergarten sind in wenigen Gehminuten zu erreichen. Durch das gut ausgebaute Straßennetz ist Bensheim mit dem PKW in circa 10 Minuten zu erreichen. Von hier aus hat man eine sehr gute und direkte Autobahnanbindung in die Städte Frankfurt, Heidelberg und Mannheim. Diese sind in ca. 20 bis 30 Minuten mit dem Pkw
erreichbar.
Infrastruktur (im Umkreis von 5 km):
Apotheke, Lebensmittel-Discount, Allgemeinmediziner, Kindergarten, Grundschule, Hauptschule, Öffentliche Verkehrsmittel
Reichenbach liegt an der sagenumwobenen Nibelungenstraße in einem lieblichen Tal des Naturparks Bergstraße/Odenwald. Reichenbach ist der zentrale Ort der Großgemeinde Lautertal mit dem Sitz der Verwaltung im alten und neuen Rathaus.
Der Ort hat ca. 2.700 Einwohner und eine herausragende Infrastruktur. Kindergärten, die Grundschulen in Reichenbach und Elmshausen sowie weiterführende Schulen in Gadernheim und Bensheim machen diese Region auch für Familien attraktiv. Vereine, Freizeit und Sportmöglichkeiten bietet einen hohen Freizeit- und Unterhaltungswert.
Die unmittelbare Naturnähe ermöglicht großen Erholungswert. Dieses sonnige und vielseitig nutzbare Ensemble liegt in zentraler Lage von Reichenbach mit einer sehr guten
Verkehrsanbindung. Der Ortsteil Reichenbach gehört offiziell zur Gemeinde Lautertal und wird doch eher als „Ortsteil“ von Bensheim angesehen. Alle Einrichtungen des täglichen Bedarfs, wie Bäckereien, Metzgereien und Supermärkte sind
in wenigen Minuten, mit dem Bus oder Pkw in Reichenbach oder Bensheim zu erreichen. Reichenbach ist an das Busnetz der Stadt Bensheim bzw. VRN angeschlossen. Die nächste Bushaltestelle befindet sich in sehr guter Erreichbarkeit. Die Grundschule sowie der nächste Kindergarten sind in wenigen Gehminuten zu erreichen. Durch das gut ausgebaute Straßennetz ist Bensheim mit dem PKW in circa 10 Minuten zu erreichen. Von hier aus hat man eine sehr gute und direkte Autobahnanbindung in die Städte Frankfurt, Heidelberg und Mannheim. Diese sind in ca. 20 bis 30 Minuten mit dem Pkw
erreichbar.
Infrastruktur (im Umkreis von 5 km):
Apotheke, Lebensmittel-Discount, Allgemeinmediziner, Kindergarten, Grundschule, Hauptschule, Öffentliche Verkehrsmittel
