Kleine Erdgeschosswohnung in Gera-Lusan vollmöbliert verfügbar! Ideal als Zweitwohnsitz für Pendler.
300 €
Kaltmiete (netto)
420 €
Warmmiete
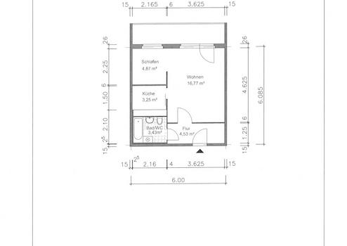
36,11 m²
Wohnfläche
36,11 m²
Nutzfläche
1
Zimmer
immobilien.de Nr.: 9382724
Objektnummer: 3027/21214/1090
Preise & Kosten
| Kaltmiete (netto) | 300 € |
| Warmmiete | 420 € |
| Nebenkosten | 50 € |
| Heizkosten | 70 € |
| Kaution | 900,00 € |
Größe & Zustand
| Wohnfläche | 36,11 m² |
| Nutzfläche | 36,11 m² |
| Zimmer | 1 |
| Baujahr | 1976 |
| Letzte Modernisierung | 2009 |
| Verfügbar ab | nach Vereinbarung |
| Zustand | Gepflegt |
Energie
| Energieausweistyp | Verbrauch |
| Energieeffizienzklasse | D |
| Energieverbrauchkennwert | 102.20 kWh/(m²*a) |
| Heizungsart | Zentralheizung |
| Energieträger/Befeuerung | Fernwärme |
Objektbeschreibung
Die Wohnung befindet sich in einem 6-geschossigen Mehrfamilienhauses mit Aufzug und Concierge. Der Aufzug hält auf jeder Etage und der Eingangsbereich ist ebenerdig, sodass ein stufenloser Zugang möglich ist. Stellplätze befinden sich ausreichend in unmittelbarer Umgebung.
Die Mindestmietzeit für die Wohnung beträgt ein Jahr. Nach diesem Jahr wandelt sich das Mietverhältnis in ein unbefristetes Mietverhältnis mit einer Kündigungsfrist von drei Monaten um.
Die verwendeten Bilder sind vor der letzten Anmietung entstanden. Der aktuelle Zustand kann daher abweichen. Das TV-Gerät wird nicht mehr mitvermietet.
Die Mindestmietzeit für die Wohnung beträgt ein Jahr. Nach diesem Jahr wandelt sich das Mietverhältnis in ein unbefristetes Mietverhältnis mit einer Kündigungsfrist von drei Monaten um.
Die verwendeten Bilder sind vor der letzten Anmietung entstanden. Der aktuelle Zustand kann daher abweichen. Das TV-Gerät wird nicht mehr mitvermietet.
Ausstattung
| Anzahl der Etagen im Haus | 6 |
| Inserat befindet sich im Stockwerk | 0 |
| Küche | Einbauküche |
| Bad | 1 |
| Bad | Dusche |
| Balkone | 1 |
| Keller |
- vollmöbliertes Apartment mit Einbauküche
- gefliestes Bad mit Dusche
- heller Wohnraum mit Schlafnische
- 6 Meter Balkon
- Conciergedienst im Haus (bittet zusätzliche Serviceleistungen, wie z.B. Paketannahme, Briefmarken- und Tickertverkauf für den ÖPNV)
- ebenerdiger Zugang
- ausreichend Stellplätze in unmittelbarer Nähe verfügbar
- gefliestes Bad mit Dusche
- heller Wohnraum mit Schlafnische
- 6 Meter Balkon
- Conciergedienst im Haus (bittet zusätzliche Serviceleistungen, wie z.B. Paketannahme, Briefmarken- und Tickertverkauf für den ÖPNV)
- ebenerdiger Zugang
- ausreichend Stellplätze in unmittelbarer Nähe verfügbar
Sonstige Informationen
Finden Sie Ihr neues Zuhause unter www.tag-wohnen.de und vereinbaren Sie Ihren persönlichen Besichtigungstermin. Wir freuen uns auf Ihre Anfrage.
Profitieren Sie als TAG Wohnen-Mieter von unseren Partnerangeboten und sichern Sie sich viele Sonderrabatte und günstige Konditionen u.a. in den Bereichen Unterhaltung, Umzug, Ernährung und Mobilität.
Strom und Gas von lekker Energie – Sichern Sie sich Ihren exklusiven TAG Wohnen-Bonus unter www.lekker.de/kunden/tag-wohnen
Alle Angaben in diesem Exposé wurden sorgfältig getätigt. Fehlerhafte Angaben können nicht ausgeschlossen werden, daher sind die Angaben ohne Gewähr. Maßgeblich sind die im Mietvertrag geschlossenen Vereinbarungen.
Profitieren Sie als TAG Wohnen-Mieter von unseren Partnerangeboten und sichern Sie sich viele Sonderrabatte und günstige Konditionen u.a. in den Bereichen Unterhaltung, Umzug, Ernährung und Mobilität.
Strom und Gas von lekker Energie – Sichern Sie sich Ihren exklusiven TAG Wohnen-Bonus unter www.lekker.de/kunden/tag-wohnen
Alle Angaben in diesem Exposé wurden sorgfältig getätigt. Fehlerhafte Angaben können nicht ausgeschlossen werden, daher sind die Angaben ohne Gewähr. Maßgeblich sind die im Mietvertrag geschlossenen Vereinbarungen.
Lage des Objektes
Lusan - ideal für Jung und Alt
- 5 Minuten zu Fuß zum Bäcker
- 9 Minuten zu Fuß bis zum Lusaner Einkaufspark
- gute Verkehrsanbindung an Straßenbahn ( 7 Minuten zu Fuß ), Busse und Bundesstraße B92
- Einkaufsmöglichkeiten für Lebensmittel und Dinge des täglichen Bedarfs
- Kindereinrichtungen & Spielplätze
- Schulen nahezu aller Schularten
- Sport- und Freizeitangebote
- verschiedene Fachärzte & Apotheken
- ambulante Pflegedienste vorhanden
- reichlich Spazierwege im grünen Brütetal
- 5 Minuten zu Fuß zum Bäcker
- 9 Minuten zu Fuß bis zum Lusaner Einkaufspark
- gute Verkehrsanbindung an Straßenbahn ( 7 Minuten zu Fuß ), Busse und Bundesstraße B92
- Einkaufsmöglichkeiten für Lebensmittel und Dinge des täglichen Bedarfs
- Kindereinrichtungen & Spielplätze
- Schulen nahezu aller Schularten
- Sport- und Freizeitangebote
- verschiedene Fachärzte & Apotheken
- ambulante Pflegedienste vorhanden
- reichlich Spazierwege im grünen Brütetal
