Killesberg, großzügiges Einfamilienhaus mit Terrasse und Garten
3.000 €
Kaltmiete (netto)
230 m²
Wohnfläche
7
Zimmer
immobilien.de Nr.: 9376223
Objektnummer: 414113
Preise & Kosten
| Kaltmiete (netto) | 3.000 € |
| Nebenkosten | 350 € |
| Kaution | 9.000 € |
Größe & Zustand
| Wohnfläche | 230 m² |
| Grundstücksfläche | 470 m² |
| Zimmer | 7 |
| Baujahr | 1986 |
| Verfügbar ab | nach Absprache |
| Zustand | Gepflegt |
Energie
| Energieausweistyp | Verbrauch |
| Energieverbrauchkennwert | 111 kWh/(m²*a) |
| Heizungsart | Zentralheizung |
| Energieträger/Befeuerung | Gas |
Objektbeschreibung
Das Objekt wurde 1954 erstellt und 1984 umfangreich und aufwendig renoviert.
Ausstattung
| Anzahl der Etagen im Haus | 3 |
| Küche | Einbauküche |
| Bad | 2 |
| Boden | Fliesen, Parkett, Laminat, Kunststoff |
| Balkone | 0 |
| Garten | |
| Terrassen | 1 |
| Garage/Stellplätze | 1 |
| Keller |
Terrasse, Garten, Keller, Einbauküche, Gäste-WC, Parkett, Laminat, Fliesen
Bemerkungen:
Im Erdgeschoss befindet sich ein großes einladendes Entrée mit Gäste-WC, Garderobe, Speisekammer sowie ein weitläufiges Wohnzimmer mit offener Küche und der Zugang zur überdachten Terrasse mit Garten in Südausrichtung.
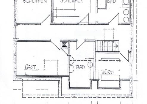
Im Obergeschoss befinden sich 4 Zimmer (seither als Schlafzimmer und Büro genutzt) und 2 Badezimmer, die jeweils mit Dusche, Badewanne, WC, Bidet und Doppelhandwaschbecken ausgestattet sind.
Bemerkungen:
Im Erdgeschoss befindet sich ein großes einladendes Entrée mit Gäste-WC, Garderobe, Speisekammer sowie ein weitläufiges Wohnzimmer mit offener Küche und der Zugang zur überdachten Terrasse mit Garten in Südausrichtung.
Im Obergeschoss befinden sich 4 Zimmer (seither als Schlafzimmer und Büro genutzt) und 2 Badezimmer, die jeweils mit Dusche, Badewanne, WC, Bidet und Doppelhandwaschbecken ausgestattet sind.
Sonstige Informationen
Heizungsart: Zentralheizung
Energieträger: Gas
Makleranfragen nicht erwünscht. Nach § 7 UWG sind unaufgeforderte Kontaktaufnahmen durch Makler ohne ausdrückliche Einwilligung des Empfängers verboten!
ohne-makler (OM) ist weder Anbieter noch Vermittler der Immobilie. OM betreibt eine Plattform für Immobilieneigentümer, die unter anderem die gleichzeitige Veröffentlichung einzelner Inserate auf mehreren Immobilienportalen ermöglicht. Die Inhalte dieser Inserate werden ausschließlich von Dritten verantwortet. Für die Richtigkeit, Vollständigkeit oder Rechtmäßigkeit der Angaben übernimmt OM keine Haftung. Hinweise auf mögliche Rechtsverstöße können jederzeit gemeldet werden und werden nach Prüfung umgehend bearbeitet.
Energieträger: Gas
Makleranfragen nicht erwünscht. Nach § 7 UWG sind unaufgeforderte Kontaktaufnahmen durch Makler ohne ausdrückliche Einwilligung des Empfängers verboten!
ohne-makler (OM) ist weder Anbieter noch Vermittler der Immobilie. OM betreibt eine Plattform für Immobilieneigentümer, die unter anderem die gleichzeitige Veröffentlichung einzelner Inserate auf mehreren Immobilienportalen ermöglicht. Die Inhalte dieser Inserate werden ausschließlich von Dritten verantwortet. Für die Richtigkeit, Vollständigkeit oder Rechtmäßigkeit der Angaben übernimmt OM keine Haftung. Hinweise auf mögliche Rechtsverstöße können jederzeit gemeldet werden und werden nach Prüfung umgehend bearbeitet.
Lage des Objektes
Das Objekt befindet sich in einer der beliebtesten Wohnlagen Stuttgarts am Killesberg. Das Haus liegt ruhig in einer Seitenstraße. Fußläufig sind der Killesbergpark sowie das Killesberg-Freibad zu erreichen. Ebenso sind in unmittelbarer Umgebung Supermärkte, Bäckereien, Apotheken und Kindergärten und Schulen zu erreichen.
Infrastruktur (im Umkreis von 5 km):
Lebensmittel-Discount, Grundschule, Öffentliche Verkehrsmittel
Infrastruktur (im Umkreis von 5 km):
Lebensmittel-Discount, Grundschule, Öffentliche Verkehrsmittel
