Weitblick in Stuttgart-Kaltental - gepflegte 3 Zimmer Wohnung - Provisionsfrei
189.000 €
Kaufpreis
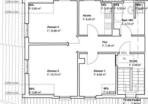
54,7 m²
Wohnfläche
3
Zimmer
immobilien.de Nr.: 9373738
Objektnummer: 389988
Preise & Kosten
| Kaufpreis | 189.000 € |
| Nebenkosten | keine Angabe |
| Hausgeld | 130 € |
| Maklerprovision | keine Provision, courtagefrei |
Größe & Zustand
| Wohnfläche | 54,7 m² |
| Zimmer | 3 |
| Baujahr | 1934 |
| Verfügbar ab | nach Absprache |
| Zustand | Gepflegt |
Energie
| Energieausweistyp | Bedarfsausweis |
| Energieeffizienzklasse | H |
| Endenergiebedarf | 308 |
| Heizungsart | Etagenheizung |
| Energieträger/Befeuerung | Gas |
Objektbeschreibung
Die sehr gepflegte 3-Zimmer-Wohnung präsentiert sich in einem einladenden Zustand und ist sowohl für den sofortigen Eigenbezug als auch zur Vermietung bestens geeignet. Helle, lichtdurchflutete Räume schaffen eine freundliche Wohnatmosphäre. Die Wohnung verfügt über eine moderne Einbauküche, ein Tageslichtbad mit Badewanne sowie eine effiziente Gas-Etagenheizung. Ein Kellerraum bietet zusätzlichen Stauraum. Insgesamt überzeugt die Wohnung durch ihre gute Ausstattung und ihre sofortige Bezugsbereitschaft.
Ausstattung
| Anzahl der Etagen im Haus | 3 |
| Inserat befindet sich im Stockwerk | 2 |
| Küche | Einbauküche |
| Bad | 1 |
| Bad | Wanne |
| Boden | Fliesen, Laminat |
| Keller |
Keller, Vollbad, Einbauküche, Laminat, Fliesen
Bemerkungen:
• Sehr gepflegter Zustand - bereit zum Einzug oder zur Vermietung
• 3 Zimmer, Küche, Bad, Kellerraum
• Gas-Etagenheizung
• Lichtdurchflutete helle Räume
• Einbauküche
• Bad mit Badewanne und Tageslicht
• Gute Ausstattung
Provisionsfrei
Bemerkungen:
• Sehr gepflegter Zustand - bereit zum Einzug oder zur Vermietung
• 3 Zimmer, Küche, Bad, Kellerraum
• Gas-Etagenheizung
• Lichtdurchflutete helle Räume
• Einbauküche
• Bad mit Badewanne und Tageslicht
• Gute Ausstattung
Provisionsfrei
Sonstige Informationen
Heizungsart: Etagenheizung
Energieträger: Gas
Makleranfragen nicht erwünscht. Nach § 7 UWG sind unaufgeforderte Kontaktaufnahmen durch Makler ohne ausdrückliche Einwilligung des Empfängers verboten!
ohne-makler (OM) ist weder Anbieter noch Vermittler der Immobilie. OM betreibt eine Plattform für Immobilieneigentümer, die unter anderem die gleichzeitige Veröffentlichung einzelner Inserate auf mehreren Immobilienportalen ermöglicht. Die Inhalte dieser Inserate werden ausschließlich von Dritten verantwortet. Für die Richtigkeit, Vollständigkeit oder Rechtmäßigkeit der Angaben übernimmt OM keine Haftung. Hinweise auf mögliche Rechtsverstöße können jederzeit gemeldet werden und werden nach Prüfung umgehend bearbeitet.
Energieträger: Gas
Makleranfragen nicht erwünscht. Nach § 7 UWG sind unaufgeforderte Kontaktaufnahmen durch Makler ohne ausdrückliche Einwilligung des Empfängers verboten!
ohne-makler (OM) ist weder Anbieter noch Vermittler der Immobilie. OM betreibt eine Plattform für Immobilieneigentümer, die unter anderem die gleichzeitige Veröffentlichung einzelner Inserate auf mehreren Immobilienportalen ermöglicht. Die Inhalte dieser Inserate werden ausschließlich von Dritten verantwortet. Für die Richtigkeit, Vollständigkeit oder Rechtmäßigkeit der Angaben übernimmt OM keine Haftung. Hinweise auf mögliche Rechtsverstöße können jederzeit gemeldet werden und werden nach Prüfung umgehend bearbeitet.
Lage des Objektes
Die Immobilie liegt in ruhiger und familienfreundlicher Lage im beliebten Stuttgarter Stadtteil Kaltental (Bezirk Süd). Es handelt sich um eine Anliegerstraße mit wenig Verkehr, umgeben von gepflegten Wohnhäusern und Grünflächen. Einkaufsmöglichkeiten
für den täglichen Bedarf, Kindergärten, Schulen sowie Ärzte und Apotheken befinden sich in unmittelbarer Nähe und sind bequem zu Fuß oder dem Auto erreichbar.
Die Anbindung ist hervorragend: Die Stadtbahn ist nur wenige Gehminuten entfernt und bringt Sie in ca. zehn Minuten direkt in die Stuttgarter Innenstadt. Auch mit dem Auto sind Sie über die nahegelegene Autobahnauffahrt schnell und flexibel unterwegs.
Die Umgebung bietet zudem zahlreiche Erholungs- und Freizeitmöglichkeiten wie den Dornhalde-Haldenwald, verschiedene Spielplätze als auch eine gute Verbindung zur nahe gelegenen Universität in Pfaffenwald. Auf diese Weise vereint die Wohnung ein urbanes Leben mit naturnahem Wohnen. Sie ist ideal für alle, die eine ruhige
Wohnumgebung schätzen, gleichzeitig aber nicht auf eine sehr gute Infrastruktur und schnelle Erreichbarkeit verzichten möchten. Ob Familien, Paare oder Berufspendler – die Wohnung bietet den perfekten Ausgangspunkt für ein komfortables und ausgewogenes
Leben in Stuttgart.
Infrastruktur (im Umkreis von 5 km):
Apotheke, Lebensmittel-Discount, Allgemeinmediziner, Kindergarten, Grundschule, Hauptschule, Realschule, Gymnasium, Gesamtschule, Öffentliche Verkehrsmittel
für den täglichen Bedarf, Kindergärten, Schulen sowie Ärzte und Apotheken befinden sich in unmittelbarer Nähe und sind bequem zu Fuß oder dem Auto erreichbar.
Die Anbindung ist hervorragend: Die Stadtbahn ist nur wenige Gehminuten entfernt und bringt Sie in ca. zehn Minuten direkt in die Stuttgarter Innenstadt. Auch mit dem Auto sind Sie über die nahegelegene Autobahnauffahrt schnell und flexibel unterwegs.
Die Umgebung bietet zudem zahlreiche Erholungs- und Freizeitmöglichkeiten wie den Dornhalde-Haldenwald, verschiedene Spielplätze als auch eine gute Verbindung zur nahe gelegenen Universität in Pfaffenwald. Auf diese Weise vereint die Wohnung ein urbanes Leben mit naturnahem Wohnen. Sie ist ideal für alle, die eine ruhige
Wohnumgebung schätzen, gleichzeitig aber nicht auf eine sehr gute Infrastruktur und schnelle Erreichbarkeit verzichten möchten. Ob Familien, Paare oder Berufspendler – die Wohnung bietet den perfekten Ausgangspunkt für ein komfortables und ausgewogenes
Leben in Stuttgart.
Infrastruktur (im Umkreis von 5 km):
Apotheke, Lebensmittel-Discount, Allgemeinmediziner, Kindergarten, Grundschule, Hauptschule, Realschule, Gymnasium, Gesamtschule, Öffentliche Verkehrsmittel
