PENTHOUSE Wohnung mit 3 Zimmern im Zentrum von Buchholz
1.295 €
Kaltmiete (netto)
112,5 m²
Wohnfläche
3
Zimmer
immobilien.de Nr.: 9373692
Objektnummer: 413558
Preise & Kosten
| Kaltmiete (netto) | 1.295 € |
| Nebenkosten | 285 € |
| Heizkosten enthalten | Ja |
| Kaution | 3.885 € |
Größe & Zustand
| Wohnfläche | 112,5 m² |
| Zimmer | 3 |
| Baujahr | 2003 |
| Verfügbar ab | nach Absprache |
| Zustand | Teil Vollrenoviert |
Energie
| Energieausweistyp | Verbrauch |
| Energieeffizienzklasse | C |
| Energieverbrauchkennwert | 99 kWh/(m²*a) |
| Heizungsart | Zentralheizung |
| Energieträger/Befeuerung | Gas |
Objektbeschreibung
helle Penthouse Wohnung im Zentrum von Buchholz zu mieten:
Die Wohnung gliedert sich in ein Staffel- und ein Dachgeschoss auf.
ca. 100 qm im Innenbereich
ca. 50 qm im Außenbereich ( zu 25% = 12,50 qm )
entspricht : 112,50 qm Gesamtmietfläche
Spätere Sonnenuntergänge garantiert!
Die Wohnung wird im nicht-renovierungsbedürftigen Zustand übergeben.
- ggfs. neuer Anstrich : Wand und Decken
- Laminat Excellent : Landhausdiele 1-Stab
- Hamburger Fußleisten
- Treppe in weiß
Im Dachgeschoss ist aktuell ebenfalls Laminat verlegt, dieser wurde fachgerecht durch den Mieter eingebaut. Die Wohnung wird ohne Boden im Dachgeschoss übergeben, siehe Bilder. Ggfs. kann der Bodenbelag im Dachgeschoss auf Wunsch übernommen werden.
HINWEIS:
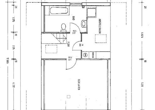
Es existiert kein Keller, die "Waschküche" ist im Dachgeschoss - siehe Grundriss: oben
Die Wohnung gliedert sich in ein Staffel- und ein Dachgeschoss auf.
ca. 100 qm im Innenbereich
ca. 50 qm im Außenbereich ( zu 25% = 12,50 qm )
entspricht : 112,50 qm Gesamtmietfläche
Spätere Sonnenuntergänge garantiert!
Die Wohnung wird im nicht-renovierungsbedürftigen Zustand übergeben.
- ggfs. neuer Anstrich : Wand und Decken
- Laminat Excellent : Landhausdiele 1-Stab
- Hamburger Fußleisten
- Treppe in weiß
Im Dachgeschoss ist aktuell ebenfalls Laminat verlegt, dieser wurde fachgerecht durch den Mieter eingebaut. Die Wohnung wird ohne Boden im Dachgeschoss übergeben, siehe Bilder. Ggfs. kann der Bodenbelag im Dachgeschoss auf Wunsch übernommen werden.
HINWEIS:
Es existiert kein Keller, die "Waschküche" ist im Dachgeschoss - siehe Grundriss: oben
Ausstattung
| Anzahl der Etagen im Haus | 2 |
| Inserat befindet sich im Stockwerk | 1 |
| Küche | Einbauküche |
| Bad | 2 |
| Bad | Dusche, Wanne |
| Boden | Fliesen, Laminat |
| Balkone | 2 |
| Terrassen | 1 |
Balkon, Terrasse, Dachterrasse, Vollbad, Duschbad, Einbauküche, Gäste-WC, Laminat, Fliesen
Bemerkungen:
- zwei Bäder
- eine Badewanne und zwei Duschen,
- Fliesen in den Naßräumen und in der Küche
- Landhausdiele - 1-Stab - Laminat in den Wohn- und Schlafräumen (im SG)
- wunderschöne Stiltüren
- Fußbodenerwärmung im Bad (SG) und 2 x Handtuchheizkörper (SG+DG)
- 50qm Terrasse mit Dachüberstand und Außenbeleuchtung
- Küche : Backofen, Ceranfeld, Dunstabzug (nach außen)
- Ausgang zur Dachterrasse auch über die Küche
Bemerkungen:
- zwei Bäder
- eine Badewanne und zwei Duschen,
- Fliesen in den Naßräumen und in der Küche
- Landhausdiele - 1-Stab - Laminat in den Wohn- und Schlafräumen (im SG)
- wunderschöne Stiltüren
- Fußbodenerwärmung im Bad (SG) und 2 x Handtuchheizkörper (SG+DG)
- 50qm Terrasse mit Dachüberstand und Außenbeleuchtung
- Küche : Backofen, Ceranfeld, Dunstabzug (nach außen)
- Ausgang zur Dachterrasse auch über die Küche
Sonstige Informationen
Heizungsart: Zentralheizung
Energieträger: Gas
zusätzlich können angemietet werden:
--
1 x KFZ Stellplatz außerhalb des Carports
EUR 30
--
1 x KFZ Stellplatz im Carport
EUR 60
--
--
Privatangebot.
Es fällt kein Courtage an.
Irrtum vorbehalten.
--
--
Makleranfragen nicht erwünscht. Nach § 7 UWG sind unaufgeforderte Kontaktaufnahmen durch Makler ohne ausdrückliche Einwilligung des Empfängers verboten!
ohne-makler (OM) ist weder Anbieter noch Vermittler der Immobilie. OM betreibt eine Plattform für Immobilieneigentümer, die unter anderem die gleichzeitige Veröffentlichung einzelner Inserate auf mehreren Immobilienportalen ermöglicht. Die Inhalte dieser Inserate werden ausschließlich von Dritten verantwortet. Für die Richtigkeit, Vollständigkeit oder Rechtmäßigkeit der Angaben übernimmt OM keine Haftung. Hinweise auf mögliche Rechtsverstöße können jederzeit gemeldet werden und werden nach Prüfung umgehend bearbeitet.
Energieträger: Gas
zusätzlich können angemietet werden:
--
1 x KFZ Stellplatz außerhalb des Carports
EUR 30
--
1 x KFZ Stellplatz im Carport
EUR 60
--
--
Privatangebot.
Es fällt kein Courtage an.
Irrtum vorbehalten.
--
--
Makleranfragen nicht erwünscht. Nach § 7 UWG sind unaufgeforderte Kontaktaufnahmen durch Makler ohne ausdrückliche Einwilligung des Empfängers verboten!
ohne-makler (OM) ist weder Anbieter noch Vermittler der Immobilie. OM betreibt eine Plattform für Immobilieneigentümer, die unter anderem die gleichzeitige Veröffentlichung einzelner Inserate auf mehreren Immobilienportalen ermöglicht. Die Inhalte dieser Inserate werden ausschließlich von Dritten verantwortet. Für die Richtigkeit, Vollständigkeit oder Rechtmäßigkeit der Angaben übernimmt OM keine Haftung. Hinweise auf mögliche Rechtsverstöße können jederzeit gemeldet werden und werden nach Prüfung umgehend bearbeitet.
Lage des Objektes
zentrale Lage in der Stadt Buchholz:
- weniger als 1 km zum Zentrum Buchholz
- Busanbindung vor der Tür
- weniger als 1 km zum Bahnhof Richtung: Hamburg, Bremen und Soltau
- Fitness-Center fußläufig
Infrastruktur (im Umkreis von 5 km):
Apotheke, Lebensmittel-Discount, Allgemeinmediziner, Kindergarten, Grundschule, Hauptschule, Realschule, Gymnasium, Gesamtschule, Öffentliche Verkehrsmittel
- weniger als 1 km zum Zentrum Buchholz
- Busanbindung vor der Tür
- weniger als 1 km zum Bahnhof Richtung: Hamburg, Bremen und Soltau
- Fitness-Center fußläufig
Infrastruktur (im Umkreis von 5 km):
Apotheke, Lebensmittel-Discount, Allgemeinmediziner, Kindergarten, Grundschule, Hauptschule, Realschule, Gymnasium, Gesamtschule, Öffentliche Verkehrsmittel
