Winteraktionen bei STREIF Haus - Wohnglück im eigenen Zuhause!
522.500 €
Kaufpreis
117 m²
Wohnfläche
117 m²
Nutzfläche
4
Zimmer
immobilien.de Nr.: 9373563
Objektnummer: JW- 2025-027_FA_Freital-1
Preise & Kosten
| Kaufpreis | 522.500 € |
| Nebenkosten | keine Angabe |
Größe & Zustand
| Wohnfläche | 117 m² |
| Nutzfläche | 117 m² |
| Grundstücksfläche | 585 m² |
| Zimmer | 4 |
| Baujahr | 2027 |
| Verfügbar ab | 2027 |
| Zustand | Projektiert |
Energie
| Energietyp | KfW-40 |
| Energieträger/Befeuerung | Luft-Wärme-Pumpe |
Objektbeschreibung
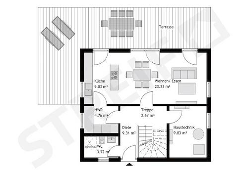
95 Jahre STREIF-Jubiläumshaus FAMILY in der Größe L
Das behagliche Family-Haus mit Satteldach aus der Jubiläumsaktion punktet mit einem gut
durchdachten Grundriss. Der offen gestaltete Wohn-/Ess- und Kochbereich ist
lichtdurchflutet. Ein praktischer Hauswirtschaftsraum ist direkt neben der Küche platziert.
Komplettiert wird das Raumangebot im Erdgeschoss mit einem Gäste-WC, das optional
auch als Duschbad ausgeführt werden kann, einer Diele und einem Haustechnikraum.
Im Dachgeschoss des Hauses sind zwei schöne Kinderzimmer, ein Elternschlafzimmer, ein
Flur und ein Familienbad untergebracht. Die Netto-Raumfläche beträgt 117,65 m².
Objektart: Einfamilienhaus, 1,5-geschossig
Dachform: Satteldach
Kniestock: 0,75 m
Hausmaße: 9,33 x 8,08 m
Netto-Raumfläche: 117,65 m²
95-Jahre STREIF-Jubiläumshaus Family in Größe L
Das behagliche Family-Haus mit Satteldach aus der Jubiläumsaktion punktet mit einem gut
durchdachten Grundriss. Der offen gestaltete Wohn-/Ess- und Kochbereich ist
lichtdurchflutet. Ein praktischer Hauswirtschaftsraum ist direkt neben der Küche platziert.
Komplettiert wird das Raumangebot im Erdgeschoss mit einem Gäste-WC, das optional
auch als Duschbad ausgeführt werden kann, einer Diele und einem Haustechnikraum.
Im Dachgeschoss des Hauses sind zwei schöne Kinderzimmer, ein Elternschlafzimmer, ein
Flur und ein Familienbad untergebracht. Die Netto-Raumfläche beträgt 117,65 m².
Objektart: Einfamilienhaus, 1,5-geschossig
Dachform: Satteldach
Kniestock: 0,75 m
Hausmaße: 9,33 x 8,08 m
Netto-Raumfläche: 117,65 m²
95-Jahre STREIF-Jubiläumshaus Family in Größe L
Ausstattung
| Anzahl der Etagen im Haus | 2 |
| Küche | Offene Küche |
| Bad | 1 |
| Bad | Dusche, Wanne, Fenster |
Das Streif City Haus wird im Standard KFW 40 PLUS ausgeführt. KfW Effizienshaus inkl. Haustechnik aus dem STREIF-Programm in der Ausbaustufe FF+ inklusive einer gedämmten Fundamentplatte.
■ Rohbau (geschlossene Gebäudehülle) mit Fenstern, Haustür, Dacheindeckung
■ Außenfassade inkl. Außenputz, vor Ort komplett fertiggestellt
■ Komplette Blechner-/Spenglerarbeiten
■ lnnen-/Außenwände wärme- und schallgedämmt und mit Gipsfaserplatten geschlossen
■ Geschosstreppe (außer Bungalow)
■ Decken wärme- und schallgedämmt und mit Gipskarton Bauplatten geschlossen
■ Elektroinstallation, einschließlich erforderlichem Zählerschrank und Inbetriebnahme
■ Heizungsanlage inkl. Inbetriebnahme
■ Innenfensterbänke Kunststeinbänke (Gussmarmorbänke) inkl. Einbau
■ Estrich
■ Sanitärräume mit Wand- und Bodenfliesen
■ Sanitärräume mit Sanitärobjekten
■ 6,23 kWp Photovoltaikanlage und 7,7 kWh Speicher
Die Innentüren sowie Wand-, Decken- und Bodenbeläge der übrigen Räume sind Eigenleistungen des Bauherren.
STREIF Frischluft-Wärmepumpen-Technologie - inklusive
- Heizen mit frischer Außenluft
- Kein Gasanschluss, kein Öl- oder Pelletlagerraum
- Keine Heizkörper
- Wärmetauscher mit bis zu 85% Wärmerückgewinnung
Die dargestellten Bilder können Sonderausstattungen beinhalten, die nicht im Preis enthalten sind!
zzgl. Ortüblicher Baunebenkosten
Selbstverständlich können wir Ihr Haus auch schlüsselfertig / bezugsfertig errichten.
■ Bodenbeläge, Sockelleisten verlegt
■ Maler- und Tapezierarbeiten
■ Innentüren inkl. Einbau
■ Rohbau (geschlossene Gebäudehülle) mit Fenstern, Haustür, Dacheindeckung
■ Außenfassade inkl. Außenputz, vor Ort komplett fertiggestellt
■ Komplette Blechner-/Spenglerarbeiten
■ lnnen-/Außenwände wärme- und schallgedämmt und mit Gipsfaserplatten geschlossen
■ Geschosstreppe (außer Bungalow)
■ Decken wärme- und schallgedämmt und mit Gipskarton Bauplatten geschlossen
■ Elektroinstallation, einschließlich erforderlichem Zählerschrank und Inbetriebnahme
■ Heizungsanlage inkl. Inbetriebnahme
■ Innenfensterbänke Kunststeinbänke (Gussmarmorbänke) inkl. Einbau
■ Estrich
■ Sanitärräume mit Wand- und Bodenfliesen
■ Sanitärräume mit Sanitärobjekten
■ 6,23 kWp Photovoltaikanlage und 7,7 kWh Speicher
Die Innentüren sowie Wand-, Decken- und Bodenbeläge der übrigen Räume sind Eigenleistungen des Bauherren.
STREIF Frischluft-Wärmepumpen-Technologie - inklusive
- Heizen mit frischer Außenluft
- Kein Gasanschluss, kein Öl- oder Pelletlagerraum
- Keine Heizkörper
- Wärmetauscher mit bis zu 85% Wärmerückgewinnung
Die dargestellten Bilder können Sonderausstattungen beinhalten, die nicht im Preis enthalten sind!
zzgl. Ortüblicher Baunebenkosten
Selbstverständlich können wir Ihr Haus auch schlüsselfertig / bezugsfertig errichten.
■ Bodenbeläge, Sockelleisten verlegt
■ Maler- und Tapezierarbeiten
■ Innentüren inkl. Einbau
Sonstige Informationen
Sie brauchen einen kompetenten und verlässlichen Baupartner? Wir stehen Ihnen von Anfang an zur Seite und begleiten Sie auf dem Weg in Ihr Eigenheim.
Mit großem Engagement, Persönlichkeit und der Fachfirma STREIF mit immensen Bau-Know-how, die seit 1929 auf über 90.000 realisierte Wohnträume zurückblicken kann.
Jedes Haus von STREIF wird individuell als Energiesparhaus geplant und gebaut. Eine nachhaltige, ökologische und wohngesunde Bauweise, eine zertifizierte Ausführungsqualität und eine kurze Bauzeit, dafür stehen wir.
Gerne beraten wir Sie nach Vereinbarung im Musterhaus Dresden Schönefeld oder ganz unkompliziert bei Ihnen zu Hause und erstellen Ihnen ein Angebot mit einer realistisch ermittelten Aufstellung der Gesamt-Investition.
Wir freuen uns auf Ihren Anruf / Nachricht!
Ihr STREIF Fachberater
Frank Strobel
E-Mail: frank.strobel@streif.de
Mobil: 0172 - 9374300
Hinweis:
Vorverkauf und Irrtümer vorbehalten. Bilder können Sonderbauteile darstellen, die im Preis nicht enthalten sind und abweichend von textlichen Inhalten sein.
zzgl. Baunebenkosten.
Der Grundstückserwerb stellt keine STREIF Leistung dar.
Hinweis zu den gesetzlichen Pflichtangaben gemäß der EnEV 2016: Bei dem hier angebotenen Haus handelt es sich um ein Neubauprojekt.
Wir weisen darauf hin, dass zu diesem projektierten Haus noch kein Energieausweis vorliegt. Der Energieausweis wird Ihnen spätestens im Rahmen der Erstellung des Objektes ausgehändigt
Mit großem Engagement, Persönlichkeit und der Fachfirma STREIF mit immensen Bau-Know-how, die seit 1929 auf über 90.000 realisierte Wohnträume zurückblicken kann.
Jedes Haus von STREIF wird individuell als Energiesparhaus geplant und gebaut. Eine nachhaltige, ökologische und wohngesunde Bauweise, eine zertifizierte Ausführungsqualität und eine kurze Bauzeit, dafür stehen wir.
Gerne beraten wir Sie nach Vereinbarung im Musterhaus Dresden Schönefeld oder ganz unkompliziert bei Ihnen zu Hause und erstellen Ihnen ein Angebot mit einer realistisch ermittelten Aufstellung der Gesamt-Investition.
Wir freuen uns auf Ihren Anruf / Nachricht!
Ihr STREIF Fachberater
Frank Strobel
E-Mail: frank.strobel@streif.de
Mobil: 0172 - 9374300
Hinweis:
Vorverkauf und Irrtümer vorbehalten. Bilder können Sonderbauteile darstellen, die im Preis nicht enthalten sind und abweichend von textlichen Inhalten sein.
zzgl. Baunebenkosten.
Der Grundstückserwerb stellt keine STREIF Leistung dar.
Hinweis zu den gesetzlichen Pflichtangaben gemäß der EnEV 2016: Bei dem hier angebotenen Haus handelt es sich um ein Neubauprojekt.
Wir weisen darauf hin, dass zu diesem projektierten Haus noch kein Energieausweis vorliegt. Der Energieausweis wird Ihnen spätestens im Rahmen der Erstellung des Objektes ausgehändigt
Lage des Objektes
Freital ist eine Stadt im Freistaat Sachsen, die sich etwa 10 Kilometer nordwestlich von Dresden befindet. Sie liegt im Landkreis Sächsische Schweiz-Osterzgebirge und ist von einer malerischen Landschaft umgeben, die von Hügeln, Wäldern und Wiesen geprägt ist. Die Stadt hat eine reiche industrielle Geschichte, die bis ins 19. Jahrhundert zurückreicht, und ist heute ein attraktiver Wohnort für Pendler, die in Dresden arbeiten.
Die Lage von Freital bietet eine hervorragende Anbindung an die Landeshauptstadt Dresden, sowohl durch den öffentlichen Nahverkehr als auch über die Autobahn A17. Die S-Bahn-Linien und Busverbindungen ermöglichen eine schnelle Erreichbarkeit des Dresdner Stadtzentrums, was Freital besonders für Berufstätige attraktiv macht.
Freital selbst bietet eine Vielzahl von Einkaufsmöglichkeiten, Schulen, Kindergärten und Freizeitangeboten. Die Stadt hat mehrere Parks und Grünflächen, die zur Erholung einladen, sowie Sporteinrichtungen und kulturelle Angebote. Besonders hervorzuheben ist die Nähe zum Naturpark Sächsische Schweiz, der zahlreiche Möglichkeiten für Wanderungen und Outdoor-Aktivitäten bietet.
Die Architektur in Freital ist vielfältig, mit einer Mischung aus historischen Gebäuden und modernen Wohnanlagen. Die Stadt hat eine freundliche und familiäre Atmosphäre, die sie zu einem beliebten Wohnort für Familien und Menschen jeden Alters macht.
Insgesamt ist Freital eine attraktive Stadt, die eine gute Lebensqualität, eine hervorragende Anbindung an Dresden und eine schöne Umgebung bietet.
Die Lage von Freital bietet eine hervorragende Anbindung an die Landeshauptstadt Dresden, sowohl durch den öffentlichen Nahverkehr als auch über die Autobahn A17. Die S-Bahn-Linien und Busverbindungen ermöglichen eine schnelle Erreichbarkeit des Dresdner Stadtzentrums, was Freital besonders für Berufstätige attraktiv macht.
Freital selbst bietet eine Vielzahl von Einkaufsmöglichkeiten, Schulen, Kindergärten und Freizeitangeboten. Die Stadt hat mehrere Parks und Grünflächen, die zur Erholung einladen, sowie Sporteinrichtungen und kulturelle Angebote. Besonders hervorzuheben ist die Nähe zum Naturpark Sächsische Schweiz, der zahlreiche Möglichkeiten für Wanderungen und Outdoor-Aktivitäten bietet.
Die Architektur in Freital ist vielfältig, mit einer Mischung aus historischen Gebäuden und modernen Wohnanlagen. Die Stadt hat eine freundliche und familiäre Atmosphäre, die sie zu einem beliebten Wohnort für Familien und Menschen jeden Alters macht.
Insgesamt ist Freital eine attraktive Stadt, die eine gute Lebensqualität, eine hervorragende Anbindung an Dresden und eine schöne Umgebung bietet.
Anbieter kontaktieren
Kontakt
| Telefon | +49 351 8902538 |
| Mobil | +49 172 9374300 |
| Website | www.streif.de |
