Attraktives Mehrfamilienhaus mit 3 Wohneinheiten in Wasserlos
759.000 €
Kaufpreis
360 m²
Wohnfläche
11
Zimmer
immobilien.de Nr.: 9372861
Objektnummer: 410489
Preise & Kosten
| Kaufpreis | 759.000 € |
| Nebenkosten | keine Angabe |
| Maklerprovision | keine Provision, courtagefrei |
Größe & Zustand
| Wohnfläche | 360 m² |
| Grundstücksfläche | 671 m² |
| Zimmer | 11 |
| Baujahr | 1976 |
| Verfügbar ab | sofort |
| Zustand | Gepflegt |
Energie
| Heizungsart | Zentralheizung |
| Energieträger/Befeuerung | Gas |
Objektbeschreibung
Dieses gepflegte und freistehende Mehrfamilienhaus aus dem Jahr 1976 mit drei großzügigen Wohneinheiten und insgesamt ca. 360 m² Wohnfläche.
Auf einem 671 m² großen Grundstück gelegen, überzeugt das Haus durch seine ruhige Lage in einer Sackgasse sowie durch seinen sehr guten Gesamtzustand.
Mit drei separaten Wohnetagen eignet sich die Immobilie ideal als Kapitalanlage oder für eine langfristige, sichere Vermietung – alle Einheiten sind vollständig und zuverlässig vermietet.
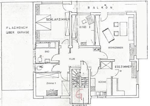
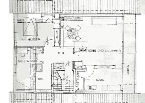
Wohneinheiten im Überblick
4 Zimmer-Erdgeschosswohnung mit ca. 125 m²,
Die Erdgeschosswohnung bietet eine großzügige Raumaufteilung mit direktem Zugang zum sehr großen Garten. Eine überdachte Terrasse sorgt für zusätzlichen Wohnkomfort und lädt zum Entspannen ein.
4 Zimmerwohnung im 1. Obergeschoss mit ca. 130 m²,
Helle, weitläufige Zimmer und ein großer Balkon schaffen eine angenehme Wohnatmosphäre. Diese Einheit bietet viel Platz für Familien und Paare.
3 Zimmerwohnung im Dachgeschoss mit ca. 100 m²,
Das ausgebaute Dachgeschoss verfügt über einen eigenen Balkon und besticht durch einen gemütlichen Grundriss mit viel Tageslicht.
Die Immobilie überzeugt durch solide Bausubstanz, eine attraktive Lage und stabile Vermietungssituation. Durch die vollständige Vermietung eignet sich das Haus hervorragend als langfristige Kapitalanlage mit zuverlässigen Einnahmen.
Auf einem 671 m² großen Grundstück gelegen, überzeugt das Haus durch seine ruhige Lage in einer Sackgasse sowie durch seinen sehr guten Gesamtzustand.
Mit drei separaten Wohnetagen eignet sich die Immobilie ideal als Kapitalanlage oder für eine langfristige, sichere Vermietung – alle Einheiten sind vollständig und zuverlässig vermietet.
Wohneinheiten im Überblick
4 Zimmer-Erdgeschosswohnung mit ca. 125 m²,
Die Erdgeschosswohnung bietet eine großzügige Raumaufteilung mit direktem Zugang zum sehr großen Garten. Eine überdachte Terrasse sorgt für zusätzlichen Wohnkomfort und lädt zum Entspannen ein.
4 Zimmerwohnung im 1. Obergeschoss mit ca. 130 m²,
Helle, weitläufige Zimmer und ein großer Balkon schaffen eine angenehme Wohnatmosphäre. Diese Einheit bietet viel Platz für Familien und Paare.
3 Zimmerwohnung im Dachgeschoss mit ca. 100 m²,
Das ausgebaute Dachgeschoss verfügt über einen eigenen Balkon und besticht durch einen gemütlichen Grundriss mit viel Tageslicht.
Die Immobilie überzeugt durch solide Bausubstanz, eine attraktive Lage und stabile Vermietungssituation. Durch die vollständige Vermietung eignet sich das Haus hervorragend als langfristige Kapitalanlage mit zuverlässigen Einnahmen.
Ausstattung
| Anzahl der Etagen im Haus | 3 |
| Carport | 1 |
Bemerkungen:
Das Haus ist in einem sehr gepflegten Zustand und wurde laufend instand gehalten.
Eine Gas-Zentralheizung (Energieausweis befindet sich in Erstellung)
Fenster: doppelt verglaste Fenster – ein Austausch steht an bzw. wird empfohlen
Modernisierungen: Abgesehen von den Fenstern besteht kein Sanierungsbedarf
Außenbereich:
Sehr großer Garten für die EG-Wohnung
Carport vorhanden
Ausreichend öffentliche Parkmöglichkeiten in der ruhigen Sackgasse
Sonstige Informationen
Heizungsart: Zentralheizung
Energieträger: Gas
Energieausweis nicht vorhanden
Die bereitgestellten Unterlagen (z. B. Grundrisse, Energieausweis, Informationen zur Immobilie) erhalten wir von Dritten. Für die Richtigkeit, Vollständigkeit und Aktualität dieser Angaben übernehmen wir keine Gewähr.
Der Energieausweis wird gerade erstellt.
Alle Angaben dienen lediglich der Vorinformation und ersetzen nicht die persönliche Besichtigung der Immobilie sowie die eigenständige Prüfung durch den Kaufinteressenten.
Makleranfragen nicht erwünscht. Nach § 7 UWG sind unaufgeforderte Kontaktaufnahmen durch Makler ohne ausdrückliche Einwilligung des Empfängers verboten!
ohne-makler (OM) ist weder Anbieter noch Vermittler der Immobilie. OM betreibt eine Plattform für Immobilieneigentümer, die unter anderem die gleichzeitige Veröffentlichung einzelner Inserate auf mehreren Immobilienportalen ermöglicht. Die Inhalte dieser Inserate werden ausschließlich von Dritten verantwortet. Für die Richtigkeit, Vollständigkeit oder Rechtmäßigkeit der Angaben übernimmt OM keine Haftung. Hinweise auf mögliche Rechtsverstöße können jederzeit gemeldet werden und werden nach Prüfung umgehend bearbeitet.
Energieträger: Gas
Energieausweis nicht vorhanden
Die bereitgestellten Unterlagen (z. B. Grundrisse, Energieausweis, Informationen zur Immobilie) erhalten wir von Dritten. Für die Richtigkeit, Vollständigkeit und Aktualität dieser Angaben übernehmen wir keine Gewähr.
Der Energieausweis wird gerade erstellt.
Alle Angaben dienen lediglich der Vorinformation und ersetzen nicht die persönliche Besichtigung der Immobilie sowie die eigenständige Prüfung durch den Kaufinteressenten.
Makleranfragen nicht erwünscht. Nach § 7 UWG sind unaufgeforderte Kontaktaufnahmen durch Makler ohne ausdrückliche Einwilligung des Empfängers verboten!
ohne-makler (OM) ist weder Anbieter noch Vermittler der Immobilie. OM betreibt eine Plattform für Immobilieneigentümer, die unter anderem die gleichzeitige Veröffentlichung einzelner Inserate auf mehreren Immobilienportalen ermöglicht. Die Inhalte dieser Inserate werden ausschließlich von Dritten verantwortet. Für die Richtigkeit, Vollständigkeit oder Rechtmäßigkeit der Angaben übernimmt OM keine Haftung. Hinweise auf mögliche Rechtsverstöße können jederzeit gemeldet werden und werden nach Prüfung umgehend bearbeitet.
Lage des Objektes
Die Immobilie befindet sich im beliebten Alzenauer Ortsteil Wasserlos, einer ruhigen und familienfreundlichen Wohngegend mit hervorragender Lebensqualität. Das Umfeld ist geprägt von gepflegten Wohnhäusern, viel Grün und einer angenehm entspannten Atmosphäre – ideal für Mieter, die Ruhe und Privatsphäre schätzen.
Wasserlos bietet eine sehr gute Infrastruktur: Einkaufsmöglichkeiten, Bäckereien, Schulen, Kindergärten, Ärzte sowie verschiedene Dienstleister sind in wenigen Minuten erreichbar. Auch die Anbindung an den öffentlichen Nahverkehr ist komfortabel, sodass sowohl Alzenau-Zentrum als auch die umliegenden Orte schnell erreicht werden können.
Für Pendler ist die Lage besonders attraktiv: Über die A45 sowie die Bundesstraße B8 bestehen schnelle Verbindungen nach Aschaffenburg, Hanau, Frankfurt am Main und das gesamte Rhein-Main-Gebiet.
Naturliebhaber profitieren von der grünen Umgebung: Wälder, Felder und Spazierwege liegen fast vor der Haustür und bieten ideale Möglichkeiten für Freizeitaktivitäten wie Wandern, Radfahren oder einfach zum Entspannen im Grünen.
Insgesamt überzeugt die Lage durch die perfekte Kombination aus ruhigem Wohnen, guter Infrastruktur und optimaler regionaler Anbindung – ein attraktiver Standort für langfristige Vermietung und hohe Wohnqualität.
Wasserlos bietet eine sehr gute Infrastruktur: Einkaufsmöglichkeiten, Bäckereien, Schulen, Kindergärten, Ärzte sowie verschiedene Dienstleister sind in wenigen Minuten erreichbar. Auch die Anbindung an den öffentlichen Nahverkehr ist komfortabel, sodass sowohl Alzenau-Zentrum als auch die umliegenden Orte schnell erreicht werden können.
Für Pendler ist die Lage besonders attraktiv: Über die A45 sowie die Bundesstraße B8 bestehen schnelle Verbindungen nach Aschaffenburg, Hanau, Frankfurt am Main und das gesamte Rhein-Main-Gebiet.
Naturliebhaber profitieren von der grünen Umgebung: Wälder, Felder und Spazierwege liegen fast vor der Haustür und bieten ideale Möglichkeiten für Freizeitaktivitäten wie Wandern, Radfahren oder einfach zum Entspannen im Grünen.
Insgesamt überzeugt die Lage durch die perfekte Kombination aus ruhigem Wohnen, guter Infrastruktur und optimaler regionaler Anbindung – ein attraktiver Standort für langfristige Vermietung und hohe Wohnqualität.
Anbieter kontaktieren
Kontakt
| Telefon | 0151 12380070 |
| Fax | - |
| Website | www.ohne-makler.net |
