Kapitalanlage 4,3% ab Start - in Düsseldorf - Vermietete Wohnung am Götzenkothen 34 / WE 1
156.000 €
Kaufpreis
44,83 m²
Wohnfläche
1
Zimmer
immobilien.de Nr.: 9371891
Objektnummer: 413179
Dateien
Preise & Kosten
| Kaufpreis | 156.000 € |
| Nebenkosten | keine Angabe |
| Maklerprovision | keine Provision, courtagefrei |
Größe & Zustand
| Wohnfläche | 44,83 m² |
| Zimmer | 1 |
| Baujahr | 1968 |
| Verfügbar ab | nach Absprache |
| Zustand | Teil Vollrenovierungsbed |
Energie
| Energieausweistyp | Verbrauch |
| Energieeffizienzklasse | E |
| Energieverbrauchkennwert | 143 kWh/(m²*a) |
| Heizungsart | Zentralheizung |
| Energieträger/Befeuerung | Gas |
Objektbeschreibung
Diese gepflegte 1-Zimmer-Wohnung am Götzenkothen 34 in Düsseldorf-Rath bietet eine solide und langfristig stabile Kapitalanlage in einem nachgefragten Wohnumfeld.
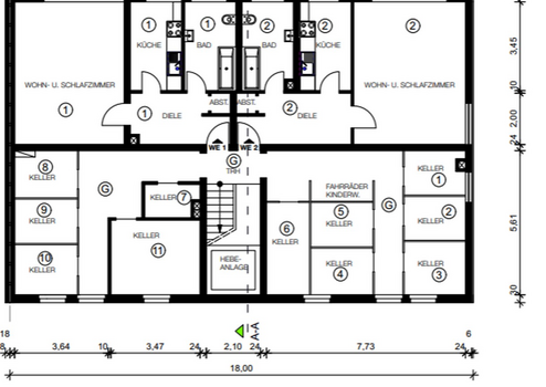
Die vermietete Wohneinheit mit einer Wohnfläche von 44,83 m² befindet sich im Souterrain des sehr gepflegten Objekts und erwirtschaftet derzeit eine Subventionsmiete von 12,50 €/m² bzw. 6.724,50 € pro Jahr. Dadurch ist eine Bruttorendite von 4,3 % ab Start weg möglich.
Das Mehrfamilienhaus mit 11 Wohneinheiten aus dem Jahr 1968 befindet sich in einer ruhigen Anwohnerlage mit überwiegend gewachsener Wohnbebauung und überzeugt durch eine zuverlässige Mieterstruktur sowie eine gute infrastrukturelle Anbindung.
Steuervorteile für Kapitalanleger:
Als Kapitalanleger profitieren Sie zusätzlich von steuerlichen Vorteilen wie der jährlichen Abschreibung (AfA) auf den Gebäudewert sowie dem Abzug von Werbungskosten (z. B. Zinsen, Renovierungskosten, Verwaltungskosten) bei der Einkommenssteuer. Dadurch lassen sich die laufenden Einnahmen steuerlich optimieren und die Rendite weiter steigern.
Ein Restnutzungsgutachten liegt bereits vor und weist eine Abschreibung in Höhe von 4,16% aus.
Unsere Hauseigene Hausverwaltung kümmert sich gerne um die Verwaltung der WEG und SEV. Kostengünstig und professionell, bieten wir Ihnen das Maximum an Passivität beim Bestandsaufbau Ihrer Kapitalanlagen-Immobilen an.
Fazit:
Eine moderne, vermietete Eigentumswohnung mit attraktiver Rendite von 4,3 %, Wertsteigerungspotenzial und interessanten Steuervorteilen – ideal für Ihr Investment!
Die vermietete Wohneinheit mit einer Wohnfläche von 44,83 m² befindet sich im Souterrain des sehr gepflegten Objekts und erwirtschaftet derzeit eine Subventionsmiete von 12,50 €/m² bzw. 6.724,50 € pro Jahr. Dadurch ist eine Bruttorendite von 4,3 % ab Start weg möglich.
Das Mehrfamilienhaus mit 11 Wohneinheiten aus dem Jahr 1968 befindet sich in einer ruhigen Anwohnerlage mit überwiegend gewachsener Wohnbebauung und überzeugt durch eine zuverlässige Mieterstruktur sowie eine gute infrastrukturelle Anbindung.
Steuervorteile für Kapitalanleger:
Als Kapitalanleger profitieren Sie zusätzlich von steuerlichen Vorteilen wie der jährlichen Abschreibung (AfA) auf den Gebäudewert sowie dem Abzug von Werbungskosten (z. B. Zinsen, Renovierungskosten, Verwaltungskosten) bei der Einkommenssteuer. Dadurch lassen sich die laufenden Einnahmen steuerlich optimieren und die Rendite weiter steigern.
Ein Restnutzungsgutachten liegt bereits vor und weist eine Abschreibung in Höhe von 4,16% aus.
Unsere Hauseigene Hausverwaltung kümmert sich gerne um die Verwaltung der WEG und SEV. Kostengünstig und professionell, bieten wir Ihnen das Maximum an Passivität beim Bestandsaufbau Ihrer Kapitalanlagen-Immobilen an.
Fazit:
Eine moderne, vermietete Eigentumswohnung mit attraktiver Rendite von 4,3 %, Wertsteigerungspotenzial und interessanten Steuervorteilen – ideal für Ihr Investment!
Ausstattung
| Anzahl der Etagen im Haus | 3 |
| Inserat befindet sich im Stockwerk | -1 |
| Bad | 1 |
| Garten | |
| Keller |
Garten, Keller
Sonstige Informationen
Heizungsart: Zentralheizung
Energieträger: Gas
Makleranfragen nicht erwünscht. Nach § 7 UWG sind unaufgeforderte Kontaktaufnahmen durch Makler ohne ausdrückliche Einwilligung des Empfängers verboten!
ohne-makler (OM) ist weder Anbieter noch Vermittler der Immobilie. OM betreibt eine Plattform für Immobilieneigentümer, die unter anderem die gleichzeitige Veröffentlichung einzelner Inserate auf mehreren Immobilienportalen ermöglicht. Die Inhalte dieser Inserate werden ausschließlich von Dritten verantwortet. Für die Richtigkeit, Vollständigkeit oder Rechtmäßigkeit der Angaben übernimmt OM keine Haftung. Hinweise auf mögliche Rechtsverstöße können jederzeit gemeldet werden und werden nach Prüfung umgehend bearbeitet.
Energieträger: Gas
Makleranfragen nicht erwünscht. Nach § 7 UWG sind unaufgeforderte Kontaktaufnahmen durch Makler ohne ausdrückliche Einwilligung des Empfängers verboten!
ohne-makler (OM) ist weder Anbieter noch Vermittler der Immobilie. OM betreibt eine Plattform für Immobilieneigentümer, die unter anderem die gleichzeitige Veröffentlichung einzelner Inserate auf mehreren Immobilienportalen ermöglicht. Die Inhalte dieser Inserate werden ausschließlich von Dritten verantwortet. Für die Richtigkeit, Vollständigkeit oder Rechtmäßigkeit der Angaben übernimmt OM keine Haftung. Hinweise auf mögliche Rechtsverstöße können jederzeit gemeldet werden und werden nach Prüfung umgehend bearbeitet.
Lage des Objektes
Die Wohnung befindet sich in ruhiger und zugleich gut angebundener Wohnlage im beliebten Düsseldorfer Stadtteil Rath. Die Umgebung ist geprägt von gepflegten Mehrfamilienhäusern, viel Grün sowie einer gewachsenen Nachbarschaftsstruktur. Die Lage bietet eine ideale Kombination aus städtischer Nähe und angenehmer Wohnruhe – ein wichtiges Argument für langfristige Vermietbarkeit.
Im Umkreis von fünf Kilometern finden sich zahlreiche Einrichtungen des täglichen Bedarfs: Apotheken, ein Lebensmittel-Discount, Allgemeinmediziner, mehrere Kindergärten, Grundschulen sowie weitere Schulformen. Damit ist die Versorgung für alle Lebensphasen optimal gewährleistet.
Die ÖPNV-Anbindung ist hervorragend: Bushaltestellen liegen nur wenige Gehminuten entfernt, und auch der S-Bahnhof Düsseldorf-Rath ist schnell erreichbar. Von dort aus bestehen direkte Verbindungen in die Düsseldorfer Innenstadt, zum Hauptbahnhof sowie zum Flughafen. Die Autobahnanschlüsse an die A44 und A52 sorgen zudem für eine ideale überregionale Erreichbarkeit.
Auch Freizeit- und Erholungsmöglichkeiten befinden sich in der Nähe: Parks, Sportanlagen, gastronomische Angebote und Einkaufsmöglichkeiten machen die Lage attraktiv für Mieter und Eigennutzer gleichermaßen.
Im Umkreis von fünf Kilometern finden sich zahlreiche Einrichtungen des täglichen Bedarfs: Apotheken, ein Lebensmittel-Discount, Allgemeinmediziner, mehrere Kindergärten, Grundschulen sowie weitere Schulformen. Damit ist die Versorgung für alle Lebensphasen optimal gewährleistet.
Die ÖPNV-Anbindung ist hervorragend: Bushaltestellen liegen nur wenige Gehminuten entfernt, und auch der S-Bahnhof Düsseldorf-Rath ist schnell erreichbar. Von dort aus bestehen direkte Verbindungen in die Düsseldorfer Innenstadt, zum Hauptbahnhof sowie zum Flughafen. Die Autobahnanschlüsse an die A44 und A52 sorgen zudem für eine ideale überregionale Erreichbarkeit.
Auch Freizeit- und Erholungsmöglichkeiten befinden sich in der Nähe: Parks, Sportanlagen, gastronomische Angebote und Einkaufsmöglichkeiten machen die Lage attraktiv für Mieter und Eigennutzer gleichermaßen.
