Attraktive Kapitalanlage in Ascheberg - Vollständiges Doppelhaus im Paket
484.000 €
Kaufpreis
280,88 m²
Wohnfläche
10
Zimmer
immobilien.de Nr.: 9370182
Objektnummer: 373859
Preise & Kosten
| Kaufpreis | 484.000 € |
| Nebenkosten | keine Angabe |
| Maklerprovision | keine Provision, courtagefrei |
Größe & Zustand
| Wohnfläche | 280,88 m² |
| Grundstücksfläche | 539 m² |
| Zimmer | 10 |
| Baujahr | 2025 |
| Verfügbar ab | nach Absprache |
| Zustand | Erstbezug |
Objektbeschreibung
In ruhiger Lage von Ascheberg (Holstein) steht ein hochwertig gebautes Doppelhaus, das sich ideal als langfristige Kapitalanlage eignet. Das Objekt wird als Gesamtpaket angeboten und bietet mit zwei nahezu identischen Haushälften flexible Nutzungsmodelle – von Vermietung beider Einheiten bis zur gemischten Nutzung (Eigennutzung + Vermietung).
Dank der massiven „Stein-auf-Stein“-Bauweise, energieeffizienter Technik und moderner Architektur erfüllt das Projekt alle Anforderungen an eine nachhaltige und wertstabile Immobilie.
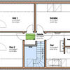
Das Doppelhaus überzeugt durch klare Linien, moderne Architektur und eine solide Massivbauweise. Durch die großen Fensterflächen sind die Räume lichtdurchflutet und bieten eine angenehme Wohnatmosphäre. Bereits in der Standardvariante verfügt das Haus über hochwertige Materialien und eine durchdachte Raumaufteilung.
Dank der massiven „Stein-auf-Stein“-Bauweise, energieeffizienter Technik und moderner Architektur erfüllt das Projekt alle Anforderungen an eine nachhaltige und wertstabile Immobilie.
Das Doppelhaus überzeugt durch klare Linien, moderne Architektur und eine solide Massivbauweise. Durch die großen Fensterflächen sind die Räume lichtdurchflutet und bieten eine angenehme Wohnatmosphäre. Bereits in der Standardvariante verfügt das Haus über hochwertige Materialien und eine durchdachte Raumaufteilung.
Ausstattung
| Anzahl der Etagen im Haus | 2 |
| Bad | 4 |
| Bad | Dusche |
Duschbad, Gäste-WC
Bemerkungen:
•Moderne Neubauqualität
•Energieeffiziente Versorgung reduziert Nebenkosten
•Sehr gute Vermietbarkeit durch Lage & Grundrisse
•Zukunftssicherer Markt (Pendlerregion Kiel–Plön)
•Planungssicherheit durch Neubau statt Sanierungsrisiko
•Optional schlüsselfertig = sofortige Vermietbarkeit
Das Doppelhaus wird ausschließlich als geschlossener Rohbau angeboten.
Der Innenausbau ist nicht im Kaufpreis enthalten und kann wahlweise
– durch einen von uns vermittelten Fachunternehmer oder
– in Eigenregie des Käufers
erfolgen.
Bemerkungen:
•Moderne Neubauqualität
•Energieeffiziente Versorgung reduziert Nebenkosten
•Sehr gute Vermietbarkeit durch Lage & Grundrisse
•Zukunftssicherer Markt (Pendlerregion Kiel–Plön)
•Planungssicherheit durch Neubau statt Sanierungsrisiko
•Optional schlüsselfertig = sofortige Vermietbarkeit
Das Doppelhaus wird ausschließlich als geschlossener Rohbau angeboten.
Der Innenausbau ist nicht im Kaufpreis enthalten und kann wahlweise
– durch einen von uns vermittelten Fachunternehmer oder
– in Eigenregie des Käufers
erfolgen.
Sonstige Informationen
Energieausweis nicht vorhanden
Firma: Vesta Immobilien & Finanzierungs GmbH
Ansprechpartner: Konstantin Schreiner
Adresse: Walter-Zeidler-Str. 15, 24783 Osterrönfeld
TelNr.: 04331 8688806
E-Mail: info@vesta-immo.de
ohne-makler (OM) ist weder Anbieter noch Vermittler der Immobilie. OM betreibt eine Plattform für Immobilieneigentümer, die unter anderem die gleichzeitige Veröffentlichung einzelner Inserate auf mehreren Immobilienportalen ermöglicht. Die Inhalte dieser Inserate werden ausschließlich von Dritten verantwortet. Für die Richtigkeit, Vollständigkeit oder Rechtmäßigkeit der Angaben übernimmt OM keine Haftung. Hinweise auf mögliche Rechtsverstöße können jederzeit gemeldet werden und werden nach Prüfung umgehend bearbeitet.
Firma: Vesta Immobilien & Finanzierungs GmbH
Ansprechpartner: Konstantin Schreiner
Adresse: Walter-Zeidler-Str. 15, 24783 Osterrönfeld
TelNr.: 04331 8688806
E-Mail: info@vesta-immo.de
ohne-makler (OM) ist weder Anbieter noch Vermittler der Immobilie. OM betreibt eine Plattform für Immobilieneigentümer, die unter anderem die gleichzeitige Veröffentlichung einzelner Inserate auf mehreren Immobilienportalen ermöglicht. Die Inhalte dieser Inserate werden ausschließlich von Dritten verantwortet. Für die Richtigkeit, Vollständigkeit oder Rechtmäßigkeit der Angaben übernimmt OM keine Haftung. Hinweise auf mögliche Rechtsverstöße können jederzeit gemeldet werden und werden nach Prüfung umgehend bearbeitet.
Lage des Objektes
Das Objekt liegt in einem neuen, ruhigen Wohngebiet in Ascheberg. Durch die Nähe zu Gewässern, viel Grün und guter Verkehrsanbindung (Bahnhof, B430, A21) zählt der Ort zu den attraktivsten Lagen zwischen Kiel und Plön.
Schulen, Kita, Apotheke und Nahversorgung sind zentral erreichbar – ein klarer Vorteil für Familien als Hauptzielgruppe für Vermietung.
Infrastruktur (im Umkreis von 5 km):
Lebensmittel-Discount, Kindergarten, Öffentliche Verkehrsmittel
Schulen, Kita, Apotheke und Nahversorgung sind zentral erreichbar – ein klarer Vorteil für Familien als Hauptzielgruppe für Vermietung.
Infrastruktur (im Umkreis von 5 km):
Lebensmittel-Discount, Kindergarten, Öffentliche Verkehrsmittel
Anbieter kontaktieren
Kontakt
| Telefon | - |
| Fax | - |
| Website | www.ohne-makler.net |
