Toller Rheinblick- Helle altengerechte Wohnung im KFW 40 Energiesparhaus in ruhiger Lage im Grünen
572.100 €
Kaufpreis
116,34 m²
Wohnfläche
3
Zimmer
immobilien.de Nr.: 9365953
Objektnummer: ETNBKOJU207
Preise & Kosten
| Kaufpreis | 572.100 € |
| Nebenkosten | keine Angabe |
Größe & Zustand
| Wohnfläche | 116,34 m² |
| Fläche teilbar ab | 116,34 m² |
| Zimmer | 3 |
| Baujahr | 2025 |
| Verfügbar ab | Frühjahr 2026 |
| Zustand | Erstbezug |
Energie
| Energieausweistyp | Bedarfsausweis |
| Ausstellungsdatum | 06. 06. 2025 |
| Gültig bis | 05.06.2035 |
| Baujahr (laut Energieausweis) | 2025 |
| Energieeffizienzklasse | A+ |
| Energietyp | KfW-40 |
| Endenergiebedarf | 10,70 |
| Heizungsart | Fußbodenheizung |
| Wesentlicher Energieträger | Luft/wasser-Wärmepumpe |
| Energieträger/Befeuerung | Luft-Wärme-Pumpe |
Objektbeschreibung
Moderne helle altersgerechte Wohnung mit moderner Technik im KFW 40 Energiesparhaus im attraktiven Wohngebiet im Grünen "Horchheiner Höhe" mit guter Verkehrsanbindung nach
Koblenz. Hohe Steuervorteile durch Neubauabschreibungen für Vermieter möglich !
Schöne helle sonnige Wohnung in gefragter ruhiger Lage am Ende einer Sackgasse - angrenzend an schöne Waldflächen.
Energiesparendes Bauen mit KFW 40 Förderung und hohen Steuervorteilen für Vermieter. Altengerechtes schönes Wohnen mit moderner kostengünstiger Heiztechnik in gefragter Lage im Koblenz-Horchheimer Höhe-. In dieser exponierten Lage entstehen moderne attraktive Eigentumswohnungen von ca. 75 bis ca. 130 m² mit moderner Technik in altersgerechter Ausführung mit Lift, Tiefgarage sowie Außenstellplätzen. Elektrische Rollläden, die gut befahrbaren Tiefgaragenstellplätze bzw. die Außenstellplätze, schöne Fliesen und Sanitärausstattungen, hochwertige Wohnungseingangstüren, moderne 3-fach verglaste Fenster, eine gute Elektroausstattung, eine kontrollierter Wohnraumbelüftung mit Wärmerückgewinnung sowie attraktive Parkettböden werden ausgeführt. Sie können der Wohnung noch Ihre persönliche Note durch die individuelle Ausstattung geben. Bei der Konzeption des Objektes wurde besonders auf Energiesparendes Bauen geachtet, was durch den aufwendigen KFW 40 Standard dokumentiert wird (Energieklasse A +). Die Kombination von moderner Technik sowie hochwertiger Isolierung führt zu sehr günstigen Heizkosten bzw. Nebenkosten. Alle Wohnungen verfügen über schöne Balkone oder großzügige Terrassen mit guter Besonnung . Jeder Wohnung ist ein Abstellraum im Untergeschoss zugeordnet.
Geniesen Sie den Wohnkomfort eines modernen hellen überwiegend barrierefreien Gebäudes mit neuester Technik.
Das Angebot bezieht sich auf die Wohnung 7 im 2. Obergeschoß - hangseitig 3. Obergeschoß. Sie gelangen über eine geräumige Diele mit Garderobe in die Wohnung. Von der Diele gelangen Sie in das geräumige Bad mit Fenster von ca. 8 m² ausgestattet mit Dusche und Wanne, das gut aufgeteilte Elternschlafzimmer von ca. 17 m², das helle geräumige Kinderzimmer/Büro von ca. 15 m², das Gäste-WC sowie in den Abstellraum. Von der zentralen Diele gelangen Sie desweiteren in den hellen großzügigen Wohn/Eßbereich mit offener Küche von insgesamt 48 m² und Ausgang auf den großen sonnigen Balkon von ca. 18 m². Von hier haben Sie eine herrliche Sicht ins Tal und über die Stadt Koblenz. Der Kochbereich kann auf Wunsch abgetrennt werden. Die Wohnung hat eine Wohnfläche von ca. 117 m². Der Wohnung ist ein Kellerraum zugeordnet.
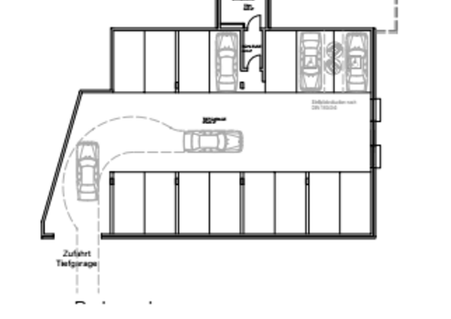
Es besteht die Möglichkeit Außenstellplätze für 15.000 EUR sowie Tiefgaragenstellplätze für 27.000 EUR zu erwerben. Die Wohnanlage erfüllt die technischen Voraussetzungen um die KFW Darlehen nach den Programmen 297, 298 und dem Programm 300 (Familienförderung) zu ermöglichen.
De Bezugsfertigkeit ist für Frühjahr 2026 vorgesehen.
Steuerlicher Hinweis für Investoren : Die Wohnungen können bei einem Erwerb bis zum Jahr der Fertigstellung und einer Vermietung entsprechend den im Wachstumschanchengesetz aktuell beschlossenen Änderungen der degressiven Abschreibung nunmehr mit jährlich 5 %- bezogen auf den jeweiligen Buchwert/Restwert - abgeschrieben werden. Hierdurch können hohe Steuervorteile erzielt werden. Wir übernehmen keine steuerliche Beratung und keine Haftung für steuerliche Ziele. Hierzu informiert Sie Ihr Steuerberater umfassend.
.
Koblenz. Hohe Steuervorteile durch Neubauabschreibungen für Vermieter möglich !
Schöne helle sonnige Wohnung in gefragter ruhiger Lage am Ende einer Sackgasse - angrenzend an schöne Waldflächen.
Energiesparendes Bauen mit KFW 40 Förderung und hohen Steuervorteilen für Vermieter. Altengerechtes schönes Wohnen mit moderner kostengünstiger Heiztechnik in gefragter Lage im Koblenz-Horchheimer Höhe-. In dieser exponierten Lage entstehen moderne attraktive Eigentumswohnungen von ca. 75 bis ca. 130 m² mit moderner Technik in altersgerechter Ausführung mit Lift, Tiefgarage sowie Außenstellplätzen. Elektrische Rollläden, die gut befahrbaren Tiefgaragenstellplätze bzw. die Außenstellplätze, schöne Fliesen und Sanitärausstattungen, hochwertige Wohnungseingangstüren, moderne 3-fach verglaste Fenster, eine gute Elektroausstattung, eine kontrollierter Wohnraumbelüftung mit Wärmerückgewinnung sowie attraktive Parkettböden werden ausgeführt. Sie können der Wohnung noch Ihre persönliche Note durch die individuelle Ausstattung geben. Bei der Konzeption des Objektes wurde besonders auf Energiesparendes Bauen geachtet, was durch den aufwendigen KFW 40 Standard dokumentiert wird (Energieklasse A +). Die Kombination von moderner Technik sowie hochwertiger Isolierung führt zu sehr günstigen Heizkosten bzw. Nebenkosten. Alle Wohnungen verfügen über schöne Balkone oder großzügige Terrassen mit guter Besonnung . Jeder Wohnung ist ein Abstellraum im Untergeschoss zugeordnet.
Geniesen Sie den Wohnkomfort eines modernen hellen überwiegend barrierefreien Gebäudes mit neuester Technik.
Das Angebot bezieht sich auf die Wohnung 7 im 2. Obergeschoß - hangseitig 3. Obergeschoß. Sie gelangen über eine geräumige Diele mit Garderobe in die Wohnung. Von der Diele gelangen Sie in das geräumige Bad mit Fenster von ca. 8 m² ausgestattet mit Dusche und Wanne, das gut aufgeteilte Elternschlafzimmer von ca. 17 m², das helle geräumige Kinderzimmer/Büro von ca. 15 m², das Gäste-WC sowie in den Abstellraum. Von der zentralen Diele gelangen Sie desweiteren in den hellen großzügigen Wohn/Eßbereich mit offener Küche von insgesamt 48 m² und Ausgang auf den großen sonnigen Balkon von ca. 18 m². Von hier haben Sie eine herrliche Sicht ins Tal und über die Stadt Koblenz. Der Kochbereich kann auf Wunsch abgetrennt werden. Die Wohnung hat eine Wohnfläche von ca. 117 m². Der Wohnung ist ein Kellerraum zugeordnet.
Es besteht die Möglichkeit Außenstellplätze für 15.000 EUR sowie Tiefgaragenstellplätze für 27.000 EUR zu erwerben. Die Wohnanlage erfüllt die technischen Voraussetzungen um die KFW Darlehen nach den Programmen 297, 298 und dem Programm 300 (Familienförderung) zu ermöglichen.
De Bezugsfertigkeit ist für Frühjahr 2026 vorgesehen.
Steuerlicher Hinweis für Investoren : Die Wohnungen können bei einem Erwerb bis zum Jahr der Fertigstellung und einer Vermietung entsprechend den im Wachstumschanchengesetz aktuell beschlossenen Änderungen der degressiven Abschreibung nunmehr mit jährlich 5 %- bezogen auf den jeweiligen Buchwert/Restwert - abgeschrieben werden. Hierdurch können hohe Steuervorteile erzielt werden. Wir übernehmen keine steuerliche Beratung und keine Haftung für steuerliche Ziele. Hierzu informiert Sie Ihr Steuerberater umfassend.
.
Ausstattung
| Bad | 1 |
| Bad | Dusche, Fenster |
| Boden | Fliesen, Parkett |
| Barrierefrei |
Moderne helle altersgerechte Wohnung mit moderner Technik im KFW 40 Energiesparhaus im attraktiven Wohngebiet im Grünen "Horchheiner Höhe" mit guter Verkehrsanbindung nach
Koblenz. Hohe Steuervorteile durch Neubauabschreibungen für Vermieter möglich !
Schöne helle sonnige Wohnung in gefragter ruhiger Lage am Ende einer Sackgasse - angrenzend an schöne Waldflächen.
Energiesparendes Bauen mit KFW 40 Förderung und hohen Steuervorteilen für Vermieter. Altengerechtes schönes Wohnen mit moderner kostengünstiger Heiztechnik in gefragter Lage im Koblenz-Horchheimer Höhe-. In dieser exponierten Lage entstehen moderne attraktive Eigentumswohnungen von ca. 75 bis ca. 130 m² mit moderner Technik in altersgerechter Ausführung mit Lift, Tiefgarage sowie Außenstellplätzen. Elektrische Rollläden, die gut befahrbaren Tiefgaragenstellplätze bzw. die Außenstellplätze, schöne Fliesen und Sanitärausstattungen, hochwertige Wohnungseingangstüren, moderne 3-fach verglaste Fenster, eine gute Elektroausstattung, eine kontrollierter Wohnraumbelüftung mit Wärmerückgewinnung sowie attraktive Parkettböden werden ausgeführt. Sie können der Wohnung noch Ihre persönliche Note durch die individuelle Ausstattung geben. Bei der Konzeption des Objektes wurde besonders auf Energiesparendes Bauen geachtet, was durch den aufwendigen KFW 40 Standard dokumentiert wird (Energieklasse A +). Die Kombination von moderner Technik sowie hochwertiger Isolierung führt zu sehr günstigen Heizkosten bzw. Nebenkosten. Alle Wohnungen verfügen über schöne Balkone oder großzügige Terrassen mit guter Besonnung . Jeder Wohnung ist ein Abstellraum im Untergeschoss zugeordnet.
Geniesen Sie den Wohnkomfort eines modernen hellen überwiegend barrierefreien Gebäudes mit neuester Technik.
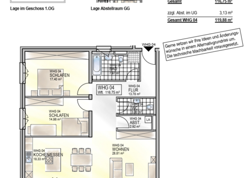
Das Angebot bezieht sich auf die Wohnung 4 im 1. Obergeschoß - hangseitig 2. Obergeschoß. Sie gelangen über eine geräumige Diele mit Garderobe in die Wohnung. Von der Diele gelangen Sie in das geräumige Bad mit Fenster von ca. 8 m² ausgestattet mit Dusche und Wanne, das gut aufgeteilte Elternschlafzimmer von ca. 17 m², das helle geräumige Kinderzimmer/Büro von ca. 15 m², das Gäste-WC sowie in den Abstellraum. Von der zentralen Diele gelangen Sie desweiteren in den hellen großzügigen Wohn/Eßbereich mit offener Küche von insgesamt 48 m² und Ausgang auf den großen sonnigen Balkon von ca. 18 m². Von hier haben Sie eine herrliche Sicht ins Tal und über die Stadt Koblenz. Der Kochbereich kann auf Wunsch abgetrennt werden. Die Wohnung hat eine Wohnfläche von ca. 117 m². Der Wohnung ist ein Kellerraum zugeordnet.
Es besteht die Möglichkeit Außenstellplätze für 15.000 EUR sowie Tiefgaragenstellplätze für 27.000 EUR zu erwerben. Die Wohnanlage erfüllt die technischen Voraussetzungen um die KFW Darlehen nach den Programmen 297, 298 und dem Programm 300 (Familienförderung) zu ermöglichen.
De Bezugsfertigkeit ist für Frühjahr 2026 vorgesehen.
Steuerlicher Hinweis für Investoren : Die Wohnungen können bei einem Erwerb bis zum Jahr der Fertigstellung und einer Vermietung entsprechend den im Wachstumschanchengesetz aktuell beschlossenen Änderungen der degressiven Abschreibung nunmehr mit jährlich 5 %- bezogen auf den jeweiligen Buchwert/Restwert - abgeschrieben werden. Hierdurch können hohe Steuervorteile erzielt werden. Wir übernehmen keine steuerliche Beratung und keine Haftung für steuerliche Ziele. Hierzu informiert Sie Ihr Steuerberater umfassend.
.
Koblenz. Hohe Steuervorteile durch Neubauabschreibungen für Vermieter möglich !
Schöne helle sonnige Wohnung in gefragter ruhiger Lage am Ende einer Sackgasse - angrenzend an schöne Waldflächen.
Energiesparendes Bauen mit KFW 40 Förderung und hohen Steuervorteilen für Vermieter. Altengerechtes schönes Wohnen mit moderner kostengünstiger Heiztechnik in gefragter Lage im Koblenz-Horchheimer Höhe-. In dieser exponierten Lage entstehen moderne attraktive Eigentumswohnungen von ca. 75 bis ca. 130 m² mit moderner Technik in altersgerechter Ausführung mit Lift, Tiefgarage sowie Außenstellplätzen. Elektrische Rollläden, die gut befahrbaren Tiefgaragenstellplätze bzw. die Außenstellplätze, schöne Fliesen und Sanitärausstattungen, hochwertige Wohnungseingangstüren, moderne 3-fach verglaste Fenster, eine gute Elektroausstattung, eine kontrollierter Wohnraumbelüftung mit Wärmerückgewinnung sowie attraktive Parkettböden werden ausgeführt. Sie können der Wohnung noch Ihre persönliche Note durch die individuelle Ausstattung geben. Bei der Konzeption des Objektes wurde besonders auf Energiesparendes Bauen geachtet, was durch den aufwendigen KFW 40 Standard dokumentiert wird (Energieklasse A +). Die Kombination von moderner Technik sowie hochwertiger Isolierung führt zu sehr günstigen Heizkosten bzw. Nebenkosten. Alle Wohnungen verfügen über schöne Balkone oder großzügige Terrassen mit guter Besonnung . Jeder Wohnung ist ein Abstellraum im Untergeschoss zugeordnet.
Geniesen Sie den Wohnkomfort eines modernen hellen überwiegend barrierefreien Gebäudes mit neuester Technik.
Das Angebot bezieht sich auf die Wohnung 4 im 1. Obergeschoß - hangseitig 2. Obergeschoß. Sie gelangen über eine geräumige Diele mit Garderobe in die Wohnung. Von der Diele gelangen Sie in das geräumige Bad mit Fenster von ca. 8 m² ausgestattet mit Dusche und Wanne, das gut aufgeteilte Elternschlafzimmer von ca. 17 m², das helle geräumige Kinderzimmer/Büro von ca. 15 m², das Gäste-WC sowie in den Abstellraum. Von der zentralen Diele gelangen Sie desweiteren in den hellen großzügigen Wohn/Eßbereich mit offener Küche von insgesamt 48 m² und Ausgang auf den großen sonnigen Balkon von ca. 18 m². Von hier haben Sie eine herrliche Sicht ins Tal und über die Stadt Koblenz. Der Kochbereich kann auf Wunsch abgetrennt werden. Die Wohnung hat eine Wohnfläche von ca. 117 m². Der Wohnung ist ein Kellerraum zugeordnet.
Es besteht die Möglichkeit Außenstellplätze für 15.000 EUR sowie Tiefgaragenstellplätze für 27.000 EUR zu erwerben. Die Wohnanlage erfüllt die technischen Voraussetzungen um die KFW Darlehen nach den Programmen 297, 298 und dem Programm 300 (Familienförderung) zu ermöglichen.
De Bezugsfertigkeit ist für Frühjahr 2026 vorgesehen.
Steuerlicher Hinweis für Investoren : Die Wohnungen können bei einem Erwerb bis zum Jahr der Fertigstellung und einer Vermietung entsprechend den im Wachstumschanchengesetz aktuell beschlossenen Änderungen der degressiven Abschreibung nunmehr mit jährlich 5 %- bezogen auf den jeweiligen Buchwert/Restwert - abgeschrieben werden. Hierdurch können hohe Steuervorteile erzielt werden. Wir übernehmen keine steuerliche Beratung und keine Haftung für steuerliche Ziele. Hierzu informiert Sie Ihr Steuerberater umfassend.
.
Sonstige Informationen
Der Energieausweis liegt vor.
Dieser wird dem Interessenten vor dem Besichtigungstermin mit dem Exposé zur Verfügung gestellt.
Vereinbaren Sie einen tungs bzw. Besichtigungstermin ! In Zusammenarbeit mit einem Finanzierungsvermittler sind wir Ihnen gerne bei der Gestaltung Ihrer Finanzierung behilflich. Die Zinsen können z.B. auf die Dauer von 10 oder 15 Jahren festgeschrieben werden. Hierdurch können sich Ihre monatlichen Raten nicht verändern !
Die Wohnanlage erfüllt die technischen Voraussetzungen um die KFW Darlehen nach den Programmen 297, 298 und dem Programm 300 (Familienförderung) zu ermöglichen..
Bei den Programmen 297 und 298 sind aufgrund des Standards
KFW 40 je Wohnung Darlehen von 100.000 EUR zu günstigen Zinsen möglich. Die Zinssätze richten sich nach dem Tilgungszeitraum und betragen :
a) bei einer Tilgung innerhalb 10 Jahren 2,31 %
b) bei einer Tilgung innerhalb 25 Jahren 2,87 %
c) bei einer Tilgung innerhalb 35 Jahren 2,96 %.
Die Förderungen sind an keine persönlichen Voraussetzungen gebunden. Sie sind sowohl für die Eigennutzung (Programm 297) sowie für die Vermietung (Programm 298) möglich.
Beim Programmen 300 - Familienförderung sind aufgrund des Standards KFW 40 je Wohnung Darlehen für eine Familie mit einem Kind von 170.000 EUR zu sehr günstigen Zinsen möglich. Die Zinssätze richten sich nach der Zinsfestschreibung und dem Tilgungszeitraum und betragen
1. bei einer Zinsfestschreibung von 10 Jahren:
a) bei einer Tilgung innerhalb 10 Jahren 0,34 %
b) bei einer Tilgung innerhalb 25 Jahren 1,53 %
c) bei einer Tilgung innerhalb 35 Jahren 1,71 %.
2. bei einer Zinsfestschreibung von 20 Jahren:
a) bei einer Tilgung innerhalb 25 Jahren 2,93 %
b) bei einer Tilgung innerhalb 35 Jahren 3,40 %.
Diese Förderungen sind an persönlichen Voraussetzungen gebunden. (zu versteuerndes Einkommen (auch Luxemburg) – 90.000 – Mittelwert 2022 und 2023)
Die Zinssätze verändern sich entsprechend den Vorgaben der KFW.
Die KFW Darlehen können über die jeweils finanzierende Bank mit dem Sitz in Deutschland beantragt und abgewickelt werden. Die erforderliche Bestätigung des Energieberaters kann zeitnah erstellt werden.
Hinweis bei Vermietung: Die Wohnungen können bei einem Erwerb bis zum Jahr der Fertigstellung und einer Vermietung entsprechend den aktuellen Änderungen des Wirtschaftschancengesetzes mit einer degressiven Abschreibung von jährlich 5 % bezogen auf den jeweiligen Buchwert abgeschrieben werden. Hierdurch werden hohe Steuervorteile erzielt. Wir übernehmen weder eine steuerliche Beratung noch die Haftung für steuerliche Ziele. Sprechen Sie mit Ihrem Steuerberater. Dieser berät Sie gerne umfassend und fachgerecht.
Weitere interessante Kauf- oder Mietangebote finden Sie unter www.scherf-immobilien.de
Dieser wird dem Interessenten vor dem Besichtigungstermin mit dem Exposé zur Verfügung gestellt.
Vereinbaren Sie einen tungs bzw. Besichtigungstermin ! In Zusammenarbeit mit einem Finanzierungsvermittler sind wir Ihnen gerne bei der Gestaltung Ihrer Finanzierung behilflich. Die Zinsen können z.B. auf die Dauer von 10 oder 15 Jahren festgeschrieben werden. Hierdurch können sich Ihre monatlichen Raten nicht verändern !
Die Wohnanlage erfüllt die technischen Voraussetzungen um die KFW Darlehen nach den Programmen 297, 298 und dem Programm 300 (Familienförderung) zu ermöglichen..
Bei den Programmen 297 und 298 sind aufgrund des Standards
KFW 40 je Wohnung Darlehen von 100.000 EUR zu günstigen Zinsen möglich. Die Zinssätze richten sich nach dem Tilgungszeitraum und betragen :
a) bei einer Tilgung innerhalb 10 Jahren 2,31 %
b) bei einer Tilgung innerhalb 25 Jahren 2,87 %
c) bei einer Tilgung innerhalb 35 Jahren 2,96 %.
Die Förderungen sind an keine persönlichen Voraussetzungen gebunden. Sie sind sowohl für die Eigennutzung (Programm 297) sowie für die Vermietung (Programm 298) möglich.
Beim Programmen 300 - Familienförderung sind aufgrund des Standards KFW 40 je Wohnung Darlehen für eine Familie mit einem Kind von 170.000 EUR zu sehr günstigen Zinsen möglich. Die Zinssätze richten sich nach der Zinsfestschreibung und dem Tilgungszeitraum und betragen
1. bei einer Zinsfestschreibung von 10 Jahren:
a) bei einer Tilgung innerhalb 10 Jahren 0,34 %
b) bei einer Tilgung innerhalb 25 Jahren 1,53 %
c) bei einer Tilgung innerhalb 35 Jahren 1,71 %.
2. bei einer Zinsfestschreibung von 20 Jahren:
a) bei einer Tilgung innerhalb 25 Jahren 2,93 %
b) bei einer Tilgung innerhalb 35 Jahren 3,40 %.
Diese Förderungen sind an persönlichen Voraussetzungen gebunden. (zu versteuerndes Einkommen (auch Luxemburg) – 90.000 – Mittelwert 2022 und 2023)
Die Zinssätze verändern sich entsprechend den Vorgaben der KFW.
Die KFW Darlehen können über die jeweils finanzierende Bank mit dem Sitz in Deutschland beantragt und abgewickelt werden. Die erforderliche Bestätigung des Energieberaters kann zeitnah erstellt werden.
Hinweis bei Vermietung: Die Wohnungen können bei einem Erwerb bis zum Jahr der Fertigstellung und einer Vermietung entsprechend den aktuellen Änderungen des Wirtschaftschancengesetzes mit einer degressiven Abschreibung von jährlich 5 % bezogen auf den jeweiligen Buchwert abgeschrieben werden. Hierdurch werden hohe Steuervorteile erzielt. Wir übernehmen weder eine steuerliche Beratung noch die Haftung für steuerliche Ziele. Sprechen Sie mit Ihrem Steuerberater. Dieser berät Sie gerne umfassend und fachgerecht.
Weitere interessante Kauf- oder Mietangebote finden Sie unter www.scherf-immobilien.de
Lage des Objektes
Koblenz .- Stadtteil Horchheimer Höhe. Dieser Stadtteil wurde als Gartenstadt konzipiert und ist ein idealer Stadtteill für alle Leute, die gerne ruhig und "Im Grünen Wohnen" möchten, aber trotzdem schnell in der Stadt Koblenz sind um alle täglichen Erledigungen durchzuführen. Sie sind schnell im Wald und können hier herrlich beim Spazieren Gehen oder Joggen vom täglichen Stress entspannen.
Das Objekt entsteht am Ende einer Sackgasse ohne jeglichen Durchgangsverkehr. Durch die Hanglage ist eine schöne Aussicht gegeben.
Das Objekt entsteht am Ende einer Sackgasse ohne jeglichen Durchgangsverkehr. Durch die Hanglage ist eine schöne Aussicht gegeben.
Anbieter kontaktieren
Anbieter
Scherf Profi Immobilienservice GmbH
Paulinstraße 104
54292 Trier
Kontakt
| Telefon | 0651 97878-0 |
| Fax | 0651 97878-78 |
| Website | www.scherf-immobilien.de |
