* Erdgeschosswohnung mit Potenzial – ideal für Handwerker oder Kapitalanleger *
195.000 €
Kaufpreis
59 m²
Wohnfläche
2
Zimmer
immobilien.de Nr.: 9363984
Objektnummer: 383191
Dateien
Preise & Kosten
| Kaufpreis | 195.000 € |
| Nebenkosten | 255 € |
| Heizkosten enthalten | Ja |
| Maklerprovision | 3,57% vom Kaufpreis (inkl. MwSt.) |
Größe & Zustand
| Wohnfläche | 59 m² |
| Zimmer | 2 |
| Baujahr | 1963 |
| Verfügbar ab | per absprache |
| Zustand | Sanierungsbeduerftig |
Energie
| Heizungsart | Zentralheizung |
| Energieträger/Befeuerung | Öl |
Objektbeschreibung
Ausstattungsmerkmale:
-
2-Zimmer-Erdgeschosswohnung
-
Helle Räume mit gutem Grundriss
-
Separate Küche
-
PVC-Isolierverglasung
-
Personenaufzug im Haus
-
Hausmeister- und Winterdienst vorhanden
-
Balkon mit angenehmer Größe
-
Objekt voll unterkellert, separater Kellerraum vorhanden
-
Nicht vermietet – sofort bezugsfrei
-
Rücklagen: ca. 70.000 € (gesamt)
Empfohlene Renovierungsarbeiten:
-
Innenausbau komplett (Bodenbeläge, Wände, Badezimmer und Küche)
Ausstattung
| Anzahl der Etagen im Haus | 8 |
| Inserat befindet sich im Stockwerk | 1 |
| Bad | 1 |
| Bad | Wanne, Fenster |
| Boden | Fliesen, Teppich, Estrich |
| Balkone | 1 |
| Keller |
Nafi Immobilien bietet Ihnen in zentrumsnaher Lage eine attraktive 2-Zimmer-Erdgeschosswohnung zum Kauf an.
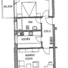
Die Wohnung befindet sich in einem 1963 erbauten Mehrfamilienhaus und verteilt ihre ca. 59 m² Wohnfläche auf zwei gut geschnittene Zimmer. Sie überzeugt vor allem durch ihre durchdachte Raumaufteilung und das helle Wohnambiente.
Das geräumige Wohnzimmer bietet ausreichend Platz für einen gemütlichen Wohn- und Essbereich. Von hier aus gelangen Sie auf den großzügigen Balkon, der zum Entspannen und Verweilen einlädt.Das Schlafzimmer bietet gute Stellmöglichkeiten für Ihre Möbel und schafft eine angenehme Rückzugsmöglichkeit.Das Tageslichtbad verfügt über ausreichend Platz und sorgt mit seiner freundlichen Atmosphäre für zusätzlichen Komfort.
Das Gebäude ist voll unterkellert – hier steht Ihnen ein eigener Kellerraum zur Verfügung, der zusätzlichen Stauraum bietet und das Angebot perfekt abrundet.
Sie sind auf der Suche nach einer passenden Wohnung für sich selbst oder nach einer soliden Kapitalanlage?Dann ist dieses Angebot genau das Richtige für Sie. Unsere freundlichen Mitarbeiter freuen sich auf Ihre Kontaktaufnahme und vereinbaren gerne einen Besichtigungstermin mit Ihnen.
Die Wohnung befindet sich in einem 1963 erbauten Mehrfamilienhaus und verteilt ihre ca. 59 m² Wohnfläche auf zwei gut geschnittene Zimmer. Sie überzeugt vor allem durch ihre durchdachte Raumaufteilung und das helle Wohnambiente.
Das geräumige Wohnzimmer bietet ausreichend Platz für einen gemütlichen Wohn- und Essbereich. Von hier aus gelangen Sie auf den großzügigen Balkon, der zum Entspannen und Verweilen einlädt.Das Schlafzimmer bietet gute Stellmöglichkeiten für Ihre Möbel und schafft eine angenehme Rückzugsmöglichkeit.Das Tageslichtbad verfügt über ausreichend Platz und sorgt mit seiner freundlichen Atmosphäre für zusätzlichen Komfort.
Das Gebäude ist voll unterkellert – hier steht Ihnen ein eigener Kellerraum zur Verfügung, der zusätzlichen Stauraum bietet und das Angebot perfekt abrundet.
Sie sind auf der Suche nach einer passenden Wohnung für sich selbst oder nach einer soliden Kapitalanlage?Dann ist dieses Angebot genau das Richtige für Sie. Unsere freundlichen Mitarbeiter freuen sich auf Ihre Kontaktaufnahme und vereinbaren gerne einen Besichtigungstermin mit Ihnen.
Sonstige Informationen
Bilder folgen.
. Info zum Energieausweis: liegt zur Besichtigung vor
. Info zum Energieausweis: liegt zur Besichtigung vor
Anbieter
NAFI Trägergesellschaft
Oberer Marktplatz 7
73614 Schorndorf
Kontakt
| Telefon | +49 7181 9643510 |
| Fax | +49 7181 9643599 |
| Website | www.nafi-t.de |
