3150 - Adorf – Erstbezug: Exklusive 2-Zimmer-Eigentumswohnung
162.900 €
Kaufpreis
62,52 m²
Wohnfläche
2
Zimmer
immobilien.de Nr.: 9363818
Objektnummer: 123209739#V9QLO
Preise & Kosten
| Kaufpreis | 162.900 € |
| Nebenkosten | keine Angabe |
| Maklerprovision | Provisionsfrei |
Größe & Zustand
| Wohnfläche | 62,52 m² |
| Zimmer | 2 |
| Baujahr | 2026 |
| Verfügbar ab | keine Angabe |
Energie
| Energieausweistyp | Bedarfsausweis |
| Ausstellungsdatum | 09. 10. 2025 |
| Gültig bis | 08.10.2035 |
| Baujahr (laut Energieausweis) | 2026 |
| Energieeffizienzklasse | A |
| Endenergiebedarf | 32.8 |
| Wesentlicher Energieträger | Wärmepumpe |
| Energieträger/Befeuerung | Luft-Wärme-Pumpe |
Objektbeschreibung
Objektnummer: 3150 - Adorf – Erstbezug: Exklusive 2-Zimmer-Eigentumswohnung
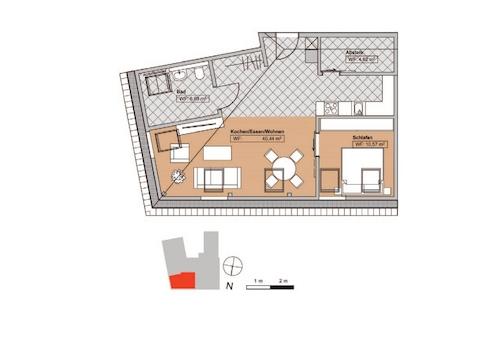
Diese ansprechende und moderne Neubau-Wohnung (Nr. 13) wird Sie begeistern! Sie befindet sich im neuerbauten Dachgeschoss eines stilvollen, ursprünglich im Jahr 1846 als Königliches Amtsgericht erbautem, Gebäudes und wird in wenigen Monaten fertiggestellt. Die Wohnung ist sowohl über einen Fahrstuhl als auch über das Treppenhaus zu erreichen. Auf ca. 62,52 m² Wohnfläche befindet sich ein offener und einladender Wohn- und Essbereich mit Küche, ein Schlafzimmer, ein Abstellraum sowie ein Bad. Zu der Wohnung gehören weiterhin ein eigener Kellerraum. Gestaltet werden die Wohnungen im modernen Design, vereint mit einem gewissen Landhauscharme durch beispielsweise Echtholzparkett. Beheizt wird diese Wohnung mit einer Luftwärmepumpe. Unterstützend hierzu steht eine Gasheizung zur Verfügung. Fußbodenheizung wird Teil der Ausstattung sein und sorgt für ein angenehmes Raumklima und niedrige Energiekosten. Zu diesem Objekt liegt uns ein Energiebedarfsausweis vom 09.10.2025, gültig bis zum 08.10.2035 vor. Der Energiebedarf ist mit 32,8 kWh/(m²*a) angegeben, die entspricht der Effizienzklasse A.
Nähere Informationen und Unterlagen erhalten Sie gerne auf Anfrage.
+++ Ständig über 250 weitere Kauf- und Mietangebote auf www.die-immobilienprofis.de +++
Diese ansprechende und moderne Neubau-Wohnung (Nr. 13) wird Sie begeistern! Sie befindet sich im neuerbauten Dachgeschoss eines stilvollen, ursprünglich im Jahr 1846 als Königliches Amtsgericht erbautem, Gebäudes und wird in wenigen Monaten fertiggestellt. Die Wohnung ist sowohl über einen Fahrstuhl als auch über das Treppenhaus zu erreichen. Auf ca. 62,52 m² Wohnfläche befindet sich ein offener und einladender Wohn- und Essbereich mit Küche, ein Schlafzimmer, ein Abstellraum sowie ein Bad. Zu der Wohnung gehören weiterhin ein eigener Kellerraum. Gestaltet werden die Wohnungen im modernen Design, vereint mit einem gewissen Landhauscharme durch beispielsweise Echtholzparkett. Beheizt wird diese Wohnung mit einer Luftwärmepumpe. Unterstützend hierzu steht eine Gasheizung zur Verfügung. Fußbodenheizung wird Teil der Ausstattung sein und sorgt für ein angenehmes Raumklima und niedrige Energiekosten. Zu diesem Objekt liegt uns ein Energiebedarfsausweis vom 09.10.2025, gültig bis zum 08.10.2035 vor. Der Energiebedarf ist mit 32,8 kWh/(m²*a) angegeben, die entspricht der Effizienzklasse A.
Nähere Informationen und Unterlagen erhalten Sie gerne auf Anfrage.
+++ Ständig über 250 weitere Kauf- und Mietangebote auf www.die-immobilienprofis.de +++
Sonstige Informationen
Sie haben näheres Interesse an einer von uns angebotenen Immobilie und möchten schnell weitere Informationen?
Klicken Sie bitte auf “Kontakt aufnehmen” bzw. “Nachricht schreiben”, füllen Sie das Formular bitte vollständig mit Ihren Kontaktdaten (Postanschrift, Telefonnummer und Emailadresse) aus. Im Anschluss erhalten Sie automatisiert von unserem Anfrage-Center eine E-Mail von anfrage@die-immobilienprofis.de
Wenn Sie dann auf den Link "ZUM EXPOSÈ" drücken und einige Hinweise zum Datenschutz, unsere Geschäftsbedingungen und Ihrem Widerrufsrecht bestätigen, dann kommen Sie zum interaktiven Exposé des von Ihnen angeforderten Objektes. Im oberen Bereich ist dann der Button "ADRESSE ANZEIGEN" sichtbar, der Ihnen nach Bestätigung der Käuferprovision - die natürlich nur im Erfolgsfall, also nach dem Notartermin zu bezahlen ist - einen internen Bereich öffnet, wo einerseits die Objektadresse sichtbar wird bzw. im unteren Teil des Exposés weitere Unterlagen zum Download bereit hält.
Sie haben weitere Fragen bzw. möchten mehr über das hier angebotene Objekt erfahren ? Dann kontaktieren Sie uns bitte - bevorzugt über das Anfrageformular oder rufen Sie uns an. Sie erreichen uns Montag bis Freitag von 9.00 bis 17.00 Uhr in unserer Zentrale im ImmobilienSHOP Hof, Ludwigstraße 52 unter unserer Service-Hotline 09281.860076.
Wenn Sie uns schriftlich kontaktieren bitten wir Sie, Ihre Kontaktdaten vollständig zu übermitteln (kompletter Name, Adresse, Telefonnummer, E-Mail-Adresse). Im Regelfall erfolgt die Bearbeitung Ihrer Anfrage dann innerhalb von 48 Stunden. Sollten Sie in dieser Zeit keine Antwort auf Ihre Anfrage von uns erhalten, schauen Sie bitte in Ihren SPAM-Ordner bzw. stellen Sie sicher, dass Ihr E-Mail-Postfach auch ggfls. größere Datenmengen aufnehmen kann. Oder rufen Sie uns einfach kurz an. Sollten Sie einen Innenbesichtigungstermin wünschen, kontaktieren Sie uns bitte ebenfalls.
Wir - DIE IMMOBILIENPROFIS - stehen Ihnen nunmehr bereits seit 1991 für "Alles rund um die Immobilie" kompetent mit Rat und Tat zur Seite. Unser Team aus Architekten, Gutachtern, Sachverständigen, Energieberatern, Finanzierungsexperten, Hausverwaltern, Neubauberatern und Immobilienprofis ist jederzeit gerne für Sie da. Auch empfehlen wir Ihnen einen Besuch unserer Homepage www.die-immobilienprofis.de, auf welcher Sie über 200 ständig wechselnde Kauf-, Neubau- und Mietobjekte finden können, nützliche Tipps und Immobiliennews erhalten, sowie auch Hunderte Referenzen und Bewertungen unserer Kunden einsehen können. Hinweise: Wir behalten uns ausdrücklich vor, dass bei einer erhöhten Objektnachfrage und mehreren Kaufinteressenten wir in ein Angebotsverfahren übergehen. Die in unseren Objektangeboten enthaltenen Angaben basieren auf uns erteilten Informationen der Verkäufer. Wir sind bemüht, über Objekte und Vertragspartner möglichst vollständige und richtige Angaben zu erhalten. Eine Haftung für deren Richtigkeit und Vollständigkeit können wir aber nicht übernehmen. Die Immobilienprofis ...Ihre Immobilienmakler mit Herz in Hof und Bad Steben.
Klicken Sie bitte auf “Kontakt aufnehmen” bzw. “Nachricht schreiben”, füllen Sie das Formular bitte vollständig mit Ihren Kontaktdaten (Postanschrift, Telefonnummer und Emailadresse) aus. Im Anschluss erhalten Sie automatisiert von unserem Anfrage-Center eine E-Mail von anfrage@die-immobilienprofis.de
Wenn Sie dann auf den Link "ZUM EXPOSÈ" drücken und einige Hinweise zum Datenschutz, unsere Geschäftsbedingungen und Ihrem Widerrufsrecht bestätigen, dann kommen Sie zum interaktiven Exposé des von Ihnen angeforderten Objektes. Im oberen Bereich ist dann der Button "ADRESSE ANZEIGEN" sichtbar, der Ihnen nach Bestätigung der Käuferprovision - die natürlich nur im Erfolgsfall, also nach dem Notartermin zu bezahlen ist - einen internen Bereich öffnet, wo einerseits die Objektadresse sichtbar wird bzw. im unteren Teil des Exposés weitere Unterlagen zum Download bereit hält.
Sie haben weitere Fragen bzw. möchten mehr über das hier angebotene Objekt erfahren ? Dann kontaktieren Sie uns bitte - bevorzugt über das Anfrageformular oder rufen Sie uns an. Sie erreichen uns Montag bis Freitag von 9.00 bis 17.00 Uhr in unserer Zentrale im ImmobilienSHOP Hof, Ludwigstraße 52 unter unserer Service-Hotline 09281.860076.
Wenn Sie uns schriftlich kontaktieren bitten wir Sie, Ihre Kontaktdaten vollständig zu übermitteln (kompletter Name, Adresse, Telefonnummer, E-Mail-Adresse). Im Regelfall erfolgt die Bearbeitung Ihrer Anfrage dann innerhalb von 48 Stunden. Sollten Sie in dieser Zeit keine Antwort auf Ihre Anfrage von uns erhalten, schauen Sie bitte in Ihren SPAM-Ordner bzw. stellen Sie sicher, dass Ihr E-Mail-Postfach auch ggfls. größere Datenmengen aufnehmen kann. Oder rufen Sie uns einfach kurz an. Sollten Sie einen Innenbesichtigungstermin wünschen, kontaktieren Sie uns bitte ebenfalls.
Wir - DIE IMMOBILIENPROFIS - stehen Ihnen nunmehr bereits seit 1991 für "Alles rund um die Immobilie" kompetent mit Rat und Tat zur Seite. Unser Team aus Architekten, Gutachtern, Sachverständigen, Energieberatern, Finanzierungsexperten, Hausverwaltern, Neubauberatern und Immobilienprofis ist jederzeit gerne für Sie da. Auch empfehlen wir Ihnen einen Besuch unserer Homepage www.die-immobilienprofis.de, auf welcher Sie über 200 ständig wechselnde Kauf-, Neubau- und Mietobjekte finden können, nützliche Tipps und Immobiliennews erhalten, sowie auch Hunderte Referenzen und Bewertungen unserer Kunden einsehen können. Hinweise: Wir behalten uns ausdrücklich vor, dass bei einer erhöhten Objektnachfrage und mehreren Kaufinteressenten wir in ein Angebotsverfahren übergehen. Die in unseren Objektangeboten enthaltenen Angaben basieren auf uns erteilten Informationen der Verkäufer. Wir sind bemüht, über Objekte und Vertragspartner möglichst vollständige und richtige Angaben zu erhalten. Eine Haftung für deren Richtigkeit und Vollständigkeit können wir aber nicht übernehmen. Die Immobilienprofis ...Ihre Immobilienmakler mit Herz in Hof und Bad Steben.
Lage des Objektes
Diese herrliche Eigentumswohnung befindet sich in Adorf im Vogtland direkt am Marktplatz. Die Stadt Adorf mit ca. 4.700 Einwohnern liegt im Südwesten des Freistaates Sachsen und im Herzen des Vogtlandes. Adorf ist am Ufer der Weißen Elster gelegen und bildet einen hervorragenden Ausgangspunkt für Ausflüge ins sächsische, böhmische, bayerische und thüringische Vogtland. Als Kleinstadt bietet Adorf im ländlichen Raum des idyllischen Vogtlandes viel Lebensqualität. Große Flächenteile befinden sich im Landschaftsschutzgebiet und im Naturpark Erzgebirge/Vogtland. Die Bürger der Stadt verfügen über eine Reihe von Einrichtungen für den täglichen Bedarf, die das Leben in Adorf lebenswert machen: Kindergärten, Grund- und Mittelschule, Stadtbibliothek, Museen, Waldbad, Krankenhaus, verschiedene Fachärzte, Kirchen usw. Darüber hinaus gibt es in der Stadt natürlich mehrere Einkaufsmöglichkeiten sowie Gaststätten und Pensionen. Das Staatsbad Bad Elster ist nur etwa 5 km entfernt. Das vogtländische Plauen mit Anschlussstelle zur A 72 erreicht man in ca. 25 km und das bayrische Hof ist ca. 30 km entfernt.
Anbieter kontaktieren
Anbieter
Die Immobilienprofis HK Sachverständigen- u. Immobilienkanzlei GmbH & Co. KG
Ludwigstr. 52
95028 Hof/Saale
Kontakt
| Telefon | +49 9281 860076 |
| Website | www.die-immobilienprofis.de |
