GROßZÜGIG MIT HALLE UND SCHROTTPLATZ LIZENZ
950.000 €
Kaufpreis
immobilien.de Nr.: 9354430
Objektnummer: 295172
Preise & Kosten
| Kaufpreis | 950.000 € |
| Nebenkosten | keine Angabe |
| Maklerprovision | 4.76 % |
Größe & Zustand
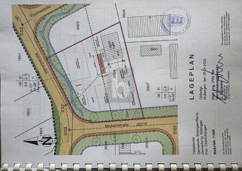
| Grundstücksfläche | 2.200 m² |
| Verfügbar ab | keine Angabe |
Objektbeschreibung
Dieses attraktive Grundstück bietet eine hervorragende Gelegenheit für Investoren und Bauherren, die nach einer vielseitig nutzbaren Fläche in einer begehrten Lage suchen. Mit seiner großzügigen Fläche und der idyllischen Umgebung eignet es sich ideal für verschiedene Bauvorhaben. Alternativ können Sie gegen Aufpreis den Schrott- und Fahrzeugverwertungsbetrieb übernehmen und direkt weiterarbeiten. Highlights bei Übernahme:
Schrottpressen und Fahrzeuge wie Abschlepper
Lagerhalle (ca. 150 m²) und Bürogebäude
Sofortiger Start im laufenden Betrieb möglich
Dieses BETTERHOMES-Angebot zeichnet sich durch folgende Vorteile aus:
- top-Lage im Gewerbegebiet Böbingen
- großzügige Grundstücksfläche von 2.200 m²
- flexible Übergabeoption: leer oder mit bestehendem Betrieb
- seltene Gelegenheit keine vergleichbaren gewerblichen Anbieter in der Umgebung
- sofortige Weiterarbeit im bestehenden Geschäft möglich
- und, und, und ...
Interessiert? Kontaktieren Sie uns für eine unverbindliche Besichtigung auch Online-Besichtigung möglich!
Nichts Passendes gefunden? Über 1'300 weitere Angebote finden Sie unter betterhomes.de.
Selber eine Immobilie zu vermarkten?
Profitieren Sie von unserem Know-how: https://www.betterhomes.de/de/profitieren
Sie möchten eine Immobilie schätzen lassen?
Erfahren Sie jetzt ihren Wert über unsere Gratis-Schätzung, sofort und unverbindlich!
https://www.betterhomes.de/de/knowledge/estimation
Schrottpressen und Fahrzeuge wie Abschlepper
Lagerhalle (ca. 150 m²) und Bürogebäude
Sofortiger Start im laufenden Betrieb möglich
Dieses BETTERHOMES-Angebot zeichnet sich durch folgende Vorteile aus:
- top-Lage im Gewerbegebiet Böbingen
- großzügige Grundstücksfläche von 2.200 m²
- flexible Übergabeoption: leer oder mit bestehendem Betrieb
- seltene Gelegenheit keine vergleichbaren gewerblichen Anbieter in der Umgebung
- sofortige Weiterarbeit im bestehenden Geschäft möglich
- und, und, und ...
Interessiert? Kontaktieren Sie uns für eine unverbindliche Besichtigung auch Online-Besichtigung möglich!
Nichts Passendes gefunden? Über 1'300 weitere Angebote finden Sie unter betterhomes.de.
Selber eine Immobilie zu vermarkten?
Profitieren Sie von unserem Know-how: https://www.betterhomes.de/de/profitieren
Sie möchten eine Immobilie schätzen lassen?
Erfahren Sie jetzt ihren Wert über unsere Gratis-Schätzung, sofort und unverbindlich!
https://www.betterhomes.de/de/knowledge/estimation
Anbieter
BETTERHOMES Deutschland GmbH
Flughafenstraße 59
70629 Stuttgart
Kontakt
| Telefon | +49 711 959 699 22 |
| Website | www.betterhomes.de |
