Vermietete Eigentumswohnung in Leipzig mit grünem Ausblick !!
115.000 €
Kaufpreis
57 m²
Wohnfläche
3
Zimmer
immobilien.de Nr.: 9351131
Objektnummer: 01KAX7D2BZ4Q27HKJ7VZFCXAXA
Preise & Kosten
| Kaufpreis | 115.000 € |
| Nebenkosten | keine Angabe |
| Maklerprovision | 3.57% inkl. 19.00% MwSt. |
Größe & Zustand
| Wohnfläche | 57 m² |
| Grundstücksfläche | 0 m² |
| Zimmer | 3 |
| Baujahr | 1925 |
| Verfügbar ab | keine Angabe |
Objektbeschreibung
Zum Verkauf steht eine gepflegte und vermietete Eigentumswohnung in einer ruhigen und zentralen Wohnlage von Leipzig.
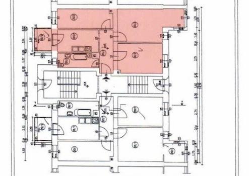
Ein guter Grundriss zeichnet die kleine 3 Zimmerwohnung aus und ist folgendermaßen aufgeteilt: Flur, Schlafzimmer, Bad mit Wanne und Fenster, Wohnzimmer, Kinder - oder Arbeitszimmer, Küche mit Einbauküche - Waschmaschine und Zugang zum Balkon.
Parkettboden und in der Küche / Bad gefliest.
Alle Zimmer sind vom Flur aus begehbar.
Zur Wohnung gehört noch ein Kellerabteil.
Die Kaltmiete beträgt : - 410 € -
Ein guter Grundriss zeichnet die kleine 3 Zimmerwohnung aus und ist folgendermaßen aufgeteilt: Flur, Schlafzimmer, Bad mit Wanne und Fenster, Wohnzimmer, Kinder - oder Arbeitszimmer, Küche mit Einbauküche - Waschmaschine und Zugang zum Balkon.
Parkettboden und in der Küche / Bad gefliest.
Alle Zimmer sind vom Flur aus begehbar.
Zur Wohnung gehört noch ein Kellerabteil.
Die Kaltmiete beträgt : - 410 € -
