traumhafte 3- Zi/Whg/Balkon/ Parkett/ EBK- Option
2.120 €
Kaltmiete (netto)
105 m²
Wohnfläche
3
Zimmer
immobilien.de Nr.: 9350457
Objektnummer: 404810
Dateien
Preise & Kosten
| Kaltmiete (netto) | 2.120 € |
| Nebenkosten | 200 € |
| Heizkosten | 250 € |
| Kaution | 6.360 € |
| Stellplatz Tiefgarage Miete | 130 € |
Größe & Zustand
| Wohnfläche | 105 m² |
| Zimmer | 3 |
| Baujahr | 2023 |
| Verfügbar ab | 01.05.2026 |
| Zustand | Neuwertig |
Energie
| Energieausweistyp | Bedarfsausweis |
| Energieeffizienzklasse | B |
| Endenergiebedarf | 57 |
| Heizungsart | Fußbodenheizung |
| Energieträger/Befeuerung | Fernwärme |
Objektbeschreibung
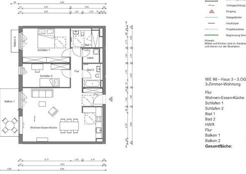
Erleben Sie Wohnkomfort auf höchstem Niveau in dieser neuwertigen 3-Zimmer-Wohnung im 3. Obergeschoss eines modernen Mehrfamilienhauses in Berlin-Grünau. Die luxuriös ausgestattete Wohnung mit ca. 105 m² Wohnfläche wurde 2023 erbaut. Sie verfügt über zwei Badezimmer, eine hochwertige Einbauküche ( Option gegen Abstandszahlung ) und einen Balkon, der zum Entspannen einlädt. Ein Aufzug erleichtert den Zugang zu allen Etagen, und ein Keller bietet zusätzlichen Stauraum. Ein eigener Garagenstellplatz rundet das Angebot ab. Die Wohnung wird ab dem 01.05.2026 bezugsfrei. Haustiere sind leider nicht gestattet.
Das Wohnquartier 52 ° Grad Nord wird seit 2016 nach und nach neu errichtet und es sind zahlreiche neue Wohngebäude entstanden.
Es besticht durch seine außergewöhnliche Lage direkt an der
Dahme sowie der hauseigenen und privaten Wasserfläche.
Es erwartet Sie eine atemberaubende Architektur, gepaart mit
einem hohen Maß an Wohnqualtität und Liebe zum Detail.
Sie kommen in den Genuß, die Wasserlage und den Blick auf die
Dahme in vollen Zügen genießen zu können.
Das Wohnquartier 52° Grad direkt am Ufer der Dahme bietet
zahlreiche Orte um die Seele baumeln zu lassen, trinken Sie
einen Cappuccino im quartierseigenen Café, oder setzen Sie
sich direkt an die Dahme.
Das Wohnquartier 52 ° Grad Nord wird seit 2016 nach und nach neu errichtet und es sind zahlreiche neue Wohngebäude entstanden.
Es besticht durch seine außergewöhnliche Lage direkt an der
Dahme sowie der hauseigenen und privaten Wasserfläche.
Es erwartet Sie eine atemberaubende Architektur, gepaart mit
einem hohen Maß an Wohnqualtität und Liebe zum Detail.
Sie kommen in den Genuß, die Wasserlage und den Blick auf die
Dahme in vollen Zügen genießen zu können.
Das Wohnquartier 52° Grad direkt am Ufer der Dahme bietet
zahlreiche Orte um die Seele baumeln zu lassen, trinken Sie
einen Cappuccino im quartierseigenen Café, oder setzen Sie
sich direkt an die Dahme.
Ausstattung
| Anzahl der Etagen im Haus | 3 |
| Inserat befindet sich im Stockwerk | 3 |
| Küche | Einbauküche |
| Bad | 2 |
| Bad | Dusche, Wanne |
| Boden | Fliesen, Parkett |
| Balkone | 1 |
| Terrassen | 0 |
| Fahrstuhl | |
| Keller |
Balkon, Keller, Fahrstuhl, Vollbad, Duschbad, Einbauküche, Gäste-WC, Parkett, Fliesen
Bemerkungen:
- 2 Balkone
- Deckenhöhe 2,80m
- Design- Tischler/ Einbauküche-Option
- diverse vom Tischler eingebaute Einbauschränke- Option
- Einbauschränke können gegen eine Abstandszahlung übernommen werden
- Parkett
- Fußbodenheizung
- Abstellkammer
- Gäste WC/ Dusche
- Wannenbad mit Dusche
- Keller
- bodentiefe Fenster
Bemerkungen:
- 2 Balkone
- Deckenhöhe 2,80m
- Design- Tischler/ Einbauküche-Option
- diverse vom Tischler eingebaute Einbauschränke- Option
- Einbauschränke können gegen eine Abstandszahlung übernommen werden
- Parkett
- Fußbodenheizung
- Abstellkammer
- Gäste WC/ Dusche
- Wannenbad mit Dusche
- Keller
- bodentiefe Fenster
Sonstige Informationen
Heizungsart: Fußbodenheizung
Energieträger: Fernwärme
Alle Angaben wurde mit Sorgfalt geprüft, beruhen jedoch auf
Aussagen Dritter.
notwendige Unterlagen:
- PA Kopie
- Gehaltsnachweise/ oder BWA
- Schufa Auskunft aktuell
- Mietschuldenfreiheit vom Vorvermieter
Haben wir Ihr Interesse geweckt?
Verantwortlich für den Inhalt:
ImmoNova Berlin
Teichmummelring 33
12527 Berlin
vertreten durch:
Herrn Ronny Stropahl
Kontakt:
Mail: info@immonovaberlin.de
Steuernummer: 18/550/01788
Gewerbeerlaubnis nach §34c GewO:
Zuständige Aufsichtsbehörde
nach §34c GewO ist das
Bezirksamt Tempelhof-Schöneberg von Berlin
Tempelhofer Damm 165
12099 Berlin
Hinweis:
Die EU-Kommission bietet die Möglichkeit zur Online-Streitbeilegung auf einer von ihr betriebenen Online-Plattform. Diese Plattform ist über den externen Link http://ec.europa.eu/consumers/odr/ zu erreichen. Zu einer Teilnahme an einem Schlichtungsverfahren sind wir nicht verpflichtet und können die Teilnahme an einem solchen Verfahren leider auch nicht anbieten.
Makleranfragen nicht erwünscht. Nach § 7 UWG sind unaufgeforderte Kontaktaufnahmen durch Makler ohne ausdrückliche Einwilligung des Empfängers verboten!
ohne-makler (OM) ist weder Anbieter noch Vermittler der Immobilie. OM betreibt eine Plattform für Immobilieneigentümer, die unter anderem die gleichzeitige Veröffentlichung einzelner Inserate auf mehreren Immobilienportalen ermöglicht. Die Inhalte dieser Inserate werden ausschließlich von Dritten verantwortet. Für die Richtigkeit, Vollständigkeit oder Rechtmäßigkeit der Angaben übernimmt OM keine Haftung. Hinweise auf mögliche Rechtsverstöße können jederzeit gemeldet werden und werden nach Prüfung umgehend bearbeitet.
Energieträger: Fernwärme
Alle Angaben wurde mit Sorgfalt geprüft, beruhen jedoch auf
Aussagen Dritter.
notwendige Unterlagen:
- PA Kopie
- Gehaltsnachweise/ oder BWA
- Schufa Auskunft aktuell
- Mietschuldenfreiheit vom Vorvermieter
Haben wir Ihr Interesse geweckt?
Verantwortlich für den Inhalt:
ImmoNova Berlin
Teichmummelring 33
12527 Berlin
vertreten durch:
Herrn Ronny Stropahl
Kontakt:
Mail: info@immonovaberlin.de
Steuernummer: 18/550/01788
Gewerbeerlaubnis nach §34c GewO:
Zuständige Aufsichtsbehörde
nach §34c GewO ist das
Bezirksamt Tempelhof-Schöneberg von Berlin
Tempelhofer Damm 165
12099 Berlin
Hinweis:
Die EU-Kommission bietet die Möglichkeit zur Online-Streitbeilegung auf einer von ihr betriebenen Online-Plattform. Diese Plattform ist über den externen Link http://ec.europa.eu/consumers/odr/ zu erreichen. Zu einer Teilnahme an einem Schlichtungsverfahren sind wir nicht verpflichtet und können die Teilnahme an einem solchen Verfahren leider auch nicht anbieten.
Makleranfragen nicht erwünscht. Nach § 7 UWG sind unaufgeforderte Kontaktaufnahmen durch Makler ohne ausdrückliche Einwilligung des Empfängers verboten!
ohne-makler (OM) ist weder Anbieter noch Vermittler der Immobilie. OM betreibt eine Plattform für Immobilieneigentümer, die unter anderem die gleichzeitige Veröffentlichung einzelner Inserate auf mehreren Immobilienportalen ermöglicht. Die Inhalte dieser Inserate werden ausschließlich von Dritten verantwortet. Für die Richtigkeit, Vollständigkeit oder Rechtmäßigkeit der Angaben übernimmt OM keine Haftung. Hinweise auf mögliche Rechtsverstöße können jederzeit gemeldet werden und werden nach Prüfung umgehend bearbeitet.
Lage des Objektes
Die angebotene Wohnung befindet sich im Stadtteil Grünau (Treptow-Köpenick) in Berlin. Grünau zeichnet sich durch eine moderate Bevölkerungsdichte und eine gute Mischung aus jungen Familien und älteren Bewohnern aus. Die öffentliche Verkehrsanbindung ist hervorragend, mit der S-Bahn-Linie S8 und den Buslinien 160 und 164, die eine schnelle Erreichbarkeit des Stadtzentrums und umliegender Gebiete gewährleisten. Die Nachbarschaft gilt als sicher und bietet eine angenehme, ruhige Atmosphäre, die besonders für junge Familien und Berufstätige attraktiv ist.
Infrastruktur (im Umkreis von 5 km):
Apotheke, Lebensmittel-Discount, Allgemeinmediziner, Kindergarten, Grundschule, Realschule, Gymnasium, Gesamtschule, Öffentliche Verkehrsmittel
Infrastruktur (im Umkreis von 5 km):
Apotheke, Lebensmittel-Discount, Allgemeinmediziner, Kindergarten, Grundschule, Realschule, Gymnasium, Gesamtschule, Öffentliche Verkehrsmittel
