Schauen - Mieten - Wohnen
250 €
Kaltmiete (netto)
420 €
Warmmiete
47,77 m²
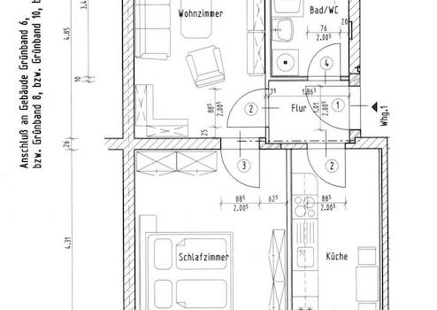
Wohnfläche
47,77 m²
Nutzfläche
2
Zimmer
immobilien.de Nr.: 9350414
Objektnummer: 2029/50394/1020
Preise & Kosten
| Kaltmiete (netto) | 250 € |
| Warmmiete | 420 € |
| Nebenkosten | 80 € |
| Heizkosten | 90 € |
| Kaution | 500,00 € |
Größe & Zustand
| Wohnfläche | 47,77 m² |
| Nutzfläche | 47,77 m² |
| Zimmer | 2 |
| Baujahr | 1920 |
| Verfügbar ab | nach Absprache |
| Zustand | Gepflegt |
Objektbeschreibung
Die sanierten Denkmal-Wohnhäuser in der Wohnanlage laden mit Ihrem großen und grünen Innenhof zum Relaxen und Sonnen ein. Die Häuser besitzen 3 Vollgeschosse und sind unterkellert. Geparkt wird an der Straße. Eine moderne und zeitgemäße Innenausstattung der Wohnungen, Balkone in den Innenhof sowie die sehr ruhige Lage sorgen für einen angenehmen Wohnkomfort.
Ausstattung
| Anzahl der Etagen im Haus | 2 |
| Inserat befindet sich im Stockwerk | 0 |
| Bad | 1 |
| Bad | Wanne, Fenster |
| Balkone | 1 |
- Raufaser weiß
- Laminatfussbodenbelag
- Balkon
- Bad und Küche mit Fenster
- modern gefliestes Bad mit Wanne
- Lage: Erdgeschoss
- Stellplätze kostenfrei vor dem Haus
- Highspeed-Internet möglich (Glasfaser der Telekom)
- preiswertes TV durch Antennengemeinschaft
Bilder sind aus einer grundrissgleichen Wohnung und dienen der ersten Veranschaulichung. Originalbilder folgen in Kürze.
- Laminatfussbodenbelag
- Balkon
- Bad und Küche mit Fenster
- modern gefliestes Bad mit Wanne
- Lage: Erdgeschoss
- Stellplätze kostenfrei vor dem Haus
- Highspeed-Internet möglich (Glasfaser der Telekom)
- preiswertes TV durch Antennengemeinschaft
Bilder sind aus einer grundrissgleichen Wohnung und dienen der ersten Veranschaulichung. Originalbilder folgen in Kürze.
Sonstige Informationen
Finden Sie Ihr neues Zuhause unter www.tag-wohnen.de und vereinbaren Sie Ihren persönlichen Besichtigungstermin. Wir freuen uns auf Ihre Anfrage.
Profitieren Sie als TAG Wohnen-Mieter von unseren Partnerangeboten und sichern Sie sich viele Sonderrabatte und günstige Konditionen u.a. in den Bereichen Unterhaltung, Umzug, Ernährung und Mobilität.
Strom und Gas von lekker Energie – Sichern Sie sich Ihren exklusiven TAG Wohnen-Bonus unter www.lekker.de/kunden/tag-wohnen
Alle Angaben in diesem Exposé wurden sorgfältig getätigt. Fehlerhafte Angaben können nicht ausgeschlossen werden, daher sind die Angaben ohne Gewähr. Maßgeblich sind die im Mietvertrag geschlossenen Vereinbarungen.
Profitieren Sie als TAG Wohnen-Mieter von unseren Partnerangeboten und sichern Sie sich viele Sonderrabatte und günstige Konditionen u.a. in den Bereichen Unterhaltung, Umzug, Ernährung und Mobilität.
Strom und Gas von lekker Energie – Sichern Sie sich Ihren exklusiven TAG Wohnen-Bonus unter www.lekker.de/kunden/tag-wohnen
Alle Angaben in diesem Exposé wurden sorgfältig getätigt. Fehlerhafte Angaben können nicht ausgeschlossen werden, daher sind die Angaben ohne Gewähr. Maßgeblich sind die im Mietvertrag geschlossenen Vereinbarungen.
Lage des Objektes
Das Objekt liegt im zentral gelegenen Stadtteil Bernsdorf. Abwechslungsreiche Architektur prägt diesen Stadtteil mit über 600-jähriger Geschichte. Die Anbindung an das öffentliche Verkehrsnetz sowie vielseitige Einkaufsmöglichkeiten und Apotheken sind fußläufig erreichbar. Zur Technischen Universität Chemnitz sind es nur wenige Fahrminuten.
