Open House - 195 m² große Doppelhaushälfte Freitag, 28. November 2025 - 14:00 bis 16:00 Uhr Peter-Rosegger-Straße 5a in 9414 Kößlarn
395.000 €
Kaufpreis
195 m²
Wohnfläche
50 m²
Nutzfläche
10
Zimmer
immobilien.de Nr.: 9344954
Objektnummer: PA_OHE_2025_08_26_a
Preise & Kosten
| Kaufpreis | 395.000 € |
| Nebenkosten | keine Angabe |
| Maklerprovision | 3,57 % Courtage jeweils für Verkäufer und Käufer |
| Stellplatz Freiplatz Kaufpreis | 0 € |
| Stellplatz Garage Kaufpreis | 0 € |
Größe & Zustand
| Wohnfläche | 195 m² |
| Nutzfläche | 50 m² |
| Gesamtfläche | 245 m² |
| Grundstücksfläche | 401 m² |
| Zimmer | 10 |
| Baujahr | 1994 |
| Letzte Modernisierung | 2018 |
| Verfügbar ab | 27.11.25 |
| Zustand | Gepflegt |
Energie
| Energieausweistyp | Bedarfsausweis |
| Ausstellungsdatum | 07. 04. 2025 |
| Gültig bis | 2035-04-07 |
| Baujahr (laut Energieausweis) | 1994 |
| Energieeffizienzklasse | A |
| Endenergiebedarf | 48.00 |
| Heizungsart | Ofen, Zentralheizung |
| Wesentlicher Energieträger | Oel |
| Energieträger/Befeuerung | Öl, Holz |
Objektbeschreibung
Große Doppelhaushälfte mit Einliegerwohnung oder als Büro - PV-Anlage - Energieklasse A -
Südost-Ausrichtung - Kößlarn - Bäderdreieck
Diese großzügige Doppelhaushälfte - mit leichter Hanglage in Südrichtung - bietet auf einer Wohnfläche von ca. 195 m² und einem Grundstück von 401 m² viel Raum für individuelle Wohnträume.
Das Haus, erbaut im Jahr 1994, präsentiert sich in einem sehr gepflegten Zustand Eine neue Küche wurde im Jahr 2018 eingebaut.
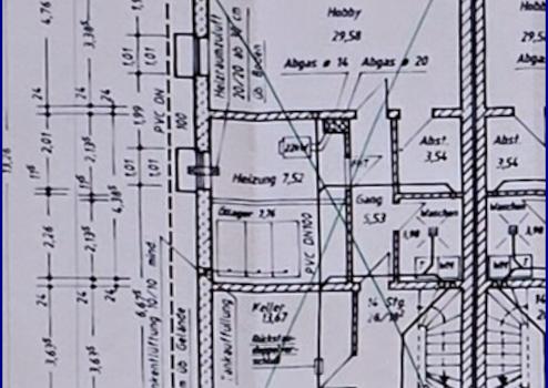
Mit insgesamt 10 Räumen, verteilt auf drei Geschosse und einem nicht ausgebauten Spitzboden (reine Lagerfläche), bietet diese Immobilie ausreichend Platz für eine große Familie.
Die Einliegerwohnung - im Gartengeschoss - wird aktuell als Büro genutzt, dieses ermöglicht eine flexible Nutzung, sei es für eine weitere Wohnung, Gäste, Hobby oder zur Vermietung.
Der Wohnbereich im Erdgeschoss ist mit einem Parkettboden in Eiche verlegt worden.
Eine Fußbodenheizung im gesamten Erdgeschoss sorgt - wie auch in den Bädern im Obergeschoss - für wohlige Wärme.
Ein Schwedenofen im Wohnzimmer schafft eine gemütliche Atmosphäre an kühlen Tagen.
Die moderne Ölzentralheizung von Viessmann aus dem Baujahr sorgt zusammen mit den 2fach isolierten Kunststofffenstern für eine hervorragende Energieeffizienzklasse A.
Besonders hervorzuheben sind die beiden Balkone: Der Ostbalkon mit ca. 11 m² lädt zum Frühstücken in der Morgensonne ein, während der Südbalkon mit ca. 8 m² ideal für entspannte Nachmittage ist.
Der Blick - von den Balkonen - über die umliegende Dächer reicht bis zum Horizont, ist atemberaubend und bietet eine Oase der Ruhe.
Für Fahrzeuge stehen eine Einzelgarage und zwei Stellplätze zur Verfügung.
Die PV-Anlage mit ca. 6,8 kWp von dem Jahr 2009, unterstreicht den nachhaltigen Charakter der Immobilie.
Diese Doppelhaushälfte vereint großzügiges Wohnen mit moderner Ausstattung und einer idyllischen Lage. Ein perfektes Zuhause für Familien, die Wert auf Komfort und Nachhaltigkeit legen.
Der Kaufpreis beträgt 395.000 €.
Südost-Ausrichtung - Kößlarn - Bäderdreieck
Diese großzügige Doppelhaushälfte - mit leichter Hanglage in Südrichtung - bietet auf einer Wohnfläche von ca. 195 m² und einem Grundstück von 401 m² viel Raum für individuelle Wohnträume.
Das Haus, erbaut im Jahr 1994, präsentiert sich in einem sehr gepflegten Zustand Eine neue Küche wurde im Jahr 2018 eingebaut.
Mit insgesamt 10 Räumen, verteilt auf drei Geschosse und einem nicht ausgebauten Spitzboden (reine Lagerfläche), bietet diese Immobilie ausreichend Platz für eine große Familie.
Die Einliegerwohnung - im Gartengeschoss - wird aktuell als Büro genutzt, dieses ermöglicht eine flexible Nutzung, sei es für eine weitere Wohnung, Gäste, Hobby oder zur Vermietung.
Der Wohnbereich im Erdgeschoss ist mit einem Parkettboden in Eiche verlegt worden.
Eine Fußbodenheizung im gesamten Erdgeschoss sorgt - wie auch in den Bädern im Obergeschoss - für wohlige Wärme.
Ein Schwedenofen im Wohnzimmer schafft eine gemütliche Atmosphäre an kühlen Tagen.
Die moderne Ölzentralheizung von Viessmann aus dem Baujahr sorgt zusammen mit den 2fach isolierten Kunststofffenstern für eine hervorragende Energieeffizienzklasse A.
Besonders hervorzuheben sind die beiden Balkone: Der Ostbalkon mit ca. 11 m² lädt zum Frühstücken in der Morgensonne ein, während der Südbalkon mit ca. 8 m² ideal für entspannte Nachmittage ist.
Der Blick - von den Balkonen - über die umliegende Dächer reicht bis zum Horizont, ist atemberaubend und bietet eine Oase der Ruhe.
Für Fahrzeuge stehen eine Einzelgarage und zwei Stellplätze zur Verfügung.
Die PV-Anlage mit ca. 6,8 kWp von dem Jahr 2009, unterstreicht den nachhaltigen Charakter der Immobilie.
Diese Doppelhaushälfte vereint großzügiges Wohnen mit moderner Ausstattung und einer idyllischen Lage. Ein perfektes Zuhause für Familien, die Wert auf Komfort und Nachhaltigkeit legen.
Der Kaufpreis beträgt 395.000 €.
Ausstattung
| Anzahl der Etagen im Haus | 3 |
| Küche | Einbauküche |
| Bad | 3 |
| Balkone | 1 |
| Terrassen | 1 |
| Garage/Stellplätze | 1 |
| Haustiere | |
| Dachboden |
Große Doppelhaushälfte mit Einliegerwohnung oder als Büro - PV-Anlage - Energieklasse A -
Südost-Ausrichtung - Kößlarn - Bäderdreieck
- Doppelhaushälfte mit Einliegerwohnung
- Balkon (ost) ca. 11 m²
- Balkonterrasse (süd) ca. 8 m²
- Einzelgarage
- Stellplatz davor
- genehmigter Carport (noch nicht vorhanden)
- Baujahr 1994
- im Jahr 2018 - neue Küche und neuer Parkettboden in Eiche
- 3 Geschosse + Spitzboden
- Ziegel, Beton, Holz
- sehr gepflegt
- ca. 195 m² Wohnfläche
- 3 Bäder
- PV-Anlage mit ca. 6,8 kWp vom Jahr 2009
- Fenster (Kunststoff ) mit 2fach-Isolierverglasung und Rollos
- Ölzentralheizung - Viessmann 1994
- 3 x 1.500 Liter Heizöltanks auch Kunststoff
- Schwedenofen
- Bedarfsenergieausweis
- Fußbodenheizung im Erdgeschoss und in den Bädern
Südost-Ausrichtung - Kößlarn - Bäderdreieck
- Doppelhaushälfte mit Einliegerwohnung
- Balkon (ost) ca. 11 m²
- Balkonterrasse (süd) ca. 8 m²
- Einzelgarage
- Stellplatz davor
- genehmigter Carport (noch nicht vorhanden)
- Baujahr 1994
- im Jahr 2018 - neue Küche und neuer Parkettboden in Eiche
- 3 Geschosse + Spitzboden
- Ziegel, Beton, Holz
- sehr gepflegt
- ca. 195 m² Wohnfläche
- 3 Bäder
- PV-Anlage mit ca. 6,8 kWp vom Jahr 2009
- Fenster (Kunststoff ) mit 2fach-Isolierverglasung und Rollos
- Ölzentralheizung - Viessmann 1994
- 3 x 1.500 Liter Heizöltanks auch Kunststoff
- Schwedenofen
- Bedarfsenergieausweis
- Fußbodenheizung im Erdgeschoss und in den Bädern
Sonstige Informationen
Es liegt ein Energiebedarfsausweis vor.
Dieser ist gültig bis 7.4.2035.
Endenergiebedarf beträgt 48.00 kwh/(m²*a).
Wesentlicher Energieträger der Heizung ist Öl.
Das Baujahr des Objekts lt. Energieausweis ist 1994.
Die Energieeffizienzklasse ist A.
Dieser ist gültig bis 7.4.2035.
Endenergiebedarf beträgt 48.00 kwh/(m²*a).
Wesentlicher Energieträger der Heizung ist Öl.
Das Baujahr des Objekts lt. Energieausweis ist 1994.
Die Energieeffizienzklasse ist A.
Lage des Objektes
EXKLUSIV NUR BEI UNS!
Wir - das ICC - das Immobilien Competence Center – mit unserer Immobilienagentur in Pfarrkirchen bieten Ihnen exklusiv diese sehr gut gepflegte und große Doppelhaushälfte in erhöhter und ruhiger Wohnlage - mit Blick über Kößlarn - im Bäderdreieck, der größten Golfregion von Europa an.
KONTAKTIEREN SIE IHREN PERSÖNLICHEN BERATER:
Anton Helmar Klippel
Mobil: -+49 - 152 - 28 67 12 83
Robert Ausweger
Mobil: -+49 - 171 – 86 57 02 7
Telefon: +49 - 8561 - 91 85 06 6
Mail: Pfarrkirchen@ev-immo.de
Die Immobilie befindet sich in einer familienfreundlichen Umgebung, die durch ihre Nähe zu wichtigen Einrichtungen und Freizeitmöglichkeiten besticht.
Für den täglichen Bedarf ist gesorgt: Ein EDEKA Supermarkt ist in wenigen Minuten erreichbar, was den Einkauf von Lebensmitteln und anderen Notwendigkeiten bequem macht.
Die ärztliche Versorgung ist ebenfalls gesichert, da eine Arztpraxis in etwa 5 Minuten Entfernung liegt.
Bildungseinrichtungen sind in unmittelbarer Nähe vorhanden. Eine Schule befindet sich nur wenige Gehminuten entfernt, was den Schulweg für Kinder sicher und kurz gestaltet.
Auch ein Kindergarten ist in der Nähe, sodass auch die Kleinsten gut betreut werden können.
Für Freizeitaktivitäten bietet die Umgebung zahlreiche Möglichkeiten.
Ein Spielplatz ist in wenigen Minuten zu Fuß erreichbar und lädt Kinder zum Spielen und Toben ein.
Zudem gibt es mehrere Restaurants in der Nähe, die für kulinarische Abwechslung sorgen und zu einem gemütlichen Familienessen einladen.
Die Verkehrsanbindung ist ebenfalls günstig.
Eine Bushaltestelle ist in etwa 10 Minuten erreichbar, was eine gute Anbindung an den öffentlichen Nahverkehr gewährleistet.
Für Autofahrer ist die nächste Autobahnauffahrt in etwa 20 Minuten erreichbar, was Flexibilität und Mobilität gewährleistet.
Der nächste Flughafen ist etwa 1,5 Stunden entfernt, was für gelegentliche Reisen ins In- und Ausland von Vorteil ist.
Insgesamt bietet die Lage der Immobilie eine ideale Kombination aus praktischer Infrastruktur und vielfältigen Freizeitmöglichkeiten, die den Alltag für Familien angenehm und abwechslungsreich gestalten.
Mehr unter:
https://www.koesslarn.de/
Wir - das ICC - das Immobilien Competence Center – mit unserer Immobilienagentur in Pfarrkirchen bieten Ihnen exklusiv diese sehr gut gepflegte und große Doppelhaushälfte in erhöhter und ruhiger Wohnlage - mit Blick über Kößlarn - im Bäderdreieck, der größten Golfregion von Europa an.
KONTAKTIEREN SIE IHREN PERSÖNLICHEN BERATER:
Anton Helmar Klippel
Mobil: -+49 - 152 - 28 67 12 83
Robert Ausweger
Mobil: -+49 - 171 – 86 57 02 7
Telefon: +49 - 8561 - 91 85 06 6
Mail: Pfarrkirchen@ev-immo.de
Die Immobilie befindet sich in einer familienfreundlichen Umgebung, die durch ihre Nähe zu wichtigen Einrichtungen und Freizeitmöglichkeiten besticht.
Für den täglichen Bedarf ist gesorgt: Ein EDEKA Supermarkt ist in wenigen Minuten erreichbar, was den Einkauf von Lebensmitteln und anderen Notwendigkeiten bequem macht.
Die ärztliche Versorgung ist ebenfalls gesichert, da eine Arztpraxis in etwa 5 Minuten Entfernung liegt.
Bildungseinrichtungen sind in unmittelbarer Nähe vorhanden. Eine Schule befindet sich nur wenige Gehminuten entfernt, was den Schulweg für Kinder sicher und kurz gestaltet.
Auch ein Kindergarten ist in der Nähe, sodass auch die Kleinsten gut betreut werden können.
Für Freizeitaktivitäten bietet die Umgebung zahlreiche Möglichkeiten.
Ein Spielplatz ist in wenigen Minuten zu Fuß erreichbar und lädt Kinder zum Spielen und Toben ein.
Zudem gibt es mehrere Restaurants in der Nähe, die für kulinarische Abwechslung sorgen und zu einem gemütlichen Familienessen einladen.
Die Verkehrsanbindung ist ebenfalls günstig.
Eine Bushaltestelle ist in etwa 10 Minuten erreichbar, was eine gute Anbindung an den öffentlichen Nahverkehr gewährleistet.
Für Autofahrer ist die nächste Autobahnauffahrt in etwa 20 Minuten erreichbar, was Flexibilität und Mobilität gewährleistet.
Der nächste Flughafen ist etwa 1,5 Stunden entfernt, was für gelegentliche Reisen ins In- und Ausland von Vorteil ist.
Insgesamt bietet die Lage der Immobilie eine ideale Kombination aus praktischer Infrastruktur und vielfältigen Freizeitmöglichkeiten, die den Alltag für Familien angenehm und abwechslungsreich gestalten.
Mehr unter:
https://www.koesslarn.de/
Anbieter kontaktieren
Anbieter
EuV Immobilien.GmbH
Schwaibacher Straße 4
84364 Bad Birnbach - Asenham
Kontakt
| Telefon | 004985619185066 |
| Mobil | 00491718657027 |
