Wir schaffen ihr perfektes zu Hause dank unserem Grundstücksservice
549.900 €
Kaufpreis
118 m²
Wohnfläche
4
Zimmer
immobilien.de Nr.: 9344488
Objektnummer: JW-Rogge-EFH-118-3
Preise & Kosten
| Kaufpreis | 549.900 € |
| Nebenkosten | keine Angabe |
Größe & Zustand
| Wohnfläche | 118 m² |
| Grundstücksfläche | 436 m² |
| Zimmer | 4 |
| Verfügbar ab | keine Angabe |
Objektbeschreibung
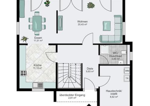
Anmutig und modern ist die Architektur des Energiesparhauses mit Satteldach. Die Fassade wird von einer waagerechten Holzverschalung und der Auswahl der Fensterformate geprägt. Der Grundriss des Hausentwurfes sieht im Erdgeschoss einen geräumigen Wohn- und Essbereich mit einer separaten Küche vor.
Ausstattung
| Anzahl der Etagen im Haus | 1 |
| Bad | 1 |
Das Streif City Haus wird im Standard KFW 40 PLUS ausgeführt. KfW Effizienshaus inkl. Haustechnik aus dem STREIF-Programm in der Ausbaustufe FF+ inklusive einer gedämmten Fundamentplatte.
■ Rohbau (geschlossene Gebäudehülle) mit Fenstern, Haustür, Dacheindeckung
■ Außenfassade inkl. Außenputz, vor Ort komplett fertiggestellt
■ Komplette Blechner-/Spenglerarbeiten
■ lnnen-/Außenwände wärme- und schallgedämmt und mit Gipsfaserplatten geschlossen
■ Geschosstreppe (außer Bungalow)
■ Decken wärme- und schallgedämmt und mit Gipskarton Bauplatten geschlossen
■ Elektroinstallation, einschließlich erforderlichem Zählerschrank und Inbetriebnahme
■ Heizungsanlage inkl. Inbetriebnahme
■ Innenfensterbänke Kunststeinbänke (Gussmarmorbänke) inkl. Einbau
■ Estrich
■ Sanitärräume mit Wand- und Bodenfliesen
■ Sanitärräume mit Sanitärobjekten
■ 6,23 kWp Photovoltaikanlage und 7,7 kWh Speicher
Die Innentüren sowie Wand-, Decken- und Bodenbeläge der übrigen Räume sind Eigenleistungen des Bauherren.
STREIF Frischluft-Wärmepumpen-Technologie - inklusive
- Heizen mit frischer Außenluft
- Kein Gasanschluss, kein Öl- oder Pelletlagerraum
- Keine Heizkörper
- Wärmetauscher mit bis zu 85% Wärmerückgewinnung
Die dargestellten Bilder können Sonderausstattungen beinhalten, die nicht im Preis enthalten sind!
zzgl. Ortüblicher Baunebenkosten
Selbstverständlich können wir Ihr Haus auch schlüsselfertig / bezugsfertig errichten.
■ Bodenbeläge, Sockelleisten verlegt
■ Maler- und Tapezierarbeiten
■ Innentüren inkl. Einbau
■ Rohbau (geschlossene Gebäudehülle) mit Fenstern, Haustür, Dacheindeckung
■ Außenfassade inkl. Außenputz, vor Ort komplett fertiggestellt
■ Komplette Blechner-/Spenglerarbeiten
■ lnnen-/Außenwände wärme- und schallgedämmt und mit Gipsfaserplatten geschlossen
■ Geschosstreppe (außer Bungalow)
■ Decken wärme- und schallgedämmt und mit Gipskarton Bauplatten geschlossen
■ Elektroinstallation, einschließlich erforderlichem Zählerschrank und Inbetriebnahme
■ Heizungsanlage inkl. Inbetriebnahme
■ Innenfensterbänke Kunststeinbänke (Gussmarmorbänke) inkl. Einbau
■ Estrich
■ Sanitärräume mit Wand- und Bodenfliesen
■ Sanitärräume mit Sanitärobjekten
■ 6,23 kWp Photovoltaikanlage und 7,7 kWh Speicher
Die Innentüren sowie Wand-, Decken- und Bodenbeläge der übrigen Räume sind Eigenleistungen des Bauherren.
STREIF Frischluft-Wärmepumpen-Technologie - inklusive
- Heizen mit frischer Außenluft
- Kein Gasanschluss, kein Öl- oder Pelletlagerraum
- Keine Heizkörper
- Wärmetauscher mit bis zu 85% Wärmerückgewinnung
Die dargestellten Bilder können Sonderausstattungen beinhalten, die nicht im Preis enthalten sind!
zzgl. Ortüblicher Baunebenkosten
Selbstverständlich können wir Ihr Haus auch schlüsselfertig / bezugsfertig errichten.
■ Bodenbeläge, Sockelleisten verlegt
■ Maler- und Tapezierarbeiten
■ Innentüren inkl. Einbau
Sonstige Informationen
Sie wünschen Bauplanung und Begleitung aus einer Hand? Dann sind wir Ihr Baupartner! Wir stehen Ihnen von Anfang an zur Seite und führen Sie auf dem Weg in Ihr neues perfektes Zuhause!
Mit STREIF haben Sie einen Baupartner mit Bau-Know-how, der seit 1929 auf fast 100 Jahre und 100.000 realisierte Wohnträume zurückblicken kann.
Jedes Haus von STREIF wird individuell als Energiesparhaus geplant und gebaut. Eine nachhaltige, ökologische und wohngesunde Bauweise, eine zertifizierte Ausführungsqualität und eine kurze Bauzeit, dafür stehen wir.
Im Anschluss der gemeinsamen Bedarfsermittlung erstellen wir Ihnen Ihren individuellen Planungsvorschlag mit einer detaillierten & realistisch ermittelten Aufstellung der Gesamt-Investition.
Mit STREIF haben Sie einen Baupartner mit Bau-Know-how, der seit 1929 auf fast 100 Jahre und 100.000 realisierte Wohnträume zurückblicken kann.
Jedes Haus von STREIF wird individuell als Energiesparhaus geplant und gebaut. Eine nachhaltige, ökologische und wohngesunde Bauweise, eine zertifizierte Ausführungsqualität und eine kurze Bauzeit, dafür stehen wir.
Im Anschluss der gemeinsamen Bedarfsermittlung erstellen wir Ihnen Ihren individuellen Planungsvorschlag mit einer detaillierten & realistisch ermittelten Aufstellung der Gesamt-Investition.
Lage des Objektes
Unsere Grundstücke befinden sich in ausgewählten, attraktiven Lagen und erfüllen höchste Ansprüche an Lebensqualität und Wertbeständigkeit.
Aus Diskretions- und Datenschutzgründen bitten wir um Verständnis, dass Grundstücksdaten ausschließlich im Rahmen eines persönlichen Beratungstermins und ausschließlich für unsere Kunden weitergegeben werden.
Aus Diskretions- und Datenschutzgründen bitten wir um Verständnis, dass Grundstücksdaten ausschließlich im Rahmen eines persönlichen Beratungstermins und ausschließlich für unsere Kunden weitergegeben werden.
Anbieter kontaktieren
Kontakt
| Telefon | +49 2595 9909690 |
| Mobil | +49 157 53710612 |
| Website | www.streif.de |
