Hier entsteht Ihre neue Doppelhaushälfte - Grundstück inklusive
497.528 €
Kaufpreis
140,8 m²
Wohnfläche
4
Zimmer
immobilien.de Nr.: 9343854
Objektnummer: JW-DHH5.1-Ohorn
Preise & Kosten
| Kaufpreis | 497.528 € |
| Nebenkosten | keine Angabe |
Größe & Zustand
| Wohnfläche | 140,8 m² |
| Grundstücksfläche | 590 m² |
| Zimmer | 4 |
| Verfügbar ab | keine Angabe |
Objektbeschreibung
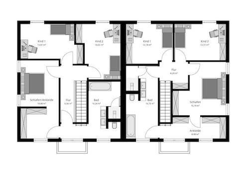
Die Hausarchitektur des Doppelhauses/der Doppelhaushälfte mit Walmdach strahlt moderne Eleganz aus. Die Grundrissgrößen sind so geplant, dass komfortable Räumlichkeiten entstehen.
Ein offen gestalteter Wohn-/Ess-/Kochbereich bietet auf 39 m² Großzügigkeit. Eine Panorama-Hebeschiebetür und eine doppelflügelige Terrassentür sorgen für lichterfüllte Räume.
Ein offen gestalteter Wohn-/Ess-/Kochbereich bietet auf 39 m² Großzügigkeit. Eine Panorama-Hebeschiebetür und eine doppelflügelige Terrassentür sorgen für lichterfüllte Räume.
Ausstattung
| Anzahl der Etagen im Haus | 2 |
| Bad | 1 |
STREIF-Häuser erfüllen bereits im Standard die Effizienzhaus-Klasse KfW40PLUS.
Die STREIF-Passiv-Haus-Wände, eine effiziente Heiztechnik mit integrierter Wohnraumlüftung und Wärmerückgewinnung garantieren einen geringen Energieverbrauch und ein fantastisches Raumklima, das insbesondere Allergiker aufatmen lässt.
STREIF Leistungen sind MEHR WERT - schon im Grundpreis enthalten!
- 20-monatiger Fair- & Festpreisgarantie
- individuelle Grundrissgestaltung und Raumaufteilung
- gedämmte Fundamentplatte
- Photovoltaikanlage und Batteriespeicher
- Wärmepumpen-Technologie mit integrierter
Lüftungsanlage mit Wärmerückgewinnung
- Haustür von KERA und Fenster von Porta/Kömmerling
- Massivholz-Geschosstreppe aus eigener Produktion
- Sanitärobjekte von Markenherstellern
- Elektroinstallation
- Gütesiegel vom TÜV Rheinland- (schadstoffgeprüfte Materialien)
- KfW-Berechnungen, Nachweise & Anträge
Was wir Ihnen sonst noch bieten:
- individuelle und kostenlose Bauberatung inkl. Planungsvorschlag (Grundriss & Hauspreis)
- Baubegleitung
- Ermittlung der Gesamt-Investition Ihres Bauvorhabens (Baunebenkosten)
- Finanzierungs - & Fördermittelberatung
Die hohe Wertigkeit und Langlebigkeit eines STREIF-Energiespar-Hauses wird durch zahlreiche Auszeichnungen, Qualitäts- und Gütesiegel unabhängiger Institute und Verbände dokumentiert.
Angebotspreis ist
- inklusive Grundstück und Provision
- inklusive Haus in der Ausbaustufe Fast-Fertig-Plus (Technikfertig inkl. Bäder).
Ihre Eigenleistungen:
- Malerarbeiten
- Bodenbeläge
- Innentüren.
Selbstverständlich können wir Ihr Haus auch schlüsselfertig / bezugsfertig errichten.
Die STREIF-Passiv-Haus-Wände, eine effiziente Heiztechnik mit integrierter Wohnraumlüftung und Wärmerückgewinnung garantieren einen geringen Energieverbrauch und ein fantastisches Raumklima, das insbesondere Allergiker aufatmen lässt.
STREIF Leistungen sind MEHR WERT - schon im Grundpreis enthalten!
- 20-monatiger Fair- & Festpreisgarantie
- individuelle Grundrissgestaltung und Raumaufteilung
- gedämmte Fundamentplatte
- Photovoltaikanlage und Batteriespeicher
- Wärmepumpen-Technologie mit integrierter
Lüftungsanlage mit Wärmerückgewinnung
- Haustür von KERA und Fenster von Porta/Kömmerling
- Massivholz-Geschosstreppe aus eigener Produktion
- Sanitärobjekte von Markenherstellern
- Elektroinstallation
- Gütesiegel vom TÜV Rheinland- (schadstoffgeprüfte Materialien)
- KfW-Berechnungen, Nachweise & Anträge
Was wir Ihnen sonst noch bieten:
- individuelle und kostenlose Bauberatung inkl. Planungsvorschlag (Grundriss & Hauspreis)
- Baubegleitung
- Ermittlung der Gesamt-Investition Ihres Bauvorhabens (Baunebenkosten)
- Finanzierungs - & Fördermittelberatung
Die hohe Wertigkeit und Langlebigkeit eines STREIF-Energiespar-Hauses wird durch zahlreiche Auszeichnungen, Qualitäts- und Gütesiegel unabhängiger Institute und Verbände dokumentiert.
Angebotspreis ist
- inklusive Grundstück und Provision
- inklusive Haus in der Ausbaustufe Fast-Fertig-Plus (Technikfertig inkl. Bäder).
Ihre Eigenleistungen:
- Malerarbeiten
- Bodenbeläge
- Innentüren.
Selbstverständlich können wir Ihr Haus auch schlüsselfertig / bezugsfertig errichten.
Sonstige Informationen
Sie wünschen Bauplanung und Begleitung aus einer Hand? Dann sind wir Ihr Baupartner! Wir stehen Ihnen von Anfang an zur Seite und führen Sie auf dem Weg in Ihr neues perfektes Zuhause!
Mit STREIF haben Sie einen Baupartner mit Bau-Know-how, der seit 1929 auf fast 100 Jahre und 100.000 realisierte Wohnträume zurückblicken kann.
Jedes Haus von STREIF wird individuell als Energiesparhaus geplant und gebaut. Eine nachhaltige, ökologische und wohngesunde Bauweise, eine zertifizierte Ausführungsqualität und eine kurze Bauzeit, dafür stehen wir.
Im Anschluss der gemeinsamen Bedarfsermittlung erstellen wir Ihnen Ihren individuellen Planungsvorschlag mit einer detaillierten & realistisch ermittelten Aufstellung der Gesamt-Investition.
Wir freuen uns auf Ihren Anruf / Nachricht:
Mit STREIF haben Sie einen Baupartner mit Bau-Know-how, der seit 1929 auf fast 100 Jahre und 100.000 realisierte Wohnträume zurückblicken kann.
Jedes Haus von STREIF wird individuell als Energiesparhaus geplant und gebaut. Eine nachhaltige, ökologische und wohngesunde Bauweise, eine zertifizierte Ausführungsqualität und eine kurze Bauzeit, dafür stehen wir.
Im Anschluss der gemeinsamen Bedarfsermittlung erstellen wir Ihnen Ihren individuellen Planungsvorschlag mit einer detaillierten & realistisch ermittelten Aufstellung der Gesamt-Investition.
Wir freuen uns auf Ihren Anruf / Nachricht:
Lage des Objektes
Unsere Grundstücke befinden sich in ausgewählten, attraktiven Lagen und erfüllen höchste Ansprüche an Lebensqualität und Wertbeständigkeit.
Aus Diskretions- und Datenschutzgründen bitten wir um Verständnis, dass Grundstücksdaten ausschließlich im Rahmen eines persönlichen Beratungstermins und ausschließlich für unsere Kunden weitergegeben werden.
Aus Diskretions- und Datenschutzgründen bitten wir um Verständnis, dass Grundstücksdaten ausschließlich im Rahmen eines persönlichen Beratungstermins und ausschließlich für unsere Kunden weitergegeben werden.
Anbieter kontaktieren
Kontakt
| Telefon | +49 351 8902538 |
| Mobil | +49 172 9374300 |
| Website | www.streif.de |
