Doppelbungalowhälfte in Aurich/Sandhorst
255.000 €
Kaufpreis
56 m²
Wohnfläche
2
Zimmer
immobilien.de Nr.: 9342562
Objektnummer: 299226
Preise & Kosten
| Kaufpreis | 255.000 € |
| Nebenkosten | keine Angabe |
| Maklerprovision | keine Provision, courtagefrei |
Größe & Zustand
| Wohnfläche | 56 m² |
| Grundstücksfläche | 481 m² |
| Zimmer | 2 |
| Baujahr | 2025 |
| Verfügbar ab | nach Absprache |
Energie
| Energieausweistyp | Bedarfsausweis |
| Energieeffizienzklasse | A+ |
| Endenergiebedarf | 20 |
| Heizungsart | Fußbodenheizung |
| Energieträger/Befeuerung | Luft-Wärme-Pumpe |
Objektbeschreibung
In Sandhorst entsteht ab Februar 2025 auf einem ca. 679 qm großen Eigentumsgrundstück, ca. 900 Meter vom Wald entfernt, dieser attraktive Doppelbungalow mit 2 hochwertigen Einheiten. Der renommierte Bauträger und sämtliche Handwerksbetriebe sind Fachfirmen aus der Region. Dieser Bungalow hat ca. 56 qm Wohnfläche.
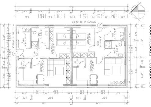
Im Erdgeschoss befindet sich eine großzügige, lichtdurchflutete „Wohnküche“ mit bodentiefen Fensterelementen und direktem Zugang zur Terrasse. Ein Schlafzimmer, ein Badezimmer, ein Abstellraum für Vorräte, ein Hauswirtschaftsraum mit Waschmaschinenanschluss sowie ein Flur runden das Erdgeschoss ab.
Das komplette Raumprogramm entnehmen Sie bitte den beigefügten Grundriss-Skizzen.
Das gesamte Haus verfügt über eine Fußbodenheizung. Weitere Wohnvorteile sind eine dezentrale Be- und Entlüftungsanlage der Firma Bosch mit Wärmerückgewinnung, 3-fach isolierverglaste Kunststofffenster (anthrazit) mit elektrischen Rollläden, die Luftwärmepumpe von Bosch, Sat-Schüssel und Hausanschlüsse. Alle Decken im Erdgeschoss werden mit Rauhfaser tapeziert und gestrichen sowie die Wände in weiß gestrichen. Die Zwischenbalkendecke wird gedämmt und im Dachgeschoss stehen Ihnen noch weitere Ausbaureserven zur Verfügung. Der Boden im Erdgeschoß mit dem Flur und „Wohnen, Essen und Kochen“, der Abstellraum sowie das Schlafzimmer werden mit Vinyl-Design-Bodenbelägen (Standard-Verlegung) ausgestattet. Das Bad mit begehbarer Dusche und der Hauswirtschaftsraum wird verfliest. Die Außenanlagen mit der Pflasterung der Gehwege, des Stellplatzes und der Terrasse sowie das Anlegen des Gartens (Rasensaat) werden von uns übernommen. Die Einbauküche ist nicht im Kaufpreis enthalten, kann zusätzlich mit angeboten werden.
Dieser tolle Doppelbungalow wird mit einem hochwertigen Klinker (Röben „Sheffield") verblendet und das Dach mit schwarzen Dachpfannen eingedeckt.
Im Außenbereich stehen Ihnen neben der eigenen Gartenfläche eine Terrasse und ein PKW-Stellplatz zur Verfügung.
Der Kauf der Immobilie ist für den Käufer provisionsfrei. Der Angebotspreis von 255.000 € bezieht sich auf die Einheit Nr. 2 (hinten, größerer Gartenanteil, 481 qm Grundstück). Die vordere Einheit Nr. 1 ist bereits verkauft.
Ein Energieausweis wird dem Interessenten bei der Besichtigung ausgehändigt bzw. nachgeliefert!
Im Erdgeschoss befindet sich eine großzügige, lichtdurchflutete „Wohnküche“ mit bodentiefen Fensterelementen und direktem Zugang zur Terrasse. Ein Schlafzimmer, ein Badezimmer, ein Abstellraum für Vorräte, ein Hauswirtschaftsraum mit Waschmaschinenanschluss sowie ein Flur runden das Erdgeschoss ab.
Das komplette Raumprogramm entnehmen Sie bitte den beigefügten Grundriss-Skizzen.
Das gesamte Haus verfügt über eine Fußbodenheizung. Weitere Wohnvorteile sind eine dezentrale Be- und Entlüftungsanlage der Firma Bosch mit Wärmerückgewinnung, 3-fach isolierverglaste Kunststofffenster (anthrazit) mit elektrischen Rollläden, die Luftwärmepumpe von Bosch, Sat-Schüssel und Hausanschlüsse. Alle Decken im Erdgeschoss werden mit Rauhfaser tapeziert und gestrichen sowie die Wände in weiß gestrichen. Die Zwischenbalkendecke wird gedämmt und im Dachgeschoss stehen Ihnen noch weitere Ausbaureserven zur Verfügung. Der Boden im Erdgeschoß mit dem Flur und „Wohnen, Essen und Kochen“, der Abstellraum sowie das Schlafzimmer werden mit Vinyl-Design-Bodenbelägen (Standard-Verlegung) ausgestattet. Das Bad mit begehbarer Dusche und der Hauswirtschaftsraum wird verfliest. Die Außenanlagen mit der Pflasterung der Gehwege, des Stellplatzes und der Terrasse sowie das Anlegen des Gartens (Rasensaat) werden von uns übernommen. Die Einbauküche ist nicht im Kaufpreis enthalten, kann zusätzlich mit angeboten werden.
Dieser tolle Doppelbungalow wird mit einem hochwertigen Klinker (Röben „Sheffield") verblendet und das Dach mit schwarzen Dachpfannen eingedeckt.
Im Außenbereich stehen Ihnen neben der eigenen Gartenfläche eine Terrasse und ein PKW-Stellplatz zur Verfügung.
Der Kauf der Immobilie ist für den Käufer provisionsfrei. Der Angebotspreis von 255.000 € bezieht sich auf die Einheit Nr. 2 (hinten, größerer Gartenanteil, 481 qm Grundstück). Die vordere Einheit Nr. 1 ist bereits verkauft.
Ein Energieausweis wird dem Interessenten bei der Besichtigung ausgehändigt bzw. nachgeliefert!
Ausstattung
| Bad | 1 |
| Bad | Wanne |
| Boden | Fliesen, Kunststoff |
| Balkone | 0 |
| Garten | |
| Terrassen | 1 |
Terrasse, Garten, Vollbad, Gäste-WC, Fliesen
Sonstige Informationen
Heizungsart: Fußbodenheizung
Energieträger: Luft-/Wasserwärme
Makleranfragen nicht erwünscht. Nach § 7 UWG sind unaufgeforderte Kontaktaufnahmen durch Makler ohne ausdrückliche Einwilligung des Empfängers verboten!
ohne-makler (OM) ist weder Anbieter noch Vermittler der Immobilie. OM betreibt eine Plattform für Immobilieneigentümer, die unter anderem die gleichzeitige Veröffentlichung einzelner Inserate auf mehreren Immobilienportalen ermöglicht. Die Inhalte dieser Inserate werden ausschließlich von Dritten verantwortet. Für die Richtigkeit, Vollständigkeit oder Rechtmäßigkeit der Angaben übernimmt OM keine Haftung. Hinweise auf mögliche Rechtsverstöße können jederzeit gemeldet werden und werden nach Prüfung umgehend bearbeitet.
Energieträger: Luft-/Wasserwärme
Makleranfragen nicht erwünscht. Nach § 7 UWG sind unaufgeforderte Kontaktaufnahmen durch Makler ohne ausdrückliche Einwilligung des Empfängers verboten!
ohne-makler (OM) ist weder Anbieter noch Vermittler der Immobilie. OM betreibt eine Plattform für Immobilieneigentümer, die unter anderem die gleichzeitige Veröffentlichung einzelner Inserate auf mehreren Immobilienportalen ermöglicht. Die Inhalte dieser Inserate werden ausschließlich von Dritten verantwortet. Für die Richtigkeit, Vollständigkeit oder Rechtmäßigkeit der Angaben übernimmt OM keine Haftung. Hinweise auf mögliche Rechtsverstöße können jederzeit gemeldet werden und werden nach Prüfung umgehend bearbeitet.
Lage des Objektes
Dieses Grundstück liegt in einer ruhigen Wohngegend, Entfernung zum Enercon-Werk ca. 800 Meter. In ca. 900 Meter Entfernung liegt ein Wald.
Infrastruktur (im Umkreis von 5 km):
Apotheke, Lebensmittel-Discount, Allgemeinmediziner
Infrastruktur (im Umkreis von 5 km):
Apotheke, Lebensmittel-Discount, Allgemeinmediziner
Anbieter kontaktieren
Kontakt
| Telefon | 0176 80394061 |
| Fax | - |
| Website | www.ohne-makler.net |
