Moderne, großzügige 2-Zimmerwohnung / Erstbezug nach Umbau/ Balkon/ Einbauküche
1.250 €
Kaltmiete (netto)
119 m²
Wohnfläche
2
Zimmer
immobilien.de Nr.: 9342428
Objektnummer: 380720
Preise & Kosten
| Kaltmiete (netto) | 1.250 € |
| Nebenkosten | 240 € |
| Heizkosten enthalten | Ja |
| Kaution | 3.750 € |
| Stellplatz Freiplatz Miete} | 50 € |
| Stellplatz Garage Miete | 50 € |
Größe & Zustand
| Wohnfläche | 119 m² |
| Zimmer | 2 |
| Baujahr | 1975 |
| Verfügbar ab | 01.01.2026 |
| Zustand | Teil Vollsaniert |
Energie
| Heizungsart | Fußbodenheizung |
| Energieträger/Befeuerung | Elektro |
Objektbeschreibung
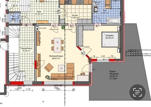
Diese frisch kernsanierte 2- Zimmer-Wohnung im Erdgeschoss(Hanglage zur Südseite) eines EE70 – Hauses (kernsaniert 2025, Baujahr 1975) bietet erstklassigen Wohnkomfort auf circa 119 m².
Der sonnige, teilweise überdachte Balkon zur Südseite (ca. 45 m2, davon circa 22 m² anrechenbare Wohnfläche, über 2 Räume zugänglich) erweitert den Wohnraum ins Freie. Dieser ist zur Südseite in Hanglage.
Die Räume sind sehr geräumig und durch große Fenster lichtdurchflutet.
Die Wohnung ist ideal für Einzelpersonen oder Paare.
Sie befindet sich in einem 3 Parteien Haus.
Im Kellergeschoss Gewerbeeinheit / Praxis.
Im Erdgeschoss und Obergeschoss befinden sich je eine Mietwohnung.
Raumaufteilung:
– 1 Schlafzimmer
– 1 sehr großzügiger Wohnzimmer/Essbereich
- 1 Küche mit Einbauküche
– 1 En-suite-Bad (nur vom Schlafzimmer begehbar) mit ebenerdiger offener Dusche und Wanne ( neu renoviert )
- 1 Gäste-WC
– großer Eingangsbereich mit separater Haustür (Stufen)
- möglicher Eingang über Hinterhof oder durch vorhandene Garage über den Gemeinschaftsgang
- ca. 29m2 große Garage mit elektrischem Tor sowie Vorrüstung für E-Ladestation
- Hofeinfahrt vor Garage als weiterer Stellplatz
Bitte beachten Sie, dass die Fotos den unfertigen Zustand der Wohnung zeigen
Objektzustand: Erstbezug nach Sanierung
Der sonnige, teilweise überdachte Balkon zur Südseite (ca. 45 m2, davon circa 22 m² anrechenbare Wohnfläche, über 2 Räume zugänglich) erweitert den Wohnraum ins Freie. Dieser ist zur Südseite in Hanglage.
Die Räume sind sehr geräumig und durch große Fenster lichtdurchflutet.
Die Wohnung ist ideal für Einzelpersonen oder Paare.
Sie befindet sich in einem 3 Parteien Haus.
Im Kellergeschoss Gewerbeeinheit / Praxis.
Im Erdgeschoss und Obergeschoss befinden sich je eine Mietwohnung.
Raumaufteilung:
– 1 Schlafzimmer
– 1 sehr großzügiger Wohnzimmer/Essbereich
- 1 Küche mit Einbauküche
– 1 En-suite-Bad (nur vom Schlafzimmer begehbar) mit ebenerdiger offener Dusche und Wanne ( neu renoviert )
- 1 Gäste-WC
– großer Eingangsbereich mit separater Haustür (Stufen)
- möglicher Eingang über Hinterhof oder durch vorhandene Garage über den Gemeinschaftsgang
- ca. 29m2 große Garage mit elektrischem Tor sowie Vorrüstung für E-Ladestation
- Hofeinfahrt vor Garage als weiterer Stellplatz
Bitte beachten Sie, dass die Fotos den unfertigen Zustand der Wohnung zeigen
Objektzustand: Erstbezug nach Sanierung
Ausstattung
| Anzahl der Etagen im Haus | 1 |
| Inserat befindet sich im Stockwerk | 0 |
| Küche | Einbauküche |
| Bad | 1 |
| Bad | Dusche, Wanne |
| Boden | Fliesen, Kunststoff |
| Balkone | 1 |
| Terrassen | 0 |
| Garage/Stellplätze | 1 |
Balkon, Vollbad, Duschbad, Einbauküche, Gäste-WC, Fliesen
Bemerkungen:
– Fußbodenheizung über Wärmepumpe
– 3-Fach verglaste Fenster
– Elektrische Rollläden
– Warmwasser über Durchlauferhitzer
– Schließanlage
- Einbaustrahler in der gesamten Wohnung
- hochwertiger Vinylboden, sowie im Bad hochwertige Keramikfliesen
- weiße Innentüren
- kontrollierte Be- und Entlüftung
– eigene Garage direkt vor der Haustür 50 € pro Monat (mit Vorrüstung für E-Ladestation)
- Einbauküche inkl.aller Geräte (ohne Kühlschrank) 50,00€ mtl.
Bemerkungen:
– Fußbodenheizung über Wärmepumpe
– 3-Fach verglaste Fenster
– Elektrische Rollläden
– Warmwasser über Durchlauferhitzer
– Schließanlage
- Einbaustrahler in der gesamten Wohnung
- hochwertiger Vinylboden, sowie im Bad hochwertige Keramikfliesen
- weiße Innentüren
- kontrollierte Be- und Entlüftung
– eigene Garage direkt vor der Haustür 50 € pro Monat (mit Vorrüstung für E-Ladestation)
- Einbauküche inkl.aller Geräte (ohne Kühlschrank) 50,00€ mtl.
Sonstige Informationen
Heizungsart: Fußbodenheizung
Energieträger: Strom
Energieausweis nicht vorhanden
Wir legen großen Wert auf verantwortungsbewusste und zuverlässige Mieter.
Ideal für Singles oder Paare.
Haustiere nach Rücksprache.
Voraussetzung:
Festes Einkommen, Nichtraucherwohnung, Schufa bzw. Mieterselbstauskunft
Bei ernsthaftem Interesse freuen wir uns über Nachrichten
Makleranfragen nicht erwünscht. Nach § 7 UWG sind unaufgeforderte Kontaktaufnahmen durch Makler ohne ausdrückliche Einwilligung des Empfängers verboten!
ohne-makler (OM) ist weder Anbieter noch Vermittler der Immobilie. OM betreibt eine Plattform für Immobilieneigentümer, die unter anderem die gleichzeitige Veröffentlichung einzelner Inserate auf mehreren Immobilienportalen ermöglicht. Die Inhalte dieser Inserate werden ausschließlich von Dritten verantwortet. Für die Richtigkeit, Vollständigkeit oder Rechtmäßigkeit der Angaben übernimmt OM keine Haftung. Hinweise auf mögliche Rechtsverstöße können jederzeit gemeldet werden und werden nach Prüfung umgehend bearbeitet.
Energieträger: Strom
Energieausweis nicht vorhanden
Wir legen großen Wert auf verantwortungsbewusste und zuverlässige Mieter.
Ideal für Singles oder Paare.
Haustiere nach Rücksprache.
Voraussetzung:
Festes Einkommen, Nichtraucherwohnung, Schufa bzw. Mieterselbstauskunft
Bei ernsthaftem Interesse freuen wir uns über Nachrichten
Makleranfragen nicht erwünscht. Nach § 7 UWG sind unaufgeforderte Kontaktaufnahmen durch Makler ohne ausdrückliche Einwilligung des Empfängers verboten!
ohne-makler (OM) ist weder Anbieter noch Vermittler der Immobilie. OM betreibt eine Plattform für Immobilieneigentümer, die unter anderem die gleichzeitige Veröffentlichung einzelner Inserate auf mehreren Immobilienportalen ermöglicht. Die Inhalte dieser Inserate werden ausschließlich von Dritten verantwortet. Für die Richtigkeit, Vollständigkeit oder Rechtmäßigkeit der Angaben übernimmt OM keine Haftung. Hinweise auf mögliche Rechtsverstöße können jederzeit gemeldet werden und werden nach Prüfung umgehend bearbeitet.
Lage des Objektes
Zentral in der Bahnhofstraße gelegen – nur circa 2 Minuten zu Fuß vom Bahnhof entfernt. Einkaufsmöglichkeiten, Gastronomie und Natur (Rezat) befinden sich in unmittelbarer Nähe. Ruhige Lage, trotz Bahnhofsnähe- ideal für Ruhesuchende und Paare.
Infrastruktur (im Umkreis von 5 km):
Apotheke, Lebensmittel-Discount, Allgemeinmediziner, Kindergarten, Grundschule, Hauptschule, Gymnasium, Gesamtschule, Öffentliche Verkehrsmittel
Infrastruktur (im Umkreis von 5 km):
Apotheke, Lebensmittel-Discount, Allgemeinmediziner, Kindergarten, Grundschule, Hauptschule, Gymnasium, Gesamtschule, Öffentliche Verkehrsmittel
