Exklusive 5 Zimmer Maisonette Wohnung mit Sonnenterrasse + Doppelgarage in Bestlage von Idstein
619.000 €
Kaufpreis
141,13 m²
Wohnfläche
15,02 m²
Nutzfläche
5
Zimmer
immobilien.de Nr.: 9341947
Objektnummer: ETW 633
Dateien
Preise & Kosten
| Kaufpreis | 619.000 € |
| Nebenkosten | keine Angabe |
| Kaufpreis pro m² | 4386,03 € |
| Hausgeld | 597 € |
| Maklerprovision | 3,57 % vom notariellen Kaufpreis inkl. 19 % |
| Stellplatz Garage Kaufpreis | 18.000 € |
Größe & Zustand
| Wohnfläche | 141,13 m² |
| Nutzfläche | 15,02 m² |
| Gesamtfläche | 156,15 m² |
| Zimmer | 5 |
| Baujahr | 2019 |
| Verfügbar ab | sofort n. Absprache |
| Zustand | Neuwertig |
Energie
| Energieausweistyp | Bedarfsausweis |
| Gültig bis | 2032-05-27 |
| Baujahr (laut Energieausweis) | 2019 |
| Energieeffizienzklasse | B |
| Endenergiebedarf | 128.00 |
| Heizungsart | Fußbodenheizung |
| Wesentlicher Energieträger | Gas |
| Energieträger/Befeuerung | Gas |
Objektbeschreibung
Die von uns angebotene großzügiges 5 Zimmer Maisonette Eigentumswohnung mit großer Sonnenterrasse befindet sich im Herzen der Idsteiner Altstadt und wurde durch die Firma BÜCHER aus Idstein 2019 in massiver Bauweise errichtet.
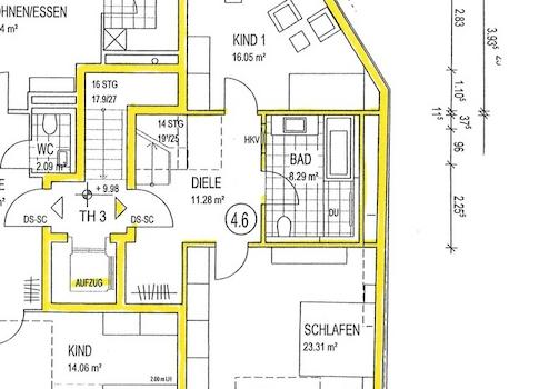
Die Wohnung mit einer Wohnfläche von ca. 141 m² ist auf zwei Wohnebenen verteilt und befindet sich im 3. und 4. Obergeschoss eines Mehrfamilienhauses mit 3 Hauseingängen und jeweils 6 Wohneinheiten sowie 3 Gewerbeeinheiten.
Über das Treppenhaus oder mit dem Fahrstuhl gelangen Sie barrierefrei in Ihr neues Wohndomizil. Von der großzügig geschnittenen Diele aus erreichen Sie die zwei der insgesamt vier Schlafzimmer, sowie das moderne innenliegende Bad mit Badewanne und bodenebener Dusche. Die offene Gestaltung der ersten Wohnebene verleiht der Wohnung eine besondere Raumatmosphäre. Eine freitragende Treppe verbindet die beiden Wohnebenen.
Die großzügige Deckenhöhe im 4. Obergeschoss sowie die elektrische Velux Dachflächenfenster unterstreichen dieses moderne Raumkonzept. Die Velux Dachflächenfenster im Küchenbereich lassen sich doppelt öffnen, somit entsteht ein kleiner begehbarer Dachbalkon. Auf dieser Ebene befindet sich außerdem ein Schlafzimmer, ein Arbeitszimmer und ein weiteres innenliegendes Bad mit Waschtisch, großformatigen Spiegel, bodenebener Dusche und WC.
Den Flur entlang, gelangen Sie in das Herzstück dieser exklusiven Eigentumswohnung der geräumige Wohn- und Essbereich mit angrenzender Küche. Die weiße hochwertige Einbauküche mit Markengeräten der Firma Nobilia wurde erst im Mai 2025 eingebaut.
Die bodentiefen Fenster im Wohnbereich sorgen hier für einen traumhaften Ausblick auf das Highlight der Wohnung, die angrenzende ca. 37 m² große Dachterrasse, welche nach Süd-Ost ausgerichtet liegt. Die repräsentative Dachterrasse befindet sich auf der Rückseite des Hauses mit Blick über die Dächer der Altstadt.
Zu der Wohnung gehört außerdem noch eine abgeschlossene Doppelgarage mit einem elektrischen Garagentor in der Tiefgarage.
Die Wohnung mit einer Wohnfläche von ca. 141 m² ist auf zwei Wohnebenen verteilt und befindet sich im 3. und 4. Obergeschoss eines Mehrfamilienhauses mit 3 Hauseingängen und jeweils 6 Wohneinheiten sowie 3 Gewerbeeinheiten.
Über das Treppenhaus oder mit dem Fahrstuhl gelangen Sie barrierefrei in Ihr neues Wohndomizil. Von der großzügig geschnittenen Diele aus erreichen Sie die zwei der insgesamt vier Schlafzimmer, sowie das moderne innenliegende Bad mit Badewanne und bodenebener Dusche. Die offene Gestaltung der ersten Wohnebene verleiht der Wohnung eine besondere Raumatmosphäre. Eine freitragende Treppe verbindet die beiden Wohnebenen.
Die großzügige Deckenhöhe im 4. Obergeschoss sowie die elektrische Velux Dachflächenfenster unterstreichen dieses moderne Raumkonzept. Die Velux Dachflächenfenster im Küchenbereich lassen sich doppelt öffnen, somit entsteht ein kleiner begehbarer Dachbalkon. Auf dieser Ebene befindet sich außerdem ein Schlafzimmer, ein Arbeitszimmer und ein weiteres innenliegendes Bad mit Waschtisch, großformatigen Spiegel, bodenebener Dusche und WC.
Den Flur entlang, gelangen Sie in das Herzstück dieser exklusiven Eigentumswohnung der geräumige Wohn- und Essbereich mit angrenzender Küche. Die weiße hochwertige Einbauküche mit Markengeräten der Firma Nobilia wurde erst im Mai 2025 eingebaut.
Die bodentiefen Fenster im Wohnbereich sorgen hier für einen traumhaften Ausblick auf das Highlight der Wohnung, die angrenzende ca. 37 m² große Dachterrasse, welche nach Süd-Ost ausgerichtet liegt. Die repräsentative Dachterrasse befindet sich auf der Rückseite des Hauses mit Blick über die Dächer der Altstadt.
Zu der Wohnung gehört außerdem noch eine abgeschlossene Doppelgarage mit einem elektrischen Garagentor in der Tiefgarage.
Ausstattung
| Anzahl der Etagen im Haus | 4 |
| Küche | Einbauküche |
| Bad | 2 |
| Bad | Dusche, Wanne |
| Boden | Fliesen |
| Balkone | 1 |
| Terrassen | 1 |
| Fahrstuhl | |
| Garage/Stellplätze | 2 |
| Haustiere | |
| Keller |
DIE EXKLUSIVE AUSSTATTUNG:
- Aufzug von der Tiefgarage bis zum 3. Obergeschoss
- Video-Gegensprechanlage
- Neue hochwertige Einbauküche der Firma Nobilia (Kaufpreis: 24.000,00 €)
- Großformatige Fliesenbeläge in neutralem weiß gehalten
- Fußbodenheizung in allen Räumen
- Großformatige helle Fliesen im gesamten Wohnungsbereich und in den Bädern
- Bodenebene Duschen in den Bädern mit Ganzglasduschtüren
- Fußbodenheizung und Handtuchwärmer im Master-Bad
- Hochliegende Velux Dachflächenfenster mit elektrischen Rollläden
- Rollladen in Schlafzimmer und Wohnbereich elektrisch und manuell
- Dachterrasse mit ca. 37 m² Fläche
- Wasseranschluss auf der Dachterrasse
- Kellerraum ca. 15 m²
- Wasch-, und Trockenraum mit Anschluss für Waschmaschine und Trockner
- Vergitterte Garagenboxen in der Tiefgarage mit Steckdose und Stromanschluss
- Hausmeisterservice
- Treppenhausreinigung
- Wasser-Enthärtungsanlage
H A U S M E I S T E R S E R V I C E :
Für die Pflege und die technische Betreuung der Immobilie wurde ein Dienstleistervertrag mit einem regionalen Unternehmen abgeschlossen.
F E N S T E R / R O L L L Ä D E N :
Alle Kunststofffenster mit elektrischen Rollläden sind isolierverglast mit verdeckten Kipp- und Drehbeschlägen und Granit Innenfensterbänken.
K E L L E R R A U M :
Im Untergeschoss des Hauses befindet sich ein sehr geräumiger und eigener Kellerraum mit 15 m², der dieser Wohnung zugeordnet ist. Licht und ein Stromanschluss vorhanden.
H E I Z U N G S A N L A G E :
Als Heizungsanlage wurde eine umweltfreundliche energiesparende Gaszentralbrennwertheizung mit zentraler Warmwasserversorgung und Temperaturabhängige, außenthermostatische Regelung, eingebaut.
E N E R G I E A U S W E I S :
Der aktuelle Energieausweis des Hauses liegt uns vor.
Der Energieverbrauchswert liegt bei: 128 (kWh/(m²*a)
H A U S G E L D : € 597,00 (inkl. 107,85 € Erhaltungsrücklage)
ERHALTUNGSRÜCKLAGE per 31.12.2023: insgesamt € 62.733,55; Anteil Wohnung: € 4.347,44
- Aufzug von der Tiefgarage bis zum 3. Obergeschoss
- Video-Gegensprechanlage
- Neue hochwertige Einbauküche der Firma Nobilia (Kaufpreis: 24.000,00 €)
- Großformatige Fliesenbeläge in neutralem weiß gehalten
- Fußbodenheizung in allen Räumen
- Großformatige helle Fliesen im gesamten Wohnungsbereich und in den Bädern
- Bodenebene Duschen in den Bädern mit Ganzglasduschtüren
- Fußbodenheizung und Handtuchwärmer im Master-Bad
- Hochliegende Velux Dachflächenfenster mit elektrischen Rollläden
- Rollladen in Schlafzimmer und Wohnbereich elektrisch und manuell
- Dachterrasse mit ca. 37 m² Fläche
- Wasseranschluss auf der Dachterrasse
- Kellerraum ca. 15 m²
- Wasch-, und Trockenraum mit Anschluss für Waschmaschine und Trockner
- Vergitterte Garagenboxen in der Tiefgarage mit Steckdose und Stromanschluss
- Hausmeisterservice
- Treppenhausreinigung
- Wasser-Enthärtungsanlage
H A U S M E I S T E R S E R V I C E :
Für die Pflege und die technische Betreuung der Immobilie wurde ein Dienstleistervertrag mit einem regionalen Unternehmen abgeschlossen.
F E N S T E R / R O L L L Ä D E N :
Alle Kunststofffenster mit elektrischen Rollläden sind isolierverglast mit verdeckten Kipp- und Drehbeschlägen und Granit Innenfensterbänken.
K E L L E R R A U M :
Im Untergeschoss des Hauses befindet sich ein sehr geräumiger und eigener Kellerraum mit 15 m², der dieser Wohnung zugeordnet ist. Licht und ein Stromanschluss vorhanden.
H E I Z U N G S A N L A G E :
Als Heizungsanlage wurde eine umweltfreundliche energiesparende Gaszentralbrennwertheizung mit zentraler Warmwasserversorgung und Temperaturabhängige, außenthermostatische Regelung, eingebaut.
E N E R G I E A U S W E I S :
Der aktuelle Energieausweis des Hauses liegt uns vor.
Der Energieverbrauchswert liegt bei: 128 (kWh/(m²*a)
H A U S G E L D : € 597,00 (inkl. 107,85 € Erhaltungsrücklage)
ERHALTUNGSRÜCKLAGE per 31.12.2023: insgesamt € 62.733,55; Anteil Wohnung: € 4.347,44
Sonstige Informationen
ÜBER UNS:
Martin Brandt Immobilien, gegründet 1993, ist mit mehr als 32 Jahren Erfahrung einer der führenden Immobilien-Dienstleister in der Rhein-Main-Region. Wir unterstützen Sie als unabhängiger Immobilienmakler mit detaillierter Markt- und Objektkenntnis bei der schnellen und kundenorientierten Immobiliensuche und Vermittlung.
HABEN WIR IHR INTERESSE GEWECKT ?
Diese Immobilie gefällt Ihnen? Sie wünschen eine Besichtigung? Bitte nutzen Sie die elektronische Kontaktmöglichkeit auf dieser Seite und senden Sie uns Ihre Mail mit Angabe Ihres vollständigen Namens, Ihrer Telefon Nummer(n), E-Mail-Adresse und Ihres Terminwunsches. Bitte denken Sie auch an einen möglichen alternativen Termin.
B E S I C H T I G U N G S T E R M I N E :
Für weitere Informationen sowie die Vereinbarung eines Besichtigungstermins stehen wir Ihnen gerne zur Verfügung. Wir freuen uns auf Ihre e-Mail Anfrage unter: immobilien@bpi24.de
A N S P R E C H P A R T N E R :
Martin Brandt und Kerstin Brandt
M A K L E R P R O V I S I O N :
Im Falle des Zustandekommens eines Kaufvertrages, ist eine Courtage in Höhe von 3,57 % inkl. 19 % MwSt. vom vereinbarten und notariellen Kaufpreis vom Käufer an den Makler zu zahlen.
FREUNDLICHER HINWEIS :
Alle Angaben in diesem Exposé wurden sorgfältig und so vollständig wie möglich gemacht. Dennoch kann das Vorhandensein von Fehlern nicht ausgeschlossen werden. Die Angaben in diesem Exposé erfolgen daher ohne Gewähr und basieren ausschließlich auf Informationen, die uns vom Verkäufer/Vermieter bzw. von Dritten zur Verfügung gestellt wurden, so dass wir keine Gewähr für die Vollständigkeit, Richtigkeit und Aktualität dieser Angaben übernehmen können. Irrtum und Zwischenverkauf/Zwischenvermietung bleibt vorbehalten.
Martin Brandt Immobilien, gegründet 1993, ist mit mehr als 32 Jahren Erfahrung einer der führenden Immobilien-Dienstleister in der Rhein-Main-Region. Wir unterstützen Sie als unabhängiger Immobilienmakler mit detaillierter Markt- und Objektkenntnis bei der schnellen und kundenorientierten Immobiliensuche und Vermittlung.
HABEN WIR IHR INTERESSE GEWECKT ?
Diese Immobilie gefällt Ihnen? Sie wünschen eine Besichtigung? Bitte nutzen Sie die elektronische Kontaktmöglichkeit auf dieser Seite und senden Sie uns Ihre Mail mit Angabe Ihres vollständigen Namens, Ihrer Telefon Nummer(n), E-Mail-Adresse und Ihres Terminwunsches. Bitte denken Sie auch an einen möglichen alternativen Termin.
B E S I C H T I G U N G S T E R M I N E :
Für weitere Informationen sowie die Vereinbarung eines Besichtigungstermins stehen wir Ihnen gerne zur Verfügung. Wir freuen uns auf Ihre e-Mail Anfrage unter: immobilien@bpi24.de
A N S P R E C H P A R T N E R :
Martin Brandt und Kerstin Brandt
M A K L E R P R O V I S I O N :
Im Falle des Zustandekommens eines Kaufvertrages, ist eine Courtage in Höhe von 3,57 % inkl. 19 % MwSt. vom vereinbarten und notariellen Kaufpreis vom Käufer an den Makler zu zahlen.
FREUNDLICHER HINWEIS :
Alle Angaben in diesem Exposé wurden sorgfältig und so vollständig wie möglich gemacht. Dennoch kann das Vorhandensein von Fehlern nicht ausgeschlossen werden. Die Angaben in diesem Exposé erfolgen daher ohne Gewähr und basieren ausschließlich auf Informationen, die uns vom Verkäufer/Vermieter bzw. von Dritten zur Verfügung gestellt wurden, so dass wir keine Gewähr für die Vollständigkeit, Richtigkeit und Aktualität dieser Angaben übernehmen können. Irrtum und Zwischenverkauf/Zwischenvermietung bleibt vorbehalten.
Lage des Objektes
Die Hochschulstadt Idstein... ist ein schönes und aufstrebendes Mittelzentrum mit hoher Wohnqualität und vielen Möglichkeiten zur Deckung des täglichen Bedarfs. Idstein hat eine urgemütliche, historisch wertvolle Altstadt mit wunderschönen Fachwerkhäusern und gut sortierten Geschäften, 2 Galerien in der Altstadt, diversen Cafés, schönen Restaurants und Hotels.
SCHULEN / KINDERGÄRTEN:
Idstein verfügt über alle Schulen (PSI, Taubenbergschule und Montessorischule) und insgesamt fünf Kindergärten und natürlich vielfältige Angebote zur Vereinbarkeit von Beruf und Familie.
GEWERBE IN IDSTEIN:
In Idstein hat sich ein stark expandierendes Gewerbegebiet angesiedelt und verfügt als historisch bedeutsames und modernes Mittelzentrum und Kern des Idsteiner Landes über eine vielfältige Einzelhandelsstruktur.
EINWOHNERZAHL:
Idstein hat derzeit ca. 28.000 Einwohner. Die Kernstadt von Idstein hat ca. 18.000 Einwohner.
EXZELLENTE EINKAUFSMÖGLICHKEITEN:
- Idsteiner Wochenmarkt Mittwoch und Samstag
- Denn´s Naturkostladen - Bio Der Hofladen Vin Elli
- EDEKA - HIT - REWE - Netto - Aldi - Lidl - Penny - Norma - DM Drogerie
- Rossmann - Getränkemärkte - OBI...
HOCHSCHULSTANDORT IDSTEIN:
Hochschule FRESENIUS mit ca. 2400 Studenten
SPORT IN IDSTEIN
- Turn Verein TV Idstein
- Tennis Club TC
- Premium Sport Center
- Clever Fit Studio
- Idsteiner Golfclub - zwei 18 Loch Golfplätze
- „Südkurs + Nordkurs“ in Idstein-Wörsdorf vor den Türen der Stadt.
UNTERNEHMEN:
Es gibt in Idstein ca. 200 kleinere und mittlere, vor allem Handwerks- und Einzelhandelsunternehmen, welche das gewerbliche Idstein prägen.
VERKEHRSANBINDUNG / BUS UND BAHN:
Die Stadt verfügt über hervorragende Bus- und Bahnanbindungen nach Wiesbaden und Frankfurt. Als Ergänzung zu den lokalen und regionalen Busverbindungen in der Kernstadt wird noch ein Busstadtverkehr angeboten.
PARKEN IN IDSTEIN:
Idstein verfügt über zwei Tiefgaragen und zwei große Parkplätze die jeweils 24 Stunden geöffnet sind.
SCHULEN / KINDERGÄRTEN:
Idstein verfügt über alle Schulen (PSI, Taubenbergschule und Montessorischule) und insgesamt fünf Kindergärten und natürlich vielfältige Angebote zur Vereinbarkeit von Beruf und Familie.
GEWERBE IN IDSTEIN:
In Idstein hat sich ein stark expandierendes Gewerbegebiet angesiedelt und verfügt als historisch bedeutsames und modernes Mittelzentrum und Kern des Idsteiner Landes über eine vielfältige Einzelhandelsstruktur.
EINWOHNERZAHL:
Idstein hat derzeit ca. 28.000 Einwohner. Die Kernstadt von Idstein hat ca. 18.000 Einwohner.
EXZELLENTE EINKAUFSMÖGLICHKEITEN:
- Idsteiner Wochenmarkt Mittwoch und Samstag
- Denn´s Naturkostladen - Bio Der Hofladen Vin Elli
- EDEKA - HIT - REWE - Netto - Aldi - Lidl - Penny - Norma - DM Drogerie
- Rossmann - Getränkemärkte - OBI...
HOCHSCHULSTANDORT IDSTEIN:
Hochschule FRESENIUS mit ca. 2400 Studenten
SPORT IN IDSTEIN
- Turn Verein TV Idstein
- Tennis Club TC
- Premium Sport Center
- Clever Fit Studio
- Idsteiner Golfclub - zwei 18 Loch Golfplätze
- „Südkurs + Nordkurs“ in Idstein-Wörsdorf vor den Türen der Stadt.
UNTERNEHMEN:
Es gibt in Idstein ca. 200 kleinere und mittlere, vor allem Handwerks- und Einzelhandelsunternehmen, welche das gewerbliche Idstein prägen.
VERKEHRSANBINDUNG / BUS UND BAHN:
Die Stadt verfügt über hervorragende Bus- und Bahnanbindungen nach Wiesbaden und Frankfurt. Als Ergänzung zu den lokalen und regionalen Busverbindungen in der Kernstadt wird noch ein Busstadtverkehr angeboten.
PARKEN IN IDSTEIN:
Idstein verfügt über zwei Tiefgaragen und zwei große Parkplätze die jeweils 24 Stunden geöffnet sind.
Anbieter kontaktieren
Anbieter
Martin Brandt Immobilien
Wiesbadener Straße 6
65510 Idstein
Kontakt
| Telefon | 0049612656427 |
