Seltene Gelegenheit: Wyk-Südstrand - exklusives Einzelhaus. Provisionsfrei!
1.348.000 €
Kaufpreis
132 m²
Wohnfläche
8
Zimmer
immobilien.de Nr.: 9336620
Objektnummer: 391476
Preise & Kosten
| Kaufpreis | 1.348.000 € |
| Nebenkosten | keine Angabe |
| Maklerprovision | keine Provision, courtagefrei |
Größe & Zustand
| Wohnfläche | 132 m² |
| Grundstücksfläche | 412 m² |
| Zimmer | 8 |
| Baujahr | 2012 |
| Verfügbar ab | nach Absprache |
| Zustand | Gepflegt |
Energie
| Energieausweistyp | Verbrauch |
| Energieverbrauchkennwert | 77 kWh/(m²*a) |
| Heizungsart | Zentralheizung |
| Energieträger/Befeuerung | Luft-Wärme-Pumpe |
Objektbeschreibung
Seltene Gelegenheit. Wyk-Südstrand. In Topp-Lage. Großzügiges Einzelhaus. Mit viel Komfort und vor allem viel Platz. Sehr gepflegter Zustand. Direkt vom Eigentümer. Provisionsfrei!
Im EG erwartet Sie ein offener Eingangsbereich sowie ein großzügiger Wohn- und Küchenbereich. Dazu noch gemütliches Gastzimmer mit einem Einzelbett - mit separatem Gäste-WC.
Im OG finden Sie 2 Schlafzimmer mit bequemen Boxspring-Doppelbetten und Einbauschränken. 1 Bad en Suite - mit Walk-in Dusche und Badewanne. 1 separates Bad - mit Doppelwaschtisch und Walk-in Dusche. Dazu eine Leseecke als zusätzliche Rückzugsmöglichkeit neben dem Treppenaufgang.
Die offenen Galerie im DG ist in zwei durch eine Tür getrennte Bereiche aufgeteilt. im vorderen Teil in einen Schlafbereich mit 2 Einzelbetten ausgestattet, im hinteren Teil in einen Arbeitsbereich mit einem großen Schreibtisch direkt vor dem Fenster.
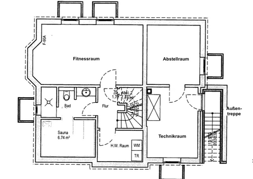
Das UG finden Sie einen separaten Wellness- und Fitnessbereich, ausgestattet mit hochwertigen Trainingsgeräten, einem Duschbad mit Rainfall-Dusche und großer Sauna. Dazu einen weiteren Rückzugsraum, den Hauswirtschaftsraum mit Waschmaschine und Trockner sowie den Technikraum.
Im EG erwartet Sie ein offener Eingangsbereich sowie ein großzügiger Wohn- und Küchenbereich. Dazu noch gemütliches Gastzimmer mit einem Einzelbett - mit separatem Gäste-WC.
Im OG finden Sie 2 Schlafzimmer mit bequemen Boxspring-Doppelbetten und Einbauschränken. 1 Bad en Suite - mit Walk-in Dusche und Badewanne. 1 separates Bad - mit Doppelwaschtisch und Walk-in Dusche. Dazu eine Leseecke als zusätzliche Rückzugsmöglichkeit neben dem Treppenaufgang.
Die offenen Galerie im DG ist in zwei durch eine Tür getrennte Bereiche aufgeteilt. im vorderen Teil in einen Schlafbereich mit 2 Einzelbetten ausgestattet, im hinteren Teil in einen Arbeitsbereich mit einem großen Schreibtisch direkt vor dem Fenster.
Das UG finden Sie einen separaten Wellness- und Fitnessbereich, ausgestattet mit hochwertigen Trainingsgeräten, einem Duschbad mit Rainfall-Dusche und großer Sauna. Dazu einen weiteren Rückzugsraum, den Hauswirtschaftsraum mit Waschmaschine und Trockner sowie den Technikraum.
Ausstattung
| Anzahl der Etagen im Haus | 2 |
| Küche | Einbauküche |
| Bad | 3 |
| Bad | Dusche, Wanne |
| Boden | Fliesen, Parkett |
| Balkone | 1 |
| Garten | |
| Terrassen | 1 |
| Keller |
Balkon, Terrasse, Garten, Keller, Vollbad, Duschbad, Sauna, Einbauküche, Gäste-WC, Kamin, Parkett, Fliesen
Bemerkungen:
Das Haus ist hochwertig eingerichtet und komplett ausgestattet. Die Böden sind - bis auf die gefliesten Bäder und den gefliesten Küchenbereich - mit Eichenparkett ausgelegt. Die meisten Möbel sind individuell vom Inseltischler angefertigt und eingebaut. Geheizt wird hauptsächlich über ein Wärmepumpenanlage mit Energiegewinnung über die Außenluft.
Bemerkungen:
Das Haus ist hochwertig eingerichtet und komplett ausgestattet. Die Böden sind - bis auf die gefliesten Bäder und den gefliesten Küchenbereich - mit Eichenparkett ausgelegt. Die meisten Möbel sind individuell vom Inseltischler angefertigt und eingebaut. Geheizt wird hauptsächlich über ein Wärmepumpenanlage mit Energiegewinnung über die Außenluft.
Sonstige Informationen
Heizungsart: Zentralheizung
Energieträger: Luft-/Wasserwärme
Privatverkauf direkt vom Eigentümer. Provisionsfrei.
Gute Belegungszahlen, überschaubare Kosten.
Amtliche Genehmigung zur Ferienvermietung liegt vor. Ebenso der Energieausweis.
Bestehende Vermietungsverträge müssen übernommen werden. Unterstützung bei Einstieg ins Vermietungsgeschäft gerne möglich.
Einrichtung und Ausstattung im Wert von € 40.000 sind im Verkaufspreis nicht enthalten.
Besichtigungstermine kurzfristig machbar, die Besitzer leben in Wyk.
Makleranfragen unerwünscht. Werden nicht beantwortet.
Makleranfragen nicht erwünscht. Nach § 7 UWG sind unaufgeforderte Kontaktaufnahmen durch Makler ohne ausdrückliche Einwilligung des Empfängers verboten!
ohne-makler (OM) ist weder Anbieter noch Vermittler der Immobilie. OM betreibt eine Plattform für Immobilieneigentümer, die unter anderem die gleichzeitige Veröffentlichung einzelner Inserate auf mehreren Immobilienportalen ermöglicht. Die Inhalte dieser Inserate werden ausschließlich von Dritten verantwortet. Für die Richtigkeit, Vollständigkeit oder Rechtmäßigkeit der Angaben übernimmt OM keine Haftung. Hinweise auf mögliche Rechtsverstöße können jederzeit gemeldet werden und werden nach Prüfung umgehend bearbeitet.
Energieträger: Luft-/Wasserwärme
Privatverkauf direkt vom Eigentümer. Provisionsfrei.
Gute Belegungszahlen, überschaubare Kosten.
Amtliche Genehmigung zur Ferienvermietung liegt vor. Ebenso der Energieausweis.
Bestehende Vermietungsverträge müssen übernommen werden. Unterstützung bei Einstieg ins Vermietungsgeschäft gerne möglich.
Einrichtung und Ausstattung im Wert von € 40.000 sind im Verkaufspreis nicht enthalten.
Besichtigungstermine kurzfristig machbar, die Besitzer leben in Wyk.
Makleranfragen unerwünscht. Werden nicht beantwortet.
Makleranfragen nicht erwünscht. Nach § 7 UWG sind unaufgeforderte Kontaktaufnahmen durch Makler ohne ausdrückliche Einwilligung des Empfängers verboten!
ohne-makler (OM) ist weder Anbieter noch Vermittler der Immobilie. OM betreibt eine Plattform für Immobilieneigentümer, die unter anderem die gleichzeitige Veröffentlichung einzelner Inserate auf mehreren Immobilienportalen ermöglicht. Die Inhalte dieser Inserate werden ausschließlich von Dritten verantwortet. Für die Richtigkeit, Vollständigkeit oder Rechtmäßigkeit der Angaben übernimmt OM keine Haftung. Hinweise auf mögliche Rechtsverstöße können jederzeit gemeldet werden und werden nach Prüfung umgehend bearbeitet.
Lage des Objektes
Topp-Lage in Wyk-Südstrand. Nur ca. 200 m Zum Sandstrand. Ein mit vielen Büschen eingefasstes Grundstück garantiert entspannte Stunden auf der Terrasse oder in Garten auf der Wellness-Liege. Zum schönen Wyker Sandstrand sind es nur wenige Meter. Die Wyker Innenstadt ist schnell zu Fuß oder mit dem Fahrrad erreichbar. Restaurants sind in der Nähe, genauso ein Bäcker, Metzger und ein Lebensmittel-Geschäft,
Infrastruktur (im Umkreis von 5 km):
Apotheke, Lebensmittel-Discount, Allgemeinmediziner, Grundschule, Realschule, Öffentliche Verkehrsmittel
Infrastruktur (im Umkreis von 5 km):
Apotheke, Lebensmittel-Discount, Allgemeinmediziner, Grundschule, Realschule, Öffentliche Verkehrsmittel
