Saniertes Wohn- und Geschäftshaus in Schwäbisch Gmünd
300.000 €
Kaufpreis
105 m²
Wohnfläche
6
Zimmer
immobilien.de Nr.: 9335378
Objektnummer: 391276
Preise & Kosten
| Kaufpreis | 300.000 € |
| Nebenkosten | keine Angabe |
| Maklerprovision | keine Provision, courtagefrei |
Größe & Zustand
| Wohnfläche | 105 m² |
| Grundstücksfläche | 55 m² |
| Zimmer | 6 |
| Verfügbar ab | nach Absprache |
| Zustand | Teil Vollsaniert |
Energie
| Heizungsart | Zentralheizung |
| Energieträger/Befeuerung | Gas |
Objektbeschreibung
- Kernsanierung 2010: Neues Dach, Aufdachdämmung, neue Fenster, neue Fassade mit 10 cm Vollwärmeschutz.
- Neue Elektrik inkl. Netzwerkverkabelung in jedem Raum.
- Neuer Boden: Betonbodenplatte im EG mit Styrodurdämmung.
- Gasheizung und neue Heizkörper.
- Neue Wasserleitungen
- Modernisierung 2015/2016: Komplett erneuertes Badezimmer und 2 separate Toiletten.
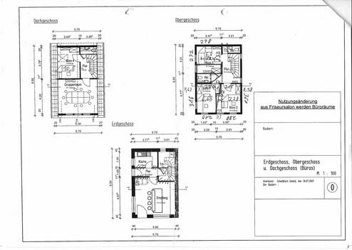
- 6 Zimmer auf 3 Etagen – flexible Nutzungsmöglichkeiten
- Hohe Vermietbarkeit und attraktive Rendite – aktuell an eine WG vermietet. (Immobilie kann vermietet oder leerstehend übergeben werden.)
- Immobilie kann als Geschäftshaus genutzt werden. 2 Schaufenster an gut frequentierter Straße. Ehemals Friseur und Finanzbüro.
- Erweiterungspotenzial: Pläne für einen zusätzlichen Eingang liegen vor, sodass der Verkaufsraum unabhängig vom Wohnbereich genutzt werden kann.
- Neue Elektrik inkl. Netzwerkverkabelung in jedem Raum.
- Neuer Boden: Betonbodenplatte im EG mit Styrodurdämmung.
- Gasheizung und neue Heizkörper.
- Neue Wasserleitungen
- Modernisierung 2015/2016: Komplett erneuertes Badezimmer und 2 separate Toiletten.
- 6 Zimmer auf 3 Etagen – flexible Nutzungsmöglichkeiten
- Hohe Vermietbarkeit und attraktive Rendite – aktuell an eine WG vermietet. (Immobilie kann vermietet oder leerstehend übergeben werden.)
- Immobilie kann als Geschäftshaus genutzt werden. 2 Schaufenster an gut frequentierter Straße. Ehemals Friseur und Finanzbüro.
- Erweiterungspotenzial: Pläne für einen zusätzlichen Eingang liegen vor, sodass der Verkaufsraum unabhängig vom Wohnbereich genutzt werden kann.
Ausstattung
| Küche | Einbauküche |
| Bad | Dusche |
Duschbad, Einbauküche, Gäste-WC
Bemerkungen:
Zum Verkauf steht eine charmante Immobilie mit 105 qm Wohnfläche auf drei Etagen, die sowohl als Wohn- als auch Geschäftshaus genutzt werden kann. Die Liegenschaft befindet sich in zentraler Lage, mitten in der Altstadt von Schwäbisch Gmünd, und bietet zahlreiche Nutzungsmöglichkeiten. Das Haus wurde ca. im Jahr 1917 erbaut, kein Denkmalschutz.
Bemerkungen:
Zum Verkauf steht eine charmante Immobilie mit 105 qm Wohnfläche auf drei Etagen, die sowohl als Wohn- als auch Geschäftshaus genutzt werden kann. Die Liegenschaft befindet sich in zentraler Lage, mitten in der Altstadt von Schwäbisch Gmünd, und bietet zahlreiche Nutzungsmöglichkeiten. Das Haus wurde ca. im Jahr 1917 erbaut, kein Denkmalschutz.
Sonstige Informationen
Heizungsart: Zentralheizung
Energieträger: Gas
Energieausweis nicht vorhanden
Makleranfragen nicht erwünscht. Nach § 7 UWG sind unaufgeforderte Kontaktaufnahmen durch Makler ohne ausdrückliche Einwilligung des Empfängers verboten!
ohne-makler (OM) ist weder Anbieter noch Vermittler der Immobilie. OM betreibt eine Plattform für Immobilieneigentümer, die unter anderem die gleichzeitige Veröffentlichung einzelner Inserate auf mehreren Immobilienportalen ermöglicht. Die Inhalte dieser Inserate werden ausschließlich von Dritten verantwortet. Für die Richtigkeit, Vollständigkeit oder Rechtmäßigkeit der Angaben übernimmt OM keine Haftung. Hinweise auf mögliche Rechtsverstöße können jederzeit gemeldet werden und werden nach Prüfung umgehend bearbeitet.
Energieträger: Gas
Energieausweis nicht vorhanden
Makleranfragen nicht erwünscht. Nach § 7 UWG sind unaufgeforderte Kontaktaufnahmen durch Makler ohne ausdrückliche Einwilligung des Empfängers verboten!
ohne-makler (OM) ist weder Anbieter noch Vermittler der Immobilie. OM betreibt eine Plattform für Immobilieneigentümer, die unter anderem die gleichzeitige Veröffentlichung einzelner Inserate auf mehreren Immobilienportalen ermöglicht. Die Inhalte dieser Inserate werden ausschließlich von Dritten verantwortet. Für die Richtigkeit, Vollständigkeit oder Rechtmäßigkeit der Angaben übernimmt OM keine Haftung. Hinweise auf mögliche Rechtsverstöße können jederzeit gemeldet werden und werden nach Prüfung umgehend bearbeitet.
Lage des Objektes
Durch die hervorragende Lage in der Altstadt von Schwäbisch Gmünd sind Einkaufsmöglichkeiten, Restaurants und öffentliche Verkehrsmittel in direkter Nähe. Ideal für Selbstnutzer oder als Kapitalanlage!
Vereinbaren Sie noch heute einen Besichtigungstermin und überzeugen Sie sich von der Qualität und dem Potenzial dieser Immobilie!
Die Immobilie liegt in belebter Gegend in Schwäbisch Gmünd. Mehrere Buslinien in der Nähe. In Laufnähe gibt es mehrere Ärzte, Cafés, Restaurants, Bäckereien und Einkaufszentren. Auch einige Modegeschäfte, Grün- und Parkanlagen, Bars, Fitnessstudios und Buchhandlungen sind gut erreichbar.
Infrastruktur (im Umkreis von 5 km):
Apotheke, Lebensmittel-Discount, Allgemeinmediziner, Kindergarten, Grundschule, Hauptschule, Realschule, Gymnasium, Gesamtschule, Öffentliche Verkehrsmittel
Vereinbaren Sie noch heute einen Besichtigungstermin und überzeugen Sie sich von der Qualität und dem Potenzial dieser Immobilie!
Die Immobilie liegt in belebter Gegend in Schwäbisch Gmünd. Mehrere Buslinien in der Nähe. In Laufnähe gibt es mehrere Ärzte, Cafés, Restaurants, Bäckereien und Einkaufszentren. Auch einige Modegeschäfte, Grün- und Parkanlagen, Bars, Fitnessstudios und Buchhandlungen sind gut erreichbar.
Infrastruktur (im Umkreis von 5 km):
Apotheke, Lebensmittel-Discount, Allgemeinmediziner, Kindergarten, Grundschule, Hauptschule, Realschule, Gymnasium, Gesamtschule, Öffentliche Verkehrsmittel
