7 Zimmer Niedrigenergie (A+) Einfamilienhaus
749.000 €
Kaufpreis
196 m²
Wohnfläche
7
Zimmer
immobilien.de Nr.: 9335250
Objektnummer: 402714
Preise & Kosten
| Kaufpreis | 749.000 € |
| Nebenkosten | keine Angabe |
| Maklerprovision | keine Provision, courtagefrei |
Größe & Zustand
| Wohnfläche | 196 m² |
| Grundstücksfläche | 715 m² |
| Zimmer | 7 |
| Baujahr | 2014 |
| Verfügbar ab | nach Absprache |
| Zustand | Gepflegt |
Energie
| Energieausweistyp | Bedarfsausweis |
| Energieeffizienzklasse | A+ |
| Endenergiebedarf | 29 |
| Heizungsart | Fußbodenheizung |
| Energieträger/Befeuerung | Luft-Wärme-Pumpe |
Objektbeschreibung
Diese Top-Immobilie mit gehobener Ausstattung wurde im Jahre 2014 nach KfW 70 Standard in massiver Bauweise auf einem 715 m² großen Grundstück mit großer Süd-West Terrasse in begehrter, ruhiger und zentraler Lage im Ortsteil Schwinde/Stove erbaut. Sie verfügt über 196 m² gut durchdachte Wohnfläche und etliche bodentiefe Fenster.
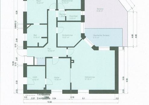
Das barrierefreie Erdgeschoss mit 135m² Wohnfläche bietet u.a. fünf Zimmer (davon drei Schlafzimmer), zwei Bäder sowie einen überdachten Freisitz. Das Obergeschoss mit 61 m² Wohnfläche verfügt über zwei geräumige Zimmer mit einer Deckenhöhe von knapp drei Metern, Vollbad sowie eine Galerie.
Ein Blickfang ist das großzügige, lichtdurchflutete Wohnzimmer mit Kaminanschluss, von dem aus man direkt auf die Terrasse mit angrenzendem ausgedehntem, eingewachsenem Garten gelangt. Vom Schlafzimmer betritt man das großzügige Bad en-suite mit Dusche, Badewanne und Fenster.
Von der modernen, offenen Küche geht der Hauswirtschafts- & Technikraum mit Außenzugang zum Carport, Wallbox und Geräteschuppen ab. Eine Holzbrücke führt vom Grundstück zur angrenzenden Grünfläche. Zwei weitere komfortabel ausgelegte Stellplätze vervollständigen die Parksituation.
Die hellen Zimmer im Obergeschoss bestechen durch Großzügigkeit und sichtbare Balken. Das dortige Bad ist mit Dusche, WC und Waschbecken komplett ausgestattet, zwei Fenster sorgen für Belüftung und Tageslicht. Eine Galerie, die sich als Arbeitsplatz oder Leseecke eignet, rundet das stimmige Wohnkonzept ab.
Highlights der Immobilie auf einen Blick:
Absolut ruhige Wohnlage in verkehrsberuhigter Sackgassenlage
Großes abgeschlossenes Grundstück mit viel Privatsphäre
Südterrasse mit ganztägiger Sonne
Verkehrsgünstige Anbindung
Kindergärten, Schulen und Einkaufsmöglichkeiten in unmittelbarer Nähe
Naturnahes Wohnen mit Elbzugang, Wander- und Radwegen
Attraktive Nachbarschaft mit gehobenem Wohnumfeld
Drei moderne Bäder
Energieklasse A+ mit Luft-Wasser-Wärmepumpe und Fußbodenerwärmung
Glasfaser, Wallbox
Umbaubar zum ZFH
Zur Besseren Vorstellung wurden Fotos digital mit Möbeln, Objekten und Personen ergänzt. Die Aufnahmen sollen zeigen, wie sich Räume und Garten nutzen und gestalten lassen. Das Haus wird mit Ausnahme der Einbauküche unmöbliert verkauft.
Das barrierefreie Erdgeschoss mit 135m² Wohnfläche bietet u.a. fünf Zimmer (davon drei Schlafzimmer), zwei Bäder sowie einen überdachten Freisitz. Das Obergeschoss mit 61 m² Wohnfläche verfügt über zwei geräumige Zimmer mit einer Deckenhöhe von knapp drei Metern, Vollbad sowie eine Galerie.
Ein Blickfang ist das großzügige, lichtdurchflutete Wohnzimmer mit Kaminanschluss, von dem aus man direkt auf die Terrasse mit angrenzendem ausgedehntem, eingewachsenem Garten gelangt. Vom Schlafzimmer betritt man das großzügige Bad en-suite mit Dusche, Badewanne und Fenster.
Von der modernen, offenen Küche geht der Hauswirtschafts- & Technikraum mit Außenzugang zum Carport, Wallbox und Geräteschuppen ab. Eine Holzbrücke führt vom Grundstück zur angrenzenden Grünfläche. Zwei weitere komfortabel ausgelegte Stellplätze vervollständigen die Parksituation.
Die hellen Zimmer im Obergeschoss bestechen durch Großzügigkeit und sichtbare Balken. Das dortige Bad ist mit Dusche, WC und Waschbecken komplett ausgestattet, zwei Fenster sorgen für Belüftung und Tageslicht. Eine Galerie, die sich als Arbeitsplatz oder Leseecke eignet, rundet das stimmige Wohnkonzept ab.
Highlights der Immobilie auf einen Blick:
Absolut ruhige Wohnlage in verkehrsberuhigter Sackgassenlage
Großes abgeschlossenes Grundstück mit viel Privatsphäre
Südterrasse mit ganztägiger Sonne
Verkehrsgünstige Anbindung
Kindergärten, Schulen und Einkaufsmöglichkeiten in unmittelbarer Nähe
Naturnahes Wohnen mit Elbzugang, Wander- und Radwegen
Attraktive Nachbarschaft mit gehobenem Wohnumfeld
Drei moderne Bäder
Energieklasse A+ mit Luft-Wasser-Wärmepumpe und Fußbodenerwärmung
Glasfaser, Wallbox
Umbaubar zum ZFH
Zur Besseren Vorstellung wurden Fotos digital mit Möbeln, Objekten und Personen ergänzt. Die Aufnahmen sollen zeigen, wie sich Räume und Garten nutzen und gestalten lassen. Das Haus wird mit Ausnahme der Einbauküche unmöbliert verkauft.
Ausstattung
| Küche | Einbauküche |
| Bad | 3 |
| Bad | Dusche, Wanne |
| Boden | Fliesen, Kunststoff |
| Balkone | 0 |
| Garten | |
| Terrassen | 1 |
| Barrierefrei | |
| Carport | 1 |
Terrasse, Garten, Vollbad, Duschbad, Einbauküche, Gäste-WC, Kamin, Barrierefrei, Fliesen
Bemerkungen:
KFW 70 Standard, Energieklasse A+
Buderus Luft-Wasser-Wärmepumpe
HWR mit Waschmaschinenanschluss und Zugang zum Carport
Fußbodenerwärmung mit Einzelraumregelung im gesamten Gebäude
Bäder im Erdgeschoss mit ebenerdigen Duschen und Wanne bzw. Heizspiegel
High-Speed Glasfaser
Wallbox
Elektrische Außenrollläden im Erdgeschoss
Außenspots mit Bewegungsmelder
3-fach Verglasung, mehrere bodentiefe Fenster
Klinkerverblendung
Engobierte Tondachziegel
Weißlack-Innentüren
Carport (1 Stellplatz) mit Geräteschuppen
Weitere Außenstellplätze: 2
Überdachter Fahrradständer
Überdachter Freisitz
Geschosstreppe massiv
Vollausgestattete offene Küche mit hochwertigen Geräten (Siemens, AEG): Kühl- / Gefrierkombination, Ceranfeld/Induktion, Umluftofen, Dunsthaube und Geschirrspüler
Außenwasseranschluss zur Gartenbewässerung mit separatem Wasserzähler
Vollkommen umzäuntes Süd-West Grundstück mit Obstbäumen
Zierbrunnen im Vorgarten
SAT-Schüssel
Energieausweis: Energiebedarfsausweis liegt vor
Wesentliche Energieträger: Strom-Mix
Wärmeerzeuger: Wärmepumpe Luft-Wasser
Endenergiebedarf: 29.7 kWh(m²*a)
Energieeffizienzklasse: A+
Gültig bis: 2035-06-29
Baujahr (gemäß Energieausweis): 2014
Heizungsart: Fußbodenheizung
Bemerkungen:
KFW 70 Standard, Energieklasse A+
Buderus Luft-Wasser-Wärmepumpe
HWR mit Waschmaschinenanschluss und Zugang zum Carport
Fußbodenerwärmung mit Einzelraumregelung im gesamten Gebäude
Bäder im Erdgeschoss mit ebenerdigen Duschen und Wanne bzw. Heizspiegel
High-Speed Glasfaser
Wallbox
Elektrische Außenrollläden im Erdgeschoss
Außenspots mit Bewegungsmelder
3-fach Verglasung, mehrere bodentiefe Fenster
Klinkerverblendung
Engobierte Tondachziegel
Weißlack-Innentüren
Carport (1 Stellplatz) mit Geräteschuppen
Weitere Außenstellplätze: 2
Überdachter Fahrradständer
Überdachter Freisitz
Geschosstreppe massiv
Vollausgestattete offene Küche mit hochwertigen Geräten (Siemens, AEG): Kühl- / Gefrierkombination, Ceranfeld/Induktion, Umluftofen, Dunsthaube und Geschirrspüler
Außenwasseranschluss zur Gartenbewässerung mit separatem Wasserzähler
Vollkommen umzäuntes Süd-West Grundstück mit Obstbäumen
Zierbrunnen im Vorgarten
SAT-Schüssel
Energieausweis: Energiebedarfsausweis liegt vor
Wesentliche Energieträger: Strom-Mix
Wärmeerzeuger: Wärmepumpe Luft-Wasser
Endenergiebedarf: 29.7 kWh(m²*a)
Energieeffizienzklasse: A+
Gültig bis: 2035-06-29
Baujahr (gemäß Energieausweis): 2014
Heizungsart: Fußbodenheizung
Sonstige Informationen
Heizungsart: Fußbodenheizung
Energieträger: Luft-/Wasserwärme
Makleranfragen nicht erwünscht. Nach § 7 UWG sind unaufgeforderte Kontaktaufnahmen durch Makler ohne ausdrückliche Einwilligung des Empfängers verboten!
ohne-makler (OM) ist weder Anbieter noch Vermittler der Immobilie. OM betreibt eine Plattform für Immobilieneigentümer, die unter anderem die gleichzeitige Veröffentlichung einzelner Inserate auf mehreren Immobilienportalen ermöglicht. Die Inhalte dieser Inserate werden ausschließlich von Dritten verantwortet. Für die Richtigkeit, Vollständigkeit oder Rechtmäßigkeit der Angaben übernimmt OM keine Haftung. Hinweise auf mögliche Rechtsverstöße können jederzeit gemeldet werden und werden nach Prüfung umgehend bearbeitet.
Energieträger: Luft-/Wasserwärme
Makleranfragen nicht erwünscht. Nach § 7 UWG sind unaufgeforderte Kontaktaufnahmen durch Makler ohne ausdrückliche Einwilligung des Empfängers verboten!
ohne-makler (OM) ist weder Anbieter noch Vermittler der Immobilie. OM betreibt eine Plattform für Immobilieneigentümer, die unter anderem die gleichzeitige Veröffentlichung einzelner Inserate auf mehreren Immobilienportalen ermöglicht. Die Inhalte dieser Inserate werden ausschließlich von Dritten verantwortet. Für die Richtigkeit, Vollständigkeit oder Rechtmäßigkeit der Angaben übernimmt OM keine Haftung. Hinweise auf mögliche Rechtsverstöße können jederzeit gemeldet werden und werden nach Prüfung umgehend bearbeitet.
Lage des Objektes
Begehrte, ruhige Wohnlage in einer verkehrsberuhigten Anliegerstraße (Sackgasse, 30er Zone), elb- & strandnah. HVV-Haltestelle, Kindergarten mit Nachmittagsbetreuung, Krippe, Grundschule, Spiel- und Bolzplatz, Sporthalle und Edeka mit Café und Bäcker, Hofläden und Restaurant in unmittelbarer Umgebung.
Weiterführende Schulen, komplette Nahversorgung (Hol-ab, budni, REWE, Penny, ALDI, Famila, expert, toom, Optiker, Bücherei, Post usw.) Ärzte, Apotheke, Lokale, Banken, Sportplätze & Schwimmbäder befinden sich leicht erreichbar in 3-5 km Entfernung.
Schwinde liegt landschaftlich reizvoll an der Elbe im Zentrum der niedersächsischen Samtgemeinde Elbmarsch im Landkreis Harburg (WL), etwa 30 km südöstlich von Hamburg, 20 km nordwestlich von Lüneburg, 16 km südöstlich von Hamburg-Bergedorf, 11 km nordöstlich von der Kreisstadt Winsen (Luhe) und 5 km südwestlich von Geesthacht.
Zahlreiche Freizeitaktivitäten wie Wassersport, Pferdesport, Fußball, Handball, Tennis, Radsport und Camping prägen die auch an Vereinsleben reiche Samtgemeinde Elbmarsch mit ihrer sehr guten Infrastruktur.
Die Hansestadt Lüneburg und die Hamburger Innenstadt befinden sich im Umkreis von ca. 25 Autominuten über die Autobahnen A39 bzw. A25, die Kreisstadt Winsen/Luhe (Metronom) und Hamburg-Bergedorf (S-Bahn/Regionalbahn) in ca. 15 Min. Etliche Buslinien des Hamburger Verkehrsverbundes HVV verbinden die Gemeinde mit dem Umland und der Hansestadt Hamburg und stellen die Schülerbeförderung sicher.
Das gewachsene, gepflegte Wohngebiet mit guter Nachbarschaft bietet ein ideales Umfeld für Familien mit Kindern, Tierhalter, Naturliebhaber und Pendler gleichermaßen
Infrastruktur (im Umkreis von 5 km):
Apotheke, Lebensmittel-Discount, Allgemeinmediziner, Kindergarten, Grundschule, Hauptschule, Realschule, Gymnasium, Öffentliche Verkehrsmittel
Weiterführende Schulen, komplette Nahversorgung (Hol-ab, budni, REWE, Penny, ALDI, Famila, expert, toom, Optiker, Bücherei, Post usw.) Ärzte, Apotheke, Lokale, Banken, Sportplätze & Schwimmbäder befinden sich leicht erreichbar in 3-5 km Entfernung.
Schwinde liegt landschaftlich reizvoll an der Elbe im Zentrum der niedersächsischen Samtgemeinde Elbmarsch im Landkreis Harburg (WL), etwa 30 km südöstlich von Hamburg, 20 km nordwestlich von Lüneburg, 16 km südöstlich von Hamburg-Bergedorf, 11 km nordöstlich von der Kreisstadt Winsen (Luhe) und 5 km südwestlich von Geesthacht.
Zahlreiche Freizeitaktivitäten wie Wassersport, Pferdesport, Fußball, Handball, Tennis, Radsport und Camping prägen die auch an Vereinsleben reiche Samtgemeinde Elbmarsch mit ihrer sehr guten Infrastruktur.
Die Hansestadt Lüneburg und die Hamburger Innenstadt befinden sich im Umkreis von ca. 25 Autominuten über die Autobahnen A39 bzw. A25, die Kreisstadt Winsen/Luhe (Metronom) und Hamburg-Bergedorf (S-Bahn/Regionalbahn) in ca. 15 Min. Etliche Buslinien des Hamburger Verkehrsverbundes HVV verbinden die Gemeinde mit dem Umland und der Hansestadt Hamburg und stellen die Schülerbeförderung sicher.
Das gewachsene, gepflegte Wohngebiet mit guter Nachbarschaft bietet ein ideales Umfeld für Familien mit Kindern, Tierhalter, Naturliebhaber und Pendler gleichermaßen
Infrastruktur (im Umkreis von 5 km):
Apotheke, Lebensmittel-Discount, Allgemeinmediziner, Kindergarten, Grundschule, Hauptschule, Realschule, Gymnasium, Öffentliche Verkehrsmittel
