AIGNER - Großzügiges Einfamilienhaus mit schönem Garten in sehr zentraler Lage in Neufahrn!
1.390.000 €
Kaufpreis
170,88 m²
Wohnfläche
4
Zimmer
immobilien.de Nr.: 9334051
Objektnummer: 42831
Preise & Kosten
| Kaufpreis | 1.390.000 € |
| Nebenkosten | keine Angabe |
| Maklerprovision | 3,57% |
Größe & Zustand
| Wohnfläche | 170,88 m² |
| Grundstücksfläche | 1.106 m² |
| Zimmer | 4 |
| Baujahr | 1988 |
| Verfügbar ab | ab sofort |
| Zustand | Gepflegt |
Energie
| Heizungsart | Zentralheizung |
| Energieträger/Befeuerung | Öl |
Objektbeschreibung
Sie sind auf der Suche nach einem großzügigen und top gepflegten Wohnhaus in bester Lage?
Dann sollten Sie sich dieses gut durchdachte Architektenhaus in einer der schönsten Wohnlagen von Neufahrn unbedingt ansehen!
Das Haus wurde im Jahr 1988 in massiver Bauweise errichtet und befindet sich auf einem ca. 1.106 m² großen und ebenen Grundstück.
Die insgesamt ca. 170 m² Wohnfläche verteilen sich auf 2 Ebenen und teilen sich wie folgt auf:
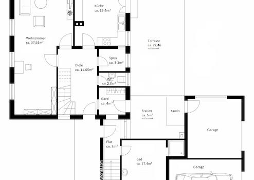
Im Erdgeschoss des Hauses befindet sich ein gemütlich eingerichtete Wohnküche
mit direktem Zugang zum Garten, der großzügige Wohnbereich, eine Speisekammer, ein Gäste-WC sowie ein kleiner Saunabereich mit Solarium und Duschbad.
Ein gemauerter Kachelofen im Wohn- und Essbereich sorgt hier für eine besondere Wohlfühlatmosphäre.
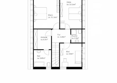
Das Dachgeschoss verfügt über 3 Schlafzimmer, ein Ankleidezimmer sowie ein großes Bad mit Eckbadewanne.
Ein großer Hobbyraum, mehrere Kellerräume sowie der Heizraum befinden sich im Untergeschoss. Von hier aus gibt es auch einen direkten Zugang zur Doppelgarage.
Beheizt wird das Haus mit einer Ölzentralheizung. Die Haustechnik sowie Fenster und Dach stammen noch aus dem Baujahr, sind jedoch in einem sehr guten Zustand.
Das große Grundstück bietet Ihnen reichlich Potenzial, Ihre Gartenträume zu verwirklichen.
Ein massives und elektrisch bedienbares Zugangstor zum Grundstück, die große Doppelgarage mit Zugang zum Keller, zwei Nebengebäude sowie ein überdachter und sichtgeschützter Freisitz mit offenem Grillkamin runden dieses selten verfügbare Angebot für Sie ab.
Dann sollten Sie sich dieses gut durchdachte Architektenhaus in einer der schönsten Wohnlagen von Neufahrn unbedingt ansehen!
Das Haus wurde im Jahr 1988 in massiver Bauweise errichtet und befindet sich auf einem ca. 1.106 m² großen und ebenen Grundstück.
Die insgesamt ca. 170 m² Wohnfläche verteilen sich auf 2 Ebenen und teilen sich wie folgt auf:
Im Erdgeschoss des Hauses befindet sich ein gemütlich eingerichtete Wohnküche
mit direktem Zugang zum Garten, der großzügige Wohnbereich, eine Speisekammer, ein Gäste-WC sowie ein kleiner Saunabereich mit Solarium und Duschbad.
Ein gemauerter Kachelofen im Wohn- und Essbereich sorgt hier für eine besondere Wohlfühlatmosphäre.
Das Dachgeschoss verfügt über 3 Schlafzimmer, ein Ankleidezimmer sowie ein großes Bad mit Eckbadewanne.
Ein großer Hobbyraum, mehrere Kellerräume sowie der Heizraum befinden sich im Untergeschoss. Von hier aus gibt es auch einen direkten Zugang zur Doppelgarage.
Beheizt wird das Haus mit einer Ölzentralheizung. Die Haustechnik sowie Fenster und Dach stammen noch aus dem Baujahr, sind jedoch in einem sehr guten Zustand.
Das große Grundstück bietet Ihnen reichlich Potenzial, Ihre Gartenträume zu verwirklichen.
Ein massives und elektrisch bedienbares Zugangstor zum Grundstück, die große Doppelgarage mit Zugang zum Keller, zwei Nebengebäude sowie ein überdachter und sichtgeschützter Freisitz mit offenem Grillkamin runden dieses selten verfügbare Angebot für Sie ab.
Ausstattung
| Küche | Einbauküche |
| Bad | 3 |
| Garage/Stellplätze | 2 |
| Keller |
• gut instand gehaltener Parkettboden im Wohnbereich
• Küche mit Elektrogeräten
• schöne und helle Sitzecke im Küchenbereich
• Kaminofen
• Freisitz mit Kamin
• sehr gute Infrastruktur
• familienfreundliche Nachbarschaft
• vollunterkellert
• großes Grundstück mit viel Potential
• Badezimmer mit Badewanne
• Badezimmer mit Dusche
• separater Ankleideraum
• Hütte im Garten für Gerätschaften
• drei Schlafzimmer im Obergeschoss
• Natursteinfließen im Eingangsbereich
• 2-fach vergalste Holzfenster
• Ölheizung
• Küche mit Elektrogeräten
• schöne und helle Sitzecke im Küchenbereich
• Kaminofen
• Freisitz mit Kamin
• sehr gute Infrastruktur
• familienfreundliche Nachbarschaft
• vollunterkellert
• großes Grundstück mit viel Potential
• Badezimmer mit Badewanne
• Badezimmer mit Dusche
• separater Ankleideraum
• Hütte im Garten für Gerätschaften
• drei Schlafzimmer im Obergeschoss
• Natursteinfließen im Eingangsbereich
• 2-fach vergalste Holzfenster
• Ölheizung
Sonstige Informationen
Baujahr: 1988
Befeuerung/Energieträger: Öl
Heizungsart: Zentralheizung
Energieausweistyp: Verbrauchsausweis
Energiekennwert: 126,01 kWh/(m²*a)
Energieeffizienzklasse: D
Befeuerung/Energieträger: Öl
Heizungsart: Zentralheizung
Energieausweistyp: Verbrauchsausweis
Energiekennwert: 126,01 kWh/(m²*a)
Energieeffizienzklasse: D
Lage des Objektes
Neufahrn bei Freising, Landkreis Freising, Bayern. Teil der Metropolregion München, nordöstlich von München gelegen.
Verkehrsanbindung:
Autobahnen: A9 (München–Nürnberg) in ca. 15–20 Minuten erreichbar; A92 östlich von Neufahrn erreichbar.
Öffentlicher Nahverkehr:
Bahnhof Neufahrn als Knotenpunkt mit regelmäßigen Regionalzügen nach München, Freising und Landshut; Busverbindungen in die umliegenden Ortsteile.
Infrastruktur und unmittelbare Umgebung:
Gute Nahversorgung mit Einkaufsmöglichkeiten, Ärzten, Apotheken, Schulen und Kitas in der Nähe.
Zentral gelegen im Wohngebiet von Neufahrn mit freundlicher, familienorientierter Infrastruktur.
Umgebung und Lebensqualität:
Ländliches bis gemischt-urbanes Umfeld mit Grünflächen, Feldern und Waldnähe.
Naturnahe Erholungsgebiete in der Umgebung; Flughafen München in der weiteren Umgebung.
Grundstück/Objektbezug:
Typische Lage in einem familienfreundlichen, ruhigen Wohnviertel mit guter Anbindung an München und Umgebung.
Verkehrsanbindung:
Autobahnen: A9 (München–Nürnberg) in ca. 15–20 Minuten erreichbar; A92 östlich von Neufahrn erreichbar.
Öffentlicher Nahverkehr:
Bahnhof Neufahrn als Knotenpunkt mit regelmäßigen Regionalzügen nach München, Freising und Landshut; Busverbindungen in die umliegenden Ortsteile.
Infrastruktur und unmittelbare Umgebung:
Gute Nahversorgung mit Einkaufsmöglichkeiten, Ärzten, Apotheken, Schulen und Kitas in der Nähe.
Zentral gelegen im Wohngebiet von Neufahrn mit freundlicher, familienorientierter Infrastruktur.
Umgebung und Lebensqualität:
Ländliches bis gemischt-urbanes Umfeld mit Grünflächen, Feldern und Waldnähe.
Naturnahe Erholungsgebiete in der Umgebung; Flughafen München in der weiteren Umgebung.
Grundstück/Objektbezug:
Typische Lage in einem familienfreundlichen, ruhigen Wohnviertel mit guter Anbindung an München und Umgebung.
Anbieter kontaktieren
Kontakt
| Telefon | +49(89) 17 87 87 0 |
| Fax | (089) 17 87 87 88 |
| Website | www.aigner-immobilien.de |
