** Familientraum in Bestlage: Doppelhaushälfte mit innovativem Raumkonzept, nachhaltigen Extras und mit Klinkeraktion!*
447.135 €
Kaufpreis
140,8 m²
Wohnfläche
25 m²
Nutzfläche
5
Zimmer
immobilien.de Nr.: 9321154
Objektnummer: KR251104_253SH
Preise & Kosten
| Kaufpreis | 447.135 € |
| Nebenkosten | keine Angabe |
Größe & Zustand
| Wohnfläche | 140,8 m² |
| Nutzfläche | 25 m² |
| Grundstücksfläche | 491 m² |
| Zimmer | 5 |
| Baujahr | 2025 |
| Verfügbar ab | 2025 |
| Zustand | Projektiert |
Energie
| Energietyp | KfW-40 |
| Heizungsart | Zentralheizung |
| Energieträger/Befeuerung | Luft-Wärme-Pumpe |
Objektbeschreibung
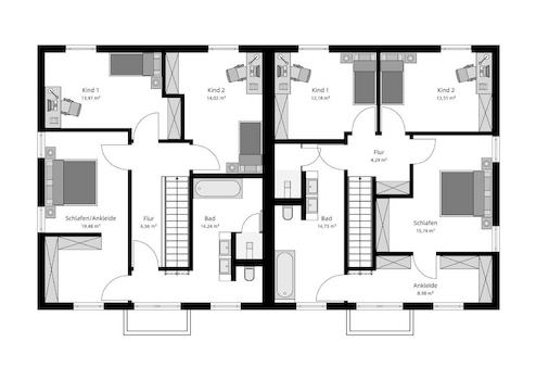
Willkommen in Ihrem zukünftigen Traumhaus in Salzhemmendorf! Dieses projektierte Doppelhaus, das individuell nach Ihren Wünschen gestaltet werden kann, bietet eine perfekte Symbiose aus modernem Design und energieeffizienter Bauweise. Mit einer großzügigen Wohnfläche von 140,8 m² verteilt auf zwei Etagen erwartet Sie ein durchdachtes Raumkonzept mit fünf Zimmern, darunter drei geräumige Schlafzimmer und zwei luxuriöse Badezimmer. Das Highlight des Badezimmers ist eine komfortable Badewanne zum Entspannen nach einem langen Tag. Die Doppelhaushälfte ermöglicht es Ihnen, die Vorteile eines Eigenheims zu genießen und gleichzeitig Kosten zu sparen - eine ideale Lösung bei steigenden Grundstückspreisen in urbanen Gebieten.
Ausstattung
| Anzahl der Etagen im Haus | 2 |
| Küche | Offene Küche |
| Bad | 2 |
| Bad | Wanne |
| Boden | Fliesen |
| Terrassen | 1 |
Das Haus beeindruckt mit einer gehobenen Ausstattung, die keine Wünsche offenlässt. Die Bodenbeläge aus Fliesen und nach Wunsch bieten Ihnen Flexibilität und sind sowohl pflegeleicht als auch langlebig. Eine moderne Wärmepumpe sorgt für umweltfreundliche Beheizung und senkt Ihre Energiekosten erheblich. Zudem entspricht das Haus dem KfW40-Standard, was nicht nur Ihren ökologischen Fußabdruck reduziert, sondern auch attraktive Fördermöglichkeiten eröffnet. Die exzellente Schallisolierung der STREIF Wandkonstruktion garantiert ein ruhiges Wohnen - ideal für Familien oder Mehrgenerationenhäuser.
Sonstige Informationen
STREIF Haus - der Pionier der deutschen Fertighausbranche
Die langjährige Firmentradition des Unternehmens reicht bis in das Jahr 1929 zurück. In den 50er und 60er Jahren wurde in Deutschland schnell und viel Wohnraum für Familien benötigt, seitdem konzentrierte sich das Unternehmen auf die Entwicklung und Produktion von Fertighaustypen, die im Werk in großen Stückzahlen hergestellt werden konnten. So kann das Unternehmen auf 90.000 gebaute Hausobjekte zurückblicken und sich zu Recht als Pionier der deutschen Fertighausbranche bezeichnen.
Die neuen Energiesparhäuser - So baut man heute.
Unser Anspruch ist es, in enger Partnerschaft mit unseren Kunden langlebige Häuser zu bauen, mit einer hohen architektonischen Qualität, individuell geplant und dabei energieeffizient und ressourcenschonend. Jedes STREIF-Haus ist einzigartig und wird speziell für jeden Kunden "maßgeschneidert" und gebaut. Passend zu den persönlichen Wünschen, dem vorgegebenen Budget und dem vorhandenen Grundstück planen und bauen wir jedes Haus mit viel Liebe zum Detail.
Die langjährige Firmentradition des Unternehmens reicht bis in das Jahr 1929 zurück. In den 50er und 60er Jahren wurde in Deutschland schnell und viel Wohnraum für Familien benötigt, seitdem konzentrierte sich das Unternehmen auf die Entwicklung und Produktion von Fertighaustypen, die im Werk in großen Stückzahlen hergestellt werden konnten. So kann das Unternehmen auf 90.000 gebaute Hausobjekte zurückblicken und sich zu Recht als Pionier der deutschen Fertighausbranche bezeichnen.
Die neuen Energiesparhäuser - So baut man heute.
Unser Anspruch ist es, in enger Partnerschaft mit unseren Kunden langlebige Häuser zu bauen, mit einer hohen architektonischen Qualität, individuell geplant und dabei energieeffizient und ressourcenschonend. Jedes STREIF-Haus ist einzigartig und wird speziell für jeden Kunden "maßgeschneidert" und gebaut. Passend zu den persönlichen Wünschen, dem vorgegebenen Budget und dem vorhandenen Grundstück planen und bauen wir jedes Haus mit viel Liebe zum Detail.
Lage des Objektes
Dieses exquisite Wohnprojekt befindet sich im charmanten Salzhemmendorf in einem attraktiven Wohngebiet. Dank der hervorragenden Infrastruktur sind alle Annehmlichkeiten des täglichen Lebens in unmittelbarer Nähe: Einkaufsmöglichkeiten, Apotheke, Kindergarten, Grundschule sowie weiterführende Schulen liegen nur einen Steinwurf entfernt. Für den Freizeitspaß sorgen nahegelegene Spielplätze und diverse Freizeitmöglichkeiten. Zudem ist die Anbindung an öffentliche Verkehrsmittel durch Bus- und Bahnhaltestellen hervorragend gewährleistet.
Anbieter kontaktieren
Kontakt
| Telefon | 06551 12 00 |
| Mobil | +49 174 6403310 |
| Website | www.streif.de |
