Gepflegtes Reihenmittelhaus in Leimen
535.000 €
Kaufpreis
138 m²
Wohnfläche
5
Zimmer
immobilien.de Nr.: 9320651
Objektnummer: 404208
Preise & Kosten
| Kaufpreis | 535.000 € |
| Nebenkosten | keine Angabe |
| Maklerprovision | keine Provision, courtagefrei |
Größe & Zustand
| Wohnfläche | 138 m² |
| Grundstücksfläche | 150 m² |
| Zimmer | 5 |
| Baujahr | 2002 |
| Verfügbar ab | nach Absprache |
| Zustand | Gepflegt |
Energie
| Energieausweistyp | Bedarfsausweis |
| Energieeffizienzklasse | D |
| Endenergiebedarf | 129 |
| Heizungsart | Zentralheizung |
| Energieträger/Befeuerung | Gas |
Objektbeschreibung
Dieses gepflegte Reihenmittelhaus aus dem Jahr 2002 überzeugt durch seine durchdachte Raumaufteilung, helle Räume und zahlreiche Ausstattungsdetails, die ideal auf die Bedürfnisse einer Familie zugeschnitten sind.
Das Haus befindet sich in ruhiger, familienfreundlicher Lage von Leimen mit fußläufiger Anbindung an Schule, Kindergarten, Einkaufsmöglichkeiten und öffentliche Verkehrsmittel.
Besonderes Highlight ist die Photovoltaikanlage, die nicht nur zur Reduzierung der Energiekosten beiträgt, sondern auch einen nachhaltigen Mehrwert bietet.
Ausstattung
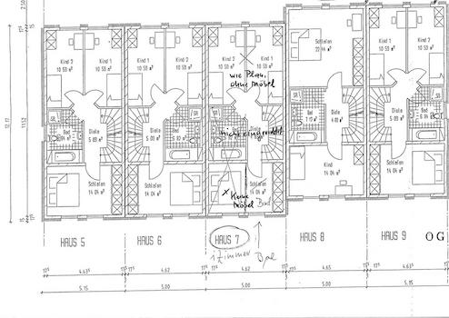
Erdgeschoss:
Der einladende Eingangsbereich führt in den offenen Wohn- und Essbereich mit Zugang zur sonnigen Terrasse und dem gepflegten Garten.
Die Küche ist mit einer modernen Einbauküche (ohne Elektrogeräte) ausgestattet.
Im gesamten Erdgeschoss sorgt eine Fußbodenheizung für angenehme Wärme.
Obergeschoss:
Hier befindet sich das großzügige Elternschlafzimmer sowie ein weiteres Zimmer, das sich flexibel als Kinder-, Gäste- oder Arbeitszimmer nutzen lässt.
Das große Badezimmer ist ebenfalls mit Fußbodenheizung ausgestattet und verfügt über eine Badewanne und Tageslichtfenster.
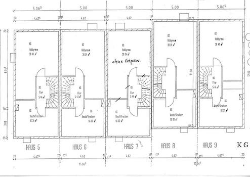
Dachgeschoss:
Das Dachgeschoss bietet zwei weitere Zimmer und ein Duschbad.
Zudem besteht die Möglichkeit, den Dachboden zu Wohnzwecken auszubauen und so zusätzlichen Raum zu schaffen.
Kellergeschoss:
Der Keller ist voll ausgebaut und bietet mit Sauna, Dusche und WC ein echtes Wellness-Highlight.
Ein großer Aufenthaltsraum bietet Platz für Freizeit, Hobbys oder Fitness.
Besonderheiten
Photovoltaikanlage (PV) – Energieeffizient & umweltfreundlich
Zwei Stellplätze direkt am Haus
Terrasse mit Gartenanteil
Voll unterkellert mit Sauna und Dusche
Fußbodenheizung im Erdgeschoss und Badezimmer
Erweiterungsmöglichkeit durch Dachausbau
Lage
Das Haus liegt in einer ruhigen und dennoch zentralen Wohngegend von Leimen (69181).
Schule, Kindergarten, Supermarkt sowie öffentliche Verkehrsmittel sind fußläufig erreichbar.
Die Lage bietet eine hervorragende Anbindung nach Heidelberg und Wiesloch sowie eine angenehme Nachbarschaft mit hohem Wohnkomfort.
Fazit
Ein gepflegtes und gut ausgestattetes Familienhaus mit viel Platz, vielseitiger Nutzungsmöglichkeit und nachhaltiger Energielösung.
Ideal für Familien, Paare oder Berufstätige, die eine moderne und zugleich ruhige Wohnlage suchen.
Das Haus befindet sich in ruhiger, familienfreundlicher Lage von Leimen mit fußläufiger Anbindung an Schule, Kindergarten, Einkaufsmöglichkeiten und öffentliche Verkehrsmittel.
Besonderes Highlight ist die Photovoltaikanlage, die nicht nur zur Reduzierung der Energiekosten beiträgt, sondern auch einen nachhaltigen Mehrwert bietet.
Ausstattung
Erdgeschoss:
Der einladende Eingangsbereich führt in den offenen Wohn- und Essbereich mit Zugang zur sonnigen Terrasse und dem gepflegten Garten.
Die Küche ist mit einer modernen Einbauküche (ohne Elektrogeräte) ausgestattet.
Im gesamten Erdgeschoss sorgt eine Fußbodenheizung für angenehme Wärme.
Obergeschoss:
Hier befindet sich das großzügige Elternschlafzimmer sowie ein weiteres Zimmer, das sich flexibel als Kinder-, Gäste- oder Arbeitszimmer nutzen lässt.
Das große Badezimmer ist ebenfalls mit Fußbodenheizung ausgestattet und verfügt über eine Badewanne und Tageslichtfenster.
Dachgeschoss:
Das Dachgeschoss bietet zwei weitere Zimmer und ein Duschbad.
Zudem besteht die Möglichkeit, den Dachboden zu Wohnzwecken auszubauen und so zusätzlichen Raum zu schaffen.
Kellergeschoss:
Der Keller ist voll ausgebaut und bietet mit Sauna, Dusche und WC ein echtes Wellness-Highlight.
Ein großer Aufenthaltsraum bietet Platz für Freizeit, Hobbys oder Fitness.
Besonderheiten
Photovoltaikanlage (PV) – Energieeffizient & umweltfreundlich
Zwei Stellplätze direkt am Haus
Terrasse mit Gartenanteil
Voll unterkellert mit Sauna und Dusche
Fußbodenheizung im Erdgeschoss und Badezimmer
Erweiterungsmöglichkeit durch Dachausbau
Lage
Das Haus liegt in einer ruhigen und dennoch zentralen Wohngegend von Leimen (69181).
Schule, Kindergarten, Supermarkt sowie öffentliche Verkehrsmittel sind fußläufig erreichbar.
Die Lage bietet eine hervorragende Anbindung nach Heidelberg und Wiesloch sowie eine angenehme Nachbarschaft mit hohem Wohnkomfort.
Fazit
Ein gepflegtes und gut ausgestattetes Familienhaus mit viel Platz, vielseitiger Nutzungsmöglichkeit und nachhaltiger Energielösung.
Ideal für Familien, Paare oder Berufstätige, die eine moderne und zugleich ruhige Wohnlage suchen.
Ausstattung
| Anzahl der Etagen im Haus | 2 |
| Küche | Einbauküche |
| Bad | 2 |
| Bad | Dusche |
| Boden | Fliesen, Laminat |
| Balkone | 0 |
| Terrassen | 1 |
| Keller |
Terrasse, Keller, Duschbad, Sauna, Einbauküche, Gäste-WC, Laminat, Fliesen
Bemerkungen:
Sehr gut gepflegtes Reihenmittelhaus
Bemerkungen:
Sehr gut gepflegtes Reihenmittelhaus
Sonstige Informationen
Heizungsart: Zentralheizung
Energieträger: Gas
Makleranfragen nicht erwünscht. Nach § 7 UWG sind unaufgeforderte Kontaktaufnahmen durch Makler ohne ausdrückliche Einwilligung des Empfängers verboten!
ohne-makler (OM) ist weder Anbieter noch Vermittler der Immobilie. OM betreibt eine Plattform für Immobilieneigentümer, die unter anderem die gleichzeitige Veröffentlichung einzelner Inserate auf mehreren Immobilienportalen ermöglicht. Die Inhalte dieser Inserate werden ausschließlich von Dritten verantwortet. Für die Richtigkeit, Vollständigkeit oder Rechtmäßigkeit der Angaben übernimmt OM keine Haftung. Hinweise auf mögliche Rechtsverstöße können jederzeit gemeldet werden und werden nach Prüfung umgehend bearbeitet.
Energieträger: Gas
Makleranfragen nicht erwünscht. Nach § 7 UWG sind unaufgeforderte Kontaktaufnahmen durch Makler ohne ausdrückliche Einwilligung des Empfängers verboten!
ohne-makler (OM) ist weder Anbieter noch Vermittler der Immobilie. OM betreibt eine Plattform für Immobilieneigentümer, die unter anderem die gleichzeitige Veröffentlichung einzelner Inserate auf mehreren Immobilienportalen ermöglicht. Die Inhalte dieser Inserate werden ausschließlich von Dritten verantwortet. Für die Richtigkeit, Vollständigkeit oder Rechtmäßigkeit der Angaben übernimmt OM keine Haftung. Hinweise auf mögliche Rechtsverstöße können jederzeit gemeldet werden und werden nach Prüfung umgehend bearbeitet.
Lage des Objektes
Leimen gehört zu den begehrten Wohnlagen im Rhein-Neckar-Kreis und liegt nur wenige Kilometer südlich von Heidelberg. Die Stadt verbindet eine hervorragende Infrastruktur mit hoher Lebensqualität und bietet ideale Bedingungen für Familien, Paare und Berufstätige.
Das Reihenmittelhaus befindet sich in einer ruhigen, gepflegten Wohngegend mit überwiegend Ein- und Reihenhäusern. Die Nachbarschaft ist freundlich und familienorientiert – hier lässt es sich angenehm und sicher leben.
Bildung & Betreuung:
Kindergärten, Grundschulen sowie weiterführende Schulen sind in wenigen Minuten zu Fuß oder mit dem Fahrrad erreichbar. Leimen verfügt über mehrere Kindertagesstätten und Schulen mit sehr gutem Ruf – ideal für Familien mit Kindern.
Einkaufsmöglichkeiten & Nahversorgung:
Einkaufsmöglichkeiten für den täglichen Bedarf wie Supermärkte, Bäckereien, Apotheken und Dienstleister befinden sich in unmittelbarer Nähe. Das Leimener Stadtzentrum bietet zudem eine Vielzahl an Fachgeschäften, Restaurants, Cafés und Ärzten.
Verkehrsanbindung:
Leimen ist hervorragend an das Verkehrsnetz angebunden.
Über die B3 sowie die Autobahn A5 und A6 erreicht man in kurzer Zeit die Städte Heidelberg, Wiesloch, Walldorf und Mannheim.
Mit der Straßenbahnlinie 23 und mehreren Buslinien bestehen regelmäßige Verbindungen nach Heidelberg und in die umliegenden Gemeinden. Der Bahnhof St. Ilgen/Sandhausen ist ebenfalls schnell erreichbar.
Freizeit & Erholung:
Leimen bietet ein breites Freizeitangebot: Das Leimener Freibad, zahlreiche Sportvereine, Wander- und Radwege sowie der nahegelegene Odenwald laden zur aktiven Erholung ein. Auch kulturell hat die Stadt mit Veranstaltungen, Festen und einem regen Vereinsleben einiges zu bieten.
Infrastruktur (im Umkreis von 5 km):
Lebensmittel-Discount, Allgemeinmediziner, Kindergarten, Grundschule, Hauptschule, Realschule, Gymnasium, Öffentliche Verkehrsmittel
Das Reihenmittelhaus befindet sich in einer ruhigen, gepflegten Wohngegend mit überwiegend Ein- und Reihenhäusern. Die Nachbarschaft ist freundlich und familienorientiert – hier lässt es sich angenehm und sicher leben.
Bildung & Betreuung:
Kindergärten, Grundschulen sowie weiterführende Schulen sind in wenigen Minuten zu Fuß oder mit dem Fahrrad erreichbar. Leimen verfügt über mehrere Kindertagesstätten und Schulen mit sehr gutem Ruf – ideal für Familien mit Kindern.
Einkaufsmöglichkeiten & Nahversorgung:
Einkaufsmöglichkeiten für den täglichen Bedarf wie Supermärkte, Bäckereien, Apotheken und Dienstleister befinden sich in unmittelbarer Nähe. Das Leimener Stadtzentrum bietet zudem eine Vielzahl an Fachgeschäften, Restaurants, Cafés und Ärzten.
Verkehrsanbindung:
Leimen ist hervorragend an das Verkehrsnetz angebunden.
Über die B3 sowie die Autobahn A5 und A6 erreicht man in kurzer Zeit die Städte Heidelberg, Wiesloch, Walldorf und Mannheim.
Mit der Straßenbahnlinie 23 und mehreren Buslinien bestehen regelmäßige Verbindungen nach Heidelberg und in die umliegenden Gemeinden. Der Bahnhof St. Ilgen/Sandhausen ist ebenfalls schnell erreichbar.
Freizeit & Erholung:
Leimen bietet ein breites Freizeitangebot: Das Leimener Freibad, zahlreiche Sportvereine, Wander- und Radwege sowie der nahegelegene Odenwald laden zur aktiven Erholung ein. Auch kulturell hat die Stadt mit Veranstaltungen, Festen und einem regen Vereinsleben einiges zu bieten.
Infrastruktur (im Umkreis von 5 km):
Lebensmittel-Discount, Allgemeinmediziner, Kindergarten, Grundschule, Hauptschule, Realschule, Gymnasium, Öffentliche Verkehrsmittel
