Herrliches Zuhause aus 2013 | Kamin | 4 + 1 Zimmer | Fußbodenheizung | in Waldnähe
589.000 €
Kaufpreis
130 m²
Wohnfläche
4
Zimmer
immobilien.de Nr.: 9320095
Objektnummer: 501483
Preise & Kosten
| Kaufpreis | 589.000 € |
| Nebenkosten | keine Angabe |
| Maklerprovision | 3,57 % inkl. MwSt. |
Größe & Zustand
| Wohnfläche | 130 m² |
| Grundstücksfläche | 697 m² |
| Zimmer | 4 |
| Baujahr | 2013 |
| Letzte Modernisierung | 2024 |
| Verfügbar ab | keine Angabe |
| Zustand | Neuwertig |
Energie
| Energieausweistyp | Verbrauch |
| Ausstellungsdatum | 28. 10. 2025 |
| Gültig bis | 27.10.2035 |
| Energieeffizienzklasse | D |
| Energieverbrauchkennwert | 111.3 kWh/(m²*a) |
| Wesentlicher Energieträger | Gas |
| Energieträger/Befeuerung | Gas |
Objektbeschreibung
Wohnen, wie man es sich wünscht – großzügiges Einfamilienhaus in herrlich grüner Siedlungslage mit Doppelgarage, großem Grundstück und moderner Einbauküche
Willkommen in Ihrem neuen Zuhause! Dieses im Jahr 2013 massiv erbaute Einfamilienhaus vereint moderne Wohnqualität, durchdachte Raumaufteilung und eine idyllische Umgebung zu einem Zuhause, das keine Wünsche offen lässt.
Lage und Umfeld
Das Haus befindet sich in einer wunderschönen Siedlungslage, wie man sie sich nur wünschen kann – mit viel Grün, gepflegten Nachbarhäusern, Ruhe und einem nahegelegenen Wald. Hier genießt man das Beste aus zwei Welten: ein ruhiges, familienfreundliches Wohnumfeld und dennoch eine gute Erreichbarkeit und hervorragende Infrastruktur in Großpösna.
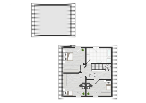
Das Haus
Schon beim Betreten beeindruckt der großzügige Empfangsbereich im Erdgeschoss. Von hier aus gelangt man in das helle, freundliche Wohnzimmer mit Zugang zur Terrasse.
Ein echtes Highlight ist der leistungsstarke Kamin (7 kW), der nicht nur Gemütlichkeit schafft, sondern auch das gesamte Haus spürbar mit Wärme versorgt.
Die moderne Einbauküche, die im Haus verbleibt, ist ebenfalls ein Pluspunkt: Sie ist funktional ausgestattet und gepflegt. Derzeit ist die Küche geschlossen und über den Flur erreichbar – auf Wunsch lässt sich die Wand zwischen Küche und Wohnzimmer problemlos entfernen, sodass ein offener, großzügiger Wohn- und Kochbereich entsteht.
Das Erdgeschoss ist komplett gefliest und beherbergt zudem ein Gästebad mit Dusche sowie den großen Hauswirtschaftsraum mit eigener Außentür – praktisch für den Alltag und ideal für Familien.
Ober- und Dachgeschoss
Im Obergeschoss erwartet Sie ein sehr großzügiges und 2024 hochwertig saniertes Badezimmer mit Badewanne und Dusche, das durch seine Größe und Helligkeit überzeugt.
Dazu kommen drei Schlafzimmer, die flexibel als Kinder-, Gäste- oder Arbeitszimmer genutzt werden können.
Das Dachgeschoss bietet zusätzlich einen großen Raum mit Nebenraum, der aktuell nicht beheizt wird, jedoch über den Kamin und die übrige Heiztechnik angenehm temperiert ist. Eine Heizung ist bereits blind verlegt, sodass eine Nachrüstung problemlos möglich ist.
Im Erdgeschoss und Obergeschoss sorgt die Fußbodenheizung für wohlige Wärme.
Das Grundstück
Auf einer Grundstücksfläche von ca. 697 m² bietet sich reichlich Platz zum Leben, Entspannen und Gestalten. Neben einer großen Doppelgarage stehen bis zu sechs zusätzliche Stellplätze zur Verfügung – ideal für Familien mit mehreren Fahrzeugen oder Besucher.
Das Grundstück präsentiert sich gepflegt und bietet mit der großen Terrasse und dem geräumigen Gartenhaus vielfältige Nutzungsmöglichkeiten. Die derzeit geschotterte Fläche kann auf Wunsch begrünt werden, sodass zusätzliche Rasen- und Gartenfläche entsteht.
Willkommen in Ihrem neuen Zuhause! Dieses im Jahr 2013 massiv erbaute Einfamilienhaus vereint moderne Wohnqualität, durchdachte Raumaufteilung und eine idyllische Umgebung zu einem Zuhause, das keine Wünsche offen lässt.
Lage und Umfeld
Das Haus befindet sich in einer wunderschönen Siedlungslage, wie man sie sich nur wünschen kann – mit viel Grün, gepflegten Nachbarhäusern, Ruhe und einem nahegelegenen Wald. Hier genießt man das Beste aus zwei Welten: ein ruhiges, familienfreundliches Wohnumfeld und dennoch eine gute Erreichbarkeit und hervorragende Infrastruktur in Großpösna.
Das Haus
Schon beim Betreten beeindruckt der großzügige Empfangsbereich im Erdgeschoss. Von hier aus gelangt man in das helle, freundliche Wohnzimmer mit Zugang zur Terrasse.
Ein echtes Highlight ist der leistungsstarke Kamin (7 kW), der nicht nur Gemütlichkeit schafft, sondern auch das gesamte Haus spürbar mit Wärme versorgt.
Die moderne Einbauküche, die im Haus verbleibt, ist ebenfalls ein Pluspunkt: Sie ist funktional ausgestattet und gepflegt. Derzeit ist die Küche geschlossen und über den Flur erreichbar – auf Wunsch lässt sich die Wand zwischen Küche und Wohnzimmer problemlos entfernen, sodass ein offener, großzügiger Wohn- und Kochbereich entsteht.
Das Erdgeschoss ist komplett gefliest und beherbergt zudem ein Gästebad mit Dusche sowie den großen Hauswirtschaftsraum mit eigener Außentür – praktisch für den Alltag und ideal für Familien.
Ober- und Dachgeschoss
Im Obergeschoss erwartet Sie ein sehr großzügiges und 2024 hochwertig saniertes Badezimmer mit Badewanne und Dusche, das durch seine Größe und Helligkeit überzeugt.
Dazu kommen drei Schlafzimmer, die flexibel als Kinder-, Gäste- oder Arbeitszimmer genutzt werden können.
Das Dachgeschoss bietet zusätzlich einen großen Raum mit Nebenraum, der aktuell nicht beheizt wird, jedoch über den Kamin und die übrige Heiztechnik angenehm temperiert ist. Eine Heizung ist bereits blind verlegt, sodass eine Nachrüstung problemlos möglich ist.
Im Erdgeschoss und Obergeschoss sorgt die Fußbodenheizung für wohlige Wärme.
Das Grundstück
Auf einer Grundstücksfläche von ca. 697 m² bietet sich reichlich Platz zum Leben, Entspannen und Gestalten. Neben einer großen Doppelgarage stehen bis zu sechs zusätzliche Stellplätze zur Verfügung – ideal für Familien mit mehreren Fahrzeugen oder Besucher.
Das Grundstück präsentiert sich gepflegt und bietet mit der großen Terrasse und dem geräumigen Gartenhaus vielfältige Nutzungsmöglichkeiten. Die derzeit geschotterte Fläche kann auf Wunsch begrünt werden, sodass zusätzliche Rasen- und Gartenfläche entsteht.
Ausstattung
| Küche | Einbauküche |
| Bad | Dusche, Wanne, Fenster |
| Boden | Fliesen, Teppich, Laminat |
| Balkone | 1 |
| Garten | |
| Garage/Stellplätze | 8 |
• Massive Bauweise (2013) in ruhiger, grüner Siedlungslage nahe Wald
• Großzügiger Eingangsbereich, helles Wohnzimmer mit Terrassenzugang
• 7-kW-Kamin & Fußbodenheizung
• Einbauküche inklusive; Grundriss-Option: Küche zum Wohnen öffnbar
• EG: durchgehend Fliesen, Gästeduschbad, HWR mit Außentür
• OG: 3 Zimmer + Badezimmer 2024 modernisiert (Wanne & Dusche)
• DG: großer Raum mit Nebenraum, Heizung vorgerüstet
• Doppelgarage + bis zu 6 Stellplätze, großes Gartenhaus, große Terrasse
• 697 m² Grundstück, Begrünung der Schotterfläche möglich
• 9000l Zisterne und Rigole
• Großzügiger Eingangsbereich, helles Wohnzimmer mit Terrassenzugang
• 7-kW-Kamin & Fußbodenheizung
• Einbauküche inklusive; Grundriss-Option: Küche zum Wohnen öffnbar
• EG: durchgehend Fliesen, Gästeduschbad, HWR mit Außentür
• OG: 3 Zimmer + Badezimmer 2024 modernisiert (Wanne & Dusche)
• DG: großer Raum mit Nebenraum, Heizung vorgerüstet
• Doppelgarage + bis zu 6 Stellplätze, großes Gartenhaus, große Terrasse
• 697 m² Grundstück, Begrünung der Schotterfläche möglich
• 9000l Zisterne und Rigole
Sonstige Informationen
Hinweis zur Richtigkeit und Vollständigkeit der Angaben:
Der Makler weist darauf hin, dass die von ihm weitergegebenen Objektinformationen vom Verkäufer bzw. von einem vom Verkäufer beauftragten Dritten stammen und von ihm, dem Makler, auf ihre Richtigkeit nicht überprüft worden sind. Es ist Sache des Kunden, diese Angaben auf ihre Richtigkeit hin zu überprüfen. Der Makler, der diese Informationen nur weitergibt, übernimmt für die Richtigkeit keinerlei Haftung.
Der Makler weist darauf hin, dass die von ihm weitergegebenen Objektinformationen vom Verkäufer bzw. von einem vom Verkäufer beauftragten Dritten stammen und von ihm, dem Makler, auf ihre Richtigkeit nicht überprüft worden sind. Es ist Sache des Kunden, diese Angaben auf ihre Richtigkeit hin zu überprüfen. Der Makler, der diese Informationen nur weitergibt, übernimmt für die Richtigkeit keinerlei Haftung.
Lage des Objektes
In Großpösna lassen sich die Vorteile vom ruhigen Wohnen im Grünen mit einer hervorragenden Anbindung an Leipzig und die umliegende Region verbinden.
Großpösna bietet eine komfortable Infrastruktur für den täglichen Bedarf. Das Einkaufszentrum Pösna Park mit zahlreichen Einkaufsmöglichkeiten sowie mehrere Supermärkte und Bäckereien befinden sich nur wenige Minuten zu Fuß entfernt.
Mit dem Auto erreichen Sie die Leipziger Innenstadt in nur 25 Minuten. Auch eine Bushaltestelle ist bequem zu Fuß erreichbar. So gelangen Sie vom Objekt aus mit dem öffentlichen Nahverkehr in rund 45 bis 50 Minuten ins Leipziger Zentrum.
Für Familien ist die Lage besonders attraktiv: Eine Grundschule sowie ein Kindergarten befindet sich direkt im Ort und sind jeweils fußläufig erreichbar. Eine weiterführende Schule ist mit dem Auto in nur rund 10 Minuten und in rund 20 Minuten mit den öffentlichen Verkehrsmitteln zu erreichen.
Auch medizinische Versorgung und Freizeitangebote kommen nicht zu kurz. Ärzte, Apotheken und verschiedene Vereine befinden sich direkt im Ort. Das beliebte Naunhofer Seenland mit dem Störmthaler See und Markkleeberger See liegt nur wenige Kilometer entfernt und lädt zu Spaziergängen, Radtouren und Wassersport ein.
Pendler profitieren zudem von der hervorragenden Verkehrsanbindung: Die Autobahnauffahrt zur A38 ist nur etwa 5 Kilometer entfernt und verbindet Sie schnell mit der A14 sowie dem gesamten Leipziger Umland.
Großpösna bietet eine komfortable Infrastruktur für den täglichen Bedarf. Das Einkaufszentrum Pösna Park mit zahlreichen Einkaufsmöglichkeiten sowie mehrere Supermärkte und Bäckereien befinden sich nur wenige Minuten zu Fuß entfernt.
Mit dem Auto erreichen Sie die Leipziger Innenstadt in nur 25 Minuten. Auch eine Bushaltestelle ist bequem zu Fuß erreichbar. So gelangen Sie vom Objekt aus mit dem öffentlichen Nahverkehr in rund 45 bis 50 Minuten ins Leipziger Zentrum.
Für Familien ist die Lage besonders attraktiv: Eine Grundschule sowie ein Kindergarten befindet sich direkt im Ort und sind jeweils fußläufig erreichbar. Eine weiterführende Schule ist mit dem Auto in nur rund 10 Minuten und in rund 20 Minuten mit den öffentlichen Verkehrsmitteln zu erreichen.
Auch medizinische Versorgung und Freizeitangebote kommen nicht zu kurz. Ärzte, Apotheken und verschiedene Vereine befinden sich direkt im Ort. Das beliebte Naunhofer Seenland mit dem Störmthaler See und Markkleeberger See liegt nur wenige Kilometer entfernt und lädt zu Spaziergängen, Radtouren und Wassersport ein.
Pendler profitieren zudem von der hervorragenden Verkehrsanbindung: Die Autobahnauffahrt zur A38 ist nur etwa 5 Kilometer entfernt und verbindet Sie schnell mit der A14 sowie dem gesamten Leipziger Umland.
Anbieter kontaktieren
Kontakt
| Telefon | +49 1522 6310462 |
| Fax | 0341 25327329 |
| Website | www.vvv-leipzig-immobilien.de |
