Provisionsfrei - Denkmalgeschütztes Wohnhaus mit Halle in Bensheim – als Renditeobjekt
980.000 €
Kaufpreis
303 m²
Wohnfläche
11,5
Zimmer
immobilien.de Nr.: 9306463
Objektnummer: 396260
Preise & Kosten
| Kaufpreis | 980.000 € |
| Nebenkosten | keine Angabe |
| Maklerprovision | keine Provision, courtagefrei |
Größe & Zustand
| Wohnfläche | 303 m² |
| Grundstücksfläche | 475 m² |
| Zimmer | 11,5 |
| Baujahr | 1877 |
| Verfügbar ab | nach Absprache |
Energie
| Heizungsart | Zentralheizung |
| Energieträger/Befeuerung | Gas |
Objektbeschreibung
Bei der angebotenen Immobilie handelt es sich um ein spätklassizistisches, denkmalgeschütztes Mehrfamilienhaus mit drei Wohneinheiten aus dem Jahr circa 1877. Ergänzt wird das Wohnhaus durch eine große Halle im rückwärtigen Grundstücksbereich.
Die aktuellen jährlichen Nettomieteinnahmen betragen ca. 39.300 € – mit weiterem Steigerungspotenzial in den kommenden Jahren.
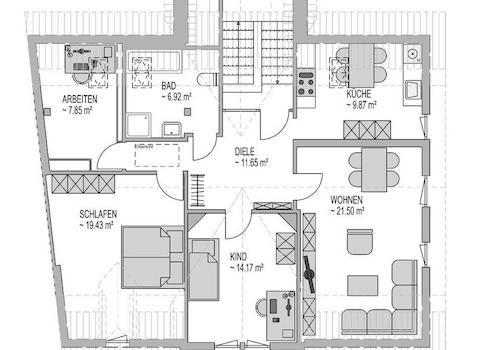
Das Haupthaus umfasst drei Wohnungen:
- Erdgeschosswohnung: ca. 108 m², 4 Zimmer, Küche, Bad, separates WC
- Obergeschosswohnung: ca. 102 m², 4 Zimmer, Küche, Bad, separates WC
- Dachgeschosswohnung: ca. 92 m², 3,5 Zimmer, Küche, Bad
Im Kellergeschoss befinden sich Lagerflächen für die Mieter sowie der Heizungsraum.
Die Halle im Hinterhof ist teilweise unterkellert und verfügt insgesamt über ca. 205 m² Nutzfläche.
Wesentliche Modernisierungen wurden bereits durchgeführt:
2003: Elektrische Industrie-Sektionaltore an der Halle 1x 2,48 m und 1x 4,5 m breit.
2016: Dachfläche komplett denkmalgerecht erneuert inkl. Holzfaserdämmung
2016: Erneuerung der Heizungsanlagen (zentral für EG/OG, wohnungszentral im DG)
2019: Aufwendige Kernsanierung der Erdgeschosswohnung
2024: Einbau einer hochwertigen Klingelanlage mit Bildübertragung
2025: Austausch der Wasserzähler
Die aktuellen jährlichen Nettomieteinnahmen betragen ca. 39.300 € – mit weiterem Steigerungspotenzial in den kommenden Jahren.
Das Haupthaus umfasst drei Wohnungen:
- Erdgeschosswohnung: ca. 108 m², 4 Zimmer, Küche, Bad, separates WC
- Obergeschosswohnung: ca. 102 m², 4 Zimmer, Küche, Bad, separates WC
- Dachgeschosswohnung: ca. 92 m², 3,5 Zimmer, Küche, Bad
Im Kellergeschoss befinden sich Lagerflächen für die Mieter sowie der Heizungsraum.
Die Halle im Hinterhof ist teilweise unterkellert und verfügt insgesamt über ca. 205 m² Nutzfläche.
Wesentliche Modernisierungen wurden bereits durchgeführt:
2003: Elektrische Industrie-Sektionaltore an der Halle 1x 2,48 m und 1x 4,5 m breit.
2016: Dachfläche komplett denkmalgerecht erneuert inkl. Holzfaserdämmung
2016: Erneuerung der Heizungsanlagen (zentral für EG/OG, wohnungszentral im DG)
2019: Aufwendige Kernsanierung der Erdgeschosswohnung
2024: Einbau einer hochwertigen Klingelanlage mit Bildübertragung
2025: Austausch der Wasserzähler
Ausstattung
| Anzahl der Etagen im Haus | 3 |
| Bad | 3 |
| Bad | Dusche |
| Boden | Fliesen, Parkett, Laminat, Kunststoff |
| Keller |
Keller, Duschbad, Gäste-WC, Parkett, Laminat, Fliesen, Sonstiges (s. Text)
Sonstige Informationen
Heizungsart: Zentralheizung
Energieträger: Gas
Wir bitten um Verständnis, dass wir Besichtigungen ausschließlich nach Vorlage einer Finanzierungsbestätigung Ihrer Bank oder eines Kapitalnachweises durchführen.
Makleranfragen nicht erwünscht. Nach § 7 UWG sind unaufgeforderte Kontaktaufnahmen durch Makler ohne ausdrückliche Einwilligung des Empfängers verboten!
ohne-makler (OM) ist weder Anbieter noch Vermittler der Immobilie. OM betreibt eine Plattform für Immobilieneigentümer, die unter anderem die gleichzeitige Veröffentlichung einzelner Inserate auf mehreren Immobilienportalen ermöglicht. Die Inhalte dieser Inserate werden ausschließlich von Dritten verantwortet. Für die Richtigkeit, Vollständigkeit oder Rechtmäßigkeit der Angaben übernimmt OM keine Haftung. Hinweise auf mögliche Rechtsverstöße können jederzeit gemeldet werden und werden nach Prüfung umgehend bearbeitet.
Energieträger: Gas
Wir bitten um Verständnis, dass wir Besichtigungen ausschließlich nach Vorlage einer Finanzierungsbestätigung Ihrer Bank oder eines Kapitalnachweises durchführen.
Makleranfragen nicht erwünscht. Nach § 7 UWG sind unaufgeforderte Kontaktaufnahmen durch Makler ohne ausdrückliche Einwilligung des Empfängers verboten!
ohne-makler (OM) ist weder Anbieter noch Vermittler der Immobilie. OM betreibt eine Plattform für Immobilieneigentümer, die unter anderem die gleichzeitige Veröffentlichung einzelner Inserate auf mehreren Immobilienportalen ermöglicht. Die Inhalte dieser Inserate werden ausschließlich von Dritten verantwortet. Für die Richtigkeit, Vollständigkeit oder Rechtmäßigkeit der Angaben übernimmt OM keine Haftung. Hinweise auf mögliche Rechtsverstöße können jederzeit gemeldet werden und werden nach Prüfung umgehend bearbeitet.
Lage des Objektes
Das angebotene Objekt befindet sich in zentraler Lage von Bensheim an der Bergstraße, nur wenige Minuten von Innenstadt, Bahnhof und Einkaufsmöglichkeiten entfernt.
Die Stadt Bensheim gilt als das wirtschaftliche und kulturelle Zentrum des Kreises Bergstraße und profitiert von einer sehr guten Infrastruktur, einer attraktiven Innenstadt und ihrer Lage zwischen Rhein-Main- und Rhein-Neckar-Region.
Die Verkehrsanbindung ist hervorragend:
Autobahn A5 und A67 sind in wenigen Minuten erreichbar.
Der Bahnhof Bensheim bietet regelmäßige Regional- und Fernverbindungen.
Frankfurt, Mannheim und Heidelberg sind jeweils in ca. 30–40 Minuten erreichbar.
Bensheim zeichnet sich durch eine hohe Lebensqualität aus – eingebettet zwischen Weinbergen und dem Odenwald, mit einem breiten Angebot an Schulen, Kindergärten, Ärzten und Einkaufsmöglichkeiten.
Infrastruktur (im Umkreis von 5 km):
Apotheke, Lebensmittel-Discount, Allgemeinmediziner, Kindergarten, Grundschule, Hauptschule, Realschule, Gymnasium, Gesamtschule, Öffentliche Verkehrsmittel
Die Stadt Bensheim gilt als das wirtschaftliche und kulturelle Zentrum des Kreises Bergstraße und profitiert von einer sehr guten Infrastruktur, einer attraktiven Innenstadt und ihrer Lage zwischen Rhein-Main- und Rhein-Neckar-Region.
Die Verkehrsanbindung ist hervorragend:
Autobahn A5 und A67 sind in wenigen Minuten erreichbar.
Der Bahnhof Bensheim bietet regelmäßige Regional- und Fernverbindungen.
Frankfurt, Mannheim und Heidelberg sind jeweils in ca. 30–40 Minuten erreichbar.
Bensheim zeichnet sich durch eine hohe Lebensqualität aus – eingebettet zwischen Weinbergen und dem Odenwald, mit einem breiten Angebot an Schulen, Kindergärten, Ärzten und Einkaufsmöglichkeiten.
Infrastruktur (im Umkreis von 5 km):
Apotheke, Lebensmittel-Discount, Allgemeinmediziner, Kindergarten, Grundschule, Hauptschule, Realschule, Gymnasium, Gesamtschule, Öffentliche Verkehrsmittel
