Bungalow mit Klasse Raumaufteilung - Grundstücksservice bekommen Sie auch.
471.000 €
Kaufpreis
108 m²
Wohnfläche
3
Zimmer
immobilien.de Nr.: 9306328
Objektnummer: ReichenwaldeBungalow
Preise & Kosten
| Kaufpreis | 471.000 € |
| Nebenkosten | keine Angabe |
Größe & Zustand
| Wohnfläche | 108 m² |
| Grundstücksfläche | 671 m² |
| Zimmer | 3 |
| Baujahr | 2026 |
| Verfügbar ab | keine Angabe |
| Zustand | Projektiert |
Energie
| Energietyp | Niedrigenergie |
| Energieträger/Befeuerung | Luft-Wärme-Pumpe |
Objektbeschreibung
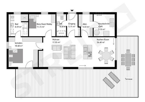
Der Bungalow zeichnet sich durch eine klassische Hausarchitektur mit Walmdach
aus. Die Räume sind lichterfüllt geplant. Die Grundrissgestaltung ist mit ca. 107,43 m² Netto-
Raumfläche für Singles, Paare oder eine Kleinfamilie mit einem Kind geeignet. Bauartbedingt
bringt der Bungalow einen Mehrwert in Sachen Wohnkomfort mit. Der Wohn-/Ess- und
Kochbereich ist auf 43,95 m² großzügig angelegt. Ein großes Schlafzimmer mit viel Platz, ein
weiterer Raum, der als Kinderzimmer/Büro oder Hobby-/Gästebereich vorgesehen ist, ein
Gäste-WC sowie ein Haustechnik-/Hauswirtschaftsraum runden das Raumangebot ab. Eine
Garage kann optional ausgeführt werden.
Objektart: Bungalow, 1-geschossig
Hausmaße: 15,58 m x 8,08 m
Netto-Raumfläche: 107,43 m²
aus. Die Räume sind lichterfüllt geplant. Die Grundrissgestaltung ist mit ca. 107,43 m² Netto-
Raumfläche für Singles, Paare oder eine Kleinfamilie mit einem Kind geeignet. Bauartbedingt
bringt der Bungalow einen Mehrwert in Sachen Wohnkomfort mit. Der Wohn-/Ess- und
Kochbereich ist auf 43,95 m² großzügig angelegt. Ein großes Schlafzimmer mit viel Platz, ein
weiterer Raum, der als Kinderzimmer/Büro oder Hobby-/Gästebereich vorgesehen ist, ein
Gäste-WC sowie ein Haustechnik-/Hauswirtschaftsraum runden das Raumangebot ab. Eine
Garage kann optional ausgeführt werden.
Objektart: Bungalow, 1-geschossig
Hausmaße: 15,58 m x 8,08 m
Netto-Raumfläche: 107,43 m²
Ausstattung
| Anzahl der Etagen im Haus | 1 |
| Küche | Offene Küche |
| Bad | 2 |
| Bad | Dusche, Wanne, Fenster |
| Barrierefrei |
Das Streif City Haus wird im Standard KFW 40 PLUS ausgeführt. KfW Effizienshaus inkl. Haustechnik aus dem STREIF-Programm in der Ausbaustufe FF+ inklusive einer gedämmten Fundamentplatte.
■ Rohbau (geschlossene Gebäudehülle) mit Fenstern, Haustür, Dacheindeckung
■ Außenfassade inkl. Außenputz, vor Ort komplett fertiggestellt
■ Komplette Blechner-/Spenglerarbeiten
■ lnnen-/Außenwände wärme- und schallgedämmt und mit Gipsfaserplatten geschlossen
■ Geschosstreppe (außer Bungalow)
■ Decken wärme- und schallgedämmt und mit Gipskarton Bauplatten geschlossen
■ Elektroinstallation, einschließlich erforderlichem Zählerschrank und Inbetriebnahme
■ Heizungsanlage inkl. Inbetriebnahme
■ Innenfensterbänke Kunststeinbänke (Gussmarmorbänke) inkl. Einbau
■ Estrich
■ Sanitärräume mit Wand- und Bodenfliesen
■ Sanitärräume mit Sanitärobjekten
■ 6,23 kWp Photovoltaikanlage und 7,7 kWh Speicher
Die Innentüren sowie Wand-, Decken- und Bodenbeläge der übrigen Räume sind Eigenleistungen des Bauherren.
STREIF Frischluft-Wärmepumpen-Technologie - inklusive
- Heizen mit frischer Außenluft
- Kein Gasanschluss, kein Öl- oder Pelletlagerraum
- Keine Heizkörper
- Wärmetauscher mit bis zu 85% Wärmerückgewinnung
Die dargestellten Bilder können Sonderausstattungen beinhalten, die nicht im Preis enthalten sind!
zzgl. Ortüblicher Baunebenkosten
Selbstverständlich können wir Ihr Haus auch schlüsselfertig / bezugsfertig errichten.
■ Bodenbeläge, Sockelleisten verlegt
■ Maler- und Tapezierarbeiten
■ Innentüren inkl. Einbau
■ Rohbau (geschlossene Gebäudehülle) mit Fenstern, Haustür, Dacheindeckung
■ Außenfassade inkl. Außenputz, vor Ort komplett fertiggestellt
■ Komplette Blechner-/Spenglerarbeiten
■ lnnen-/Außenwände wärme- und schallgedämmt und mit Gipsfaserplatten geschlossen
■ Geschosstreppe (außer Bungalow)
■ Decken wärme- und schallgedämmt und mit Gipskarton Bauplatten geschlossen
■ Elektroinstallation, einschließlich erforderlichem Zählerschrank und Inbetriebnahme
■ Heizungsanlage inkl. Inbetriebnahme
■ Innenfensterbänke Kunststeinbänke (Gussmarmorbänke) inkl. Einbau
■ Estrich
■ Sanitärräume mit Wand- und Bodenfliesen
■ Sanitärräume mit Sanitärobjekten
■ 6,23 kWp Photovoltaikanlage und 7,7 kWh Speicher
Die Innentüren sowie Wand-, Decken- und Bodenbeläge der übrigen Räume sind Eigenleistungen des Bauherren.
STREIF Frischluft-Wärmepumpen-Technologie - inklusive
- Heizen mit frischer Außenluft
- Kein Gasanschluss, kein Öl- oder Pelletlagerraum
- Keine Heizkörper
- Wärmetauscher mit bis zu 85% Wärmerückgewinnung
Die dargestellten Bilder können Sonderausstattungen beinhalten, die nicht im Preis enthalten sind!
zzgl. Ortüblicher Baunebenkosten
Selbstverständlich können wir Ihr Haus auch schlüsselfertig / bezugsfertig errichten.
■ Bodenbeläge, Sockelleisten verlegt
■ Maler- und Tapezierarbeiten
■ Innentüren inkl. Einbau
Sonstige Informationen
STREIF Leistungen sind mehr wert - schon im Grundpreis! INDIVIDUELLE ARCHITEKTUR -persönliche Architekten-Planung inklusive -Fundamentplatte inklusive (Keller optional) -individuelle Grundrissgestaltung ohne Mehrpreis
UNSERE BAUWEISE -mehrschichtiger diffusionsvariabler Wandaufbau bis U Wert 0,10 W / m² * K - im Gefach (zwischen den Stielen) gemessen -hochstabile Innenwand und Konstruktion -Fenster gesamt: Uw-Wert 0,81 W/m² * K Glas der Fenster: Ug-Wert 0,6 W/m² * K -Haustür ab UD-Wert 0,64 W/m² * K -30 Jahre Garantie auf statisches Tragwerk -ausschließlich handgemacht in Deutschland INNOVATION -kontrollierte Be- und Entlüftung mit Wärmerückgewinnung bereits in der Grundausstattung -STREIF schadstoffarmer Innenraum - für Allergiker geeignet
UNSERE BAUWEISE -mehrschichtiger diffusionsvariabler Wandaufbau bis U Wert 0,10 W / m² * K - im Gefach (zwischen den Stielen) gemessen -hochstabile Innenwand und Konstruktion -Fenster gesamt: Uw-Wert 0,81 W/m² * K Glas der Fenster: Ug-Wert 0,6 W/m² * K -Haustür ab UD-Wert 0,64 W/m² * K -30 Jahre Garantie auf statisches Tragwerk -ausschließlich handgemacht in Deutschland INNOVATION -kontrollierte Be- und Entlüftung mit Wärmerückgewinnung bereits in der Grundausstattung -STREIF schadstoffarmer Innenraum - für Allergiker geeignet
Lage des Objektes
Das von unserem Kooperationspartner angebotene Baugrundstück liegt im Grünen, umgeben von Natur und Wäldern. In der familienfreundlichen Umgebung finden sich Einkaufsmöglichkeiten, Schulen und Gesundheitseinrichtungen. Die nahegelegene Stadt Storkow ist für seine malerische Altstadt, seinen See und seine vielfältigen Freizeitangebote bekannt, was das Grundstück zu einer attraktiven Wohnlage für Familien macht.
Die Städte Berlin, Fürstenwalde und Frankfurt/Oder sind mit dem Auto oder öffentlichen Verkehrsmitteln sehr gut erreichbar.
Die Städte Berlin, Fürstenwalde und Frankfurt/Oder sind mit dem Auto oder öffentlichen Verkehrsmitteln sehr gut erreichbar.
Anbieter kontaktieren
Kontakt
| Telefon | +49 30 67390424 |
| Mobil | +49 172 1588519 |
| Website | www.streif.de |
