Charmantes Mehrfamilienhaus in Rotenburg an der Fulda
160.000 €
Kaufpreis
180 m²
Wohnfläche
5
Zimmer
immobilien.de Nr.: 9301784
Objektnummer: 401050
Preise & Kosten
| Kaufpreis | 160.000 € |
| Nebenkosten | keine Angabe |
| Maklerprovision | keine Provision, courtagefrei |
Größe & Zustand
| Wohnfläche | 180 m² |
| Grundstücksfläche | 401 m² |
| Zimmer | 5 |
| Baujahr | 1900 |
| Verfügbar ab | nach Absprache |
| Zustand | Teil Vollrenovierungsbed |
Energie
| Energieausweistyp | Verbrauch |
| Energieeffizienzklasse | D |
| Energieverbrauchkennwert | 64 kWh/(m²*a) |
| Energieträger/Befeuerung | Elektro |
Objektbeschreibung
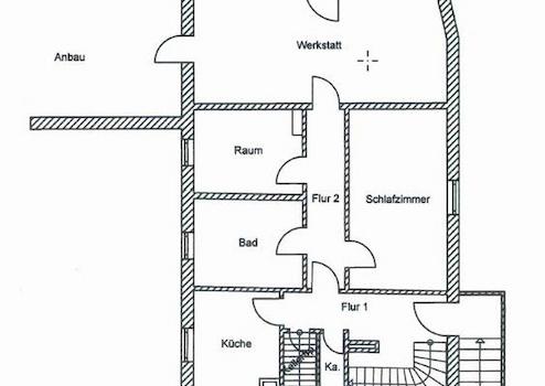
Das zum Verkauf stehende Mehrfamilienhaus wurde um 1900 in traditioneller Fachwerkbauweise errichtet und liegt direkt in der Stadt Rotenburg an der Fulda. Die Bruttogrundfläche des Wohnhauses mit Anbau wurde nach DIN 277 berechnet und beträgt insgesamt 351 m². Die Bruttogrundfläche des Anbaus des Wirtschaftsgebäudes liegt bei 77 m², die Garage umfasst 17 m². Mit einer Gesamtwohnfläche von ca. 180 m², verteilt auf mehrere Einheiten und drei Etagen, eignet sich das Objekt sowohl als Kapitalanlage wie auch zur Eigennutzung für mehrere Generationen. Da das Haus modernisierungsbedürftig ist, bietet es zahlreiche Möglichkeiten zur individuellen Gestaltung und Wertsteigerung.
Ausstattung
| Anzahl der Etagen im Haus | 3 |
| Küche | Einbauküche |
| Bad | 2 |
| Bad | Dusche |
| Boden | Fliesen, Teppich, Kunststoff |
| Garten | |
| Garage/Stellplätze | 1 |
| Keller |
Garten, Keller, Duschbad, Einbauküche, Gäste-WC, Teppichboden, Fliesen, Sonstiges (s. Text)
Bemerkungen:
Wohnflächenberechnung und Energiebedarf
• Erdgeschoss: 84 m²
• Obergeschoss: 57 m²
• Dachgeschoss: 39 m²
• Wohnfläche: ca. 180 m²
• 64,3 kWh(m2*a) (Verbrauchsausweis)
• Energieeffizienz B (Energieverbrauch) und D (Primärenergieverbrauch)
• Zimmer: flexibel gestaltbar
• Bäder: mehrere Badezimmer, Gäste-WC möglich
• Heizung: Elektroheizung
• Küche: Vollständige Einbauküche mit modernen Geräten
• Keller: große Nutzflächen und Abstellräume
• weitere Extras: gepflegter Vorgarten
• Renovierungs- und Sanierungsbedarf vorhanden
Bemerkungen:
Wohnflächenberechnung und Energiebedarf
• Erdgeschoss: 84 m²
• Obergeschoss: 57 m²
• Dachgeschoss: 39 m²
• Wohnfläche: ca. 180 m²
• 64,3 kWh(m2*a) (Verbrauchsausweis)
• Energieeffizienz B (Energieverbrauch) und D (Primärenergieverbrauch)
• Zimmer: flexibel gestaltbar
• Bäder: mehrere Badezimmer, Gäste-WC möglich
• Heizung: Elektroheizung
• Küche: Vollständige Einbauküche mit modernen Geräten
• Keller: große Nutzflächen und Abstellräume
• weitere Extras: gepflegter Vorgarten
• Renovierungs- und Sanierungsbedarf vorhanden
Sonstige Informationen
Heizungsart: Sonstiges (s. Text)
Energieträger: Strom
Das Haus wird von privat verkauft und ist sofort verfügbar. Der Verkaufspreis beträgt 175.000,00 Euro VB. Besichtigungstermine können nach Vereinbarung stattfinden. Ein aktueller Energieausweis mit Datum 03.06.2025 liegt vor.
Kontakt
Haben wir Ihr Interesse geweckt? Für weitere Informationen und zur Vereinbarung eines Besichtigungstermins stehen wir Ihnen gerne per E-Mail zur Verfügung. Wir freuen uns auf Ihre Anfrage! Alle Angaben ohne Gewähr. Irrtümer und Zwischenverkauf vorbehalten.
Makleranfragen nicht erwünscht. Nach § 7 UWG sind unaufgeforderte Kontaktaufnahmen durch Makler ohne ausdrückliche Einwilligung des Empfängers verboten!
ohne-makler (OM) ist weder Anbieter noch Vermittler der Immobilie. OM betreibt eine Plattform für Immobilieneigentümer, die unter anderem die gleichzeitige Veröffentlichung einzelner Inserate auf mehreren Immobilienportalen ermöglicht. Die Inhalte dieser Inserate werden ausschließlich von Dritten verantwortet. Für die Richtigkeit, Vollständigkeit oder Rechtmäßigkeit der Angaben übernimmt OM keine Haftung. Hinweise auf mögliche Rechtsverstöße können jederzeit gemeldet werden und werden nach Prüfung umgehend bearbeitet.
Energieträger: Strom
Das Haus wird von privat verkauft und ist sofort verfügbar. Der Verkaufspreis beträgt 175.000,00 Euro VB. Besichtigungstermine können nach Vereinbarung stattfinden. Ein aktueller Energieausweis mit Datum 03.06.2025 liegt vor.
Kontakt
Haben wir Ihr Interesse geweckt? Für weitere Informationen und zur Vereinbarung eines Besichtigungstermins stehen wir Ihnen gerne per E-Mail zur Verfügung. Wir freuen uns auf Ihre Anfrage! Alle Angaben ohne Gewähr. Irrtümer und Zwischenverkauf vorbehalten.
Makleranfragen nicht erwünscht. Nach § 7 UWG sind unaufgeforderte Kontaktaufnahmen durch Makler ohne ausdrückliche Einwilligung des Empfängers verboten!
ohne-makler (OM) ist weder Anbieter noch Vermittler der Immobilie. OM betreibt eine Plattform für Immobilieneigentümer, die unter anderem die gleichzeitige Veröffentlichung einzelner Inserate auf mehreren Immobilienportalen ermöglicht. Die Inhalte dieser Inserate werden ausschließlich von Dritten verantwortet. Für die Richtigkeit, Vollständigkeit oder Rechtmäßigkeit der Angaben übernimmt OM keine Haftung. Hinweise auf mögliche Rechtsverstöße können jederzeit gemeldet werden und werden nach Prüfung umgehend bearbeitet.
Lage des Objektes
Die Immobilie befindet sich im Zentrum von Rotenburg an der Fulda und profitiert von der hervorragenden Infrastruktur der Stadt. Einkaufsmöglichkeiten, Schulen, Kindergärten, Ärzte sowie zahlreiche Freizeit- und Kulturangebote sind in wenigen Minuten zu Fuß erreichbar. Die Anbindung an den öffentlichen Nahverkehr sowie die Nähe zum Bahnhof und zur Autobahn machen das Objekt sowohl für Pendler*innen als auch für Stadtmenschen attraktiv.
Infrastruktur (im Umkreis von 5 km):
Apotheke, Lebensmittel-Discount, Allgemeinmediziner, Kindergarten, Grundschule, Hauptschule, Realschule, Gymnasium, Gesamtschule, Öffentliche Verkehrsmittel
Infrastruktur (im Umkreis von 5 km):
Apotheke, Lebensmittel-Discount, Allgemeinmediziner, Kindergarten, Grundschule, Hauptschule, Realschule, Gymnasium, Gesamtschule, Öffentliche Verkehrsmittel
