Attraktive 2 Zimmer Wohnung in Haidhausen-Au
525.000 €
Kaufpreis
55 m²
Wohnfläche
2
Zimmer
immobilien.de Nr.: 9296397
Objektnummer: 400478
Preise & Kosten
| Kaufpreis | 525.000 € |
| Nebenkosten | keine Angabe |
| Hausgeld | 359 € |
| Maklerprovision | keine Provision, courtagefrei |
| Stellplatz Tiefgarage Kaufpreis | 30.000 € |
Größe & Zustand
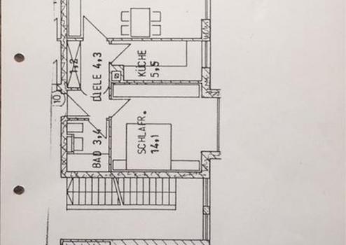
| Wohnfläche | 55 m² |
| Zimmer | 2 |
| Baujahr | 1983 |
| Verfügbar ab | nach Absprache |
| Zustand | Gepflegt |
Energie
| Energieausweistyp | Bedarfsausweis |
| Energieeffizienzklasse | D |
| Endenergiebedarf | 108 |
| Energieträger/Befeuerung | Fernwärme |
Objektbeschreibung
** Haidhausen-Au in U-Bahn Nähe**
In absoluter Toplage von Haidhausen-Au befindet sich dies attraktive
2-Zimmerwohnung im 3. OG einer kleinen Wohnanlage mit 20 Einheiten.
Besonders zu erwähnen ist ist die Nähe zu öffentlichen Verkehrsmitteln.
Die Highlights sind:
+ gepflegte Wohnanlage
+ 3. Etage mit Lift
+ ca. 30 qm helles Wohnzimmer
+ helles Bad mit Wanne
+ Einbauküche
+ Laminatboden in Wohn- und Schlafzimmer
+ Tiefgaragenstellplatz
+ ca 4 qm Kellerabteil
+ Waschraum mit Münz-Waschmaschinen
Die Wohnung ist seit 7 Jahren an eine solide Mieterin vermietet.
In absoluter Toplage von Haidhausen-Au befindet sich dies attraktive
2-Zimmerwohnung im 3. OG einer kleinen Wohnanlage mit 20 Einheiten.
Besonders zu erwähnen ist ist die Nähe zu öffentlichen Verkehrsmitteln.
Die Highlights sind:
+ gepflegte Wohnanlage
+ 3. Etage mit Lift
+ ca. 30 qm helles Wohnzimmer
+ helles Bad mit Wanne
+ Einbauküche
+ Laminatboden in Wohn- und Schlafzimmer
+ Tiefgaragenstellplatz
+ ca 4 qm Kellerabteil
+ Waschraum mit Münz-Waschmaschinen
Die Wohnung ist seit 7 Jahren an eine solide Mieterin vermietet.
Ausstattung
| Anzahl der Etagen im Haus | 6 |
| Inserat befindet sich im Stockwerk | 3 |
| Küche | Einbauküche |
| Bad | 1 |
| Bad | Wanne |
| Boden | Laminat |
| Fahrstuhl | |
| Keller |
Keller, Fahrstuhl, Vollbad, Einbauküche, Laminat
Bemerkungen:
+ Wohn-, Schlafzimmer und Flur mit Laminatboden
+ Einbauküche
+ renoviertes Bad mit Wanne
+ Tiefgaragenstellplatz
+ Kellerabteil
Bemerkungen:
+ Wohn-, Schlafzimmer und Flur mit Laminatboden
+ Einbauküche
+ renoviertes Bad mit Wanne
+ Tiefgaragenstellplatz
+ Kellerabteil
Sonstige Informationen
Heizungsart: Sonstiges (s. Text)
Energieträger: Fernwärme
Makleranfragen nicht erwünscht. Nach § 7 UWG sind unaufgeforderte Kontaktaufnahmen durch Makler ohne ausdrückliche Einwilligung des Empfängers verboten!
Die Wohnung wird direkt vom Eigentümer angeboten.
Bitte senden Sie eine Kontaktanfrage mit Angabe Ihrer vollständigen Anschrift und Kontaktdaten.
Beim ausgewiesenen Preis handelt es sich um den Angebotspreis, der sich je nach Nachfrage und Verhandlungen auch nach oben oder unten verändern kann.
Makleranfragen nicht erwünscht. Nach § 7 UWG sind unaufgeforderte Kontaktaufnahmen durch Makler ohne ausdrückliche Einwilligung des Empfängers verboten!
ohne-makler (OM) ist weder Anbieter noch Vermittler der Immobilie. OM betreibt eine Plattform für Immobilieneigentümer, die unter anderem die gleichzeitige Veröffentlichung einzelner Inserate auf mehreren Immobilienportalen ermöglicht. Die Inhalte dieser Inserate werden ausschließlich von Dritten verantwortet. Für die Richtigkeit, Vollständigkeit oder Rechtmäßigkeit der Angaben übernimmt OM keine Haftung. Hinweise auf mögliche Rechtsverstöße können jederzeit gemeldet werden und werden nach Prüfung umgehend bearbeitet.
Energieträger: Fernwärme
Makleranfragen nicht erwünscht. Nach § 7 UWG sind unaufgeforderte Kontaktaufnahmen durch Makler ohne ausdrückliche Einwilligung des Empfängers verboten!
Die Wohnung wird direkt vom Eigentümer angeboten.
Bitte senden Sie eine Kontaktanfrage mit Angabe Ihrer vollständigen Anschrift und Kontaktdaten.
Beim ausgewiesenen Preis handelt es sich um den Angebotspreis, der sich je nach Nachfrage und Verhandlungen auch nach oben oder unten verändern kann.
Makleranfragen nicht erwünscht. Nach § 7 UWG sind unaufgeforderte Kontaktaufnahmen durch Makler ohne ausdrückliche Einwilligung des Empfängers verboten!
ohne-makler (OM) ist weder Anbieter noch Vermittler der Immobilie. OM betreibt eine Plattform für Immobilieneigentümer, die unter anderem die gleichzeitige Veröffentlichung einzelner Inserate auf mehreren Immobilienportalen ermöglicht. Die Inhalte dieser Inserate werden ausschließlich von Dritten verantwortet. Für die Richtigkeit, Vollständigkeit oder Rechtmäßigkeit der Angaben übernimmt OM keine Haftung. Hinweise auf mögliche Rechtsverstöße können jederzeit gemeldet werden und werden nach Prüfung umgehend bearbeitet.
Lage des Objektes
** Haidhausen-Au in U-Bahnnähe**
+ Nähe Mariahilfplatz
+ Tram und U-Bahnstation Kolumbusplatz nur jeweils ca. 300m entfernt
+ Bushaltestelle vor dem Haus
+ Geschäfte des täglichen Bedarfs in unmittelbarer Nähe
+ hoher Freizeitwert (Nähe Isar, Gasteig, Biergärten)
Infrastruktur (im Umkreis von 5 km):
Öffentliche Verkehrsmittel
+ Nähe Mariahilfplatz
+ Tram und U-Bahnstation Kolumbusplatz nur jeweils ca. 300m entfernt
+ Bushaltestelle vor dem Haus
+ Geschäfte des täglichen Bedarfs in unmittelbarer Nähe
+ hoher Freizeitwert (Nähe Isar, Gasteig, Biergärten)
Infrastruktur (im Umkreis von 5 km):
Öffentliche Verkehrsmittel
