Helle 3,5 Zimmer Erdgeschosswohnung mit Terrasse - PROVISIONSFREI
729.000 €
Kaufpreis
97,52 m²
Wohnfläche
3,5
Zimmer
immobilien.de Nr.: 9294502
Objektnummer: 397145
Preise & Kosten
| Kaufpreis | 729.000 € |
| Nebenkosten | keine Angabe |
| Hausgeld | 410 € |
| Maklerprovision | keine Provision, courtagefrei |
| Stellplatz Tiefgarage Kaufpreis | 25.000 € |
Größe & Zustand
| Wohnfläche | 97,52 m² |
| Zimmer | 3,5 |
| Baujahr | 2003 |
| Verfügbar ab | sofort |
| Zustand | Gepflegt |
Energie
| Energieausweistyp | Verbrauch |
| Energieeffizienzklasse | C |
| Energieverbrauchkennwert | 96 kWh/(m²*a) |
| Heizungsart | Fußbodenheizung |
| Energieträger/Befeuerung | Gas |
Objektbeschreibung
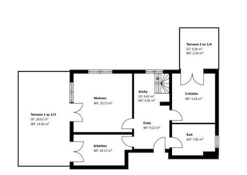
Diese 3-Zimmer-Wohnung inklusive Hobbyraum, der direkt über die Küche erreichbar ist, befindet sich im Erdgeschoss eines Mehrfamilienhauses, dies umfasst lediglich sechs Wohneinheiten und bietet ein gepflegtes, ruhiges Wohnumfeld mit viel Privatsphäre.
Die Wohnung empfiehlt sich durch eine intelligente Raumaufteilung, der sonnigen Terrasse (ca.30m²), einen eigenen Gartenanteil und einem großzügigen Hobbyraum mit Wohncharakter auf der unteren Ebene. Der ca. 30 m² (wovon nur 50% in der Wohnfläche berücksichtigt werden) große Hobbyraum ist direkt über die offen gestaltete Küche mit moderner, 2019 erneuerter Einbauküche erreichbar, dieser ist mit Fußbodenheizung und Laminat ausgestattet. Dieser Raum mit Tageslicht durch große Lichtschächte und große Fenster, bietet flexible Nutzungsmöglichkeiten als Homeoffice, Gästezimmer, Fitnessraum oder Rückzugsort.
Im gesamten Wohnbereich sorgen bodentiefe Fenster einen direkten Zugang zum privaten Garten. Eine Fußbodenheizung mit Einzelraumsteuerung sorgt für angenehmes Raumklima und elektrische Jalousien gewährleisten komfortable Licht- und Sichtregulierung. Beides kann komfortabel im Zimmer oder per Smartphone gesteuert werden.
Die hochwertige Ausstattung mit Echtholzparkett (2019 abgeschliffen und neu versiegelt) im Erdgeschoss, runden das Wohnniveau ab.
Das Tageslichtbad ist mit Badewanne, separater Duschkabine und hochwertigen Armaturen ausgestattet.
Zur Wohnung gehört ein eigener Stellplatz (kein Duplex), der bequem über die Wohnung im Untergeschoss zugänglich ist. Außerdem stehen ein separater Waschmaschinen- und Trockenraum zur Nutzung bereit.
Die Wohnung empfiehlt sich durch eine intelligente Raumaufteilung, der sonnigen Terrasse (ca.30m²), einen eigenen Gartenanteil und einem großzügigen Hobbyraum mit Wohncharakter auf der unteren Ebene. Der ca. 30 m² (wovon nur 50% in der Wohnfläche berücksichtigt werden) große Hobbyraum ist direkt über die offen gestaltete Küche mit moderner, 2019 erneuerter Einbauküche erreichbar, dieser ist mit Fußbodenheizung und Laminat ausgestattet. Dieser Raum mit Tageslicht durch große Lichtschächte und große Fenster, bietet flexible Nutzungsmöglichkeiten als Homeoffice, Gästezimmer, Fitnessraum oder Rückzugsort.
Im gesamten Wohnbereich sorgen bodentiefe Fenster einen direkten Zugang zum privaten Garten. Eine Fußbodenheizung mit Einzelraumsteuerung sorgt für angenehmes Raumklima und elektrische Jalousien gewährleisten komfortable Licht- und Sichtregulierung. Beides kann komfortabel im Zimmer oder per Smartphone gesteuert werden.
Die hochwertige Ausstattung mit Echtholzparkett (2019 abgeschliffen und neu versiegelt) im Erdgeschoss, runden das Wohnniveau ab.
Das Tageslichtbad ist mit Badewanne, separater Duschkabine und hochwertigen Armaturen ausgestattet.
Zur Wohnung gehört ein eigener Stellplatz (kein Duplex), der bequem über die Wohnung im Untergeschoss zugänglich ist. Außerdem stehen ein separater Waschmaschinen- und Trockenraum zur Nutzung bereit.
Ausstattung
| Anzahl der Etagen im Haus | 2 |
| Inserat befindet sich im Stockwerk | 0 |
| Küche | Einbauküche |
| Bad | 1 |
| Bad | Wanne |
| Boden | Fliesen, Parkett |
| Balkone | 0 |
| Garten | |
| Terrassen | 1 |
Terrasse, Garten, Vollbad, Einbauküche, Parkett, Fliesen
Bemerkungen:
Moderne Einbauküche neuwertig
Fußbodenheizung mit Smart-Home-Steuerung
Elektrische Jalousien für optimalen Komfort und Energieeffizienz mit Smart-Home-Steuerung
Bemerkungen:
Moderne Einbauküche neuwertig
Fußbodenheizung mit Smart-Home-Steuerung
Elektrische Jalousien für optimalen Komfort und Energieeffizienz mit Smart-Home-Steuerung
Sonstige Informationen
Heizungsart: Fußbodenheizung
Energieträger: Gas
Makleranfragen nicht erwünscht. Nach § 7 UWG sind unaufgeforderte Kontaktaufnahmen durch Makler ohne ausdrückliche Einwilligung des Empfängers verboten!
ohne-makler (OM) ist weder Anbieter noch Vermittler der Immobilie. OM betreibt eine Plattform für Immobilieneigentümer, die unter anderem die gleichzeitige Veröffentlichung einzelner Inserate auf mehreren Immobilienportalen ermöglicht. Die Inhalte dieser Inserate werden ausschließlich von Dritten verantwortet. Für die Richtigkeit, Vollständigkeit oder Rechtmäßigkeit der Angaben übernimmt OM keine Haftung. Hinweise auf mögliche Rechtsverstöße können jederzeit gemeldet werden und werden nach Prüfung umgehend bearbeitet.
Energieträger: Gas
Makleranfragen nicht erwünscht. Nach § 7 UWG sind unaufgeforderte Kontaktaufnahmen durch Makler ohne ausdrückliche Einwilligung des Empfängers verboten!
ohne-makler (OM) ist weder Anbieter noch Vermittler der Immobilie. OM betreibt eine Plattform für Immobilieneigentümer, die unter anderem die gleichzeitige Veröffentlichung einzelner Inserate auf mehreren Immobilienportalen ermöglicht. Die Inhalte dieser Inserate werden ausschließlich von Dritten verantwortet. Für die Richtigkeit, Vollständigkeit oder Rechtmäßigkeit der Angaben übernimmt OM keine Haftung. Hinweise auf mögliche Rechtsverstöße können jederzeit gemeldet werden und werden nach Prüfung umgehend bearbeitet.
Lage des Objektes
Attraktive Lage in München-Untermenzing – familienfreundlich, grün und bestens angebunden
Die Gartenwohnung befindet sich in einem ruhigen Mehrfamilienhaus mit sechs Parteien im begehrten Münchner Stadtteil Untermenzing, der durch seine perfekte Kombination aus naturnahem Wohnen und hervorragender Anbindung an das städtische Leben besticht.
Untermenzing bietet eine ausgezeichnete Infrastruktur: Einkaufsmöglichkeiten für den täglichen Bedarf – von Supermärkten bis hin zu kleineren Fachgeschäften – sind schnell erreichbar. Apotheken, Ärtze, Bäckereien und Cafés befinden sich ebenfalls in unmittelbarer Nähe. Das nahegelegene Einkaufszentrum „EVERS“ bietet eine Vielzahl an Geschäften und Gastronomie, die zusätzlichen Komfort schaffen.
Die Anbindung an den öffentlichen Nahverkehr ist hervorragend: Der S-Bahnhof Allach und eine nahe gelgene Bushaltestelle ist nur wenige Minuten entfernt. Mit der S2 gelangen Sie in etwa 20 Minuten in die Münchner Innenstadt (Marienplatz) oder in rund 15 Minuten zum Hauptbahnhof. Die Bushaltestelle ist ebenfalls in nur 7 Minuten zu Fuß erreichbar. Der Münchener Flughafen ist mit dem Auto in etwa 30 Minuten zu erreichen, und über die nahegelegene A8 besteht eine schnelle Verbindung zum überregionalen Straßennetz.
Besonders für Familien ist Untermenzing attraktiv: Hier finden sich mehrere Kindergärten, Grundschulen und weiterführende Schulen, diese sind ebenfalls gut erreichbar, was Untermenzing zu einem idealen Standort für Familien macht.
Für Freizeit- und Sportbegeisterte gibt es zahlreiche Sportvereine und Spielplätze, die zu Bewegung und geselligem Beisammensein einladen. Die umliegenden Grünflächen bieten zusätzlich Raum für Erholung und besonders beliebt sind die Badeseen in der Umgebung, die zu erfrischenden Badeausflügen und Freizeitaktivitäten in der Natur einladen.
Das charmante Untermenzing bietet somit eine perfekte Mischung aus ruhigem, grünem Wohnen und einer hervorragenden Anbindung an die urbanen Vorzüge Münchens – ideal für Familien, Berufspendler und Naturliebhaber.
Infrastruktur (im Umkreis von 5 km):
Apotheke, Lebensmittel-Discount, Allgemeinmediziner, Kindergarten, Grundschule, Hauptschule, Realschule, Gymnasium, Öffentliche Verkehrsmittel
Die Gartenwohnung befindet sich in einem ruhigen Mehrfamilienhaus mit sechs Parteien im begehrten Münchner Stadtteil Untermenzing, der durch seine perfekte Kombination aus naturnahem Wohnen und hervorragender Anbindung an das städtische Leben besticht.
Untermenzing bietet eine ausgezeichnete Infrastruktur: Einkaufsmöglichkeiten für den täglichen Bedarf – von Supermärkten bis hin zu kleineren Fachgeschäften – sind schnell erreichbar. Apotheken, Ärtze, Bäckereien und Cafés befinden sich ebenfalls in unmittelbarer Nähe. Das nahegelegene Einkaufszentrum „EVERS“ bietet eine Vielzahl an Geschäften und Gastronomie, die zusätzlichen Komfort schaffen.
Die Anbindung an den öffentlichen Nahverkehr ist hervorragend: Der S-Bahnhof Allach und eine nahe gelgene Bushaltestelle ist nur wenige Minuten entfernt. Mit der S2 gelangen Sie in etwa 20 Minuten in die Münchner Innenstadt (Marienplatz) oder in rund 15 Minuten zum Hauptbahnhof. Die Bushaltestelle ist ebenfalls in nur 7 Minuten zu Fuß erreichbar. Der Münchener Flughafen ist mit dem Auto in etwa 30 Minuten zu erreichen, und über die nahegelegene A8 besteht eine schnelle Verbindung zum überregionalen Straßennetz.
Besonders für Familien ist Untermenzing attraktiv: Hier finden sich mehrere Kindergärten, Grundschulen und weiterführende Schulen, diese sind ebenfalls gut erreichbar, was Untermenzing zu einem idealen Standort für Familien macht.
Für Freizeit- und Sportbegeisterte gibt es zahlreiche Sportvereine und Spielplätze, die zu Bewegung und geselligem Beisammensein einladen. Die umliegenden Grünflächen bieten zusätzlich Raum für Erholung und besonders beliebt sind die Badeseen in der Umgebung, die zu erfrischenden Badeausflügen und Freizeitaktivitäten in der Natur einladen.
Das charmante Untermenzing bietet somit eine perfekte Mischung aus ruhigem, grünem Wohnen und einer hervorragenden Anbindung an die urbanen Vorzüge Münchens – ideal für Familien, Berufspendler und Naturliebhaber.
Infrastruktur (im Umkreis von 5 km):
Apotheke, Lebensmittel-Discount, Allgemeinmediziner, Kindergarten, Grundschule, Hauptschule, Realschule, Gymnasium, Öffentliche Verkehrsmittel
