~~ GERÄUMIGES EINFAMILIENHAUS MIT GROßEM HOF UND BAUPLATZ!!! ~~
285.000 €
Kaufpreis
165 m²
Wohnfläche
4,5
Zimmer
immobilien.de Nr.: 9291722
Objektnummer: 122551608#bIFkF
Dateien
Preise & Kosten
| Kaufpreis | 285.000 € |
| Nebenkosten | keine Angabe |
| Maklerprovision | 3,57 |
Größe & Zustand
| Wohnfläche | 165 m² |
| Grundstücksfläche | 810 m² |
| Zimmer | 4,5 |
| Baujahr | 1967 |
| Letzte Modernisierung | 2025 |
| Verfügbar ab | Nach Vereinbarung |
| Zustand | Teil Vollrenovierungsbed |
Energie
| Energieausweistyp | Bedarfsausweis |
| Ausstellungsdatum | 02. 12. 2024 |
| Gültig bis | 02.12.2034 |
| Baujahr (laut Energieausweis) | 1967 |
| Energieeffizienzklasse | H |
| Endenergiebedarf | 280.79 |
| Heizungsart | Zentralheizung |
| Wesentlicher Energieträger | Öl |
| Energieträger/Befeuerung | Öl |
Objektbeschreibung
Sie suchen eine geräumige Immobilie mit viel Platz für die Familie?
Ein großes Grundstück mit angelegtem Garten wäre wünschenswert?
Eine Erweiterungsmöglichkeit / Bebauung in 3. Reihe wäre von Vorteil?
Dann haben wir hier vermutlich das passende Objekt für Sie!
Das Haus befindet sich in 2. Baureihe! In 1. Baureihe befindet sich ein älteres Fachwerkhaus mit Bäckerei im EG. Diese Immobilie ist nicht Bestandteil unseres Angebots.
Auf einem 810 m² großen Grundstück wurde 1966 dieses Einfamilienhaus in Massivbauweise
errichtet.
Die Raumaufteilung ist ansprechend und die Zimmer sind großzügig (jedoch teilweise Durchgangszimmer).
Die Wohnfläche beläuft sich auf etwa 170 m² und verteilt sich wie folgt:
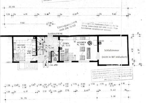
ERDGESCHOSS:
- geräumige Diele
- Gäste-WC
- Küche inkl. Einbauküche
- großes Wohnzimmer-/ Esszimmer
- weiteres Zimmer (entkernt und nicht in die Wohnfläche inkludiert, da nachträglich ausgebaut)
OBERGESCHOSS:
- Schlafzimmer 1
- Gäste-WC mit Dusche
- modernes Badezimmer mit Dusche, Wanne, Waschtisch und WC
- Schlafzimmer 2 (Durchgangszimmer)
- Schlafzimmer 3 (entkernt)
KELLERGESCHOSS:
- Heizraum (Öl-Zentralheizung)
- Waschraum mit praktischem Zugang zum Hof
- ausgebauter Kellerraum (Büro)
- ausgebauter Kellerraum (Bügelzimmer)
- Tankraum (8000 Liter Stahltank)
Das Haus ist äußerst gepflegt und wurde stetig instandgehalten. Ausstattungsmerkmale, sowie Renovierungen entnehmen Sie bitte der Rubrik "Ausstattung". Ein absoluter Blickfang ist die große Wohnküche mit maßangefertigter Einbauküche, sowie der geräumige Wohnbereich-/ Essbereich.
Der hintere Teil der Immobilie hat im Jahr 2024, aufgrund eines Scheunenbrands in der direkten Nachbarschaft, einen Brandschaden erlitten.
Hier wurde der Anbau (gewerblich genutzte Werkstatt) betroffen. Der Anbau wurde bereits fachmännisch abgetragen und entsorgt.
Ein Neuaufbau der Werkstatt, eine Erweiterung des bestehenden Wohnhauses bzw. das errichten sämtlicher Garagen oder Carports wäre hier denkbar. Das Betonfundament der Werkstatt blieb erhalten.
Durch die Löscharbeiten wurden die beiden hinteren Zimmer des Wohnhauses (Schlafzimmer EG und OG)
beschädigt (Löschwasserschaden). Dies bezieht sich jedoch ausschließlich auf die Bodenbeläge und
Deckenverkleidungen, weshalb die beiden Räume entkernt und trocken übergeben werden. Der beschädigte Bereich des Daches (etwa 35%) wurde ebenfalls fachmännisch saniert.
Die Immobilie ist aktuell vermietet. Die monatlichen Mieteinnahmen belaufen sich auf 800€ Kaltmiete. Die Nebenkosten werden seitens der Mieter, direkt mit den Versorgern abgerechnet. Bei Eigenbedarf muss der bestehende Mietvertrag seitens der neuen Eigentümer gekündigt werden.
Ein geräumiger Hof mit mehreren Stellplätzen für Ihre PKW, sowie der große, teils angelegte Sonnengarten runden dieses interessante Angebot ab.
Lassen Sie sich diese grundsolide Immobilie mit ihrer praktischen Raumaufteilung nicht entgehen!
Sollten wir Ihr Interesse geweckt haben, freuen wir uns über Ihre schriftliche Anfrage.
WICHTIG:
Sie wünschen weitere INFORMATIONEN und BILDER der Immobilie? Nach Ihrer schriftlichen Anfrage erhalten Sie automatisiert eine E-Mail mit weiteren Hinweisen. Bitte bestätigen Sie per Mausklick alle notwendigen Belehrungen um das Komplett-Exposé mit weiteren Informationen und diversem Bildmaterial einsehen oder herunterladen zu können!!!
Sollten Sie danach einen Besichtigungstermin wünschen, bitten wir um Kontaktaufnahme per E-Mail.
Ein großes Grundstück mit angelegtem Garten wäre wünschenswert?
Eine Erweiterungsmöglichkeit / Bebauung in 3. Reihe wäre von Vorteil?
Dann haben wir hier vermutlich das passende Objekt für Sie!
Das Haus befindet sich in 2. Baureihe! In 1. Baureihe befindet sich ein älteres Fachwerkhaus mit Bäckerei im EG. Diese Immobilie ist nicht Bestandteil unseres Angebots.
Auf einem 810 m² großen Grundstück wurde 1966 dieses Einfamilienhaus in Massivbauweise
errichtet.
Die Raumaufteilung ist ansprechend und die Zimmer sind großzügig (jedoch teilweise Durchgangszimmer).
Die Wohnfläche beläuft sich auf etwa 170 m² und verteilt sich wie folgt:
ERDGESCHOSS:
- geräumige Diele
- Gäste-WC
- Küche inkl. Einbauküche
- großes Wohnzimmer-/ Esszimmer
- weiteres Zimmer (entkernt und nicht in die Wohnfläche inkludiert, da nachträglich ausgebaut)
OBERGESCHOSS:
- Schlafzimmer 1
- Gäste-WC mit Dusche
- modernes Badezimmer mit Dusche, Wanne, Waschtisch und WC
- Schlafzimmer 2 (Durchgangszimmer)
- Schlafzimmer 3 (entkernt)
KELLERGESCHOSS:
- Heizraum (Öl-Zentralheizung)
- Waschraum mit praktischem Zugang zum Hof
- ausgebauter Kellerraum (Büro)
- ausgebauter Kellerraum (Bügelzimmer)
- Tankraum (8000 Liter Stahltank)
Das Haus ist äußerst gepflegt und wurde stetig instandgehalten. Ausstattungsmerkmale, sowie Renovierungen entnehmen Sie bitte der Rubrik "Ausstattung". Ein absoluter Blickfang ist die große Wohnküche mit maßangefertigter Einbauküche, sowie der geräumige Wohnbereich-/ Essbereich.
Der hintere Teil der Immobilie hat im Jahr 2024, aufgrund eines Scheunenbrands in der direkten Nachbarschaft, einen Brandschaden erlitten.
Hier wurde der Anbau (gewerblich genutzte Werkstatt) betroffen. Der Anbau wurde bereits fachmännisch abgetragen und entsorgt.
Ein Neuaufbau der Werkstatt, eine Erweiterung des bestehenden Wohnhauses bzw. das errichten sämtlicher Garagen oder Carports wäre hier denkbar. Das Betonfundament der Werkstatt blieb erhalten.
Durch die Löscharbeiten wurden die beiden hinteren Zimmer des Wohnhauses (Schlafzimmer EG und OG)
beschädigt (Löschwasserschaden). Dies bezieht sich jedoch ausschließlich auf die Bodenbeläge und
Deckenverkleidungen, weshalb die beiden Räume entkernt und trocken übergeben werden. Der beschädigte Bereich des Daches (etwa 35%) wurde ebenfalls fachmännisch saniert.
Die Immobilie ist aktuell vermietet. Die monatlichen Mieteinnahmen belaufen sich auf 800€ Kaltmiete. Die Nebenkosten werden seitens der Mieter, direkt mit den Versorgern abgerechnet. Bei Eigenbedarf muss der bestehende Mietvertrag seitens der neuen Eigentümer gekündigt werden.
Ein geräumiger Hof mit mehreren Stellplätzen für Ihre PKW, sowie der große, teils angelegte Sonnengarten runden dieses interessante Angebot ab.
Lassen Sie sich diese grundsolide Immobilie mit ihrer praktischen Raumaufteilung nicht entgehen!
Sollten wir Ihr Interesse geweckt haben, freuen wir uns über Ihre schriftliche Anfrage.
WICHTIG:
Sie wünschen weitere INFORMATIONEN und BILDER der Immobilie? Nach Ihrer schriftlichen Anfrage erhalten Sie automatisiert eine E-Mail mit weiteren Hinweisen. Bitte bestätigen Sie per Mausklick alle notwendigen Belehrungen um das Komplett-Exposé mit weiteren Informationen und diversem Bildmaterial einsehen oder herunterladen zu können!!!
Sollten Sie danach einen Besichtigungstermin wünschen, bitten wir um Kontaktaufnahme per E-Mail.
Ausstattung
| Anzahl der Etagen im Haus | 2 |
| Küche | Einbauküche |
| Bad | 2 |
| Bad | Dusche, Wanne, Fenster |
| Boden | Fliesen, Laminat |
| Terrassen | 0 |
| Keller |
1966 in Massivbauweise (Haus-/Hof Bebauung) errichtet
Etwa 65% des Pultdaches besteht aus Eternit Berliner Welle
1991 wurde das Objekt umfangreich saniert:
- Kunststofffenster doppeltverglast
- Hauseingangstür mit Glaseinsatz
- hochwertige Einbauküche inkl. E-Geräte
- modernes Badezimmer im Obergeschoss mit Badewanne, Dusche, Waschtisch und WC
- Gäste-Bad im Obergeschoss mit Dusche, Waschtisch und WC
- Wand, Decken und Bodenbeläge (überwiegend Fliesen und Laminat)
2005 wurde eine neue Öl-Zentralheizung (Firma Viessmann) verbaut
2017 erfolgte eine erneute Modernisierung der Bodenbeläge (Laminat)
2025 wurden aufgrund des Brandschadens folgende Gewerke saniert:
- 35% des Daches erneuert (Berliner Welle Asbestfrei!)
- die Fassade (Gartenseite) komplett neu isoliert, verputzt und gestrichen
- neue Balkontür (abschließbar) im Schlafzimmer OG
Etwa 65% des Pultdaches besteht aus Eternit Berliner Welle
1991 wurde das Objekt umfangreich saniert:
- Kunststofffenster doppeltverglast
- Hauseingangstür mit Glaseinsatz
- hochwertige Einbauküche inkl. E-Geräte
- modernes Badezimmer im Obergeschoss mit Badewanne, Dusche, Waschtisch und WC
- Gäste-Bad im Obergeschoss mit Dusche, Waschtisch und WC
- Wand, Decken und Bodenbeläge (überwiegend Fliesen und Laminat)
2005 wurde eine neue Öl-Zentralheizung (Firma Viessmann) verbaut
2017 erfolgte eine erneute Modernisierung der Bodenbeläge (Laminat)
2025 wurden aufgrund des Brandschadens folgende Gewerke saniert:
- 35% des Daches erneuert (Berliner Welle Asbestfrei!)
- die Fassade (Gartenseite) komplett neu isoliert, verputzt und gestrichen
- neue Balkontür (abschließbar) im Schlafzimmer OG
Sonstige Informationen
Mit dem Eigentümer wurde ein Maklervertrag in gleicher Höhe der Provision abgeschlossen.
Haftungsausschluss
Die in den Nachweisen, Beschreibungen und im Energieausweis enthaltenen Angaben basieren auf Informationen des Verkäufers. Zu eigenen Nachforschungen ist der Immobilienmakler nicht verpflichtet. Er übernimmt deshalb keine Haftung für die Richtigkeit und Vollständigkeit der Angaben, es sei denn, die Unrichtigkeit oder Unvollständigkeit beruht auf grobem Verschulden des Immobilienmaklers.
Informationen an Immobilienbesitzer:
In unserem Servicepaket für Verkäufer sind folgende Dienstleistungen kostenfrei und inklusive:
- die Erstellung eines Energieausweises
- die Immobilienbewertung/Immobilienwert Report
- Standortanalyse
- die Erstellung und / oder Optimierung der Grundrisse
- Besichtigungen
- Regelmäßiger Report
- Kaufabwicklung mit dem Notariat und ggf. der Bank.
Verkäufer / Vermieter von gewerblichen Immobilien und Mehrfamilienhäusern bezahlen keine Provision und erhalten alle Leistungen kostenfrei.
Wir suchen für vorgemerkte Kunden bundesweit Eigentumswohnungen und Häuser in Ballungsgebieten und deren Umgebung, bevorzugt in und um Karlsruhe, Wörth, Kandel und Landau.
Legitimationspflicht - Gesetzliche Pflichten für Immobilienmakler nach dem Geldwäschegesetz (GwG) gemäß § 2 Absatz 1 Nr. 10 GwG.
Haftungsausschluss
Die in den Nachweisen, Beschreibungen und im Energieausweis enthaltenen Angaben basieren auf Informationen des Verkäufers. Zu eigenen Nachforschungen ist der Immobilienmakler nicht verpflichtet. Er übernimmt deshalb keine Haftung für die Richtigkeit und Vollständigkeit der Angaben, es sei denn, die Unrichtigkeit oder Unvollständigkeit beruht auf grobem Verschulden des Immobilienmaklers.
Informationen an Immobilienbesitzer:
In unserem Servicepaket für Verkäufer sind folgende Dienstleistungen kostenfrei und inklusive:
- die Erstellung eines Energieausweises
- die Immobilienbewertung/Immobilienwert Report
- Standortanalyse
- die Erstellung und / oder Optimierung der Grundrisse
- Besichtigungen
- Regelmäßiger Report
- Kaufabwicklung mit dem Notariat und ggf. der Bank.
Verkäufer / Vermieter von gewerblichen Immobilien und Mehrfamilienhäusern bezahlen keine Provision und erhalten alle Leistungen kostenfrei.
Wir suchen für vorgemerkte Kunden bundesweit Eigentumswohnungen und Häuser in Ballungsgebieten und deren Umgebung, bevorzugt in und um Karlsruhe, Wörth, Kandel und Landau.
Legitimationspflicht - Gesetzliche Pflichten für Immobilienmakler nach dem Geldwäschegesetz (GwG) gemäß § 2 Absatz 1 Nr. 10 GwG.
Lage des Objektes
Hatzenbühl ist eine Ortsgemeinde im Landkreis Germersheim in Rheinland-Pfalz. Sie gehört der Verbandsgemeinde Jockgrim an und hat etwa 3000 Einwohner.
Nachbargemeinden von Hatzenbühl sind Rheinzabern, Jockgrim, Kandel, Erlenbach, Hayna und Herxheim.
Westlich von Hatzenbühl verläuft die Bundesautobahn 65 und östlich die Bundesstraße 9. Nächstgelegene Bahnhöfe sind in Rheinzabern und in Kandel. Im Ort selbst verkehren Linienbusse in kurzen Abständen.
Einkaufsmöglichkeiten für den täglichen Bedarf, Restaurants, ein Allgemeinarzt, ein Zahnarzt und eine Apotheke sind vorhanden.
Ebenso befindet sich eine Kindertagesstätte sowie eine Grundschule im Ort.
Nachbargemeinden von Hatzenbühl sind Rheinzabern, Jockgrim, Kandel, Erlenbach, Hayna und Herxheim.
Westlich von Hatzenbühl verläuft die Bundesautobahn 65 und östlich die Bundesstraße 9. Nächstgelegene Bahnhöfe sind in Rheinzabern und in Kandel. Im Ort selbst verkehren Linienbusse in kurzen Abständen.
Einkaufsmöglichkeiten für den täglichen Bedarf, Restaurants, ein Allgemeinarzt, ein Zahnarzt und eine Apotheke sind vorhanden.
Ebenso befindet sich eine Kindertagesstätte sowie eine Grundschule im Ort.
Anbieter kontaktieren
Anbieter
ImmobilienCenter Dieter Koppe & Kollegen
Alte Bahnmeisterei 1
76744 Wörth
Kontakt
| Mobil | +49 176 20553056 |
| Website | www.immo-woerth.de |
