Solides Dreifamilienhaus mit zusätzlichem Bungalow in Viersen-Dülken
345.000 €
Kaufpreis
211 m²
Wohnfläche
80 m²
Nutzfläche
8
Zimmer
immobilien.de Nr.: 9285679
Objektnummer: IS-2582
Preise & Kosten
| Kaufpreis | 345.000 € |
| Nebenkosten | keine Angabe |
| Maklerprovision | 3,57 % (inkl. 19 % MwSt.) |
Größe & Zustand
| Wohnfläche | 211 m² |
| Nutzfläche | 80 m² |
| Gesamtfläche | 291 m² |
| Grundstücksfläche | 149 m² |
| Zimmer | 8 |
| Baujahr | 1957 |
| Letzte Modernisierung | Heizungsaustausch |
| Verfügbar ab | sofort, Kapitalanlag |
| Zustand | Gepflegt |
Energie
| Energieausweistyp | Verbrauch |
| Gültig bis | 2032-12-09 |
| Baujahr (laut Energieausweis) | 1958 |
| Energieeffizienzklasse | F |
| Energieverbrauchkennwert | 195.20 kWh/(m²*a) |
| Wesentlicher Energieträger | Gas |
| Energieträger/Befeuerung | Gas |
Objektbeschreibung
Zum Verkauf steht ein gepflegtes Dreifamilienhaus mit seitlich angebautem kleinem (ca. 48 m² Wohnfläche) 2-Zimmer-Flachdachbungalow in zentraler Lage von Viersen-Dülken. Beide Gebäude bilden eine wirtschaftliche Einheit (ein Grundbuch) und werden ausschließlich zusammen verkauft.
Das überwiegend sanierte Haupthaus befindet sich in gutem Zustand und ist vollständig vermietet. Der Bungalowanbau war lange vermietet, steht aktuell leer und müsste vor einer Neuvermietung oder Eigennutzung saniert werden, wie auch der kleine Innenhof mit Kelleraußentreppe.
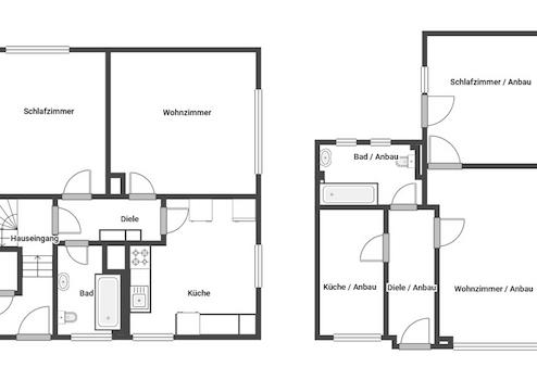
Aufteilung der Wohnflächen:
Erdgeschoss Haupthaus: ca. 59 m²
Obergeschoss Haupthaus: ca. 59 m² mit kleinem Balkon
Dachgeschoss Haupthaus: ca. 45 m²
Bungalowanbau: ca. 48,25 m²
Das Haupthaus ist vollständig unterkellert. Der Bungalow ist zusätzlich unterkellert und verfügt über einen größeren Raum, der über den kleinen Innenhof per Außentreppe erreicht werden kann.
Vorteile auf einen Blick:
====================
- Vollständig vermietetes Haupthaus mit Perspektive für Mietsteigerungen
- separater Bungalow – flexibel nutzbar für Eigennutzer oder Vermietung
- Zentrale Lage mit guter Infrastruktur
- Interessante Gelegenheit für Kapitalanleger oder spätere Eigennutzer (Mehrgenerationenhaus)
Das überwiegend sanierte Haupthaus befindet sich in gutem Zustand und ist vollständig vermietet. Der Bungalowanbau war lange vermietet, steht aktuell leer und müsste vor einer Neuvermietung oder Eigennutzung saniert werden, wie auch der kleine Innenhof mit Kelleraußentreppe.
Aufteilung der Wohnflächen:
Erdgeschoss Haupthaus: ca. 59 m²
Obergeschoss Haupthaus: ca. 59 m² mit kleinem Balkon
Dachgeschoss Haupthaus: ca. 45 m²
Bungalowanbau: ca. 48,25 m²
Das Haupthaus ist vollständig unterkellert. Der Bungalow ist zusätzlich unterkellert und verfügt über einen größeren Raum, der über den kleinen Innenhof per Außentreppe erreicht werden kann.
Vorteile auf einen Blick:
====================
- Vollständig vermietetes Haupthaus mit Perspektive für Mietsteigerungen
- separater Bungalow – flexibel nutzbar für Eigennutzer oder Vermietung
- Zentrale Lage mit guter Infrastruktur
- Interessante Gelegenheit für Kapitalanleger oder spätere Eigennutzer (Mehrgenerationenhaus)
Ausstattung
| Anzahl der Etagen im Haus | 3 |
| Bad | 4 |
| Keller |
- neue Gas-Brennwert-Zentralheizung (2023)
- alle Fenster im Haupthaus mit Doppelverglasungen
- neuere Hauseingangstüre (Haupthaus)
- massive Geschossdecken
- Haupthaus voll unterkellert, Bungalow ca. 50 %
- alle Badezimmer mit Fenster
- alle Fenster im Haupthaus mit Doppelverglasungen
- neuere Hauseingangstüre (Haupthaus)
- massive Geschossdecken
- Haupthaus voll unterkellert, Bungalow ca. 50 %
- alle Badezimmer mit Fenster
Sonstige Informationen
Es liegt ein Energieverbrauchsausweis vor.
Dieser ist gültig bis 9.12.2032.
Endenergieverbrauch beträgt 195.20 kwh/(m²*a).
Wesentlicher Energieträger der Heizung ist Gas.
Das Baujahr des Objekts lt. Energieausweis ist 1958.
Die Energieeffizienzklasse ist F.
Alle Angaben basieren auf Informationen des Eigentümers. Für die Richtigkeit und Vollständigkeit übernehmen wir keine Haftung. Änderungen und Zwischenverkauf bleiben vorbehalten.
Die Käuferprovision beträgt 3,57 % inkl. MwSt. und ist verdient und fällig mit Abschluss des notariellen Kaufvertrages.
Haben wir Ihr Interesse geweckt? Gerne senden wir Ihnen weitere Informationen zu oder vereinbaren einen persönlichen Besichtigungstermin.
Dieser ist gültig bis 9.12.2032.
Endenergieverbrauch beträgt 195.20 kwh/(m²*a).
Wesentlicher Energieträger der Heizung ist Gas.
Das Baujahr des Objekts lt. Energieausweis ist 1958.
Die Energieeffizienzklasse ist F.
Alle Angaben basieren auf Informationen des Eigentümers. Für die Richtigkeit und Vollständigkeit übernehmen wir keine Haftung. Änderungen und Zwischenverkauf bleiben vorbehalten.
Die Käuferprovision beträgt 3,57 % inkl. MwSt. und ist verdient und fällig mit Abschluss des notariellen Kaufvertrages.
Haben wir Ihr Interesse geweckt? Gerne senden wir Ihnen weitere Informationen zu oder vereinbaren einen persönlichen Besichtigungstermin.
Lage des Objektes
Die Immobilie befindet sich in zentraler Lage von Viersen-Dülken, einem Stadtteil mit historischem Charme und gewachsener Infrastruktur. Die hübsche Altstadt mit ihrem Marktplatz, kleinen Geschäften, Cafés und Restaurants ist schnell erreichbar und lädt zum Bummeln und Verweilen ein.
Geschäfte des täglichen Bedarfs, Supermärkte, Bäckereien, Ärzte und Apotheken befinden sich in unmittelbarer Nähe. Schulen, Kindergärten sowie zahlreiche Freizeit- und Sportangebote runden das familienfreundliche Umfeld ab.
Auch die Verkehrsanbindung ist sehr gut: Der Bahnhof Dülken bietet Zugverbindungen in Richtung Mönchengladbach und Düsseldorf. Über die Autobahnen A61 und A52 erreichen Sie schnell die umliegenden Städte wie Mönchengladbach, Krefeld und Düsseldorf.
Die Kombination aus zentraler Lage, guter Infrastruktur und dem besonderen Flair der Dülkener Altstadt macht diesen Standort gleichermaßen attraktiv für Eigennutzer und Kapitalanleger.
Geschäfte des täglichen Bedarfs, Supermärkte, Bäckereien, Ärzte und Apotheken befinden sich in unmittelbarer Nähe. Schulen, Kindergärten sowie zahlreiche Freizeit- und Sportangebote runden das familienfreundliche Umfeld ab.
Auch die Verkehrsanbindung ist sehr gut: Der Bahnhof Dülken bietet Zugverbindungen in Richtung Mönchengladbach und Düsseldorf. Über die Autobahnen A61 und A52 erreichen Sie schnell die umliegenden Städte wie Mönchengladbach, Krefeld und Düsseldorf.
Die Kombination aus zentraler Lage, guter Infrastruktur und dem besonderen Flair der Dülkener Altstadt macht diesen Standort gleichermaßen attraktiv für Eigennutzer und Kapitalanleger.
Anbieter kontaktieren
Kontakt
| Telefon | 004921629198881 |
| Fax | 004921629198889 |
| Website | www.schwarz-immo24.de |
