Exklusives Mehrgenerationenobjekt (1EFH und 1MFH) nahe der luxemburgischen Grenze
820.000 €
Kaufpreis
304 m²
Wohnfläche
14
Zimmer
immobilien.de Nr.: 9285673
Objektnummer: 367371
Preise & Kosten
| Kaufpreis | 820.000 € |
| Nebenkosten | keine Angabe |
| Maklerprovision | keine Provision, courtagefrei |
Größe & Zustand
| Wohnfläche | 304 m² |
| Grundstücksfläche | 1.187 m² |
| Zimmer | 14 |
| Baujahr | 1900 |
| Verfügbar ab | sofort |
| Zustand | Gepflegt |
Energie
| Energieausweistyp | Verbrauch |
| Energieverbrauchkennwert | 124 kWh/(m²*a) |
| Heizungsart | Zentralheizung |
| Energieträger/Befeuerung | Öl |
Objektbeschreibung
Exklusives Filetstück mit Moselblick – Saniertes Mehrgenerationenobjekt (1EFH und 1MFH) nahe der luxemburgischen Grenze - OHNE Maklerprovision!
Objekttyp: Wohnensemble mit zwei Häusern
Gesamtwohnfläche: ca. 304 m²
Grundstücksgröße: ca. 1.187 m² (voll erschlossenes Bauland)
Zimmeranzahl: 14
Lage: Hochwassergeschützt mit unverbaubarem Moselblick – Nähe Luxemburg
Auf dem ca. 1.187 m² großen Grundstück stehen zwei modernisierte Wohnhäuser mit insgesamt ca. 304 m² Wohnfläche. Die Aufteilung ist wie folgt:
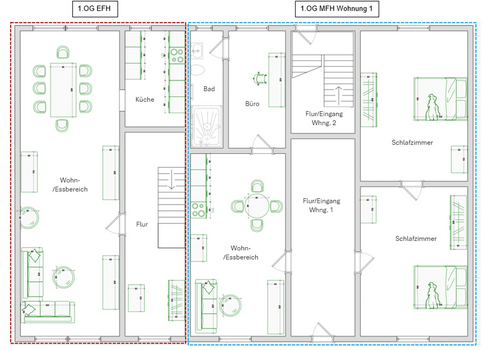
Einfamilienhaus Hausnummer 16a (BJ1970)
ca. 130 m² Wohnfläche,
Das EFH verfügt über einen großzügigen Wohn-/Essbereich, eine Küche, 3 Schlafzimmer, 2 Bäder, 1 Waschkeller und einen großen Gewölbekeller. Die Garage befindet sich im Haus mit direktem Zugang zum Waschkeller.
Derzeit vom Eigentümer bewohnt – bezugsfrei unmittelbar nach Verkauf.
Mehrfamilienhaus Hausnummer 16 (BJ1900)
Erdgeschoss: ca. 84 m², 4ZKB, derzeit vermietet
Obergeschoss: ca. 90 m², 3ZKB, derzeit vermietet
Jede Wohneinheit verfügt über einen separaten Eingang sowie Moselblick.
Langfristig und zuverlässig vermietet an solvente Mieter.
Solide laufende Mieteinnahmen mit deutlichem Entwicklungspotenzial.
Nettokaltmiete EG: 11.400 EUR p.a.
Nettokaltmiete OG: 12.000 EUR p.a.
Zusätzliche Mieteinnahmen durch Außenwerbung im dreistelligen Bereich.
Bei Vermietung des EFH könnten zusätzlich min. 18.000 EUR p.a. erzielt werden.
Zudem könnte im Dachboden des MFH eine ca. 60qm Wohnung realisiert werden. Mögliche zu erwartende Mieteinnahmen: 700 EUR p.a.
Modernisierungen & Ausstattung:
- Umfangreiche Sanierung und Modernisierung aller Einheiten in den letzten 10 Jahren
- Neue Fassadensanierung mit Armierung im Jahr 2024
- Ölzentralheizung komplett erneuert in 2015
- Doppelcarport in Massivbauweise im Hof – Fertigstellung in Kürze
- Wohnräume umfassend saniert und renoviert
Besonderheiten:
- Seltene Gelegenheit in moselnaher Premiumlage
- Großes Potenzial: für Mehrgenerationenwohnen, Kapitalanlage oder Neubauentwicklung
- Unverbaubarer Moselblick
- Bauland mit Entwicklungsspielraum
Objekttyp: Wohnensemble mit zwei Häusern
Gesamtwohnfläche: ca. 304 m²
Grundstücksgröße: ca. 1.187 m² (voll erschlossenes Bauland)
Zimmeranzahl: 14
Lage: Hochwassergeschützt mit unverbaubarem Moselblick – Nähe Luxemburg
Auf dem ca. 1.187 m² großen Grundstück stehen zwei modernisierte Wohnhäuser mit insgesamt ca. 304 m² Wohnfläche. Die Aufteilung ist wie folgt:
Einfamilienhaus Hausnummer 16a (BJ1970)
ca. 130 m² Wohnfläche,
Das EFH verfügt über einen großzügigen Wohn-/Essbereich, eine Küche, 3 Schlafzimmer, 2 Bäder, 1 Waschkeller und einen großen Gewölbekeller. Die Garage befindet sich im Haus mit direktem Zugang zum Waschkeller.
Derzeit vom Eigentümer bewohnt – bezugsfrei unmittelbar nach Verkauf.
Mehrfamilienhaus Hausnummer 16 (BJ1900)
Erdgeschoss: ca. 84 m², 4ZKB, derzeit vermietet
Obergeschoss: ca. 90 m², 3ZKB, derzeit vermietet
Jede Wohneinheit verfügt über einen separaten Eingang sowie Moselblick.
Langfristig und zuverlässig vermietet an solvente Mieter.
Solide laufende Mieteinnahmen mit deutlichem Entwicklungspotenzial.
Nettokaltmiete EG: 11.400 EUR p.a.
Nettokaltmiete OG: 12.000 EUR p.a.
Zusätzliche Mieteinnahmen durch Außenwerbung im dreistelligen Bereich.
Bei Vermietung des EFH könnten zusätzlich min. 18.000 EUR p.a. erzielt werden.
Zudem könnte im Dachboden des MFH eine ca. 60qm Wohnung realisiert werden. Mögliche zu erwartende Mieteinnahmen: 700 EUR p.a.
Modernisierungen & Ausstattung:
- Umfangreiche Sanierung und Modernisierung aller Einheiten in den letzten 10 Jahren
- Neue Fassadensanierung mit Armierung im Jahr 2024
- Ölzentralheizung komplett erneuert in 2015
- Doppelcarport in Massivbauweise im Hof – Fertigstellung in Kürze
- Wohnräume umfassend saniert und renoviert
Besonderheiten:
- Seltene Gelegenheit in moselnaher Premiumlage
- Großes Potenzial: für Mehrgenerationenwohnen, Kapitalanlage oder Neubauentwicklung
- Unverbaubarer Moselblick
- Bauland mit Entwicklungsspielraum
Ausstattung
| Anzahl der Etagen im Haus | 3 |
| Bad | 4 |
| Bad | Dusche, Wanne |
| Boden | Fliesen, Laminat, Kunststoff |
| Balkone | 0 |
| Garten | |
| Terrassen | 1 |
| Garage/Stellplätze | 1 |
| Carport | 1 |
| Keller |
Terrasse, Garten, Keller, Vollbad, Duschbad, Pool · Schwimmbad, Laminat, Fliesen
Sonstige Informationen
Heizungsart: Zentralheizung
Energieträger: Öl
Der Verkauf erfolgt ohne Maklerprovision!
Makleranfragen nicht erwünscht. Nach § 7 UWG sind unaufgeforderte Kontaktaufnahmen durch Makler ohne ausdrückliche Einwilligung des Empfängers verboten!
ohne-makler (OM) ist weder Anbieter noch Vermittler der Immobilie. OM betreibt eine Plattform für Immobilieneigentümer, die unter anderem die gleichzeitige Veröffentlichung einzelner Inserate auf mehreren Immobilienportalen ermöglicht. Die Inhalte dieser Inserate werden ausschließlich von Dritten verantwortet. Für die Richtigkeit, Vollständigkeit oder Rechtmäßigkeit der Angaben übernimmt OM keine Haftung. Hinweise auf mögliche Rechtsverstöße können jederzeit gemeldet werden und werden nach Prüfung umgehend bearbeitet.
Energieträger: Öl
Der Verkauf erfolgt ohne Maklerprovision!
Makleranfragen nicht erwünscht. Nach § 7 UWG sind unaufgeforderte Kontaktaufnahmen durch Makler ohne ausdrückliche Einwilligung des Empfängers verboten!
ohne-makler (OM) ist weder Anbieter noch Vermittler der Immobilie. OM betreibt eine Plattform für Immobilieneigentümer, die unter anderem die gleichzeitige Veröffentlichung einzelner Inserate auf mehreren Immobilienportalen ermöglicht. Die Inhalte dieser Inserate werden ausschließlich von Dritten verantwortet. Für die Richtigkeit, Vollständigkeit oder Rechtmäßigkeit der Angaben übernimmt OM keine Haftung. Hinweise auf mögliche Rechtsverstöße können jederzeit gemeldet werden und werden nach Prüfung umgehend bearbeitet.
Lage des Objektes
Willkommen in der prosperierenden Metropolregion Trier-Saarburg/Luxemburg – einem der dynamischsten und begehrtesten Wohn- und Wirtschaftsstandorte im Grenzgebiet. Die Immobilie liegt in bevorzugter, hochwassergeschützter Lage mit traumhaftem Blick auf die Mosel und bietet eine außergewöhnliche Kombination aus Natur, Infrastruktur und Internationalität.
Diese einzigartige Immobilie befindet sich in Wasserbilligerbrück, nur wenige Minuten von der luxemburgischen Grenze entfernt – ein echtes Filetstück für Eigennutzer, Kapitalanleger oder Projektentwickler.
Die Infrastruktur lässt keine Wünsche offen:
Schulen, Kindergärten und Einkaufsmöglichkeiten befinden sich in unmittelbarer Nähe.
Bushaltestelle mit Anschluss an den ÖPNV Deutschland sowie an den kostenlosen ÖPNV Luxemburg fußläufig erreichbar.
Bahnhof Wasserbillig sowie Trier-Igel in ca. 5 Autominuten erreichbar
Innenstadt Trier in ca. 15 Autominuten erreichbar
Luxemburg Stadt in ca. 30 Autominuten erreichbar
Flughafen Luxemburg in ca. 20 Autominuten erreichbar
Infrastruktur (im Umkreis von 5 km):
Apotheke, Lebensmittel-Discount, Allgemeinmediziner, Kindergarten, Grundschule, Hauptschule, Realschule, Gymnasium, Gesamtschule, Öffentliche Verkehrsmittel
Diese einzigartige Immobilie befindet sich in Wasserbilligerbrück, nur wenige Minuten von der luxemburgischen Grenze entfernt – ein echtes Filetstück für Eigennutzer, Kapitalanleger oder Projektentwickler.
Die Infrastruktur lässt keine Wünsche offen:
Schulen, Kindergärten und Einkaufsmöglichkeiten befinden sich in unmittelbarer Nähe.
Bushaltestelle mit Anschluss an den ÖPNV Deutschland sowie an den kostenlosen ÖPNV Luxemburg fußläufig erreichbar.
Bahnhof Wasserbillig sowie Trier-Igel in ca. 5 Autominuten erreichbar
Innenstadt Trier in ca. 15 Autominuten erreichbar
Luxemburg Stadt in ca. 30 Autominuten erreichbar
Flughafen Luxemburg in ca. 20 Autominuten erreichbar
Infrastruktur (im Umkreis von 5 km):
Apotheke, Lebensmittel-Discount, Allgemeinmediziner, Kindergarten, Grundschule, Hauptschule, Realschule, Gymnasium, Gesamtschule, Öffentliche Verkehrsmittel
