Teilungsversteigerung: unbewohntes gepflegtes Einfamilienhaus mit großem Grundstück in 89290 Buch
1 €
Kaufpreis
153 m²
Wohnfläche
6
Zimmer
immobilien.de Nr.: 9283177
Objektnummer: 317266
Preise & Kosten
| Kaufpreis | 1 € |
| Nebenkosten | keine Angabe |
| Maklerprovision | keine Provision, courtagefrei |
Größe & Zustand
| Wohnfläche | 153 m² |
| Grundstücksfläche | 711 m² |
| Zimmer | 6 |
| Baujahr | 1981 |
| Verfügbar ab | nach Absprache |
| Zustand | Gepflegt |
Energie
| Energieausweistyp | Verbrauch |
| Energieeffizienzklasse | D |
| Energieverbrauchkennwert | 107 kWh/(m²*a) |
| Heizungsart | Zentralheizung |
| Energieträger/Befeuerung | Öl |
Objektbeschreibung
Das Haus ist unbewohnt. Es kann sowohl als Einfamilienhaus als auch Zweifamilienhaus genutzt werden. Im Obergeschoss sind alle Anschlüsse für eine weitere Küche und die Stockwerke können vollständig voneinander getrennt werden.
Ein aktueller Energieausweis mit der Effizienzklasse „D“ für den Endenergieverbrauch liegt vor.
Das Haus wird voraussichtlich im 1. Quartal (oder 2. Quartal) 2026 vom Amtsgericht Neu-Ulm zwangsversteigert. Eine Schätzung des Hauses ist vorhanden, der Startbetrag und das Datum der Versteigerung stehen jedoch noch nicht fest. Aktenzeichen: 1 K 17/24.
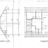
Im Erdgeschoss befinden sich die Küche mit Essbereich (inkl. Fußbodenheizung) und angrenzender Speisekammer, ein Wohnzimmer mit Zugang zur Terrasse und Garten, sowie ein großer Raum, der als Schlafzimmer oder Hobbyraum genutzt werden kann. Ein Bad und ein separates WC sind ebenfalls vorhanden.
Eine Treppe im Eingangsbereich führt ins Obergeschoss, wo sich drei Schlafzimmer (zwei davon mit Balkonzugang), ein großes Bad und ein separates WC befinden. Der Dachboden, der über eine ausziehbare Treppe erreichbar ist und 2018 gedämmt sowie verkleidet wurde, bietet eine gute Isolierung und zusätzlichen Stauraum.
Der Keller ist über eine Treppe am Haupteingang zugänglich. Dort gibt es einen Waschraum (mit Zugang zur Garage), zwei Lagerräume, einen großen Hobbyraum und den Heizungsraum mit einer 2015 erneuerten Öl-Zentralheizung. Im Erdgeschoss ist außerdem ein Anschluss für einen Holzofen vorhanden.
Die Doppelgarage ist von der Straße und über einen überdachten Flur zugänglich. 2018 wurden die Garagentore sowie die Pflastersteine im Hof und rund ums Haus erneuert.
Auf dem Grundstück befinden sich eine Terrasse, eine separate Sonnenterrasse, eine Wasserhandpumpe (auch elektrisch nutzbar), ein Schuppen mit gepflastertem Stellplatz sowie ein Garten mit Blumen, Sträuchern und einem Apfel- und Birnbaum, die bequem bewässert werden können.
Bei Interesse können Sie mir eine private Nachricht schicken.
Ein aktueller Energieausweis mit der Effizienzklasse „D“ für den Endenergieverbrauch liegt vor.
Das Haus wird voraussichtlich im 1. Quartal (oder 2. Quartal) 2026 vom Amtsgericht Neu-Ulm zwangsversteigert. Eine Schätzung des Hauses ist vorhanden, der Startbetrag und das Datum der Versteigerung stehen jedoch noch nicht fest. Aktenzeichen: 1 K 17/24.
Im Erdgeschoss befinden sich die Küche mit Essbereich (inkl. Fußbodenheizung) und angrenzender Speisekammer, ein Wohnzimmer mit Zugang zur Terrasse und Garten, sowie ein großer Raum, der als Schlafzimmer oder Hobbyraum genutzt werden kann. Ein Bad und ein separates WC sind ebenfalls vorhanden.
Eine Treppe im Eingangsbereich führt ins Obergeschoss, wo sich drei Schlafzimmer (zwei davon mit Balkonzugang), ein großes Bad und ein separates WC befinden. Der Dachboden, der über eine ausziehbare Treppe erreichbar ist und 2018 gedämmt sowie verkleidet wurde, bietet eine gute Isolierung und zusätzlichen Stauraum.
Der Keller ist über eine Treppe am Haupteingang zugänglich. Dort gibt es einen Waschraum (mit Zugang zur Garage), zwei Lagerräume, einen großen Hobbyraum und den Heizungsraum mit einer 2015 erneuerten Öl-Zentralheizung. Im Erdgeschoss ist außerdem ein Anschluss für einen Holzofen vorhanden.
Die Doppelgarage ist von der Straße und über einen überdachten Flur zugänglich. 2018 wurden die Garagentore sowie die Pflastersteine im Hof und rund ums Haus erneuert.
Auf dem Grundstück befinden sich eine Terrasse, eine separate Sonnenterrasse, eine Wasserhandpumpe (auch elektrisch nutzbar), ein Schuppen mit gepflastertem Stellplatz sowie ein Garten mit Blumen, Sträuchern und einem Apfel- und Birnbaum, die bequem bewässert werden können.
Bei Interesse können Sie mir eine private Nachricht schicken.
Ausstattung
| Anzahl der Etagen im Haus | 3 |
| Bad | 2 |
| Bad | Dusche, Wanne |
| Boden | Fliesen, Laminat |
| Balkone | 1 |
| Garten | |
| Terrassen | 1 |
| Garage/Stellplätze | 2 |
| Keller |
Balkon, Terrasse, Garten, Keller, Vollbad, Duschbad, Laminat, Fliesen
Sonstige Informationen
Heizungsart: Zentralheizung
Energieträger: Öl
Makleranfragen nicht erwünscht. Nach § 7 UWG sind unaufgeforderte Kontaktaufnahmen durch Makler ohne ausdrückliche Einwilligung des Empfängers verboten!
ohne-makler (OM) ist weder Anbieter noch Vermittler der Immobilie. OM betreibt eine Plattform für Immobilieneigentümer, die unter anderem die gleichzeitige Veröffentlichung einzelner Inserate auf mehreren Immobilienportalen ermöglicht. Die Inhalte dieser Inserate werden ausschließlich von Dritten verantwortet. Für die Richtigkeit, Vollständigkeit oder Rechtmäßigkeit der Angaben übernimmt OM keine Haftung. Hinweise auf mögliche Rechtsverstöße können jederzeit gemeldet werden und werden nach Prüfung umgehend bearbeitet.
Energieträger: Öl
Makleranfragen nicht erwünscht. Nach § 7 UWG sind unaufgeforderte Kontaktaufnahmen durch Makler ohne ausdrückliche Einwilligung des Empfängers verboten!
ohne-makler (OM) ist weder Anbieter noch Vermittler der Immobilie. OM betreibt eine Plattform für Immobilieneigentümer, die unter anderem die gleichzeitige Veröffentlichung einzelner Inserate auf mehreren Immobilienportalen ermöglicht. Die Inhalte dieser Inserate werden ausschließlich von Dritten verantwortet. Für die Richtigkeit, Vollständigkeit oder Rechtmäßigkeit der Angaben übernimmt OM keine Haftung. Hinweise auf mögliche Rechtsverstöße können jederzeit gemeldet werden und werden nach Prüfung umgehend bearbeitet.
Lage des Objektes
Das Haus ist sehr ruhig, aber dennoch zentral in Buch gelegen, mit einem direkten Nachbar und einer Scheune nebenan.
Buch gehört zum Landkreis Neu-Ulm und hat eine eigenständige Verwaltungsgemeinschaft direkt im Ort. Ausweise und sonstige Angelegenheiten können also in unmittelbarer Nähe beantragt und erledigt werden, somit bleiben lange Anfahrtswege erspart.
Der öffentliche Personennahverkehr ist über eine Buslinie angebunden. Buch liegt etwa 25 km nördlich von Ulm und 25 km südlich von Memmingen. Die Autobahn A7 ist nur ca. 5 km entfernt und bequem in etwa 8 Minuten mit dem Auto zu erreichen, ohne dass eine Ortschaft durchquert werden muss.
Im Dorf selbst gibt es eine Tankstelle inkl. Waschanlage, eine Autowerkstatt und einen Wertstoffhof. Auch gut erreichbar ist der Kindergarten, wie auch die Grund- und Mittelschule.
In näherer Umgebung finden sich außerdem eine Bäckerei, ein Arzt, ein Restaurant, zwei Supermärkte, ein Getränkemarkt und zwei Banken. Auch ein Fitnessstudio, ein Physiotherapeut, eine Postannahmestelle, eine Apotheke und diverse Sportvereine sind gut zu Fuß erreichbar. Einige Museen und zahlreiche Erholungs- und Sportmöglichkeiten (u. a. eine Grün- und Parkanlage) gibt es schließlich ebenfalls im größeren Umkreis.
Infrastruktur (im Umkreis von 5 km):
Apotheke, Lebensmittel-Discount, Allgemeinmediziner, Kindergarten, Grundschule, Hauptschule, Realschule, Gymnasium, Gesamtschule, Öffentliche Verkehrsmittel
Buch gehört zum Landkreis Neu-Ulm und hat eine eigenständige Verwaltungsgemeinschaft direkt im Ort. Ausweise und sonstige Angelegenheiten können also in unmittelbarer Nähe beantragt und erledigt werden, somit bleiben lange Anfahrtswege erspart.
Der öffentliche Personennahverkehr ist über eine Buslinie angebunden. Buch liegt etwa 25 km nördlich von Ulm und 25 km südlich von Memmingen. Die Autobahn A7 ist nur ca. 5 km entfernt und bequem in etwa 8 Minuten mit dem Auto zu erreichen, ohne dass eine Ortschaft durchquert werden muss.
Im Dorf selbst gibt es eine Tankstelle inkl. Waschanlage, eine Autowerkstatt und einen Wertstoffhof. Auch gut erreichbar ist der Kindergarten, wie auch die Grund- und Mittelschule.
In näherer Umgebung finden sich außerdem eine Bäckerei, ein Arzt, ein Restaurant, zwei Supermärkte, ein Getränkemarkt und zwei Banken. Auch ein Fitnessstudio, ein Physiotherapeut, eine Postannahmestelle, eine Apotheke und diverse Sportvereine sind gut zu Fuß erreichbar. Einige Museen und zahlreiche Erholungs- und Sportmöglichkeiten (u. a. eine Grün- und Parkanlage) gibt es schließlich ebenfalls im größeren Umkreis.
Infrastruktur (im Umkreis von 5 km):
Apotheke, Lebensmittel-Discount, Allgemeinmediziner, Kindergarten, Grundschule, Hauptschule, Realschule, Gymnasium, Gesamtschule, Öffentliche Verkehrsmittel
