Einfamilienhaus mit Doppelgarage und Einliegerwohnung
430.000 €
Kaufpreis
199,21 m²
Wohnfläche
8
Zimmer
immobilien.de Nr.: 9282171
Objektnummer: 397559
Preise & Kosten
| Kaufpreis | 430.000 € |
| Nebenkosten | keine Angabe |
| Maklerprovision | keine Provision, courtagefrei |
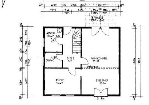
Größe & Zustand
| Wohnfläche | 199,21 m² |
| Grundstücksfläche | 856 m² |
| Zimmer | 8 |
| Baujahr | 1999 |
| Verfügbar ab | sofort |
| Zustand | Teil Vollrenoviert |
Energie
| Energieausweistyp | Bedarfsausweis |
| Energieeffizienzklasse | C |
| Endenergiebedarf | 80 |
| Heizungsart | Zentralheizung |
| Energieträger/Befeuerung | Gas |
Objektbeschreibung
Das Haus liegt sehr ruhig in einer Anwohnerstraße (Tempo 30) im Ortsteil Keldenich der Gemeinde Kall im Kreis Euskirchen. Aufgrund der Hanglage bietet es vom Erdgeschoß aus eine freie unverbaubare Sicht Richtung Köln. Die Zweigeschossige Gartenanlage ermöglicht ihnen von der oberen Ebene freie Sicht Richtung Köln und Umgebung. Die obere Ebene ist über Treppen erreichbar. In der unteren Ebene, vom Erdgeschoß aus erreichbar, befindet sich eine große Terasse. Das mit Holzboden versehene Doppelgaragendach ist ebenfalls als Terasse nutzbar.
Wegen der Hanglage würde ich das Kellergeschoss als Sockelgeschoss bezeichnen.
Im Sockelgeschoss befindet sich eine Eingangshalle (12qm) und ein Arbeitszimmer (15qm).
Weiterhin befindet sich im Sockelgeschoss eine 34qm Einliegerwohnung mit Separatem Eingang, kleiner Terasse und Stellplatz.
Wegen der Hanglage würde ich das Kellergeschoss als Sockelgeschoss bezeichnen.
Im Sockelgeschoss befindet sich eine Eingangshalle (12qm) und ein Arbeitszimmer (15qm).
Weiterhin befindet sich im Sockelgeschoss eine 34qm Einliegerwohnung mit Separatem Eingang, kleiner Terasse und Stellplatz.
Ausstattung
| Anzahl der Etagen im Haus | 3 |
| Küche | Einbauküche |
| Bad | 3 |
| Bad | Dusche, Wanne |
| Boden | Fliesen, Kunststoff |
| Balkone | 0 |
| Garten | |
| Terrassen | 1 |
| Garage/Stellplätze | 1 |
Terrasse, Garten, Vollbad, Duschbad, Einbauküche, Gäste-WC, Fliesen
Bemerkungen:
Bei diesem Haus haben Sie viele Alternativen, Sie sind selbständig und
möchten Ihr Büro unmittelbar im Haus haben, oder Sie haben eine größere
Familie und brauchen eine entsprechend große Anzahl von Zimmern. Neuwertige Einbauküche ist vorhanden. Fast alle Fenster haben Professionelle Fliegengittter. Im Garten befindet sich ein Gemauertes Gartenhaus. Die Einliegerwohnung bietet die möglichkeit zur selbstnutzung oder zum Vermieten. Die Immobilie befindet sich in einem sehr guten Allgemeinzustand, ist zeitgemäß und ohne Modernisierungs- oder Reparaturstau.
Die als Anlagen ins Netz gestellten Fotos geben Ihnen einen guten Einblick
über dieses einladende Haus. Es liegt in einer ruhigen Wohnstraße, in nur
wenigen Fahrminuten sind Sie entweder im Gewerbe-/ Einkaufgebiet oder im
Zentrum von Kall. Auf Wunsch könnte die Immobilie sofort übernommen
werden. Sollten Ihnen die Impressionen des Hauses zusagen, vereinbaren
Sie bitte einen Besichtigungstermin mit uns, damit Sie sich selber einen
entsprechenden Eindruck von der Immobilie machen können.
Bemerkungen:
Bei diesem Haus haben Sie viele Alternativen, Sie sind selbständig und
möchten Ihr Büro unmittelbar im Haus haben, oder Sie haben eine größere
Familie und brauchen eine entsprechend große Anzahl von Zimmern. Neuwertige Einbauküche ist vorhanden. Fast alle Fenster haben Professionelle Fliegengittter. Im Garten befindet sich ein Gemauertes Gartenhaus. Die Einliegerwohnung bietet die möglichkeit zur selbstnutzung oder zum Vermieten. Die Immobilie befindet sich in einem sehr guten Allgemeinzustand, ist zeitgemäß und ohne Modernisierungs- oder Reparaturstau.
Die als Anlagen ins Netz gestellten Fotos geben Ihnen einen guten Einblick
über dieses einladende Haus. Es liegt in einer ruhigen Wohnstraße, in nur
wenigen Fahrminuten sind Sie entweder im Gewerbe-/ Einkaufgebiet oder im
Zentrum von Kall. Auf Wunsch könnte die Immobilie sofort übernommen
werden. Sollten Ihnen die Impressionen des Hauses zusagen, vereinbaren
Sie bitte einen Besichtigungstermin mit uns, damit Sie sich selber einen
entsprechenden Eindruck von der Immobilie machen können.
Sonstige Informationen
Heizungsart: Zentralheizung
Energieträger: Gas
Bitte nur ernst gemeinte Anfragen stellen.
Makleranfragen nicht erwünscht. Nach § 7 UWG sind unaufgeforderte Kontaktaufnahmen durch Makler ohne ausdrückliche Einwilligung des Empfängers verboten!
ohne-makler (OM) ist weder Anbieter noch Vermittler der Immobilie. OM betreibt eine Plattform für Immobilieneigentümer, die unter anderem die gleichzeitige Veröffentlichung einzelner Inserate auf mehreren Immobilienportalen ermöglicht. Die Inhalte dieser Inserate werden ausschließlich von Dritten verantwortet. Für die Richtigkeit, Vollständigkeit oder Rechtmäßigkeit der Angaben übernimmt OM keine Haftung. Hinweise auf mögliche Rechtsverstöße können jederzeit gemeldet werden und werden nach Prüfung umgehend bearbeitet.
Energieträger: Gas
Bitte nur ernst gemeinte Anfragen stellen.
Makleranfragen nicht erwünscht. Nach § 7 UWG sind unaufgeforderte Kontaktaufnahmen durch Makler ohne ausdrückliche Einwilligung des Empfängers verboten!
ohne-makler (OM) ist weder Anbieter noch Vermittler der Immobilie. OM betreibt eine Plattform für Immobilieneigentümer, die unter anderem die gleichzeitige Veröffentlichung einzelner Inserate auf mehreren Immobilienportalen ermöglicht. Die Inhalte dieser Inserate werden ausschließlich von Dritten verantwortet. Für die Richtigkeit, Vollständigkeit oder Rechtmäßigkeit der Angaben übernimmt OM keine Haftung. Hinweise auf mögliche Rechtsverstöße können jederzeit gemeldet werden und werden nach Prüfung umgehend bearbeitet.
Lage des Objektes
Keldenich ist ein Teilort der Gemeinde Kall, die mit den dazugehörigen
Nebenorten ca. 11.000 Einwohnern hat. Aufgrund der zentralen Lage im
Kreis Euskirchen ist Kall eine seit Jahrzehnten aufwärtsstrebende
Kommune. So befinden sich in Kall u. a. neben dem Sitz der
Gemeindeverwaltung (Rathaus), ein Berufscollege, das Jobcenter und die
Verwaltung der Kreis-Energieversorgung, zwei weitere bedeutende
Unternehmen nicht nur für die Region sind Möbel Brucker und vorallen
Dingen PapStar. Der Ort Kall hat eine hervorragende Infrastruktur mit sehr
guten Einkaufsmöglichkeiten, Ärzten, Post, Banken und gemütlichen
Restaurants/ Kneipen uvm.. Für die Kinder bietet Kall: Kindergärten, Grund-,
Haupt- und die Behindertenschule. Die Gymnasien sind entweder direkt in
Kall, in Kall-Steinfeld oder 2 weitere in Schleiden. Für die Freizeit-aktivitäten
bietet Kall fast alles: Sportaktivpark mit einem großem
Angebot an Sport-möglichkeiten, Tennis mit Innen- und Außenplätzen etc..
Erwähnenswert direkt für Keldenich ist der dort nur wenige Minuten entfernte
Kindergarten, ein aktives Vereinsleben für jeden Geschmack etwas. Die
herrliche Landschaft mit Feld, Flur und Wald bietet für viele schöne, kurze
und auch lange Wanderungen vielfältige Möglichkeiten. Die im Nationalpark
Eifel und im Naturpark Nordeifel gelegene Gemeinde Kall mit ihren
malerischen Dörfern und waldreichen Seitentälern bietet vielfältige
Möglichkeiten zur Ruhe und Entspannung.
Zur Verkehrsanbindung:
Besonders vorteilhaft ist der Bundesbahnanschluss an der Hauptlinie Köln-
Trier, wo täglich viele Züge nach Köln oder Trier fahrend, halten. Für Leute,
die gerne mit dem Bus reisen, gibt es ein gutes Angebot an
Busverbindungen, Richtung Schleidener Tal oder nach Euskirchen. Für die
vielen Schüler, der in Kall ansässigen oder auch auswärtigen Schulen,
werden zusätzlich zahlreiche Busse eingesetzt. Günstige Anbindung an die
Autobahn A 1 bestehen entweder in EU - Wisskirchen oder in Zingsheim.
Kall ist ein bevorzugter Wohn- und Arbeitsort in unserer Region. Die
Entfernungen zu nachstehenden Städten betragen ca: Köln 65 km, Aachen
55 km.
Infrastruktur (im Umkreis von 5 km):
Apotheke, Lebensmittel-Discount, Allgemeinmediziner, Kindergarten, Grundschule, Hauptschule, Gymnasium, Öffentliche Verkehrsmittel
Nebenorten ca. 11.000 Einwohnern hat. Aufgrund der zentralen Lage im
Kreis Euskirchen ist Kall eine seit Jahrzehnten aufwärtsstrebende
Kommune. So befinden sich in Kall u. a. neben dem Sitz der
Gemeindeverwaltung (Rathaus), ein Berufscollege, das Jobcenter und die
Verwaltung der Kreis-Energieversorgung, zwei weitere bedeutende
Unternehmen nicht nur für die Region sind Möbel Brucker und vorallen
Dingen PapStar. Der Ort Kall hat eine hervorragende Infrastruktur mit sehr
guten Einkaufsmöglichkeiten, Ärzten, Post, Banken und gemütlichen
Restaurants/ Kneipen uvm.. Für die Kinder bietet Kall: Kindergärten, Grund-,
Haupt- und die Behindertenschule. Die Gymnasien sind entweder direkt in
Kall, in Kall-Steinfeld oder 2 weitere in Schleiden. Für die Freizeit-aktivitäten
bietet Kall fast alles: Sportaktivpark mit einem großem
Angebot an Sport-möglichkeiten, Tennis mit Innen- und Außenplätzen etc..
Erwähnenswert direkt für Keldenich ist der dort nur wenige Minuten entfernte
Kindergarten, ein aktives Vereinsleben für jeden Geschmack etwas. Die
herrliche Landschaft mit Feld, Flur und Wald bietet für viele schöne, kurze
und auch lange Wanderungen vielfältige Möglichkeiten. Die im Nationalpark
Eifel und im Naturpark Nordeifel gelegene Gemeinde Kall mit ihren
malerischen Dörfern und waldreichen Seitentälern bietet vielfältige
Möglichkeiten zur Ruhe und Entspannung.
Zur Verkehrsanbindung:
Besonders vorteilhaft ist der Bundesbahnanschluss an der Hauptlinie Köln-
Trier, wo täglich viele Züge nach Köln oder Trier fahrend, halten. Für Leute,
die gerne mit dem Bus reisen, gibt es ein gutes Angebot an
Busverbindungen, Richtung Schleidener Tal oder nach Euskirchen. Für die
vielen Schüler, der in Kall ansässigen oder auch auswärtigen Schulen,
werden zusätzlich zahlreiche Busse eingesetzt. Günstige Anbindung an die
Autobahn A 1 bestehen entweder in EU - Wisskirchen oder in Zingsheim.
Kall ist ein bevorzugter Wohn- und Arbeitsort in unserer Region. Die
Entfernungen zu nachstehenden Städten betragen ca: Köln 65 km, Aachen
55 km.
Infrastruktur (im Umkreis von 5 km):
Apotheke, Lebensmittel-Discount, Allgemeinmediziner, Kindergarten, Grundschule, Hauptschule, Gymnasium, Öffentliche Verkehrsmittel
