Barrierefreier Bungalow in Vorsfelde
260.000 €
Kaufpreis
96 m²
Wohnfläche
3
Zimmer
immobilien.de Nr.: 9279234
Objektnummer: 340126
Preise & Kosten
| Kaufpreis | 260.000 € |
| Nebenkosten | keine Angabe |
| Maklerprovision | keine Provision, courtagefrei |
Größe & Zustand
| Wohnfläche | 96 m² |
| Grundstücksfläche | 427 m² |
| Zimmer | 3 |
| Baujahr | 1963 |
| Verfügbar ab | sofort |
| Zustand | Modernisiert |
Energie
| Energieausweistyp | Bedarfsausweis |
| Endenergiebedarf | 173 |
| Heizungsart | Zentralheizung |
| Energieträger/Befeuerung | Öl |
Objektbeschreibung
Barrierefreier Bungalow in Vorsfelde
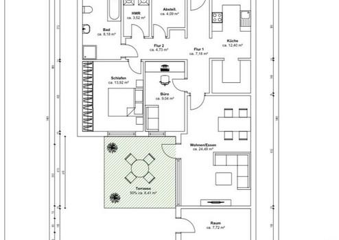
Dieser ca. 96 m2 große Reihenendbungalow, Baujahr 1963, befindet sich in einem ruhigen und doch zentralen Wohngebiet in begehrter Lage von Vorsfelde auf einem 427 qm großem Eigentumsgrundstück. Wenn Sie über den überdachten Eingangsbereich des Hauses den Flur betreten, liegt vor ihnen das helle Wohnzimmer mit Essbereich und Zugang zur überdachten Terrasse, welches zu schönen Stunden mit Familie und Freunden einlädt. Im Wohnzimmer ist hochwertiges Parkett der Firma Kährs verlegt. An die Küche grenzt ein Abstellraum an, welcher mit einer zusätzlichen Küchenzeile ausgestattet ist. Ein weiterer Abstellraum, sowie eine Waschküche in der Waschmaschine und Trockner platz finden, befinden sich ebenso im Haus. Das geräumige Badezimmer ist mit Dusche und Badewanne ausgestattet und lädt zum entspannen ein. Zusätzlich bietet der Bungalow zwei weitere Wohnräume.
Über die, an Haus angrenzende Terrasse, gelangen Sie in einen weiteren massiven Abstellraum und in die Garage, welche genügend Platz für eine Werkstattecke bietet. Durch den Winkel des Hauses können Sie ungestört auf der Terrasse sitzen, dank der, im Frühjahr 2022 erneuerten Überdachung auch bei schlechterem Wetter. Eine weitere Terrasse liegt am anderen Ende des Gartens, wo auch ein Gartenhaus für ihre Gartengeräte bereitsteht. Der im Jahr 2020 erneuerte Sichtschutzzaun verfügt über eine Sitzbank mit integrierten Bepflanzungsmöglichkeiten. Beide Terrassen wurden im Jahr 2019 mit pflegeleichtem Altstadtpflaster neu angelegt. Da es sich um ein Reihenendhaus handelt, können sie sich über ein weiteres Stück Garten an der Westseite des Hauses freuen. Hier finden Sie einen Apfel-, sowie Kirschbaum und haben die Möglichkeit im Sommer ihre Wäsche zu trocknen. Wenn Sie Lust auf einen kleinen Naschgarten haben, können Sie sich über ein Hochbeet und einen Tomatenunterstand in diesem Teil des Gartens freuen. Außerdem ist hier bereits eine Bewässerung verlegt, welche über den eigenen Brunnen versorgt wird. Wenn Sie die Bewässerung erweitern wollen, sind hierfür schon alle Vorkehrungen getroffen.
Im Jahr 2017 wurden die Decken und Wände der Wohnräume, Küche und Flur renoviert, Küche und Flur neu verfließt und Parkett im Wohnzimmer verlegt. Die Ölheizung wurde im Jahr 2017 erneuert. Die Fenster wurden im Jahr 2012 durch 3-fach verglaste Fenster erneuert und sind mit einer ABUS Fenstersicherung ausgestattet. Das Badezimmer wurde im Jahr 2007 renoviert.
Der Energieausweis liegt zum Besichtigungstermin vor.
Bushaltestelle 250m
Einkaufsmöglichkeiten 550m
Dieser ca. 96 m2 große Reihenendbungalow, Baujahr 1963, befindet sich in einem ruhigen und doch zentralen Wohngebiet in begehrter Lage von Vorsfelde auf einem 427 qm großem Eigentumsgrundstück. Wenn Sie über den überdachten Eingangsbereich des Hauses den Flur betreten, liegt vor ihnen das helle Wohnzimmer mit Essbereich und Zugang zur überdachten Terrasse, welches zu schönen Stunden mit Familie und Freunden einlädt. Im Wohnzimmer ist hochwertiges Parkett der Firma Kährs verlegt. An die Küche grenzt ein Abstellraum an, welcher mit einer zusätzlichen Küchenzeile ausgestattet ist. Ein weiterer Abstellraum, sowie eine Waschküche in der Waschmaschine und Trockner platz finden, befinden sich ebenso im Haus. Das geräumige Badezimmer ist mit Dusche und Badewanne ausgestattet und lädt zum entspannen ein. Zusätzlich bietet der Bungalow zwei weitere Wohnräume.
Über die, an Haus angrenzende Terrasse, gelangen Sie in einen weiteren massiven Abstellraum und in die Garage, welche genügend Platz für eine Werkstattecke bietet. Durch den Winkel des Hauses können Sie ungestört auf der Terrasse sitzen, dank der, im Frühjahr 2022 erneuerten Überdachung auch bei schlechterem Wetter. Eine weitere Terrasse liegt am anderen Ende des Gartens, wo auch ein Gartenhaus für ihre Gartengeräte bereitsteht. Der im Jahr 2020 erneuerte Sichtschutzzaun verfügt über eine Sitzbank mit integrierten Bepflanzungsmöglichkeiten. Beide Terrassen wurden im Jahr 2019 mit pflegeleichtem Altstadtpflaster neu angelegt. Da es sich um ein Reihenendhaus handelt, können sie sich über ein weiteres Stück Garten an der Westseite des Hauses freuen. Hier finden Sie einen Apfel-, sowie Kirschbaum und haben die Möglichkeit im Sommer ihre Wäsche zu trocknen. Wenn Sie Lust auf einen kleinen Naschgarten haben, können Sie sich über ein Hochbeet und einen Tomatenunterstand in diesem Teil des Gartens freuen. Außerdem ist hier bereits eine Bewässerung verlegt, welche über den eigenen Brunnen versorgt wird. Wenn Sie die Bewässerung erweitern wollen, sind hierfür schon alle Vorkehrungen getroffen.
Im Jahr 2017 wurden die Decken und Wände der Wohnräume, Küche und Flur renoviert, Küche und Flur neu verfließt und Parkett im Wohnzimmer verlegt. Die Ölheizung wurde im Jahr 2017 erneuert. Die Fenster wurden im Jahr 2012 durch 3-fach verglaste Fenster erneuert und sind mit einer ABUS Fenstersicherung ausgestattet. Das Badezimmer wurde im Jahr 2007 renoviert.
Der Energieausweis liegt zum Besichtigungstermin vor.
Bushaltestelle 250m
Einkaufsmöglichkeiten 550m
Ausstattung
| Anzahl der Etagen im Haus | 1 |
| Küche | Einbauküche |
| Bad | 1 |
| Bad | Wanne |
| Boden | Parkett, Laminat |
| Balkone | 0 |
| Garten | |
| Terrassen | 1 |
| Garage/Stellplätze | 1 |
Terrasse, Garten, Vollbad, Einbauküche, Parkett, Laminat
Sonstige Informationen
Heizungsart: Zentralheizung
Energieträger: Öl
Makleranfragen nicht erwünscht. Nach § 7 UWG sind unaufgeforderte Kontaktaufnahmen durch Makler ohne ausdrückliche Einwilligung des Empfängers verboten!
ohne-makler (OM) ist weder Anbieter noch Vermittler der Immobilie. OM betreibt eine Plattform für Immobilieneigentümer, die unter anderem die gleichzeitige Veröffentlichung einzelner Inserate auf mehreren Immobilienportalen ermöglicht. Die Inhalte dieser Inserate werden ausschließlich von Dritten verantwortet. Für die Richtigkeit, Vollständigkeit oder Rechtmäßigkeit der Angaben übernimmt OM keine Haftung. Hinweise auf mögliche Rechtsverstöße können jederzeit gemeldet werden und werden nach Prüfung umgehend bearbeitet.
Energieträger: Öl
Makleranfragen nicht erwünscht. Nach § 7 UWG sind unaufgeforderte Kontaktaufnahmen durch Makler ohne ausdrückliche Einwilligung des Empfängers verboten!
ohne-makler (OM) ist weder Anbieter noch Vermittler der Immobilie. OM betreibt eine Plattform für Immobilieneigentümer, die unter anderem die gleichzeitige Veröffentlichung einzelner Inserate auf mehreren Immobilienportalen ermöglicht. Die Inhalte dieser Inserate werden ausschließlich von Dritten verantwortet. Für die Richtigkeit, Vollständigkeit oder Rechtmäßigkeit der Angaben übernimmt OM keine Haftung. Hinweise auf mögliche Rechtsverstöße können jederzeit gemeldet werden und werden nach Prüfung umgehend bearbeitet.
