PROVISIONSFREI - Neuwertige 4-Zi.-Wohnung in ruhiger Lage
420.000 €
Kaufpreis
120 m²
Wohnfläche
4
Zimmer
immobilien.de Nr.: 9273137
Objektnummer: 396071
Dateien
Preise & Kosten
| Kaufpreis | 420.000 € |
| Nebenkosten | keine Angabe |
| Hausgeld | 310 € |
| Maklerprovision | keine Provision, courtagefrei |
| Stellplatz Freiplatz Kaufpreis | 7.500 € |
Größe & Zustand
| Wohnfläche | 120 m² |
| Zimmer | 4 |
| Baujahr | 1954 |
| Verfügbar ab | sofort |
| Zustand | Teil Vollsaniert |
Energie
| Energieausweistyp | Bedarfsausweis |
| Energieeffizienzklasse | D |
| Endenergiebedarf | 100 |
| Heizungsart | Zentralheizung |
| Energieträger/Befeuerung | Fernwärme |
Objektbeschreibung
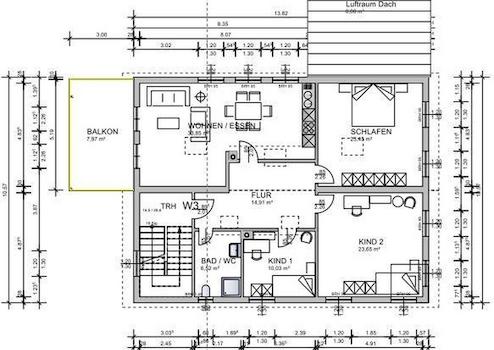
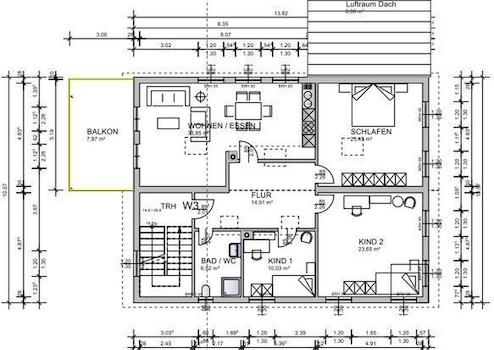
Die kernsanierte 4-Zimmer-Wohnung, im 1. OG eines Mehrfamilienhauses, befindet sich in einer ruhigen und dennoch zentralen Lage von Weißenhorn. Die charmante Wohnung ist ideal für Paare oder junge Familien. Sie genießen die Annehmlichkeiten einer urbanen Umgebung und die Ruhe einer Wohnstraße (30er-Zone).
Beim Betreten der Wohnung fällt sofort der weitläufige Flur ins Auge, von dort geht es rechts in das moderne Bad und in eines der Kinderzimmer, welches auch gut als Büro benutzt werden kann.
Links geht es in das Herzstück der Wohnung, in den grossen Wohn-Koch-Essbereich. Dieser hat einen Zugang zu dem grossen Südbalkon.
Geradeaus über den Flur, gelangt man in die zwei grossen Schlafzimmer bzw Kinderzimmer.
Objektzustand: Erstbezug nach Sanierung
Beim Betreten der Wohnung fällt sofort der weitläufige Flur ins Auge, von dort geht es rechts in das moderne Bad und in eines der Kinderzimmer, welches auch gut als Büro benutzt werden kann.
Links geht es in das Herzstück der Wohnung, in den grossen Wohn-Koch-Essbereich. Dieser hat einen Zugang zu dem grossen Südbalkon.
Geradeaus über den Flur, gelangt man in die zwei grossen Schlafzimmer bzw Kinderzimmer.
Objektzustand: Erstbezug nach Sanierung
Ausstattung
| Anzahl der Etagen im Haus | 1 |
| Inserat befindet sich im Stockwerk | 1 |
| Bad | 1 |
| Bad | Dusche |
| Boden | Fliesen, Parkett |
| Balkone | 1 |
| Garten | |
| Terrassen | 0 |
| Barrierefrei | |
| Keller |
Balkon, Garten, Keller, Duschbad, Barrierefrei, Parkett, Fliesen
Bemerkungen:
Größe: 120,36m² 1.OG
- Zustand: Komplett kernsaniert
- Ausstattung: Modern, geschmackvoll, hochwertig
- Heizung: Fernwärme von 2024
- Elektrische Fussbodenheizung im Bad
- Grosse überdachte Süd-Balkone für entspante Stunden im Freien
- Hochwertige Bodenbeläge
- Fußbodenheizung für angenehme Wärme im Badezimmer
- Hohe Zimmerdecken
- Durchdachtes Lichterkonzept
- überdurchschnittliche grosse Kellerabteile
- Fahrradkeller
- 2 Stellplätze gehören zur Wohnung (je 7.500 Euro)
Bemerkungen:
Größe: 120,36m² 1.OG
- Zustand: Komplett kernsaniert
- Ausstattung: Modern, geschmackvoll, hochwertig
- Heizung: Fernwärme von 2024
- Elektrische Fussbodenheizung im Bad
- Grosse überdachte Süd-Balkone für entspante Stunden im Freien
- Hochwertige Bodenbeläge
- Fußbodenheizung für angenehme Wärme im Badezimmer
- Hohe Zimmerdecken
- Durchdachtes Lichterkonzept
- überdurchschnittliche grosse Kellerabteile
- Fahrradkeller
- 2 Stellplätze gehören zur Wohnung (je 7.500 Euro)
Sonstige Informationen
Heizungsart: Zentralheizung
Energieträger: Fernwärme
**Renovierungsdetails:**
- Neues Bad mit barrierefreier Dusche im modernem Design
- Neue Wasserleitungen und Heizung (Fernwärme) für höchsten Komfort
- Neue Fenster für eine optimale Isolierung und Energieeffizienz
- Die Fassade wurde neu gestrichen
- Elektrische Rollläden
- Neu gedämmtes Dach
- Neue Elektrik
- Hochwertiger Parkettboden
- 5 Jahre Gewährleistung auf die Gewerke Wasser/Heizung und Elektro
Preis:
420.000 Euro – 1.OG Wohnung + 2x 7.500 Euro pro Stellplatz
Für weitere Informationen oder um einen Besichtigungstermin zu vereinbaren, kontaktieren Sie mich bitte unter der 0176 32 71 04 41.
Makleranfragen nicht erwünscht. Nach § 7 UWG sind unaufgeforderte Kontaktaufnahmen durch Makler ohne ausdrückliche Einwilligung des Empfängers verboten!
ohne-makler (OM) ist weder Anbieter noch Vermittler der Immobilie. OM betreibt eine Plattform für Immobilieneigentümer, die unter anderem die gleichzeitige Veröffentlichung einzelner Inserate auf mehreren Immobilienportalen ermöglicht. Die Inhalte dieser Inserate werden ausschließlich von Dritten verantwortet. Für die Richtigkeit, Vollständigkeit oder Rechtmäßigkeit der Angaben übernimmt OM keine Haftung. Hinweise auf mögliche Rechtsverstöße können jederzeit gemeldet werden und werden nach Prüfung umgehend bearbeitet.
Energieträger: Fernwärme
**Renovierungsdetails:**
- Neues Bad mit barrierefreier Dusche im modernem Design
- Neue Wasserleitungen und Heizung (Fernwärme) für höchsten Komfort
- Neue Fenster für eine optimale Isolierung und Energieeffizienz
- Die Fassade wurde neu gestrichen
- Elektrische Rollläden
- Neu gedämmtes Dach
- Neue Elektrik
- Hochwertiger Parkettboden
- 5 Jahre Gewährleistung auf die Gewerke Wasser/Heizung und Elektro
Preis:
420.000 Euro – 1.OG Wohnung + 2x 7.500 Euro pro Stellplatz
Für weitere Informationen oder um einen Besichtigungstermin zu vereinbaren, kontaktieren Sie mich bitte unter der 0176 32 71 04 41.
Makleranfragen nicht erwünscht. Nach § 7 UWG sind unaufgeforderte Kontaktaufnahmen durch Makler ohne ausdrückliche Einwilligung des Empfängers verboten!
ohne-makler (OM) ist weder Anbieter noch Vermittler der Immobilie. OM betreibt eine Plattform für Immobilieneigentümer, die unter anderem die gleichzeitige Veröffentlichung einzelner Inserate auf mehreren Immobilienportalen ermöglicht. Die Inhalte dieser Inserate werden ausschließlich von Dritten verantwortet. Für die Richtigkeit, Vollständigkeit oder Rechtmäßigkeit der Angaben übernimmt OM keine Haftung. Hinweise auf mögliche Rechtsverstöße können jederzeit gemeldet werden und werden nach Prüfung umgehend bearbeitet.
Lage des Objektes
Die ehemalige Fuggerstadt Weißenhorn liegt nur ca. 22km südöstlich von Ulm und ca. 35km von Memmingen entfernt.
Der nächstgelegenste Flughafen ist Memmingen, aber auch die Flughäfen Stuttgart und München sind über das nahegelegene Autobahnnetz der A7 und A8 schnell erreichbar.
Durch die Bahnstrecke Ulm – Senden - Weißenhorn ist das Zentrum von Ulm / Neu-Ulm mit dem ÖPNV in knapp 25 Minuten erreichbar.
Das städtische Bussystem stellt darüber hinaus den innerstädtischen Nahverkehr mit Anbindung an alle Orts- und Stadtteile sicher.
Auch für Fahrradfahrer herrscht hier durch die hervorragend ausgebauten Radwege ein perfektes Angebot im Hinblick auf Mobilität und Ökologie.
Weißenhorn verfügt über eine weitgefächerte Infrastruktur, die aus Einkaufsmöglichkeiten, Gastronomie, Bahnhof, kulturellen Einrichtungen, Kindergärten und allen Schularten besteht.
Auch die medizinische Versorgung ist durch die Stiftungsklinik und Arztpraxen überdurchschnittlich.
Die Wohnung liegt in einer beliebten Wohngegend, sämtliche Dinge des täglichen Lebens und noch viel mehr können Sie von Ihrer neuen Wohnung aus gemütlich zu Fuß erledigen. Hier wohnen Sie mitten in der Stadt, dennoch ruhig.
Infrastruktur (im Umkreis von 5 km):
Apotheke, Lebensmittel-Discount, Allgemeinmediziner, Kindergarten, Grundschule, Hauptschule, Realschule, Gymnasium, Gesamtschule, Öffentliche Verkehrsmittel
Der nächstgelegenste Flughafen ist Memmingen, aber auch die Flughäfen Stuttgart und München sind über das nahegelegene Autobahnnetz der A7 und A8 schnell erreichbar.
Durch die Bahnstrecke Ulm – Senden - Weißenhorn ist das Zentrum von Ulm / Neu-Ulm mit dem ÖPNV in knapp 25 Minuten erreichbar.
Das städtische Bussystem stellt darüber hinaus den innerstädtischen Nahverkehr mit Anbindung an alle Orts- und Stadtteile sicher.
Auch für Fahrradfahrer herrscht hier durch die hervorragend ausgebauten Radwege ein perfektes Angebot im Hinblick auf Mobilität und Ökologie.
Weißenhorn verfügt über eine weitgefächerte Infrastruktur, die aus Einkaufsmöglichkeiten, Gastronomie, Bahnhof, kulturellen Einrichtungen, Kindergärten und allen Schularten besteht.
Auch die medizinische Versorgung ist durch die Stiftungsklinik und Arztpraxen überdurchschnittlich.
Die Wohnung liegt in einer beliebten Wohngegend, sämtliche Dinge des täglichen Lebens und noch viel mehr können Sie von Ihrer neuen Wohnung aus gemütlich zu Fuß erledigen. Hier wohnen Sie mitten in der Stadt, dennoch ruhig.
Infrastruktur (im Umkreis von 5 km):
Apotheke, Lebensmittel-Discount, Allgemeinmediziner, Kindergarten, Grundschule, Hauptschule, Realschule, Gymnasium, Gesamtschule, Öffentliche Verkehrsmittel
