Familienfreundliches Reihenhaus im Anemonenweg
219.000 €
Kaufpreis
122 m²
Wohnfläche
4
Zimmer
immobilien.de Nr.: 9270766
Objektnummer: 395382
Preise & Kosten
| Kaufpreis | 219.000 € |
| Nebenkosten | keine Angabe |
| Maklerprovision | keine Provision, courtagefrei |
Größe & Zustand
| Wohnfläche | 122 m² |
| Grundstücksfläche | 202 m² |
| Zimmer | 4 |
| Verfügbar ab | sofort |
Energie
| Heizungsart | Zentralheizung |
| Energieträger/Befeuerung | Gas |
Objektbeschreibung
Das familienfreundliche Reihenhaus befindet sich am Eingang des Anemonenweges in idyllischer, grüner Lage.
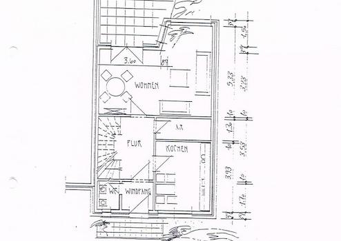
Es verfügt über 115 Quadratmeter verteilt auf 4 Zimmer. Im Erdgeschoss befindet sich neben Eingangsflur, Treppenflur, HWR, Küche und großzügigem Wohnzimmer auch ein Gäste-WC. Im Obergeschoss werden über einen Treppenflur 3 Zimmer mit ähnlicher Größe und das Badezimmer mit Dusche, Badewanne und Fenster erreicht.
Vor dem Haus gibt es einen PKW-Stellplatz und einen kleinen Vorgarten. Ein zweiter Stellplatz wäre hier denkbar. Direkt gegenüber, auf der anderen Straßenseite, befindet sich eine Reihe öffentlicher Stellplätze für Besucher. Aus der Küche blickt man auf eine kleine öffentliche Grünanlage und in Sichtweite befindet sich ein Spielplatz.
Hinter dem Haus liegt ein kleiner Garten sowie eine Terrasse, die vom Wohnzimmer aus erreicht wird. Das Grundstück hat insgesamt eine Fläche von ca. 202 Quadratmetern.
Das Haus wurde Ende 1999 fertiggestellt und das Heizgerät ist aus dem Jahre 2014. Die Außenwände sind gedämmt und die Fenster zweifach verglast. Das Haus ist nicht vermietet und kann sofort übernommen werden. Es fallen keine Maklerkosten an.
Mit ein paar geschickten Renovierungsarbeiten können Sie hier ein schönes neues Zuhause finden.
Es verfügt über 115 Quadratmeter verteilt auf 4 Zimmer. Im Erdgeschoss befindet sich neben Eingangsflur, Treppenflur, HWR, Küche und großzügigem Wohnzimmer auch ein Gäste-WC. Im Obergeschoss werden über einen Treppenflur 3 Zimmer mit ähnlicher Größe und das Badezimmer mit Dusche, Badewanne und Fenster erreicht.
Vor dem Haus gibt es einen PKW-Stellplatz und einen kleinen Vorgarten. Ein zweiter Stellplatz wäre hier denkbar. Direkt gegenüber, auf der anderen Straßenseite, befindet sich eine Reihe öffentlicher Stellplätze für Besucher. Aus der Küche blickt man auf eine kleine öffentliche Grünanlage und in Sichtweite befindet sich ein Spielplatz.
Hinter dem Haus liegt ein kleiner Garten sowie eine Terrasse, die vom Wohnzimmer aus erreicht wird. Das Grundstück hat insgesamt eine Fläche von ca. 202 Quadratmetern.
Das Haus wurde Ende 1999 fertiggestellt und das Heizgerät ist aus dem Jahre 2014. Die Außenwände sind gedämmt und die Fenster zweifach verglast. Das Haus ist nicht vermietet und kann sofort übernommen werden. Es fallen keine Maklerkosten an.
Mit ein paar geschickten Renovierungsarbeiten können Sie hier ein schönes neues Zuhause finden.
Ausstattung
| Anzahl der Etagen im Haus | 2 |
| Boden | Fliesen, Teppich, Laminat |
| Balkone | 0 |
| Garten | |
| Terrassen | 1 |
Terrasse, Garten, Gäste-WC, Laminat, Teppichboden, Fliesen
Sonstige Informationen
Heizungsart: Zentralheizung
Energieträger: Gas
Energieausweis nicht vorhanden
Makleranfragen nicht erwünscht. Nach § 7 UWG sind unaufgeforderte Kontaktaufnahmen durch Makler ohne ausdrückliche Einwilligung des Empfängers verboten!
ohne-makler (OM) ist weder Anbieter noch Vermittler der Immobilie. OM betreibt eine Plattform für Immobilieneigentümer, die unter anderem die gleichzeitige Veröffentlichung einzelner Inserate auf mehreren Immobilienportalen ermöglicht. Die Inhalte dieser Inserate werden ausschließlich von Dritten verantwortet. Für die Richtigkeit, Vollständigkeit oder Rechtmäßigkeit der Angaben übernimmt OM keine Haftung. Hinweise auf mögliche Rechtsverstöße können jederzeit gemeldet werden und werden nach Prüfung umgehend bearbeitet.
Energieträger: Gas
Energieausweis nicht vorhanden
Makleranfragen nicht erwünscht. Nach § 7 UWG sind unaufgeforderte Kontaktaufnahmen durch Makler ohne ausdrückliche Einwilligung des Empfängers verboten!
ohne-makler (OM) ist weder Anbieter noch Vermittler der Immobilie. OM betreibt eine Plattform für Immobilieneigentümer, die unter anderem die gleichzeitige Veröffentlichung einzelner Inserate auf mehreren Immobilienportalen ermöglicht. Die Inhalte dieser Inserate werden ausschließlich von Dritten verantwortet. Für die Richtigkeit, Vollständigkeit oder Rechtmäßigkeit der Angaben übernimmt OM keine Haftung. Hinweise auf mögliche Rechtsverstöße können jederzeit gemeldet werden und werden nach Prüfung umgehend bearbeitet.
Lage des Objektes
Das Reihenhaus befindet sich in sehr idyllischer, familienfreundlicher Lage mit einer kleinen, öffentlichen Grünanlage gegenüber und einem Spielplatz in Sichtweite. Eine sehr begehrte Wohnlage in Möser.
