🔍 "Familie trifft Freiraum - EFH mit Einliegerwohnung perfekt geplant."
490.895 €
Kaufpreis
167,94 m²
Wohnfläche
4
Zimmer
immobilien.de Nr.: 9270720
Objektnummer: JW-Rogge-Aktion-EFH-ELW-1
Preise & Kosten
| Kaufpreis | 490.895 € |
| Nebenkosten | keine Angabe |
Größe & Zustand
| Wohnfläche | 167,94 m² |
| Grundstücksfläche | 798 m² |
| Zimmer | 4 |
| Verfügbar ab | keine Angabe |
Objektbeschreibung
"Ihr Traumhaus mit Einliegerwohnung - ideal für Mehrgenerationen oder Vermietung
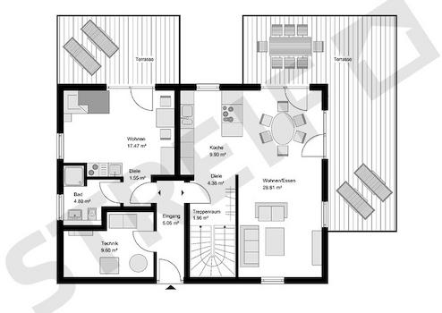
Willkommen in einem Haus, die modernes Familienleben und smarte Raumlösungen perfekt vereint! Das Family Hauskonzept von STREIF bietet auf großzügigen 167,94 qm Netto-Raumfläche ein innovatives Konzept für Mehrgenerationenwohnen, Vermietung oder flexible Familiengestaltung.
Ein besonderes Highlight ist die integrierte Einliegerwohnung mit separatem Eingang - perfekt geeignet für die Vermietung, das Wohnen mit Großeltern oder erwachsenen Kindern oder als exklusives Home-Office. Die bodentiefen Terrassentüren im Erdgeschoss sorgen für lichtdurchflutete Räume und einen offenen, modernen Charakter.
Im Obergeschoss bietet das Haus ein durchdachtes Raumkonzept mit einer großen Ankleide im Elternbereich sowie einem zusätzlichen Abstellraum, der für extra Stauraum und Ordnung sorgt - ideal für anspruchsvolle Familienbedürfnisse.
In der Standardausstattung ist das Haus mit einer innovativen Frischluft-Wärmepumpen-Technik ausgestattet, die effiziente Wärmeversorgung und kontrollierte Wohnraumlüftung kombiniert. Auf Wunsch kann das System um eine Luft-Wasser-Wärmepumpe und eine komfortable Fußbodenheizung erweitert werden - für noch mehr Nachhaltigkeit und Wohnkomfort.
Ihre Vorteile auf einen Blick:
-Family-Hauskonzept mit integrierter Einliegerwohnung und separatem Eingang
-Bodentiefe Terrassentüren für lichtdurchflutete Räume
-Großzügige Ankleide und zusätzlicher Abstellraum im Obergeschoss
-Frischluft-Wärmepumpen-Technik serienmäßig
-Optional erweiterbar mit Fußbodenheizung und Luft-Wasser-Wärmepumpe
Ideal für Vermietung, Mehrgenerationen oder flexible Nutzungskonzepte
Erleben Sie modernes, flexibles Wohnen in einer Architektur, die Ihnen alle Möglichkeiten offenlässt - mit dem STREIF Family EFH ELW.
Willkommen in einem Haus, die modernes Familienleben und smarte Raumlösungen perfekt vereint! Das Family Hauskonzept von STREIF bietet auf großzügigen 167,94 qm Netto-Raumfläche ein innovatives Konzept für Mehrgenerationenwohnen, Vermietung oder flexible Familiengestaltung.
Ein besonderes Highlight ist die integrierte Einliegerwohnung mit separatem Eingang - perfekt geeignet für die Vermietung, das Wohnen mit Großeltern oder erwachsenen Kindern oder als exklusives Home-Office. Die bodentiefen Terrassentüren im Erdgeschoss sorgen für lichtdurchflutete Räume und einen offenen, modernen Charakter.
Im Obergeschoss bietet das Haus ein durchdachtes Raumkonzept mit einer großen Ankleide im Elternbereich sowie einem zusätzlichen Abstellraum, der für extra Stauraum und Ordnung sorgt - ideal für anspruchsvolle Familienbedürfnisse.
In der Standardausstattung ist das Haus mit einer innovativen Frischluft-Wärmepumpen-Technik ausgestattet, die effiziente Wärmeversorgung und kontrollierte Wohnraumlüftung kombiniert. Auf Wunsch kann das System um eine Luft-Wasser-Wärmepumpe und eine komfortable Fußbodenheizung erweitert werden - für noch mehr Nachhaltigkeit und Wohnkomfort.
Ihre Vorteile auf einen Blick:
-Family-Hauskonzept mit integrierter Einliegerwohnung und separatem Eingang
-Bodentiefe Terrassentüren für lichtdurchflutete Räume
-Großzügige Ankleide und zusätzlicher Abstellraum im Obergeschoss
-Frischluft-Wärmepumpen-Technik serienmäßig
-Optional erweiterbar mit Fußbodenheizung und Luft-Wasser-Wärmepumpe
Ideal für Vermietung, Mehrgenerationen oder flexible Nutzungskonzepte
Erleben Sie modernes, flexibles Wohnen in einer Architektur, die Ihnen alle Möglichkeiten offenlässt - mit dem STREIF Family EFH ELW.
Ausstattung
| Anzahl der Etagen im Haus | 1 |
| Bad | 1 |
STREIF-Häuser erfüllen bereits im Standard die Effizienzhaus-Klasse KfW40PLUS.
Die STREIF-Passiv-Haus-Wände, eine effiziente Heiztechnik mit integrierter Wohnraumlüftung und Wärmerückgewinnung garantieren einen geringen Energieverbrauch und ein fantastisches Raumklima, das insbesondere Allergiker aufatmen lässt.
STREIF Leistungen sind MEHR WERT - schon im Grundpreis enthalten!
- 20-monatiger Fair- & Festpreisgarantie
- individuelle Grundrissgestaltung und Raumaufteilung
- gedämmte Fundamentplatte
- Photovoltaikanlage und Batteriespeicher
- Wärmepumpen-Technologie mit integrierter
Lüftungsanlage mit Wärmerückgewinnung
- Haustür von KERA und Fenster von Porta/Kömmerling
- Massivholz-Geschosstreppe aus eigener Produktion
- Sanitärobjekte von Markenherstellern
- Elektroinstallation
- Gütesiegel vom TÜV Rheinland- (schadstoffgeprüfte Materialien)
- KfW-Berechnungen, Nachweise & Anträge
Was wir Ihnen sonst noch bieten:
- individuelle und kostenlose Bauberatung inkl. Planungsvorschlag (Grundriss & Hauspreis)
- Baubegleitung
- Ermittlung der Gesamt-Investition Ihres Bauvorhabens (Baunebenkosten)
- Finanzierungs - & Fördermittelberatung
Die hohe Wertigkeit und Langlebigkeit eines STREIF-Energiespar-Hauses wird durch zahlreiche Auszeichnungen, Qualitäts- und Gütesiegel unabhängiger Institute und Verbände dokumentiert.
Angebotspreis ist
- inklusive Grundstück und Provision
- inklusive Haus in der Ausbaustufe Fast-Fertig-Plus (Technikfertig inkl. Bäder).
Ihre Eigenleistungen:
- Malerarbeiten
- Bodenbeläge
- Innentüren.
Selbstverständlich können wir Ihr Haus auch schlüsselfertig / bezugsfertig errichten.
Die STREIF-Passiv-Haus-Wände, eine effiziente Heiztechnik mit integrierter Wohnraumlüftung und Wärmerückgewinnung garantieren einen geringen Energieverbrauch und ein fantastisches Raumklima, das insbesondere Allergiker aufatmen lässt.
STREIF Leistungen sind MEHR WERT - schon im Grundpreis enthalten!
- 20-monatiger Fair- & Festpreisgarantie
- individuelle Grundrissgestaltung und Raumaufteilung
- gedämmte Fundamentplatte
- Photovoltaikanlage und Batteriespeicher
- Wärmepumpen-Technologie mit integrierter
Lüftungsanlage mit Wärmerückgewinnung
- Haustür von KERA und Fenster von Porta/Kömmerling
- Massivholz-Geschosstreppe aus eigener Produktion
- Sanitärobjekte von Markenherstellern
- Elektroinstallation
- Gütesiegel vom TÜV Rheinland- (schadstoffgeprüfte Materialien)
- KfW-Berechnungen, Nachweise & Anträge
Was wir Ihnen sonst noch bieten:
- individuelle und kostenlose Bauberatung inkl. Planungsvorschlag (Grundriss & Hauspreis)
- Baubegleitung
- Ermittlung der Gesamt-Investition Ihres Bauvorhabens (Baunebenkosten)
- Finanzierungs - & Fördermittelberatung
Die hohe Wertigkeit und Langlebigkeit eines STREIF-Energiespar-Hauses wird durch zahlreiche Auszeichnungen, Qualitäts- und Gütesiegel unabhängiger Institute und Verbände dokumentiert.
Angebotspreis ist
- inklusive Grundstück und Provision
- inklusive Haus in der Ausbaustufe Fast-Fertig-Plus (Technikfertig inkl. Bäder).
Ihre Eigenleistungen:
- Malerarbeiten
- Bodenbeläge
- Innentüren.
Selbstverständlich können wir Ihr Haus auch schlüsselfertig / bezugsfertig errichten.
Sonstige Informationen
Sie wünschen Bauplanung und Begleitung aus einer Hand? Dann sind wir Ihr Baupartner! Wir stehen Ihnen von Anfang an zur Seite und führen Sie auf dem Weg in Ihr neues perfektes Zuhause!
Mit STREIF haben Sie einen Baupartner mit Bau-Know-how, der seit 1929 auf fast 100 Jahre und 100.000 realisierte Wohnträume zurückblicken kann.
Jedes Haus von STREIF wird individuell als Energiesparhaus geplant und gebaut. Eine nachhaltige, ökologische und wohngesunde Bauweise, eine zertifizierte Ausführungsqualität und eine kurze Bauzeit, dafür stehen wir.
Im Anschluss der gemeinsamen Bedarfsermittlung erstellen wir Ihnen Ihren individuellen Planungsvorschlag mit einer detaillierten & realistisch ermittelten Aufstellung der Gesamt-Investition.
Wir freuen uns auf Ihren Anruf / Nachricht:
Mit STREIF haben Sie einen Baupartner mit Bau-Know-how, der seit 1929 auf fast 100 Jahre und 100.000 realisierte Wohnträume zurückblicken kann.
Jedes Haus von STREIF wird individuell als Energiesparhaus geplant und gebaut. Eine nachhaltige, ökologische und wohngesunde Bauweise, eine zertifizierte Ausführungsqualität und eine kurze Bauzeit, dafür stehen wir.
Im Anschluss der gemeinsamen Bedarfsermittlung erstellen wir Ihnen Ihren individuellen Planungsvorschlag mit einer detaillierten & realistisch ermittelten Aufstellung der Gesamt-Investition.
Wir freuen uns auf Ihren Anruf / Nachricht:
Lage des Objektes
Unsere Grundstücke befinden sich in ausgewählten, attraktiven Lagen und erfüllen höchste Ansprüche an Lebensqualität und Wertbeständigkeit.
Aus Diskretions- und Datenschutzgründen bitten wir um Verständnis, dass Grundstücksdaten ausschließlich im Rahmen eines persönlichen Beratungstermins und ausschließlich für unsere Kunden weitergegeben werden.
Aus Diskretions- und Datenschutzgründen bitten wir um Verständnis, dass Grundstücksdaten ausschließlich im Rahmen eines persönlichen Beratungstermins und ausschließlich für unsere Kunden weitergegeben werden.
Anbieter kontaktieren
Kontakt
| Telefon | +49 2595 9909690 |
| Mobil | +49 157 53710612 |
| Website | www.streif.de |
